Images
Description
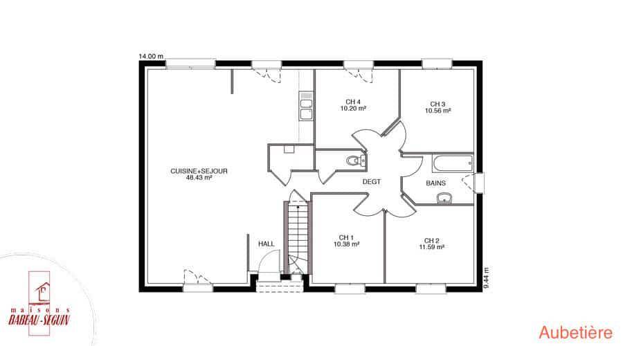
Sur ce terrain, nous vous proposons cette maison neuve Aubetière. Avec une surface de 59 m² et équipée d'une chambre, cette maison traditionnelle est appréciée pour son excellent rapport qualité/prix. Personnalisez le plan de votre Aubetière 59 m² avec des options comme un garage ou un sous-sol.
L'Aubetière est une maison moderne qui se distingue par son excellent rapport qualité/prix. Vous pouvez choisir entre une toiture à 2 pans ou à 4 pans, selon vos préférences esthétiques et pratiques.
Cette maison neuve est basse consommation et conforme à la RE2020, garantissant ainsi des performances énergétiques optimales et un respect des normes environnementales les plus récentes.
Le constructeur Babeau-Seguin, reconnu pour offrir le meilleur rapport qualité/prix du marché, vous accompagne dans la réalisation de votre projet de construction. Donnez vie à votre projet de construction en optant pour notre modèle traditionnel Aubetière et profitez d'une maison individuelle sur mesure, adaptée à vos besoins et à vos envies.
Logement susceptibles de vous intéresser
Nous vous proposons de découvrir aussi cette sélection de logements situés à moins de 10km de Ribécourt-Dreslincourt et qui seraient susceptibles de vous intéresser.

Thiescourt
TERRAINDécouvrez ce terrain non viabilisé d’une surface généreuse de 699 m², idéalement situé à Thiescourt, dans le département de l’Oise (60310). Profitez de ce cadre paisible pour réaliser votre projet de construction de maison sur mesure. Ce bien vous offre l’opportunité de concevoir un espace de vie unique, dans un environnement rassurant, tout en bénéficiant des caractéristiques distinctives de la région Hauts-de-France. N’attendez plus pour saisir le potentiel de ce terrain et bâtir la maison de vos rêves dans ce cadre enchanteur. Ce terrain représente une opportunité d’achat unique pour les intéressés. À noter qu’en tant que constructeur, nous ne sommes pas mandatés pour réaliser la vente de ce terrain.

Thiescourt
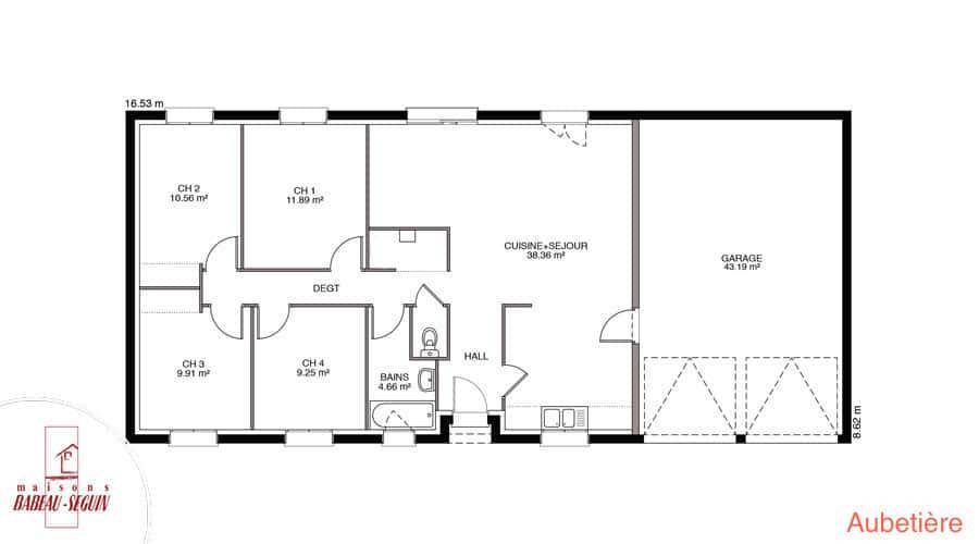
TERRAIN ET MAISONSur ce terrain, nous vous proposons cette maison neuve Aubetière, un modèle traditionnel signé Babeau-Seguin, constructeur reconnu pour offrir le meilleur rapport qualité/prix du marché. Avec une surface de 111 m², cette maison de plain-pied se distingue par son design moderne et ses nombreuses options de personnalisation.L’Aubetière dispose de 4 chambres spacieuses et de 4 pièces, offrant un espace de vie confortable et fonctionnel pour toute la famille. Vous avez le choix entre une toiture à 2 pans ou à 4 pans, ainsi que la possibilité d’ajouter un garage ou un sous-sol selon vos besoins et préférences.Cette maison neuve est également basse consommation et conforme à la réglementation environnementale RE2020, garantissant des performances énergétiques optimales et un impact réduit sur l’environnement.L’Aubetière est appréciée pour son excellent rapport qualité/prix et sa capacité à s’adapter à vos envies grâce à ses nombreuses déclinaisons et plans disponibles. Donnez vie à votre projet de construction en optant pour cette maison individuelle sur mesure, qui saura répondre à toutes vos attentes.Ne manquez pas cette opportunité unique de construire la maison de vos rêves avec Babeau-Seguin, le constructeur qui allie qualité, performance et économie.

Évricourt
TERRAINDécouvrez cette parcelle de terrain non-viabilisé de 893 m², idéalement située à Évricourt, dans le département de l’Oise, en région Hauts-de-France. Ce terrain offre une superbe vue dégagée sur un cadre champêtre, garantissant un environnement calme et apaisant pour votre futur projet de construction de maison. Grâce à son prix attractif, c’est une opportunité parfaite pour les individus ou les familles souhaitant construire leur résidence dans un cadre serein. Ce terrain présente un potentiel indéniable pour ceux qui souhaitent investir dans une propriété unique. N’attendez plus pour saisir cette occasion ! À noter qu’en tant que constructeur, nous ne sommes pas mandatés pour réaliser la vente de ce terrain.

Évricourt
TERRAIN ET MAISONSur ce terrain, nous vous proposons cette maison neuve, la Ménilière, un modèle plain-pied moderne qui saura répondre à toutes vos attentes. Avec une surface de 73 m², cette maison dispose de 3 pièces, dont 2 chambres, et intègre de base un garage ainsi qu’une longue galerie sur la face avant.Véritable « »tout-en-un » » de la maison individuelle, la Ménilière est idéale pour votre projet de construction sur-mesure. Elle est disponible avec un toit à 2 pans ou 4 pans, selon vos préférences esthétiques. Le garage intégré et la galerie avant ajoutent une touche de praticité et de confort à votre quotidien.Parmi les options les plus demandées par nos clients, vous pouvez opter pour des menuiseries en aluminium et un sous-sol, afin de personnaliser encore davantage votre future maison.Cette maison neuve est basse consommation et conforme à la RE2020, garantissant ainsi des performances énergétiques optimales et un respect des normes environnementales actuelles.Le constructeur Babeau-Seguin, reconnu pour offrir le meilleur rapport qualité/prix du marché, vous accompagne dans la réalisation de votre projet de vie. Avec un prix serré et une personnalisation facile, il n’est pas étonnant que la Ménilière soit dans le top 5 des ventes de Babeau-Seguin.Ne manquez pas cette opportunité unique de devenir propriétaire d’une maison moderne, fonctionnelle et économe en énergie. Contactez-nous dès maintenant pour plus d’informations et pour visiter ce modèle sur notre terrain.

Cuy
TERRAINCe terrain non-viabilisé d’une superficie de 605 m², situé à Cuy dans l’Oise (60310), vous offre une opportunité rare pour réaliser le projet de construction de vos rêves. Ce cadre champêtre et au calme, sans vis-à-vis, est idéal pour bâtir une maison qui saura combiner modernité et respect de l’environnement. Vous profiterez ainsi d’une qualité de vie exceptionnelle entourée par la nature, tout en ayant un accès facile à toutes les commodités nécessaires. Ne laissez pas passer cette opportunité unique d’acquérir un terrain avec un potentiel incroyable. À noter qu’en tant que constructeur, nous ne sommes pas mandatés pour réaliser la vente de ce terrain.

Cuy
TERRAIN ET MAISONSur ce terrain, nous vous proposons cette maison neuve, modèle Prunière, l’un des modèles les plus vendus par Babeau-Seguin, constructeur offrant le meilleur rapport qualité/prix du marché. Figurant dans le top 5 des maisons individuelles Babeau-Seguin, cette maison plain-pied Prunière séduit par son renfoncement qui casse la monotonie de la façade avant et offre un abri de seuil.Avec une surface de 85 m², cette maison traditionnelle comprend 4 pièces, dont 3 chambres, et un garage intégré. Elle se décline en versions à 2 pans ou 4 pans, selon vos préférences. Parfaitement équipée, la Prunière est en effet la maison à petit prix par excellence.En plus de son design attrayant, cette maison neuve est basse consommation et conforme à la RE2020, garantissant ainsi des performances énergétiques optimales et un confort de vie inégalé. Ne manquez pas cette opportunité de construire la maison de vos rêves avec Babeau-Seguin, le constructeur qui allie qualité, prix et satisfaction client.

Lagny
TERRAINÀ vendre, terrain d’une superficie généreuse de 991m², idéal pour concrétiser votre projet de construction de maison. Ce bien immobilier est situé à Lagny, une charmante commune de l’Oise, dans la région des Hauts-de-France. Le terrain offre une vue dégagée et se distingue par son cadre champêtre apaisant, promettant un cadre de vie paisible et agréable. Cette opportunité d’acquérir un terrain non-viabilisé ne manquera pas de séduire les amateurs de nature et de tranquillité. Lagny offre un accès facile à des infrastructures telles que des écoles, des commerces et des espaces verts. La localisation permet également de profiter d’une qualité de vie exceptionnelle grâce aux paysages environnants et au calme qui y règne. Ce terrain est donc une véritable opportunité pour quiconque souhaite s’installer dans un environnement serein tout en restant connecté aux services urbains. À noter qu’en tant que constructeur, nous ne sommes pas mandatés pour réaliser la vente de ce terrain.

Lagny
TERRAIN ET MAISONSur ce terrain, nous vous proposons Focus Flex, une maison neuve et flexible qui s’adapte à vos besoins actuels et futurs !Avec un espace de vie entièrement prêt à habiter de 50 m², cette maison moderne et économe en énergie, respectant la norme RE2020, vous offre tout le confort nécessaire à un prix exceptionnel.Le vrai plus ? Une extension aménageable de 45 m², prête à accueillir vos futurs projets ! Que votre famille s’agrandisse ou que vous ayez simplement besoin de plus d’espace, cette partie flexible, directement attenante à la maison principale, vous permet d’évoluer à votre rythme.Finis les travaux interminables et les trajets coûteux vers un chantier éloigné. Vous restez chez vous, tout en ajoutant des mètres carrés en fonction de vos envies. De plus, des options comme la dalle béton et l’extension des réseaux électriques et d’eau vous facilitent encore plus la tâche.Avec Focus Flex, vous choisissez une maison évolutive qui s’adapte à vos besoins tout en respectant votre style de vie. Profitez d’une maison neuve, immédiatement habitable, qui peut grandir avec vous ! Des conseils d’aménagement vous seront proposés pour vous accompagner dans cette aventure.

Ribécourt-Dreslincourt
TERRAINDécouvrez ce magnifique terrain non-viabilisé de 618 m², situé dans la charmante commune de Ribécourt-Dreslincourt, dans l’Oise. Ce bien rare offre une opportunité unique pour la construction de votre future maison, dans un environnement privilégié. Son emplacement au cœur de ville, à proximité des commodités essentielles, fait de ce terrain un choix idéal pour les familles et les investisseurs souhaitant s’implanter dans un cadre vivant et dynamique. À noter qu’en tant que constructeur, nous ne sommes pas mandatés pour réaliser la vente de ce terrain.
L’actualité immobilière à Ribécourt-Dreslincourt





