Images
Description
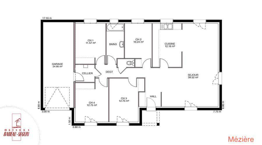
Sur ce terrain, nous vous proposons cette maison neuve, la Mézière, conçue par Babeau-Seguin, le constructeur offrant le meilleur rapport qualité/prix du marché. Avec une surface de 71 m², cette maison de plain-pied dispose de 2 chambres et de 3 pièces, idéale pour répondre aux besoins de nombreuses familles.
Grâce à ses nombreuses versions, la Mézière sait séduire et s’adapter aux besoins de chacun, ce qui fait d'elle une véritable maison sur mesure. Vous avez le choix entre un plan en L, avec un toit à 2 pans ou à 4 pans, selon vos préférences esthétiques et fonctionnelles.
Les options les plus demandées par nos clients sont également disponibles pour cette maison : menuiseries en aluminium pour une meilleure isolation et un design moderne, domotique pour un confort de vie optimal, et la possibilité d'ajouter un garage ou un sous-sol pour plus de praticité.
Cette maison neuve est basse consommation et conforme à la RE2020, garantissant ainsi des performances énergétiques optimales et un respect des normes environnementales actuelles.
Véritable coup de cœur pour de nombreux clients Babeau-Seguin, la Mézière est facilement modifiable, ce qui justifie pleinement son succès. Craquerez-vous aussi pour elle ?
Logement susceptibles de vous intéresser
Nous vous proposons de découvrir aussi cette sélection de logements situés à moins de 10km de Roye-sur-Matz et qui seraient susceptibles de vous intéresser.
Roye-sur-Matz
TERRAIN ET MAISONSur ce terrain, nous vous proposons cette maison neuve, la Mézière, conçue par Babeau-Seguin, le constructeur offrant le meilleur rapport qualité/prix du marché. Avec une surface de 71 m², cette maison de plain-pied dispose de 2 chambres et de 3 pièces, idéale pour répondre aux besoins de nombreuses familles.Grâce à ses nombreuses versions, la Mézière sait séduire et s’adapter aux besoins de chacun, ce qui fait d’elle une véritable maison sur mesure. Vous avez le choix entre un plan en L, avec un toit à 2 pans ou à 4 pans, selon vos préférences esthétiques et fonctionnelles.Les options les plus demandées par nos clients sont également disponibles pour cette maison : menuiseries en aluminium pour une meilleure isolation et un design moderne, domotique pour un confort de vie optimal, et la possibilité d’ajouter un garage ou un sous-sol pour plus de praticité.Cette maison neuve est basse consommation et conforme à la RE2020, garantissant ainsi des performances énergétiques optimales et un respect des normes environnementales actuelles.Véritable coup de cœur pour de nombreux clients Babeau-Seguin, la Mézière est facilement modifiable, ce qui justifie pleinement son succès. Craquerez-vous aussi pour elle ?
Roye-sur-Matz
TERRAINDécouvrez ce magnifique terrain non-viabilisé situé à Roye-sur-Matz, dans l’Oise, en Hauts-de-France. D’une superficie généreuse de 954 m², ce terrain offre une vue dégagée et un cadre champêtre, idéal pour réaliser votre projet de construction de maison. Sa situation privilégiée au calme, loin du tumulte urbain, promet une qualité de vie incomparable au quotidien. Ne manquez pas cette opportunité rare d’acquérir un terrain qui vous permettra de concrétiser vos rêves. Ce terrain représente une réelle opportunité d’acquisition pour ceux qui cherchent à bâtir dans un environnement paisible et agréable. À noter qu’en tant que constructeur, nous ne sommes pas mandatés pour réaliser la vente de ce terrain.
Dives
TERRAIN ET MAISONSur ce terrain, nous vous proposons cette maison neuve : la Focus Cosy. Conçue par Babeau-Seguin, constructeur offrant le meilleur rapport qualité/prix du marché, cette maison de 79 m² est idéale pour les familles à la recherche d’un logement confortable et économique.La Focus Cosy se distingue par son design contemporain et ses finitions soignées. Avec ses 4 pièces, dont 3 chambres, cette maison de plain-pied offre un espace de vie bien pensé et harmonieux. Le vaste séjour-cuisine est un lieu convivial où il fait bon vivre, tandis que l’espace nuit garantit tranquillité et intimité.L’un des atouts majeurs de cette maison est son garage intégré, qui ajoute une touche de praticité supplémentaire. L’enduit bi-ton de la façade apporte une touche esthétique moderne et élégante.Cette maison neuve est également basse consommation et conforme à la RE2020, ce qui en fait un choix écologique et économique. Les options les plus demandées par nos clients, telles que les menuiseries en aluminium, peuvent être intégrées pour encore plus de confort et de modernité.En choisissant la Focus Cosy, vous optez pour une maison accessible à tous les budgets, sans compromis sur les équipements. Avec ses performances énergétiques et écologiques de pointe, cette maison bénéficie des dernières innovations technologiques et de toute l’expertise des Maisons Babeau-Seguin.Ne manquez pas cette opportunité de réaliser votre rêve de maison à un prix incroyablement attractif. La Focus Cosy est une maison pratique et élégante où votre famille se sentira immédiatement chez elle.
Dives
TERRAINÀ la recherche d’un terrain idéal pour concrétiser votre projet de construction de maison ? Découvrez ce terrain non viabilisé de 792m² à Dives, dans le département de l’Oise, en région Hauts-de-France. Niché au calme, il offre une vue dégagée sur un cadre champêtre, propice à la détente et à la sérénité. Ce terrain constitue un véritable havre de paix, vous permettant de bâtir la maison de vos rêves dans un environnement agréable. Ce terrain représente une opportunité d’achat unique pour ceux qui recherchent à s’établir dans un cadre idyllique. N’hésitez pas à envisager cette proposition qui pourrait donner vie à vos ambitions ! À noter qu’en tant que constructeur, nous ne sommes pas mandatés pour réaliser la vente de ce terrain.
Boulogne-la-Grasse
TERRAINPrix : 23000 €.Sur ce terrain, réalisez votre projet de construction de maison RE 2020 avec PAVILLONS D'ÎLE-DE-FRANCE (constructeur de maisons de gamme et sur-mesure depuis plus de 50 ans) :- Plan sur-mesure et personnalisé de 2 à 5 chambres- Mode de chauffage au choix- Grands choix d'équipements et de prestations- Matériaux de qualité selon les normes en vigueur- Accompagnement dans le choix et l’acquisition du terrainDemandez une étude gratuite et personnalisée de votre projet de construction sur ce terrain !Contactez Norbert DE SA au (Numéro supprimé) ou au (Numéro supprimé) (Pavillons d'Île-de-France – Agence de Noyon).Prix hors frais de notaire. Terrain sélectionné et vu pour vous sous réserve de disponibilité et au prix indiqué par notre partenaire foncier. Visuels non contractuels.Cette annonce a été créée et diffusée avec le logiciel VITAHOME.
Élincourt-Sainte-Marguerite
TERRAINPrix : 39000 €.Sur ce terrain, réalisez votre projet de construction de maison RE 2020 avec PAVILLONS D'ÎLE-DE-FRANCE (constructeur de maisons de gamme et sur-mesure depuis plus de 50 ans) :- Plan sur-mesure et personnalisé de 2 à 5 chambres- Mode de chauffage au choix- Grands choix d'équipements et de prestations- Matériaux de qualité selon les normes en vigueur- Accompagnement dans le choix et l’acquisition du terrainDemandez une étude gratuite et personnalisée de votre projet de construction sur ce terrain !Contactez Norbert DE SA au (Numéro supprimé) ou au (Numéro supprimé) (Pavillons d'Île-de-France – Agence de Noyon).Prix hors frais de notaire. Terrain sélectionné et vu pour vous sous réserve de disponibilité et au prix indiqué par notre partenaire foncier. Visuels non contractuels.Cette annonce a été créée et diffusée avec le logiciel VITAHOME.
Élincourt-Sainte-Marguerite
TERRAINPrix : 39000 €.Sur ce terrain, réalisez votre projet de construction de maison RE 2020 avec PAVILLONS D'ÎLE-DE-FRANCE (constructeur de maisons de gamme et sur-mesure depuis plus de 50 ans) :- Plan sur-mesure et personnalisé de 2 à 5 chambres- Mode de chauffage au choix- Grands choix d'équipements et de prestations- Matériaux de qualité selon les normes en vigueur- Accompagnement dans le choix et l’acquisition du terrainDemandez une étude gratuite et personnalisée de votre projet de construction sur ce terrain !Contactez Anthony CALMELS au (Numéro supprimé) ou au (Numéro supprimé) (Pavillons d'Île-de-France – Agence de Noyon).Prix hors frais de notaire. Terrain sélectionné et vu pour vous sous réserve de disponibilité et au prix indiqué par notre partenaire foncier. Visuels non contractuels.Cette annonce a été créée et diffusée avec le logiciel VITAHOME.
Élincourt-Sainte-Marguerite
TERRAINPrix : 110000 €.Sur ce terrain, réalisez votre projet de construction de maison RE 2020 avec PAVILLONS D'ÎLE-DE-FRANCE (constructeur de maisons de gamme et sur-mesure depuis plus de 50 ans) :- Plan sur-mesure et personnalisé de 2 à 5 chambres- Mode de chauffage au choix- Grands choix d'équipements et de prestations- Matériaux de qualité selon les normes en vigueur- Accompagnement dans le choix et l’acquisition du terrainDemandez une étude gratuite et personnalisée de votre projet de construction sur ce terrain !Contactez Anthony CALMELS au (Numéro supprimé) ou au (Numéro supprimé) (Pavillons d'Île-de-France – Agence de Noyon).Prix hors frais de notaire. Terrain sélectionné et vu pour vous sous réserve de disponibilité et au prix indiqué par notre partenaire foncier. Visuels non contractuels.Cette annonce a été créée et diffusée avec le logiciel VITAHOME.
Élincourt-Sainte-Marguerite
TERRAINPrix : 110000 €.Sur ce terrain, réalisez votre projet de construction de maison RE 2020 avec PAVILLONS D'ÎLE-DE-FRANCE (constructeur de maisons de gamme et sur-mesure depuis plus de 50 ans) :- Plan sur-mesure et personnalisé de 2 à 5 chambres- Mode de chauffage au choix- Grands choix d'équipements et de prestations- Matériaux de qualité selon les normes en vigueur- Accompagnement dans le choix et l’acquisition du terrainDemandez une étude gratuite et personnalisée de votre projet de construction sur ce terrain !Contactez Norbert DE SA au (Numéro supprimé) ou au (Numéro supprimé) (Pavillons d'Île-de-France – Agence de Noyon).Prix hors frais de notaire. Terrain sélectionné et vu pour vous sous réserve de disponibilité et au prix indiqué par notre partenaire foncier. Visuels non contractuels.Cette annonce a été créée et diffusée avec le logiciel VITAHOME.
L’actualité immobilière à Roye-sur-Matz
27/11/2023
02/11/2023
30/10/2023
20/10/2023
16/10/2023
16/10/2023