Maison à construire à Russy-Bémont (60117)
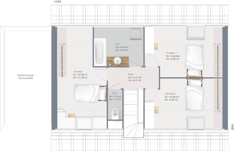
Images
Description
Maison de type rez de chaussée et combles aménagés de 115 m² avec garage, normes RE 2020, située à RUSSY-BEMONT, sur un terrain de 466 m² viabilisé en partie.
Cette maison RE 2020 , dispose de 4 chambres avec rangements intégrés dont 1 suite parentale au rez de chaussée avec dressing et sde, séjour carrelé ,1 salle d'eau équipées ,cellier, packs alarme et domotique, baie aluminium, volets roulants centralisés et intégrés à la maçonnerie.
Plans 100% personnalisables et modifiables .
Accompagnement intégral : Financement , étude technique du terrain , gestion administrative .
Frais annexes ( raccordements , viabilisation , puisards, enlèvements des terres excédentaires , chemin d'accès )inclus dans le prix de cette annonce .
Contactez moi pour une étude gratuite .
Rendez vous en agence ou à votre domicile .
M. DOS SANTOS XAVIER
(Numéro supprimé)
Logement susceptibles de vous intéresser
Nous vous proposons de découvrir aussi cette sélection de logements situés à moins de 10km de Russy-Bémont et qui seraient susceptibles de vous intéresser.

Crépy-en-Valois
TERRAINTerrain de 440 m² à vendre à Crépy-en-ValoisPROCHE DE COMPIÈGNETerrain de 440 m² au pied du Transilien K (50 min de Paris). Ce terrain se situe dans Crépy-en-Valois (60800). Le terrain est proche des commerces et des écoles. Il y a l’École Maternelle Jacques Prévert, l’École Élémentaire Jean Vassal, le Collège Gérard de Nerval et l’École Primaire Privée Sainte Marie à moins de 10 minutes à pied. Niveau transports, on trouve la gare Crépy-en-Valois dans un rayon de 1 km. La nationale N2 est accessible à 5 km et Compiègne se situe à 19 km. On trouve une bibliothèque, des commerces, des boulangeries, un supermarché, trois boucheries-charcuteries et une poissonnerie à quelques minutes. Ne manquez pas le marché Place de la République chaque mercredi matin.Ce terrain est proposé à l’achat pour 67 000 €. N’hésitez pas à prendre contact avec notre agence (Antoine FLIPPE : (Numéro supprimé)) pour tout renseignement sur le terrain.Annonce proposée par un Agent Commercial Partenaire.

Bargny
TERRAINVENTE : terrain de 630 m² à BargnyPROCHE DE MEAUXProche du Transilien K (gare de Crépy-en-Valois, 50 min de Paris) à Bargny (60620), grand terrain. Réalisez-y votre projet immobilier. Le terrain est proche des écoles et des commerces. Il y a une école élémentaire dans le quartier. Niveau transports, on trouve quatre gares à moins de 10 minutes en voiture. La nationale N2 est accessible à 4 km et Meaux est située à 24 km. On trouve un commerce dans les environs.Il est à vendre pour la somme de 100 000 €. N’hésitez pas à prendre contact avec notre agence (FLIPPE Antoine : (Numéro supprimé)) pour obtenir de plus amples renseignements sur ce terrain. Faites de vos projets immobiliers une réalité avec Maisons Balency Pierrelaye.Annonce proposée par un Agent Commercial Partenaire.

Lévignen
TERRAINLévignen : terrain de 630 m² en ventePROCHE DE MEAUXGrand terrain à proximité du Transilien K (gare de Crépy-en-Valois, 50 min de Paris). De 630 m², ce terrain se situe dans Lévignen (60800). Le terrain est proche des commerces et des écoles. Il y a l’École Primaire G. Camus à moins de 10 minutes à pied. Niveau transports en commun, on trouve trois gares (Crépy-en-Valois, Ormoy-Villers et Vaumoise) à moins de 10 minutes en voiture. La nationale N2 est accessible à 1 km et Meaux se situe à 27 km. Il y a un tennis à proximité du bien.Ce terrain est proposé à l’achat pour 100 000 €. N’hésitez pas à prendre contact avec notre agence (Antoine FLIPPE : (Numéro supprimé)) pour toute information sur le terrain. Maisons Balency Pierrelaye vous accompagne dans tous vos projets immobiliers et à toutes les étapes de votre projet.Annonce proposée par un Agent Commercial Partenaire.

Crépy-en-Valois
TERRAIN ET MAISONVENTE : maison de 7 pièces (124 m²) à Crépy-en-ValoisMAISON 7 PIÈCES NEUVE – PROCHE DE COMPIÈGNEAu pied du Transilien K (50 min de Paris), venez découvrir cette maison de 7 pièces de 124 m² à vendre à Crépy-en-Valois (60800).Cette maison possède 2 niveaux. Son intérieur comporte cinq chambres, une cuisine et trois salles de bains. La maison est neuve.Le terrain du bien s’étend sur 440 m².L’École Maternelle Jacques Prévert, l’École Élémentaire Jean Vassal, le Collège Gérard de Nerval et l’École Primaire Privée Sainte Marie se trouvent à moins de 10 minutes à pied. Niveau transports en commun, il y a la gare Crépy-en-Valois dans un rayon de 1 km. On trouve un accès à la nationale N2 à 5 km et Compiègne est située à 19 km. On trouve une bibliothèque, des commerces, des boulangeries, un supermarché, un bureau de poste et trois boucheries-charcuteries dans les environs. Enfin, le marché Place de la République a lieu tous les mercredis matin.Elle est à vendre pour la somme de 262 000 €.Prenez contact avec notre agence (Antoine FLIPPE : (Numéro supprimé)) pour toute information sur cette maison. Maisons Balency Pierrelaye vous accompagne dans tous vos projets immobiliers et dans toutes vos démarches.Annonce proposée par un Agent Commercial Partenaire.

Crépy-en-Valois
TERRAIN ET MAISONVENTE : maison de 7 pièces (102 m²) à Crépy-en-ValoisPROCHE DE COMPIÈGNE – MAISON 7 PIÈCES NEUVEÀ deux pas du Transilien K (50 min de Paris), laissez vous charmer par cette maison de 7 pièces de 102 m² et de 440 m² de terrain à Crépy-en-Valois (60800).C’est une maison de 2 niveaux. Elle comporte cinq chambres, une cuisine et deux salles de bains. La maison est neuve.L’École Maternelle Jacques Prévert, l’École Élémentaire Jean Vassal, le Collège Gérard de Nerval et l’École Primaire Privée Sainte Marie sont implantés à moins de 10 minutes à pied. Niveau transports, il y a la gare Crépy-en-Valois à proximité. La nationale N2 est accessible à 5 km et Compiègne est située à 19 km. On trouve une bibliothèque, des commerces, des boulangeries, un supermarché, une poissonnerie et un bureau de poste à quelques minutes. Enfin, le marché Place de la République anime le quartier chaque mercredi matin.Son prix de vente est de 238 000 €.Contactez Antoine FLIPPE (tél : (Numéro supprimé)) pour plus de renseignements sur cette maison. Faites de vos projets immobiliers une réalité avec Maisons Balency Pierrelaye.Annonce proposée par un Agent Commercial Partenaire.

Crépy-en-Valois
TERRAIN ET MAISONVENTE d’une maison T5 (96 m²) à Crépy-en-ValoisMAISON 5 PIÈCES NEUVE – PROCHE DE COMPIÈGNEEn vente : à proximité du Transilien K (50 min de Paris), nous sommes ravis de vous présenter cette maison de 5 pièces de 96 m² et de 440 m² de terrain à Crépy-en-Valois (60800). Son intérieur compte quatre chambres, une cuisine et une salle de bains.C’est une maison de 2 niveaux. Elle est neuve.On trouve l’École Maternelle Jacques Prévert, l’École Élémentaire Jean Vassal, le Collège Gérard de Nerval et l’École Primaire Privée Sainte Marie à moins de 10 minutes à pied. Niveau transports, il y a la gare Crépy-en-Valois dans les alentours. Il y a un accès à la nationale N2 à 5 km et Compiègne se situe à 19 km. Il y a une bibliothèque, des commerces, des boulangeries, un supermarché, trois boucheries-charcuteries et une poissonnerie à quelques minutes de la maison. Ne manquez pas le marché Place de la République tous les mercredis matin.Elle est à vendre pour la somme de 245 000 €.N’hésitez pas à prendre contact avec Antoine FLIPPE (tél : (Numéro supprimé)) pour toute information sur cette maison. Maisons Balency Pierrelaye vous accompagne dans tous vos projets immobiliers et à toutes les étapes de votre projet.Annonce proposée par un Agent Commercial Partenaire.

Crépy-en-Valois
TERRAIN ET MAISONCrépy-en-Valois : maison de 4 pièces (60 m²) à vendreMAISON 4 PIÈCES NEUVE – PROCHE DE COMPIÈGNEÀ vendre : proche du Transilien K (50 min de Paris), nous vous proposons à Crépy-en-Valois (60800), cette maison de 4 pièces de plain-pied de 60 m².Conçue de plain-pied, elle propose deux chambres, une cuisine et une salle de bains. Cette maison est neuve.Le terrain de la propriété s’étend sur 440 m².Il y a l’École Maternelle Jacques Prévert, l’École Élémentaire Jean Vassal, le Collège Gérard de Nerval et l’École Primaire Privée Sainte Marie à moins de 10 minutes à pied. Niveau transports en commun, on trouve la gare Crépy-en-Valois dans un rayon de 1 km. Il y a un accès à la nationale N2 à 5 km et Compiègne se situe à 19 km. Il y a une bibliothèque, des commerces, des boulangeries, un supermarché, trois boucheries-charcuteries et une épicerie dans les environs. Enfin, le marché Place de la République anime les environs chaque mercredi matin.Son prix de vente est de 185 000 €.Contactez notre agence (Antoine FLIPPE : (Numéro supprimé)) pour toute information sur ce bien. Maisons Balency Pierrelaye vous accompagne dans toutes vos démarches et dans tous vos projets immobiliers.Annonce proposée par un Agent Commercial Partenaire.

Crépy-en-Valois
TERRAIN ET MAISONCrépy-en-Valois : maison T4 (92 m²) à vendreMAISON 4 PIÈCES NEUVE – PROCHE DE COMPIÈGNEÀ proximité du Transilien K (50 min de Paris), découvrez cette maison de 4 pièces de plain-pied de 92 m² à Crépy-en-Valois (60800). Elle compte trois chambres, une cuisine et une salle de bains.Le terrain de la propriété s’étend sur 440 m².La maison est neuve.L’École Maternelle Jacques Prévert, l’École Élémentaire Jean Vassal, le Collège Gérard de Nerval et l’École Primaire Privée Sainte Marie sont implantés à moins de 10 minutes à pied. Niveau transports, il y a la gare Crépy-en-Valois dans les alentours. On trouve un accès à la nationale N2 à 5 km et Compiègne est située à 19 km. On trouve une bibliothèque, des commerces, des boulangeries, un supermarché, trois boucheries-charcuteries et une poissonnerie à quelques minutes. Le marché Place de la République a lieu tous les mercredis matin.Elle est proposée à l’achat pour 236 000 €.Contactez notre agence (Antoine FLIPPE : (Numéro supprimé)) pour obtenir de plus amples informations sur la maison ou sur les modalités de vente. Donnez vie à vos projets immobiliers avec Maisons Balency Pierrelaye.Annonce proposée par un Agent Commercial Partenaire.

Crépy-en-Valois
TERRAIN ET MAISONVENTE : maison T4 (85 m²) à Crépy-en-ValoisMAISON 4 PIÈCES NEUVE – PROCHE DE COMPIÈGNEÀ côté du Transilien K (50 min de Paris), nous vous présentons cette maison de 4 pièces de plain-pied de 85 m² à vendre à Crépy-en-Valois (60800). Elle offre trois chambres, une cuisine et une salle de bains.Le terrain du bien est de 440 m².Cette maison est neuve.L’École Maternelle Jacques Prévert, l’École Élémentaire Jean Vassal, le Collège Gérard de Nerval et l’École Primaire Privée Sainte Marie sont implantés à moins de 10 minutes à pied. Niveau transports en commun, on trouve la gare Crépy-en-Valois à quelques pas de la maison. Il y a un accès à la nationale N2 à 5 km et Compiègne est située à 19 km. Il y a une bibliothèque, des commerces, des boulangeries, un supermarché, une poissonnerie et une épicerie à quelques minutes de la maison. Enfin, le marché Place de la République anime les environs chaque mercredi matin.Elle est à vendre pour la somme de 217 000 €.Prenez contact avec notre agence (Antoine FLIPPE : (Numéro supprimé)) pour tout renseignement sur cette maison ou sur les démarches à suivre. Maisons Balency Pierrelaye est là pour vous accompagner dans tous vos projets immobiliers.Annonce proposée par un Agent Commercial Partenaire.
L’actualité immobilière à Russy-Bémont





