Maison à construire à Russy-Bémont (60117)
Images
Description
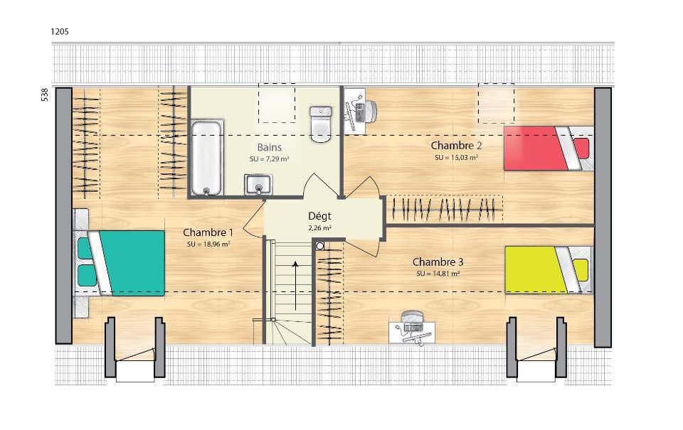
Maison de type Rez de chaussée + combles aménagés, normes RE 2020, située à RUSSY-BEMONT, sur un terrain de 466 m² viabilisé en partie.
Cette maison RE 2020 , dispose de 4 chambres avec rangements intégrés dont 1 suite parentale au rdc avec dressing et sde , séjour carrelé ,1 salle d'eau équipées ,cellier et entrée séparée, packs alarme et domotique, baie aluminium, volets roulants centralisés et intégrés à la maçonnerie.
Plans 100% personnalisables et modifiables .
Accompagnement intégral : Financement , étude technique du terrain , gestion administrative .
Frais annexes ( raccordements , viabilisation , puisards, enlèvements des terres excédentaires , chemin d'accès )inclus dans le prix de cette annonce .
Contactez moi pour une étude gratuite .
Rendez vous en agence ou à votre domicile .
M. DOS SANTOS XAVIER
(Numéro supprimé)
Logement susceptibles de vous intéresser
Nous vous proposons de découvrir aussi cette sélection de logements situés à moins de 10km de Russy-Bémont et qui seraient susceptibles de vous intéresser.

Gilocourt
TERRAINJoli terrain de 994m² , à GILOCOURT , hors périmètre des batiments de France .Plat , belle façade , idéal pour une construction de plain pied , maison R+1 envisageables également .Profitez d’une commune paisible , située à seulement 10minutes de Crépy en Valois .Sur place : Ecole , commerces ( primeur , boucherie , camion pizzas , boulangerie automatique ..)Rendez vous en agence ou à votre domicile .Contactez XAVIER DOS SANTOS pour une étude personnalisée au (Numéro supprimé)

Crépy-en-Valois
TERRAINTerrain de 994m² , situé à 10minutes de Crépy en Valois .Village paisible , avec école , commerces itinérants ( primeur , boucherie , pizzéria ..)Contactez moi pour une étude personnalisée .M. Dos Santos Xavier(Numéro supprimé)

Russy-Bémont
TERRAIN ET MAISONMaison R+1 avec garage, normes RE 2020, située à RUSSY-BEMONT, sur un terrain de 466 m² viabilisé en partie.Cette maison RE 2020 , dispose de 3 chambres avec rangements intégrés , séjour carrelé ,1 salle d’eau équipées ,cellier et garage , packs alarme et domotique , baie aluminium , volets roulants centralisés et intégrés à la maçonnerie, plancher béton.Plans 100% personnalisables et modifiables .Accompagnement intégral : Financement , étude technique du terrain , gestion administrative .Frais annexes ( raccordements , viabilisation , puisards, enlèvements des terres excédentaires , chemin d’accès )inclus dans le prix de cette annonce .Contactez moi pour une étude gratuite .Rendez vous en agence ou à votre domicile .M. DOS SANTOS XAVIER(Numéro supprimé)

Russy-Bémont
TERRAIN ET MAISONMaison de type Rez de chaussée + combles aménagés, normes RE 2020, située à RUSSY-BEMONT, sur un terrain de 466 m² viabilisé en partie.Cette maison RE 2020 , dispose de 4 chambres avec rangements intégrés dont 1 suite parentale au rdc avec dressing et sde , séjour carrelé ,1 salle d’eau équipées ,cellier et entrée séparée, packs alarme et domotique, baie aluminium, volets roulants centralisés et intégrés à la maçonnerie.Plans 100% personnalisables et modifiables .Accompagnement intégral : Financement , étude technique du terrain , gestion administrative .Frais annexes ( raccordements , viabilisation , puisards, enlèvements des terres excédentaires , chemin d’accès )inclus dans le prix de cette annonce .Contactez moi pour une étude gratuite .Rendez vous en agence ou à votre domicile .M. DOS SANTOS XAVIER(Numéro supprimé)

Russy-Bémont
TERRAIN ET MAISONMaison de type plain-pied de 70 m² avec garage intégré, normes RE 2020, située à RUSSY-BEMONT, sur un terrain de 466 m² viabilisé en partie.Cette maison RE 2020 , dispose de2 chambres avec rangements intégrés, séjour carrelé ,1 salle d’eau équipées ,cellier, packs alarme et domotique, baie aluminium, volets roulants centralisés et intégrés à la maçonnerie.Plans 100% personnalisables et modifiables .Accompagnement intégral : Financement , étude technique du terrain , gestion administrative .Frais annexes ( raccordements , viabilisation , puisards, enlèvements des terres excédentaires , chemin d’accès )inclus dans le prix de cette annonce .Contactez moi pour une étude gratuite .Rendez vous en agence ou à votre domicile .M. DOS SANTOS XAVIER(Numéro supprimé)

Russy-Bémont
TERRAIN ET MAISONMaison de type rez de chaussée et combles aménagés de 115 m² avec garage, normes RE 2020, située à RUSSY-BEMONT, sur un terrain de 466 m² viabilisé en partie.Cette maison RE 2020 , dispose de 4 chambres avec rangements intégrés dont 1 suite parentale au rez de chaussée avec dressing et sde, séjour carrelé ,1 salle d’eau équipées ,cellier, packs alarme et domotique, baie aluminium, volets roulants centralisés et intégrés à la maçonnerie.Plans 100% personnalisables et modifiables .Accompagnement intégral : Financement , étude technique du terrain , gestion administrative .Frais annexes ( raccordements , viabilisation , puisards, enlèvements des terres excédentaires , chemin d’accès )inclus dans le prix de cette annonce .Contactez moi pour une étude gratuite .Rendez vous en agence ou à votre domicile .M. DOS SANTOS XAVIER(Numéro supprimé)

Gilocourt
TERRAIN ET MAISONDécouvrez notre gamme de maisons évolutives. Située à Gilocourt , sur un terrain de 994m² :Environnement paisible et clos , à 8 minutes de Crépy en Valois .Cette maison dispose de 2 chambres avec rangements intégrés , séjour carrelé ,1 salle d’eau équipée , le rdc est habitable immédiatement .Ensuite , aménagez les combles , rajoutez un garage , ou faites un agrandissement ..Ces maisons sont évolutives , et adaptées à votre budget et évolution de vie .Profitez également de notre expérience de plus de 13 ans sur le secteur , et bénéficiez d’un accompagnement intégral pour votre projet de vie : Financement , étude technique du terrain , gestion administrative .Les frais annexes ( raccordements , viabilisation , puisards, enlèvements des terres excédentaires , chemin d’accès )inclus dans le prix de cette annonce .Rendez vous en agence ou à votre domicile .Contactez XAVIER DOS SANTOS pour une étude personnalisée au (Numéro supprimé)

Gilocourt
TERRAIN ET MAISONMaison de plain pied , située à seulement 8 minutes de Crépy en Valois , sur un terrain de 994m² . Environnement paisible et verdoyant , à deux pas des écoles , commerces (Primeur , boucherie , camion pizzas , machine à pains ..).Cette maison dispose de 3 chambres avec rangements intégrés , séjour carrelé ,1 salle d’eau équipée ,cellier et vaste garage , packs alarme et domotique , baies aluminium , volets roulants centralisés et intégrés à la maçonnerie …Plans 100% personnalisables et modifiables .Accompagnement intégral : Financement , étude technique du terrain , gestion administrative .Frais annexes ( raccordements , viabilisation , puisards, enlèvements des terres excédentaires , chemin d’accès )inclus dans le prix de cette annonce .Rendez vous en agence ou à votre domicile .Contactez XAVIER DOS SANTOS pour une étude personnalisée au (Numéro supprimé)

Gilocourt
TERRAIN ET MAISONMaison de plain pied , située à seulement 8 minutes de Crépy en Valois , sur un terrain de 994m² . Environnement paisible et verdoyant , à deux pas des écoles , commerces (Primeur , boucherie , camion pizzas , machine à pains ..).Cette maison dispose de 3 chambres avec rangements intégrés , séjour carrelé ,1 salle d’eau équipée ,cellier et vaste garage , packs alarme et domotique , baies aluminium , volets roulants centralisés et intégrés à la maçonnerie …Plans 100% personnalisables et modifiables .Accompagnement intégral : Financement , étude technique du terrain , gestion administrative .Frais annexes ( raccordements , viabilisation , puisards, enlèvements des terres excédentaires , chemin d’accès )inclus dans le prix de cette annonce .Rendez vous en agence ou à votre domicile .Contactez XAVIER DOS SANTOS pour une étude personnalisée au (Numéro supprimé)
L’actualité immobilière à Russy-Bémont





