Maison à construire à Senlis (60300)
Images
Description
À Pontarmé, profitez d'un projet de construction complet sur un terrain de 427 m² situé dans un environnement calme, verdoyant et très recherché, idéalement placé entre Chantilly et Senlis.
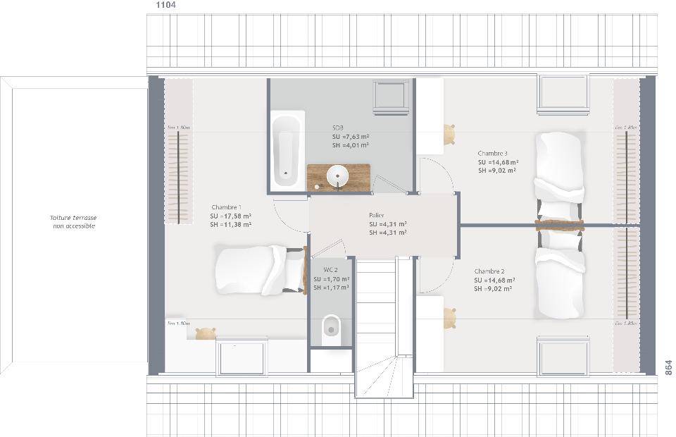
Ce projet vous propose une maison familiale de 115 m², aux volumes généreux et à l'agencement optimisé :
4 chambres, dont 1 suite parentale au rez-de-chaussée (chambre + salle d'eau)
Belle pièce de vie spacieuse et lumineuse
Cuisine ouverte ou semi-ouverte selon vos envies
3 chambres à l'étage + salle de bain
WC séparés
Nombreux rangements
Garage accolé
Construction conforme à la RE2020
Le terrain est entièrement viabilisé et dispose d'une façade de 15 m, offrant une implantation facile et harmonieuse de votre future maison.
💶 Prix du projet : 390 000 € (terrain + maison + frais annexes, hors frais de notaire et décoration)
Une belle opportunité pour une famille souhaitant construire dans un secteur recherché, tout en bénéficiant d'un cadre de vie paisible.
📞 Contactez Xavier Dos Santos dès maintenant pour obtenir le détail complet du projet ou convenir d'un rendez-vous au (Numéro supprimé)
Logement susceptibles de vous intéresser
Nous vous proposons de découvrir aussi cette sélection de logements situés à moins de 10km de Senlis et qui seraient susceptibles de vous intéresser.
Villers-Saint-Frambourg-Ognon
TERRAIN ET MAISONVenez concevoir votre maison.Exemple de projet maison (combles aménagés) de 105 m² loi Carrez.AU RDC : Bel espace de vie traversant de plus de 40 m², 1 chambre magnifique suite parentale de + de 16 m², 1 wc indépendant, à l’étage palier desservant 3 belles chambres (14, 15 et 18 m²), 1 salle de bain avec WC.Tous nos projets sont entièrement réalisés sur-mesure, de nombreuses prestations incluses: baies coulissantes en aluminium, volets roulants intégrés à la maçonnerie (non-apparents) motorisés.Entrée, cuisine, pièce de vie, cellier et pièces d’eau carrelés,Pompe à chaleur (classe énergétique A+), plancher chauffant RDC (et ETAGE), sèche-serviettes, plusieurs choix de menuiseries intérieures, construction en brique. RE 2020.Pour tout renseignement contacter XAVIER de l’agence Maisons France Confort au : (Numéro supprimé)
Villers-Saint-Frambourg-Ognon
TERRAIN ET MAISONVenez concevoir votre maison.Exemple de projet maison de plain-pied de 90 m² loi Carrez + garage intégré:Bel espace de vie traversant de plus de 40 m² + wc indépendant, cellier attenant et garage intégré, 3 belles chambres dont une suite parentale, 1 salle de bain avec WC.Tous nos projets sont entièrement réalisés sur-mesure, de nombreuses prestations incluses: baies coulissantes en aluminium, volets roulants intégrés à la maçonnerie (non-apparents) motorisés.Entrée, cuisine, pièce de vie, cellier et pièces d’eau carrelés,Pompe à chaleur (classe énergétique A+), plancher chauffant RDC (et ETAGE), sèche-serviettes, plusieurs choix de menuiseries intérieures, construction en brique. RE 2020.Pour tout renseignement contacter XAVIER de l’agence Maisons France Confort au : (Numéro supprimé)
Verneuil-en-Halatte
TERRAINÀ Vendre : Terrain Exceptionnel de 640 m² – Idéal pour Votre Future Maison ! ??Situé dans un environnement prisé, ce magnifique terrain de 640 m² offre un cadre naturel rare et recherché. Parfait pour les personnes souhaitant construire une maison confortable et entièrement sur mesure.- Projet de construction avec notre partenaireLa vente inclut la possibilité de construire votre future maison avec notre partenaire, entreprise reconnue pour la qualité de ses réalisations, son accompagnement sur mesure et son expertise dans l’habitat durable.Vous pourrez bénéficier :- D’un accompagnement complet (plans, permis, construction)- D’une maison personnalisée selon vos goûts et besoins- D’un projet clé en main en toute sérénité- Localisation :Environnement paisible, proche des commodités, écoles, commerces, axes routiers, tout en restant à l’écart de la foule.- Viabilités :Le terrain dispose des viabilités TAE déjà raccordéEau / Electricité / Telecom prêt à être raccordés? Une opportunité rare pour concrétiser votre projet de vie !Contactez Gérald AFONSO au 06 / 98 / 03 / 84 /87 dès maintenant pour plus d’informations, une visite ou une étude personnalisée. Les honoraires sont à la charge du vendeur.Les informations sur les risques auxquels ce bien est exposé sont disponibles sur le site Géorisques : www. georisques. gouv. fr.Contactez Gérald AFONSO Entrepreneur Individuel, Agent commercial OptimHome (RSAC N(Numéro supprimé) Greffe de COMPIEGNE) (Numéro supprimé) (réf. 598283 )
Pontarmé
TERRAINÀ Vendre : Terrain Exceptionnel de 290 m² – Idéal pour Votre Future Maison ! ??Situé dans un environnement prisé, ce magnifique terrain de 290 m² offre un cadre naturel rare et recherché. Parfait pour les personnes souhaitant construire une maison confortable et entièrement sur mesure.- Projet de construction avec notre partenaireLa vente inclut la possibilité de construire votre future maison avec notre partenaire, entreprise reconnue pour la qualité de ses réalisations, son accompagnement sur mesure et son expertise dans l’habitat durable.Vous pourrez bénéficier :- D’un accompagnement complet (plans, permis, construction)- D’une maison personnalisée selon vos goûts et besoins- D’un projet clé en main en toute sérénité- Localisation :Environnement paisible, proche des commodités, écoles, commerces, axes routiers, tout en restant à l’écart de la foule.- Viabilités :Le terrain dispose des viabilités TAE déjà raccordéEau / Electricité / Telecom prêt à être raccordés? Une opportunité rare pour concrétiser votre projet de vie !Contactez Gérald AFONSO au 06 / 98 / 03 / 84 /87 dès maintenant pour plus d’informations, une visite ou une étude personnalisée. Les honoraires sont à la charge du vendeur.Les informations sur les risques auxquels ce bien est exposé sont disponibles sur le site Géorisques : www. georisques. gouv. fr.Contactez Gérald AFONSO Entrepreneur Individuel, Agent commercial OptimHome (RSAC N(Numéro supprimé) Greffe de COMPIEGNE) (Numéro supprimé) (réf. 598274 )
Villers-Saint-Frambourg-Ognon
TERRAIN ET MAISONVenez concevoir votre maison.Exemple de projet maison (combles aménagés) de 115 m² loi Carrez.Tous nos projets sont entièrement réalisés sur-mesure, de nombreuses prestations incluses: baies coulissantes en aluminium, volets roulants intégrés à la maçonnerie (non-apparents) motorisés.Entrée, cuisine, pièce de vie, cellier et pièces d’eau carrelés,Pompe à chaleur (classe énergétique A+), plancher chauffant RDC (et ETAGE), sèche-serviettes, plusieurs choix de menuiseries intérieures, construction en brique. RE 2020.Pour tout renseignement contacter XAVIER de l’agence Maisons France Confort : (Numéro supprimé)
Villers-Saint-Frambourg-Ognon
TERRAINTerrain à bâtir à PONTPOINT (60) situé à 15 minutes de VILLERS SAINT FRAMBOURG, d’une superficie de 507 m², façade de 16.46 ml, plat, allée privative, secteur pavillonnaire recherché.Commodité à proximité, groupe scolaire à 5 min, commerce, transports en commun, gare TER direction Paris Nord.Projet clé en main : Conception des plans sur-mesure, gestion administrative (permis, notaire), suivi travaux.XAVIER de l’agence Maisons France Confort se fera un plaisir de vous recevoir pour plus de renseignements. tel : (Numéro supprimé)
Senlis
TERRAINÀ Vendre : Terrain Exceptionnel de 375 m² – Idéal pour Votre Future Maison ! ??Situé dans un environnement prisé, ce magnifique terrain de 375 m² offre un cadre naturel rare et recherché. Parfait pour les personnes souhaitant construire une maison confortable et entièrement sur mesure.- Projet de construction avec notre partenaireLa vente inclut la possibilité de construire votre future maison avec notre partenaire, entreprise reconnue pour la qualité de ses réalisations, son accompagnement sur mesure et son expertise dans l’habitat durable.Vous pourrez bénéficier :- D’un accompagnement complet (plans, permis, construction)- D’une maison personnalisée selon vos goûts et besoins- D’un projet clé en main en toute sérénité- Localisation :Environnement paisible, proche des commodités, écoles, commerces, axes routiers, tout en restant à l’écart de la foule.- Viabilités :Le terrain dispose des viabilités TAE déjà raccordéEau / Electricité / Telecom prêt à être raccordés? Une opportunité rare pour concrétiser votre projet de vie !Contactez Gérald AFONSO au 06 / 98 / 03 / 84 /87 dès maintenant pour plus d’informations, une visite ou une étude personnalisée. Les honoraires sont à la charge du vendeur.Les informations sur les risques auxquels ce bien est exposé sont disponibles sur le site Géorisques : www. georisques. gouv. fr.Contactez Gérald AFONSO Entrepreneur Individuel, Agent commercial OptimHome (RSAC N(Numéro supprimé) Greffe de COMPIEGNE) (Numéro supprimé) (réf. 598275 )
Villers-Saint-Frambourg-Ognon
TERRAIN ET MAISONVenez concevoir votre maison.Exemple de projet maison de 65 m² loi Carrez + garage intégré:Bel espace de vie traversant de plus de 32 m² + wc indépendant, garage intégré, 2 belles chambres, 1 salle de bain.Tous nos projets sont entièrement réalisés sur-mesure, de nombreuses prestations incluses: baies coulissantes en aluminium, volets roulants intégrés à la maçonnerie (non-apparents) motorisés.Entrée, cuisine, pièce de vie, cellier et pièces d’eau carrelés,Pompe à chaleur (classe énergétique A+), plancher chauffant RDC (et ETAGE), sèche-serviettes, plusieurs choix de menuiseries intérieures, construction en brique. RE 2020.Pour tout renseignement contacter XAVIER de l’agence Maisons France Confort au : (Numéro supprimé)
Senlis
TERRAINREMAX vous présente cette belle parcelle de 750 m², idéalement située et joliment arborée.Elle bénéficie d’une façade d’environ 30 mètres, d’un agréable environnement sans vis-à-vis et d’un mur en pierres qui en assure la confidentialité.Un superbe potentiel pour un futur projet immobilier !Pour plus d’informations ou pour échanger sur votre projet, n’hésitez pas à nous contacter. Honoraires à la charge du vendeur.Les informations sur les risques auxquels ce bien est exposé sont disponibles sur le site Géorisques : www.georisques.gouv.fr .
L’actualité immobilière à Senlis
27/11/2023
02/11/2023
30/10/2023
20/10/2023
16/10/2023
16/10/2023