Maison à construire à Saint-Omer-en-Chaussée (60860)
Images
Description
Villers-sur-Bonnières : maison F7 (150 m²) en vente
IDÉALEMENT SITUÉE - MAISON 7 PIÈCES NEUVE
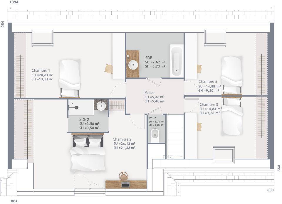
En vente à quelques kilomètres de Beauvais, idéalement située dans Villers-sur-Bonnières (60860), découvrez cette maison de 7 pièces de 150 m² et de 950 m² de terrain. Son intérieur comporte cinq chambres, une cuisine et deux salles de bains.
Cette maison compte 2 niveaux. Elle est neuve.
Cette maison est située dans un quartier convoité. Plusieurs écoles (maternelle, élémentaire, primaire et collège) se trouvent à moins de 10 minutes en voiture. Niveau transports, il y a quatre gares dans les environs. On trouve des tennis, des bibliothèques, un bassin de natation, des commerces, des boulangeries, un supermarché, deux supérettes et deux boucheries-charcuteries à proximité.
Son prix de vente est de 322 000 €.
N'hésitez pas à prendre contact avec Fabrice BONELLO (tél : (Numéro supprimé)) pour toute question sur la maison ou sur les modalités de vente. Maisons France Confort Beauvais vous accompagne à toutes les étapes de votre projet et dans toutes vos démarches.
Logement susceptibles de vous intéresser
Nous vous proposons de découvrir aussi cette sélection de logements situés à moins de 10km de Saint-Omer-en-Chaussée et qui seraient susceptibles de vous intéresser.
Savignies
TERRAIN ET MAISONRéalisez votre projet de construction de maison RE 2020 avec PAVILLONS D'ÎLE-DE-FRANCE (constructeur de maisons de gamme et sur-mesure depuis plus de 50 ans) :- Plan sur-mesure et personnalisé de 2 à 5 chambres- Mode de chauffage au choix- Grands choix d'équipements et de prestations- Matériaux de qualité selon les normes en vigueur- Accompagnement dans le choix et l’acquisition du terrainInformations du terrain : A la recherche du lieu parfait pour concrétiser votre vision ? Ne chercher plus, il est là ! Ce terrain spacieux, situé dans un quartier très rechercher, offre une belle opportunité unique pour réaliser le projet d’une vie. – Emplacement stratégique offrant un accès facile aux commodités locales et aux axes de transport. – Environnement calme et paisible, idéal pour ceux qui recherchent la tranquillité tout en restant connectés à la vie urbaine. – Proximité des écoles, commerces et autres services essentiels, garantissant une vie pratique et confortable. Ne manquez pas cette opportunité unique d’investir dans l’avenir et de réaliser vos aspirations. N’hésitez pas à me contacter dès maintenant pour plus d’informations et pour planifier une visite sur place ! Contactez Jason Guevel au (Numéro supprimé) ou par mail : (Email supprimé) . Pavillon d'Ile de France Constructeur de maison individuelle.Demandez une étude gratuite et personnalisée de votre projet de construction !Contactez Jason GUEVEL au (Numéro supprimé) ou au (Numéro supprimé) (Pavillons d'Île-de-France – Agence de Cauffry).Prix avec assurance dommages-ouvrage comprise, hors VRD, terrain viabilisé, assainissement non compris, frais de notaire non compris, taxes non comprises, frais divers non compris. Terrain sélectionné et vu pour vous sous réserve de disponibilité et au prix indiqué par notre partenaire foncier. Visuels non contractuels.Cette annonce a été créée et diffusée avec le logiciel VITAHOME.
Savignies
TERRAINA la recherche du lieu parfait pour concrétiser votre vision ? Ne chercher plus, il est là ! Ce terrain spacieux, situé dans un quartier très rechercher, offre une belle opportunité unique pour réaliser le projet d’une vie. – Emplacement stratégique offrant un accès facile aux commodités locales et aux axes de transport. – Environnement calme et paisible, idéal pour ceux qui recherchent la tranquillité tout en restant connectés à la vie urbaine. – Proximité des écoles, commerces et autres services essentiels, garantissant une vie pratique et confortable. Ne manquez pas cette opportunité unique d’investir dans l’avenir et de réaliser vos aspirations. N’hésitez pas à me contacter dès maintenant pour plus d’informations et pour planifier une visite sur place ! Contactez Jason Guevel au (Numéro supprimé) ou par mail : (Email supprimé) . Pavillon d'Ile de France Constructeur de maison individuelle.Prix : 39200 €.Sur ce terrain, réalisez votre projet de construction de maison RE 2020 avec PAVILLONS D'ÎLE-DE-FRANCE (constructeur de maisons de gamme et sur-mesure depuis plus de 50 ans) :- Plan sur-mesure et personnalisé de 2 à 5 chambres- Mode de chauffage au choix- Grands choix d'équipements et de prestations- Matériaux de qualité selon les normes en vigueur- Accompagnement dans le choix et l’acquisition du terrainDemandez une étude gratuite et personnalisée de votre projet de construction sur ce terrain !Contactez Jason GUEVEL au (Numéro supprimé) ou au (Numéro supprimé) (Pavillons d'Île-de-France – Agence de Cauffry).Prix hors frais de notaire. Terrain sélectionné et vu pour vous sous réserve de disponibilité et au prix indiqué par notre partenaire foncier. Visuels non contractuels.Cette annonce a été créée et diffusée avec le logiciel VITAHOME.
Savignies
TERRAIN*** Offre commerciale – 2 000 € valable jusqu’au 31 mars 2025 ! *** ( L'offre est déjà appliquer sur l'annonce )Vous êtes à la recherche d'un terrain qui saura concrétiser vos ambitions ? Ne cherchez plus ! Ce terrain généreusement dimensionné, situé dans un quartier prisé et recherché, représente une occasion rare de bâtir le projet de vos rêves. Caractéristiques : Emplacement privilégié, offrant une accessibilité facile aux principales commodités locales ainsi qu'aux principaux axes de transport. Cadre paisible et serein, parfait pour ceux qui souhaitent allier tranquillité et proximité avec l'animation urbaine. Proximité immédiate des écoles, commerces et services essentiels, offrant ainsi confort et praticité au quotidien. C'est l'opportunité parfaite pour investir dans un avenir prometteur. Ne laissez pas passer cette chance unique de donner vie à vos projets ! Pour plus d'informations ou pour organiser une visite, contactez-moi sans tarder.Prix : 60000 €.Sur ce terrain, réalisez votre projet de construction de maison RE 2020 avec PAVILLONS D'ÎLE-DE-FRANCE (constructeur de maisons de gamme et sur-mesure depuis plus de 50 ans) :- Plan sur-mesure et personnalisé de 2 à 5 chambres- Mode de chauffage au choix- Grands choix d'équipements et de prestations- Matériaux de qualité selon les normes en vigueur- Accompagnement dans le choix et l’acquisition du terrainDemandez une étude gratuite et personnalisée de votre projet de construction sur ce terrain !Contactez Jason GUEVEL au (Numéro supprimé) ou au (Numéro supprimé) (Pavillons d'Île-de-France – Agence de Cauffry).Prix hors frais de notaire. Terrain sélectionné et vu pour vous sous réserve de disponibilité et au prix indiqué par notre partenaire foncier. Visuels non contractuels.Cette annonce a été créée et diffusée avec le logiciel VITAHOME.
Troissereux
TERRAIN ET MAISONModèle disposant en RDC d'un bureau/Chambre d'amis avec SDO. 3 belles chambres à l'étage dont 1 parentale (dressing+ SDO) et une SDB commune.Ce modèle n'est pas contractuel. Chaque construction peut être travaillée en Sur Mesure selon vos critères et choix ainsi que les contraintes du secteur du terrain. Je suis à votre écoute pour donner vie à votre PROJETContactez Véronique LEMOUTON au (Numéro supprimé)(Pavillons d'Île-de-France – Agence de Cauffry).Prix avec assurance dommages-ouvrage comprise, hors VRD, terrain viabilisé, assainissement non compris, frais de notaire non compris, taxes non comprises, frais divers non compris. Terrain sélectionné et vu pour vous sous réserve de disponibilité et au prix indiqué par notre partenaire foncier. Visuels non contractuels.Cette annonce a été créée et diffusée avec le logiciel VITAHOME.
Troissereux
TERRAIN ET MAISONRéalisez votre projet de construction de maison RE 2020 avec PAVILLONS D'ÎLE-DE-FRANCE (constructeur de maisons de gamme et sur-mesure depuis plus de 50 ans) :- Plan sur-mesure et personnalisé de 2 à 5 chambres- Mode de chauffage au choix- Grands choix d'équipements et de prestations- Matériaux de qualité selon les normes en vigueur- Accompagnement dans le choix et l’acquisition du terrainInformations du terrain : Magnifique terrain à SAISIR au plus vite, situé dans une jolie rue et Calme garanti . Plat. Clos sur 3 cotés. Ensoleillement plein SUD. Possibilités R+1. Pas de contraintes ABF. Proche toutes commodités et à 10 mn de BeauvaisDemandez une étude gratuite et personnalisée de votre projet de construction !Contactez Véronique LEMOUTON au (Numéro supprimé) ou au (Numéro supprimé) (Pavillons d'Île-de-France – Agence de Cauffry).Prix avec assurance dommages-ouvrage comprise, hors VRD, terrain viabilisé, assainissement non compris, frais de notaire non compris, taxes non comprises, frais divers non compris. Terrain sélectionné et vu pour vous sous réserve de disponibilité et au prix indiqué par notre partenaire foncier. Visuels non contractuels.Cette annonce a été créée et diffusée avec le logiciel VITAHOME.
Troissereux
TERRAINMagnifique terrain à SAISIR au plus vite, situé dans une jolie rue et Calme garanti . Plat. Clos sur 3 cotés. Ensoleillement plein SUD. Possibilités R+1. Pas de contraintes ABF. Proche toutes commodités et à 10 mn de BeauvaisPrix : 79900 €.Sur ce terrain, réalisez votre projet de construction de maison RE 2020 avec PAVILLONS D'ÎLE-DE-FRANCE (constructeur de maisons de gamme et sur-mesure depuis plus de 50 ans) :- Plan sur-mesure et personnalisé de 2 à 5 chambres- Mode de chauffage au choix- Grands choix d'équipements et de prestations- Matériaux de qualité selon les normes en vigueur- Accompagnement dans le choix et l’acquisition du terrainDemandez une étude gratuite et personnalisée de votre projet de construction sur ce terrain !Contactez Véronique LEMOUTON au (Numéro supprimé) ou au (Numéro supprimé) (Pavillons d'Île-de-France – Agence de Cauffry).Prix hors frais de notaire. Terrain sélectionné et vu pour vous sous réserve de disponibilité et au prix indiqué par notre partenaire foncier. Visuels non contractuels.Cette annonce a été créée et diffusée avec le logiciel VITAHOME.
Troissereux
TERRAIN ET MAISONRéalisez votre projet de construction de maison RE 2020 avec PAVILLONS D'ÎLE-DE-FRANCE (constructeur de maisons de gamme et sur-mesure depuis plus de 50 ans) :- Plan sur-mesure et personnalisé de 2 à 5 chambres- Mode de chauffage au choix- Grands choix d'équipements et de prestations- Matériaux de qualité selon les normes en vigueur- Accompagnement dans le choix et l’acquisition du terrainInformations du terrain : Magnifique terrain à SAISIR au plus vite, situé dans une jolie rue et Calme garanti . Plat. Clos sur 3 cotés. Ensoleillement plein SUD. Possibilités R+1. Pas de contraintes ABF. Proche toutes commodités et à 10 mn de BeauvaisDemandez une étude gratuite et personnalisée de votre projet de construction !Contactez Véronique LEMOUTON au (Numéro supprimé) ou au (Numéro supprimé) (Pavillons d'Île-de-France – Agence de Cauffry).Prix avec assurance dommages-ouvrage comprise, hors VRD, terrain viabilisé, assainissement non compris, frais de notaire non compris, taxes non comprises, frais divers non compris. Terrain sélectionné et vu pour vous sous réserve de disponibilité et au prix indiqué par notre partenaire foncier. Visuels non contractuels.Cette annonce a été créée et diffusée avec le logiciel VITAHOME.
Savignies
TERRAIN ET MAISONRéalisez votre projet de construction de maison RE 2020 avec PAVILLONS D'ÎLE-DE-FRANCE (constructeur de maisons de gamme et sur-mesure depuis plus de 50 ans) :- Plan sur-mesure et personnalisé de 2 à 5 chambres- Mode de chauffage au choix- Grands choix d'équipements et de prestations- Matériaux de qualité selon les normes en vigueur- Accompagnement dans le choix et l’acquisition du terrainInformations du terrain : A la recherche du lieu parfait pour concrétiser votre vision ? Ne chercher plus, il est là ! Ce terrain spacieux, situé dans un quartier très rechercher, offre une belle opportunité unique pour réaliser le projet d’une vie. – Emplacement stratégique offrant un accès facile aux commodités locales et aux axes de transport. – Environnement calme et paisible, idéal pour ceux qui recherchent la tranquillité tout en restant connectés à la vie urbaine. – Proximité des écoles, commerces et autres services essentiels, garantissant une vie pratique et confortable. Ne manquez pas cette opportunité unique d’investir dans l’avenir et de réaliser vos aspirations. N’hésitez pas à me contacter dès maintenant pour plus d’informations et pour planifier une visite sur place ! Contactez Jason Guevel au (Numéro supprimé) ou par mail : (Email supprimé) . Pavillon d'Ile de France Constructeur de maison individuelle.Demandez une étude gratuite et personnalisée de votre projet de construction !Contactez Jason GUEVEL au (Numéro supprimé) ou au (Numéro supprimé) (Pavillons d'Île-de-France – Agence de Cauffry).Prix avec assurance dommages-ouvrage comprise, hors VRD, terrain viabilisé, assainissement non compris, frais de notaire non compris, taxes non comprises, frais divers non compris. Terrain sélectionné et vu pour vous sous réserve de disponibilité et au prix indiqué par notre partenaire foncier. Visuels non contractuels.Cette annonce a été créée et diffusée avec le logiciel VITAHOME.
Savignies
TERRAIN ET MAISONRéalisez votre projet de construction de maison RE 2020 avec PAVILLONS D'ÎLE-DE-FRANCE (constructeur de maisons de gamme et sur-mesure depuis plus de 50 ans) :- Plan sur-mesure et personnalisé de 2 à 5 chambres- Mode de chauffage au choix- Grands choix d'équipements et de prestations- Matériaux de qualité selon les normes en vigueur- Accompagnement dans le choix et l’acquisition du terrainInformations du terrain : A la recherche du lieu parfait pour concrétiser votre vision ? Ne chercher plus, il est là ! Ce terrain spacieux, situé dans un quartier très rechercher, offre une belle opportunité unique pour réaliser le projet d’une vie. – Emplacement stratégique offrant un accès facile aux commodités locales et aux axes de transport. – Environnement calme et paisible, idéal pour ceux qui recherchent la tranquillité tout en restant connectés à la vie urbaine. – Proximité des écoles, commerces et autres services essentiels, garantissant une vie pratique et confortable. Ne manquez pas cette opportunité unique d’investir dans l’avenir et de réaliser vos aspirations. N’hésitez pas à me contacter dès maintenant pour plus d’informations et pour planifier une visite sur place ! Contactez Jason Guevel au (Numéro supprimé) ou par mail : (Email supprimé) . Pavillon d'Ile de France Constructeur de maison individuelle.Demandez une étude gratuite et personnalisée de votre projet de construction !Contactez Jason GUEVEL au (Numéro supprimé) ou au (Numéro supprimé) (Pavillons d'Île-de-France – Agence de Cauffry).Prix avec assurance dommages-ouvrage comprise, hors VRD, terrain viabilisé, assainissement non compris, frais de notaire non compris, taxes non comprises, frais divers non compris. Terrain sélectionné et vu pour vous sous réserve de disponibilité et au prix indiqué par notre partenaire foncier. Visuels non contractuels.Cette annonce a été créée et diffusée avec le logiciel VITAHOME.
L’actualité immobilière à Saint-Omer-en-Chaussée
27/11/2023
02/11/2023
30/10/2023
20/10/2023
16/10/2023
16/10/2023