Images
Description
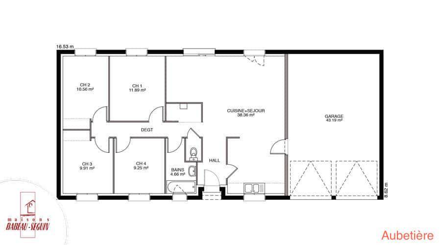
Sur ce terrain, nous vous proposons cette maison neuve Aubetière. Avec une surface de 96 m² et équipée de 4 chambres, cette maison traditionnelle est appréciée pour son excellent rapport qualité/prix.
L'Aubetière, fleuron de la gamme traditionnelle Babeau-Seguin, est une maison moderne qui se décline en plusieurs versions pour répondre à vos besoins spécifiques. Vous pouvez choisir entre une toiture à 2 pans ou à 4 pans, et personnaliser votre maison avec des options comme un garage ou un sous-sol.
Cette maison de plain-pied est conçue pour être basse consommation et conforme à la RE2020, garantissant ainsi des économies d'énergie et un confort optimal tout au long de l'année.
Babeau-Seguin, constructeur reconnu pour offrir le meilleur rapport qualité/prix du marché, vous accompagne dans la réalisation de votre projet de construction sur mesure. Donnez vie à votre projet en optant pour l'Aubetière et profitez d'une maison neuve, performante et personnalisable selon vos envies.
Logement susceptibles de vous intéresser
Nous vous proposons de découvrir aussi cette sélection de logements situés à moins de 10km de Saint-Thibault et qui seraient susceptibles de vous intéresser.
Aumale
TERRAIN ET MAISONAumale : maison de 5 pièces (104 m²) à vendreIDÉALEMENT SITUÉE – MAISON 5 PIÈCES NEUVENous vous proposons cette maison de 5 pièces de plain-pied de 104 m² en vente, idéalement située dans Aumale (76390).Elle offre quatre chambres, une cuisine et deux salles de bains. La maison est neuve.Le terrain de la propriété s’étend sur 682 m².Cette maison est située dans un quartier attractif. Il y a quatre établissements scolaires à moins de 10 minutes à pied et une structure d’accueil pour les enfants en bas âge. Côté transports, on trouve la gare Aumale dans les alentours. Il y a un accès à l’autoroute A29 à 4 km. Il y a une bibliothèque, un bassin de natation, un tennis, des commerces, trois boulangeries, un supermarché, quatre boucheries-charcuteries et quatre épiceries à quelques minutes. Enfin, le marché Place des Marchés a lieu chaque samedi matin.Elle est proposée à l’achat pour 213 200 €.N’hésitez pas à prendre contact avec Slimane ELHLOU (tél : (Numéro supprimé)) pour plus d’informations sur la maison, sur les modalités de vente ou sur les démarches à suivre. Faites de vos projets immobiliers une réalité avec Les Maisons Extraco Dieppe.
Aumale
TERRAIN ET MAISONMaison T5 (92 m²) à vendre à AumaleIDÉALEMENT SITUÉE – MAISON 5 PIÈCES NEUVEÀ vendre : ayez le coup de coeur pour cette maison de 5 pièces de plain-pied de 92 m², idéalement située dans Aumale (76390). Son intérieur propose quatre chambres, une cuisine et une salle de bains.Le terrain de la propriété s’étend sur 682 m².Cette maison est neuve.La maison est située dans un secteur attractif. Quatre établissements scolaires se trouvent à moins de 10 minutes à pied, tout comme une crèche. Côté transports, il y a la gare Aumale dans les alentours. Il y a un accès à l’autoroute A29 à 4 km. On trouve une bibliothèque, un bassin de natation, un tennis, des commerces, trois boulangeries, un supermarché, quatre épiceries et un bureau de poste à proximité. Ne manquez pas le marché Place des Marchés chaque samedi matin.Son prix de vente est de 175 250 €.N’hésitez pas à prendre contact avec Slimane ELHLOU (tél : (Numéro supprimé)) pour plus d’informations sur la maison.
Aumale
TERRAINVENTE : terrain de 682 m² à AumaleIDÉALEMENT SITUÉIdéalement situé dans Aumale (76390), grand terrain. Il donne sur un espace vert. Dans un secteur prisé, le terrain est proche des écoles et des commerces. Il y a quatre établissements scolaires à moins de 10 minutes à pied et une structure d’accueil pour la petite enfance. Côté transports, on trouve la gare Aumale à quelques pas du bien. L’autoroute A29 est accessible à 4 km. Il y a une bibliothèque, un bassin de natation, un tennis, des commerces, trois boulangeries, un supermarché, une poissonnerie et quatre boucheries-charcuteries à proximité. Le marché Place des Marchés a lieu chaque samedi matin.Ce terrain est à vendre pour la somme de 42 400 €. Contactez notre agence (ELHLOU Slimane : (Numéro supprimé)) pour toute information sur le terrain ou sur les démarches à suivre. Les Maisons Extraco Dieppe est là pour vous accompagner à toutes les étapes de l’achat.
Aumale
TERRAIN ET MAISONMaison de 4 pièces (71 m²) en vente à AumaleIDÉALEMENT SITUÉE – MAISON 4 PIÈCES NEUVEEn vente : nous sommes ravis de vous présenter cette maison de 4 pièces de plain-pied de 71 m² idéalement située dans Aumale (76390). Conçue de plain-pied, elle compte deux chambres, une cuisine et une salle de bains.Le terrain du bien est de 682 m².Cette maison est neuve.La maison est située dans un quartier prisé. On trouve quatre établissements scolaires à moins de 10 minutes à pied et une structure d’accueil pour les enfants en bas âge. Niveau transports, il y a la gare Aumale dans les alentours. L’autoroute A29 est accessible à 4 km. On trouve une bibliothèque, un bassin de natation, un tennis, des commerces, trois boulangeries, un supermarché, une poissonnerie et quatre boucheries-charcuteries à quelques minutes à peine. Le marché Place des Marchés a lieu chaque samedi matin.Son prix de vente est de 161 280 €.N’hésitez pas à prendre contact avec notre agence (ELHLOU Slimane : (Numéro supprimé)) pour obtenir de plus amples renseignements sur la propriété, sur les démarches à suivre ou sur les modalités de vente.
Romescamps
TERRAINFrancis Gense Immobiliervous propose en E X C L U S I V I T ETerrain à Bâtir de 1203 m²30m de façade sur 40m de profondeur.C.U. positif.Merci de me téléphoner pour plus de précisions et visite.Honoraires d’agence à la charge du vendeur.Consultez nos tarifs sur le site de Immobilier Email.Annonce publiée le 14/12/2025 par Francis Gense (Numéro supprimé), RSAC 528623630 – agent commercial indépendant de IMMOBILIER EMAIL SAS – EI, Tribunal de Commerce de Amiens
Romescamps
TERRAINFrancis Gense Immobiliervous propose en E X C L U S I V I T ETerrain à Bâtir de 1000 m²Façade de 27 m et Profondeur de 37 m.C.U. positif.Merci de me téléphoner pour plus de renseignements et visite.Honoraires d’agence à la charge du vendeur.Consultez nos tarifs sur le site de Immobilier Email.Annonce publiée le 14/12/2025 par Francis Gense (Numéro supprimé), RSAC 528623630 – agent commercial indépendant de IMMOBILIER EMAIL SAS – EI, Tribunal de Commerce de Amiens
Hescamps
TERRAIN ET MAISONSur ce terrain, nous vous proposons cette maison neuve, modèle Prunière, l’un des modèles les plus vendus par Babeau-Seguin, constructeur offrant le meilleur rapport qualité/prix du marché. Figurant dans le top 5 des maisons individuelles Babeau-Seguin, cette maison plain-pied Prunière séduit par son renfoncement qui casse la monotonie de la façade avant et offre un abri de seuil.Avec une surface de 85 m², cette maison traditionnelle comprend 4 pièces, dont 3 chambres, et un garage intégré. Elle se décline en versions à 2 pans ou 4 pans, selon vos préférences. Parfaitement équipée, la Prunière est en effet la maison à petit prix par excellence.En plus de son design attrayant, cette maison neuve est basse consommation et conforme à la RE2020, garantissant ainsi des performances énergétiques optimales et un confort de vie inégalé. Ne manquez pas cette opportunité de construire la maison de vos rêves avec Babeau-Seguin, le constructeur qui allie qualité, prix et satisfaction client.
Hescamps
TERRAINNous vous proposons un terrain non viabilisé de 1226 m², idéalement situé à Hescamps, dans le département de la Somme. Ce terrain offre une vue dégagée et un cadre champêtre apaisant, sans vis-à-vis. Profitez d’une situation calme et privilégiée pour envisager la construction de votre future maison, où vous pourrez savourer la tranquillité de la nature tout en restant à proximité de toutes les commodités nécessaires à votre quotidien. Ne manquez pas cette occasion unique de réaliser votre projet immobilier dans un cadre idyllique. Ce terrain est une véritable opportunité à saisir pour les passionnés de nature ou pour ceux qui recherchent un havre de paix. À noter qu’en tant que constructeur, nous ne sommes pas mandatés pour réaliser la vente de ce terrain.
Formerie
TERRAINÀ la recherche d’un terrain idéal pour réaliser le projet de construction de votre maison de rêve ? Nous vous proposons ce terrain non-viabilisé d’une superficie de 1080m², niché dans un cadre champêtre au cœur de la charmante commune de Formerie, dans le département de l’Oise, Hauts-de-France. Profitez d’une vue dégagée, sans vis-à-vis, dans un environnement calme et apaisant. Ce terrain unique allie tranquillité et potentiel pour bâtir votre futur foyer. Ne laissez pas passer cette opportunité unique d’acquérir un terrain avec tant de potentiel. À noter qu’en tant que constructeur, nous ne sommes pas mandatés pour réaliser la vente de ce terrain.
L’actualité immobilière à Saint-Thibault
27/11/2023
02/11/2023
30/10/2023
20/10/2023
16/10/2023
16/10/2023