Images
Description
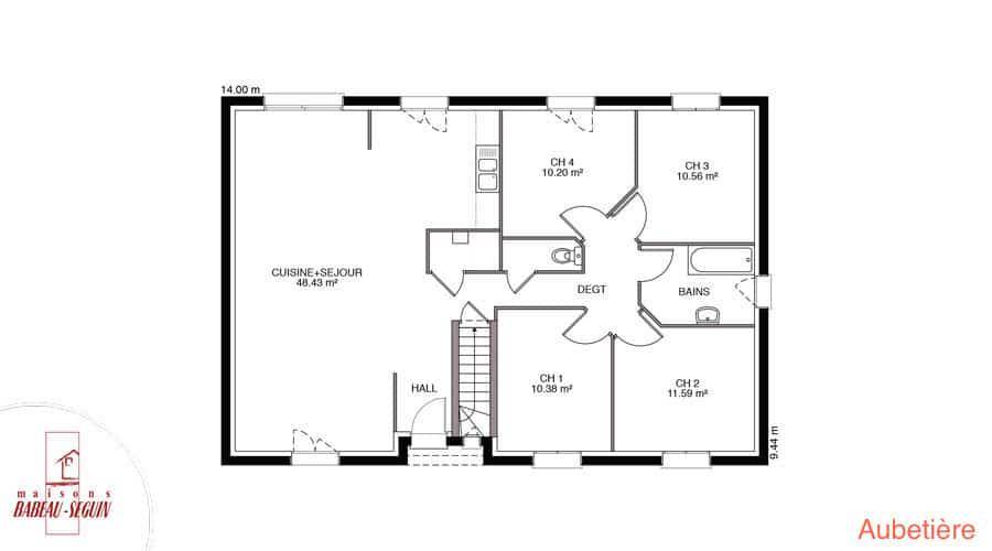
Sur ce terrain, nous vous proposons cette maison neuve Aubetière, un modèle traditionnel signé Babeau-Seguin, constructeur reconnu pour offrir le meilleur rapport qualité/prix du marché. Avec une surface de 111 m², cette maison de plain-pied se distingue par son design moderne et ses nombreuses options de personnalisation.
L'Aubetière dispose de 4 chambres spacieuses et de 4 pièces, offrant un espace de vie confortable et fonctionnel pour toute la famille. Vous avez le choix entre une toiture à 2 pans ou à 4 pans, ainsi que la possibilité d'ajouter un garage ou un sous-sol selon vos besoins et préférences.
Cette maison neuve est également basse consommation et conforme à la réglementation environnementale RE2020, garantissant des performances énergétiques optimales et un impact réduit sur l'environnement.
L'Aubetière est appréciée pour son excellent rapport qualité/prix et sa capacité à s'adapter à vos envies grâce à ses nombreuses déclinaisons et plans disponibles. Donnez vie à votre projet de construction en optant pour cette maison individuelle sur mesure, qui saura répondre à toutes vos attentes.
Ne manquez pas cette opportunité unique de construire la maison de vos rêves avec Babeau-Seguin, le constructeur qui allie qualité, performance et économie.
Logement susceptibles de vous intéresser
Nous vous proposons de découvrir aussi cette sélection de logements situés à moins de 10km de Thiescourt et qui seraient susceptibles de vous intéresser.

Thiescourt
TERRAINDécouvrez ce terrain non viabilisé d’une surface généreuse de 699 m², idéalement situé à Thiescourt, dans le département de l’Oise (60310). Profitez de ce cadre paisible pour réaliser votre projet de construction de maison sur mesure. Ce bien vous offre l’opportunité de concevoir un espace de vie unique, dans un environnement rassurant, tout en bénéficiant des caractéristiques distinctives de la région Hauts-de-France. N’attendez plus pour saisir le potentiel de ce terrain et bâtir la maison de vos rêves dans ce cadre enchanteur. Ce terrain représente une opportunité d’achat unique pour les intéressés. À noter qu’en tant que constructeur, nous ne sommes pas mandatés pour réaliser la vente de ce terrain.

Thiescourt
TERRAIN ET MAISONSur ce terrain, nous vous proposons cette maison neuve Aubetière, un modèle traditionnel signé Babeau-Seguin, constructeur reconnu pour offrir le meilleur rapport qualité/prix du marché. Avec une surface de 111 m², cette maison de plain-pied se distingue par son design moderne et ses nombreuses options de personnalisation.L’Aubetière dispose de 4 chambres spacieuses et de 4 pièces, offrant un espace de vie confortable et fonctionnel pour toute la famille. Vous avez le choix entre une toiture à 2 pans ou à 4 pans, ainsi que la possibilité d’ajouter un garage ou un sous-sol selon vos besoins et préférences.Cette maison neuve est également basse consommation et conforme à la réglementation environnementale RE2020, garantissant des performances énergétiques optimales et un impact réduit sur l’environnement.L’Aubetière est appréciée pour son excellent rapport qualité/prix et sa capacité à s’adapter à vos envies grâce à ses nombreuses déclinaisons et plans disponibles. Donnez vie à votre projet de construction en optant pour cette maison individuelle sur mesure, qui saura répondre à toutes vos attentes.Ne manquez pas cette opportunité unique de construire la maison de vos rêves avec Babeau-Seguin, le constructeur qui allie qualité, performance et économie.

Évricourt
TERRAINDécouvrez cette parcelle de terrain non-viabilisé de 893 m², idéalement située à Évricourt, dans le département de l’Oise, en région Hauts-de-France. Ce terrain offre une superbe vue dégagée sur un cadre champêtre, garantissant un environnement calme et apaisant pour votre futur projet de construction de maison. Grâce à son prix attractif, c’est une opportunité parfaite pour les individus ou les familles souhaitant construire leur résidence dans un cadre serein. Ce terrain présente un potentiel indéniable pour ceux qui souhaitent investir dans une propriété unique. N’attendez plus pour saisir cette occasion ! À noter qu’en tant que constructeur, nous ne sommes pas mandatés pour réaliser la vente de ce terrain.

Évricourt
TERRAIN ET MAISONSur ce terrain, nous vous proposons cette maison neuve, la Ménilière, un modèle plain-pied moderne qui saura répondre à toutes vos attentes. Avec une surface de 73 m², cette maison dispose de 3 pièces, dont 2 chambres, et intègre de base un garage ainsi qu’une longue galerie sur la face avant.Véritable « »tout-en-un » » de la maison individuelle, la Ménilière est idéale pour votre projet de construction sur-mesure. Elle est disponible avec un toit à 2 pans ou 4 pans, selon vos préférences esthétiques. Le garage intégré et la galerie avant ajoutent une touche de praticité et de confort à votre quotidien.Parmi les options les plus demandées par nos clients, vous pouvez opter pour des menuiseries en aluminium et un sous-sol, afin de personnaliser encore davantage votre future maison.Cette maison neuve est basse consommation et conforme à la RE2020, garantissant ainsi des performances énergétiques optimales et un respect des normes environnementales actuelles.Le constructeur Babeau-Seguin, reconnu pour offrir le meilleur rapport qualité/prix du marché, vous accompagne dans la réalisation de votre projet de vie. Avec un prix serré et une personnalisation facile, il n’est pas étonnant que la Ménilière soit dans le top 5 des ventes de Babeau-Seguin.Ne manquez pas cette opportunité unique de devenir propriétaire d’une maison moderne, fonctionnelle et économe en énergie. Contactez-nous dès maintenant pour plus d’informations et pour visiter ce modèle sur notre terrain.

Cuy
TERRAINCe terrain non-viabilisé d’une superficie de 605 m², situé à Cuy dans l’Oise (60310), vous offre une opportunité rare pour réaliser le projet de construction de vos rêves. Ce cadre champêtre et au calme, sans vis-à-vis, est idéal pour bâtir une maison qui saura combiner modernité et respect de l’environnement. Vous profiterez ainsi d’une qualité de vie exceptionnelle entourée par la nature, tout en ayant un accès facile à toutes les commodités nécessaires. Ne laissez pas passer cette opportunité unique d’acquérir un terrain avec un potentiel incroyable. À noter qu’en tant que constructeur, nous ne sommes pas mandatés pour réaliser la vente de ce terrain.

Cuy
TERRAIN ET MAISONSur ce terrain, nous vous proposons cette maison neuve, modèle Prunière, l’un des modèles les plus vendus par Babeau-Seguin, constructeur offrant le meilleur rapport qualité/prix du marché. Figurant dans le top 5 des maisons individuelles Babeau-Seguin, cette maison plain-pied Prunière séduit par son renfoncement qui casse la monotonie de la façade avant et offre un abri de seuil.Avec une surface de 85 m², cette maison traditionnelle comprend 4 pièces, dont 3 chambres, et un garage intégré. Elle se décline en versions à 2 pans ou 4 pans, selon vos préférences. Parfaitement équipée, la Prunière est en effet la maison à petit prix par excellence.En plus de son design attrayant, cette maison neuve est basse consommation et conforme à la RE2020, garantissant ainsi des performances énergétiques optimales et un confort de vie inégalé. Ne manquez pas cette opportunité de construire la maison de vos rêves avec Babeau-Seguin, le constructeur qui allie qualité, prix et satisfaction client.

Beaurains-lès-Noyon
TERRAINNous sommes ravis de vous présenter ce terrain exceptionnel à vendre, situé dans la charmante commune de Beaurains-lès-Noyon, dans l’Oise. S’étendant sur une superficie de 517 m², ce terrain non viabilisé offre de nombreuses possibilités pour un projet de construction de maison. Avec sa vue dégagée et son emplacement au calme, ce bien se distingue par son potentiel à accueillir la maison de vos rêves. Ce terrain est une opportunité rare à saisir pour ceux qui souhaitent construire dans un environnement privilégié. N’attendez plus pour envisager votre futur projet immobilier dans cette belle région. À noter qu’en tant que constructeur, nous ne sommes pas mandatés pour réaliser la vente de ce terrain.

Beaurains-lès-Noyon
TERRAIN ET MAISONSur ce terrain, nous vous proposons cette maison neuve : la Focus EVO City, conçue par Babeau-Seguin, constructeur offrant le meilleur rapport qualité/prix du marché. Découvrez l’innovant concept de la Focus EVO City, une maison qui combine les atouts d’une maison neuve clé en main avec la flexibilité et l’avantage tarifaire du prêt à finir ! Cette maison de 100 m², conçue pour évoluer, vous offre à sa livraison, une vaste pièce de vie lumineuse, 4 chambres et une salle de bain, avec des performances énergétiques exceptionnelles et un coût de construction abordable. Surtout, cette maison est conçue dès le départ pour évoluer.Une maison prête à s’adapterQue votre famille s’agrandisse ou que vous ayez besoin d’une chambre d’amis, la Focus EVO City se distingue en tant que première maison Babeau-Seguin prête à évoluer. Elle intègre une trémie pour accueillir un futur escalier, ainsi que des chevêtres de toit prévus pour les fenêtres de vos futurs combles aménagés. Notre plan détaillé vous guide dans l’aménagement de vos combles, faisant passer votre maison de 100 m² à une surface encore plus généreuse avec des espaces supplémentaires, transformant la Focus EVO City en véritable maison familiale !Une maison qui évoluera avec vos besoinsQue vous soyez un jeune couple désirant savourer la vie à deux avant l’arrivée d’un heureux événement, ou bien un célibataire passionné de bricolage souhaitant sa salle de projection privée, la Focus EVO City est la maison qui saura évoluer au rythme de votre vie et de vos aspirations !Idéale pour ce terrain et pour les petits budgets, cette Focus EVO City est aussi bien équipée que l’ensemble de nos modèles. Cette dernière est une maison neuve écologique répondant aux standards stricts de la RE2020. Économie à la construction, économie à la consommation !Les caractéristiques principales de cette maison incluent des combles aménageables, un excellent rapport qualité/prix, une conception évolutive et un cellier. Les options les

Marest-sur-Matz
TERRAINMarest-sur-Matz : terrain de 449 m² à vendreIDÉALEMENT SITUÉ – VUE PANORAMIQUEÀ Marest-sur-Matz (60490) en vente à quelques kilomètres de Compiègne, donnez vie à votre résidence principale ou secondaire sur ce terrain de 449 m². Il profite d’une vue panoramique et est exposé au sud-ouest. Il est situé dans un quartier convoité. Une école élémentaire y est implantée. Niveau transports, il y a cinq gares à moins de 10 minutes en voiture. L’autoroute A1 et la nationale N31 sont accessibles à moins de 8 km. On trouve un tennis et une bibliothèque à quelques minutes à peine.Son prix de vente est de 35 000 €. Contactez Xavier DOS SANTOS ((Numéro supprimé)) pour plus de renseignements sur ce terrain. Maisons France Confort Compiègne vous accompagne à toutes les étapes de l’achat et dans toutes vos démarches.
L’actualité immobilière à Thiescourt





