Maison à construire à Thourotte (60150)
Images
Description
Maison T7 (150 m²) en vente à Thourotte
IDÉALEMENT SITUÉE - MAISON 7 PIÈCES NEUVE
À quelques kilomètres de Compiègne, votre agence Maisons France Confort Compiègne est heureuse de vous proposer cette maison de 7 pièces de 150 m² idéalement située dans Thourotte (60150).
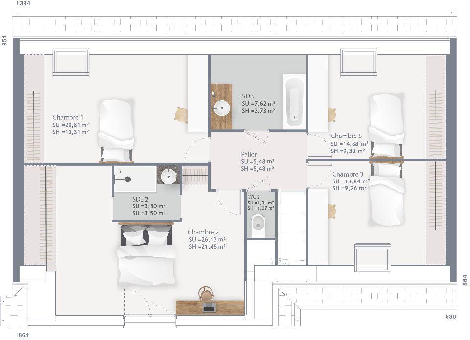
C'est une maison de 2 niveaux. Elle inclut cinq chambres, une cuisine et deux salles de bains. Cette maison est neuve.
Le terrain du bien s'étend sur 866 m².
Cette maison se trouve dans un quartier convoité. Cinq établissements scolaires sont implantés à moins de 10 minutes à pied. Niveau transports en commun, il y a la gare Thourotte à quelques pas du bien. On trouve un accès à la nationale N31 à 6 km. On trouve une bibliothèque, un tennis, un bassin de natation, deux boulangeries, des commerces, deux supermarchés, quatre boucheries-charcuteries et un bureau de poste à quelques minutes. Enfin, le marché Place de la République anime les environs chaque jeudi matin.
Son prix de vente est de 365 000 €.
Contactez Xavier DOS SANTOS ((Numéro supprimé)) pour tout renseignement sur la maison.
Logement susceptibles de vous intéresser
Nous vous proposons de découvrir aussi cette sélection de logements situés à moins de 10km de Thourotte et qui seraient susceptibles de vous intéresser.

Compiègne
TERRAINNOUVEAU! Magnifique terrain plat de 550 m2 situé à ARSY à seulement 10 minutes de COMPIEGNE et 35 minutes de ROISSYCHDG . A proximité vous trouverez : école maternelle, primaire , collège, lycée, crèche, médecin, pharmacie, supermarché et autres commerces de proximités. GARE à 15 minutes. Parcelle possédant une façade de 15 ml, viabilisé en eau, télécoms, électricité et fibre avec le tout à l’égout sur place. Laissez parler votre imagination pour une construction 100 % sur mesure. Plusieurs opérations disponibles. A VOIR ABSOLUMENT! Pour plus de renseignements contactez MR BONELLO, MAISONS FRANCE CONFORT au (Numéro supprimé)

Compiègne
TERRAIN ET MAISONVENTE : maison F7 (124 m²) à ArsyEMPLACEMENT PRIVILÉGIÉ – MAISON 7 PIÈCES NEUVEEn vente : à deux pas de Compiègne, nous sommes heureux de vous proposer cette maison de 7 pièces de 124 m² et de 550 m² de terrain bénéficiant d’un emplacement privilégié dans Arsy (60190). Son intérieur dispose de cinq chambres, d’une cuisine et de trois salles de bains.C’est une maison de 2 niveaux. Elle est neuve.La maison se situe dans un quartier prisé. L’École Primaire Séraphine Louis se trouve à moins de 10 minutes à pied. Niveau transports en commun, il y a six gares à moins de 10 minutes en voiture. L’autoroute A1 et la nationale N31 sont accessibles à moins de 2 km. On trouve une bibliothèque dans les environs.Elle est à vendre pour la somme de 284 000 €.Contactez Fabrice BONELLO (tél : (Numéro supprimé)) pour obtenir de plus amples informations sur la maison ou sur les démarches à suivre.

Compiègne
TERRAIN ET MAISONMaison T7 (120 m²) en vente à ArsyEMPLACEMENT PRIVILÉGIÉ – MAISON 7 PIÈCES NEUVEEn vente : située à deux pas de Compiègne, notre agence Maisons France Confort Beauvais est heureuse de vous présenter, bénéficiant d’un emplacement d’exception dans Arsy (60190), cette maison de 7 pièces de 120 m² et de 550 m² de terrain. Elle compte quatre chambres, une cuisine et deux salles de bains.Il s’agit d’une maison de 2 niveaux. Elle est neuve.Cette maison se situe dans un secteur convoité. L’École Primaire Séraphine Louis est implantée à moins de 10 minutes à pied. Niveau transports en commun, il y a six gares à moins de 10 minutes en voiture. L’autoroute A1 et la nationale N31 sont accessibles à moins de 2 km. On trouve une bibliothèque à quelques minutes de la maison.Son prix de vente est de 371 000 €.Contactez notre agence (Fabrice BONELLO : (Numéro supprimé)) pour toute information sur la maison.

Compiègne
TERRAIN ET MAISONArsy : maison T4 (92 m²) en venteEMPLACEMENT PRIVILÉGIÉ – MAISON 4 PIÈCES NEUVEÀ vendre : localisée à quelques kilomètres de Compiègne, bénéficiant d’un emplacement d’exception dans Arsy (60190), votre agence Maisons France Confort Beauvais est heureuse de vous proposer cette maison de 4 pièces de plain-pied de 92 m².Son intérieur comporte trois chambres, une cuisine et une salle de bains. La maison est neuve.Le terrain de la propriété est de 550 m².La maison est située dans un secteur prisé. L’École Primaire Séraphine Louis est implantée à moins de 10 minutes à pied. Niveau transports en commun, on trouve six gares à moins de 10 minutes en voiture. L’autoroute A1 et la nationale N31 sont accessibles à moins de 2 km. Il y a une bibliothèque à proximité du logement.Elle est proposée à l’achat pour 274 000 €.N’hésitez pas à prendre contact avec notre constructeur (Fabrice BONELLO : (Numéro supprimé)) pour toute question sur la maison et sur les démarches à suivre.

Compiègne
TERRAIN ET MAISONVENTE : maison T4 (50 m²) à ArsyEMPLACEMENT PRIVILÉGIÉ – MAISON 4 PIÈCES NEUVEEn vente : à 11 km de Compiègne, bénéficiant d’un emplacement d’exception dans Arsy (60190), venez découvrir cette maison de 4 pièces de plain-pied de 50 m² et de 550 m² de terrain.Son intérieur compte deux chambres, une cuisine et une salle de bains. La maison est neuve.Cette maison se trouve dans un secteur prisé. L’École Primaire Séraphine Louis est implantée à moins de 10 minutes à pied. Niveau transports en commun, on trouve six gares à moins de 10 minutes en voiture. L’autoroute A1 et la nationale N31 sont accessibles à moins de 2 km. Il y a une bibliothèque à quelques minutes de la maison.Elle est proposée à l’achat pour 197 000 €.Prenez contact avec notre agence (Fabrice BONELLO : (Numéro supprimé)) pour tout renseignement sur le bien. Maisons France Confort Beauvais vous accompagne dans tous vos projets immobiliers et dans toutes vos démarches.

Compiègne
TERRAIN ET MAISONVENTE d’une maison de 4 pièces (60 m²) à ArsyEMPLACEMENT PRIVILÉGIÉ – MAISON 4 PIÈCES NEUVEÀ 11 km de Compiègne, votre agence Maisons France Confort Beauvais est heureuse de vous présenter en vente, bénéficiant d’un emplacement d’exception dans Arsy (60190), cette maison de 4 pièces de plain-pied de 60 m² et de 550 m² de terrain.Son intérieur dispose de deux chambres, d’une cuisine et d’une salle de bains. Cette maison est neuve.Cette propriété est située dans un secteur attractif. L’École Primaire Séraphine Louis se trouve à moins de 10 minutes à pied. Côté transports en commun, il y a six gares à moins de 10 minutes en voiture. L’autoroute A1 et la nationale N31 sont accessibles à moins de 2 km. On trouve une bibliothèque à proximité de la maison.Son prix de vente est de 217 000 €.Contactez Fabrice BONELLO (tél : (Numéro supprimé)) pour tout renseignement sur la maison ou sur les démarches à suivre. Maisons France Confort Beauvais est là pour vous accompagner à toutes les étapes de l’achat.

Compiègne
TERRAIN ET MAISONArsy : maison T3 (71 m²) en venteEMPLACEMENT PRIVILÉGIÉ – MAISON 3 PIÈCES NEUVEÀ vendre : à 11 km de Compiègne, bénéficiant d’un emplacement d’exception dans Arsy (60190), Maisons France Confort Beauvais vous présente cette maison de 3 pièces de plain-pied de 71 m².Son intérieur offre deux chambres, une cuisine et une salle de bains. La maison est neuve.Le terrain de la propriété est de 550 m².Cette maison se situe dans un quartier attractif. L’École Primaire Séraphine Louis est implantée à moins de 10 minutes à pied. Niveau transports, on trouve six gares à moins de 10 minutes en voiture. L’autoroute A1 et la nationale N31 sont accessibles à moins de 2 km. Il y a une bibliothèque à quelques minutes.Son prix de vente est de 231 000 €.Prenez contact avec Fabrice BONELLO ((Numéro supprimé)) pour toute information sur la maison et sur les démarches à suivre. Donnez vie à vos projets immobiliers avec Maisons France Confort Beauvais.

Compiègne
TERRAIN ET MAISONVENTE d’une maison de 5 pièces (85 m²) à ArsyEMPLACEMENT PRIVILÉGIÉ – MAISON 5 PIÈCES NEUVEÀ vendre : à deux pas de Compiègne, Maisons France Confort Beauvais vous présente cette maison de 5 pièces de 85 m² bénéficiant d’un emplacement privilégié dans Arsy (60190). Son intérieur se divise en trois chambres, une cuisine et deux salles de bains.Le terrain de la propriété s’étend sur 550 m².Cette maison possède 2 niveaux. Elle est neuve.La maison se trouve dans un quartier prisé. Il y a l’École Primaire Séraphine Louis à moins de 10 minutes à pied. Côté transports, on trouve six gares à moins de 10 minutes en voiture. L’autoroute A1 et la nationale N31 sont accessibles à moins de 2 km. Il y a une bibliothèque à proximité.Elle est à vendre pour la somme de 266 000 €.Contactez Fabrice BONELLO ((Numéro supprimé)) pour tout renseignement sur la maison, sur les démarches à suivre ou sur les modalités de vente. Concrétisez vos projets immobiliers avec Maisons France Confort Beauvais.

Compiègne
TERRAIN ET MAISONVENTE : maison F6 (109 m²) à ArsyEMPLACEMENT PRIVILÉGIÉ – MAISON 6 PIÈCES NEUVEÀ vendre à quelques kilomètres de Compiègne, notre agence Maisons France Confort Beauvais est ravie de vous proposer cette maison de 6 pièces de 109 m² et de 550 m² de terrain bénéficiant d’un emplacement d’exception dans Arsy (60190). Son intérieur offre quatre chambres, une cuisine et deux salles de bains.Il s’agit d’une maison de 2 niveaux. Elle est neuve.La maison se situe dans un secteur attractif. Il y a l’École Primaire Séraphine Louis à moins de 10 minutes à pied. Niveau transports en commun, on trouve six gares à moins de 10 minutes en voiture. L’autoroute A1 et la nationale N31 sont accessibles à moins de 2 km. Il y a une bibliothèque à quelques minutes à peine.Elle est à vendre pour la somme de 281 000 €.Prenez contact avec notre agence (BONELLO Fabrice : (Numéro supprimé)) pour toute question sur la maison, sur les modalités de vente ou sur les démarches à suivre.
L’actualité immobilière à Thourotte





