Images
Description
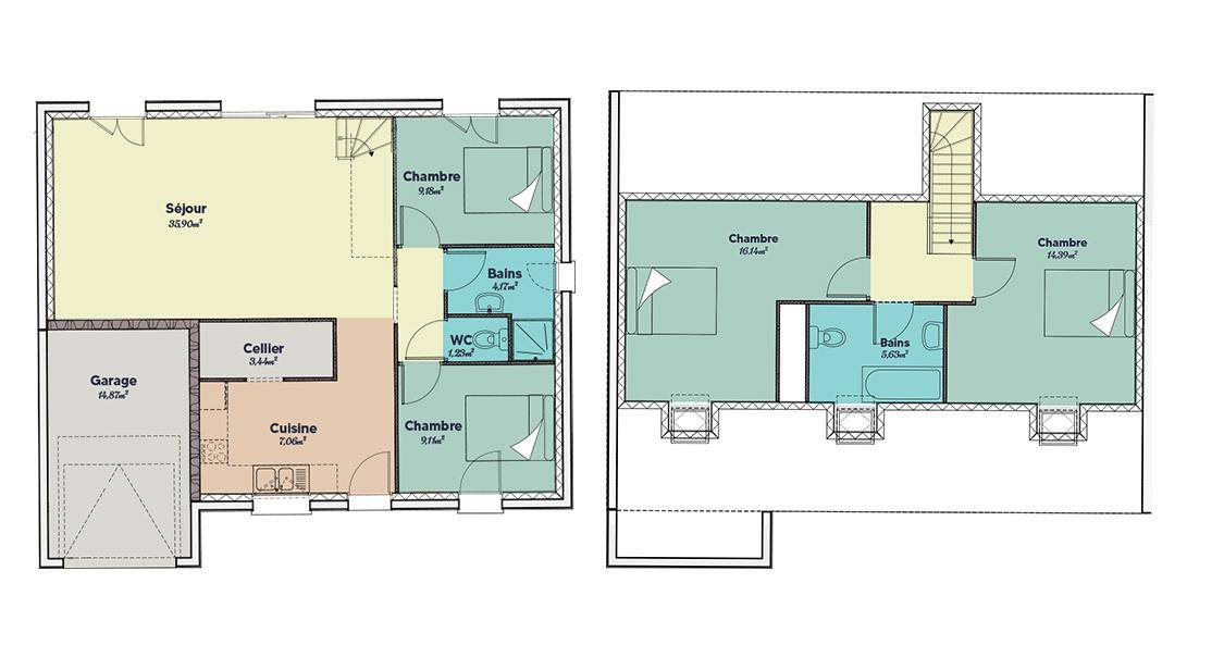
Sur ce terrain, nous vous proposons cette maison neuve : la Focus EVO, un modèle unique de 110 m² conçu par Babeau-Seguin, constructeur offrant le meilleur rapport qualité/prix du marché. Cette maison basse consommation est conforme à la norme RE2020, garantissant des performances énergétiques exceptionnelles.
La Focus EVO se distingue par son concept évolutif, alliant une maison neuve prête à vivre et une maison prête à finir. Livrée avec 73 m² habitables, elle est conçue pour évoluer avec vos besoins futurs. Grâce à ses combles aménageables, vous pouvez facilement augmenter votre surface habitable à 110 m², ajoutant ainsi deux chambres supplémentaires et une salle de bain, pour un total de 4 chambres et 2 salles de bains.
Les caractéristiques principales de cette maison incluent un garage intégré, un cellier, et des combles aménageables. Les options les plus demandées par nos clients, telles que la version Investisseur et les prises USB murales, sont également disponibles.
La Focus EVO est idéale pour tous ceux qui recherchent une maison complète à un prix compétitif. Elle comprend une grande pièce de jour traversante, 4 chambres, une salle de bain, et un garage de 15 m². Que vous soyez un jeune couple, un célibataire ou une famille en pleine expansion, cette maison saura s'adapter à vos besoins et à vos envies.
Ne manquez pas cette occasion unique de devenir propriétaire d'une maison évolutive, économe en énergie et conforme aux dernières normes environnementales. Contactez-nous dès aujourd'hui pour plus d'informations et pour planifier une visite.
Logement susceptibles de vous intéresser
Nous vous proposons de découvrir aussi cette sélection de logements situés à moins de 10km de Tracy-le-Mont et qui seraient susceptibles de vous intéresser.

Ribécourt-Dreslincourt
TERRAINDécouvrez ce magnifique terrain non-viabilisé de 618 m², situé dans la charmante commune de Ribécourt-Dreslincourt, dans l’Oise. Ce bien rare offre une opportunité unique pour la construction de votre future maison, dans un environnement privilégié. Son emplacement au cœur de ville, à proximité des commodités essentielles, fait de ce terrain un choix idéal pour les familles et les investisseurs souhaitant s’implanter dans un cadre vivant et dynamique. À noter qu’en tant que constructeur, nous ne sommes pas mandatés pour réaliser la vente de ce terrain.

Ribécourt-Dreslincourt
TERRAIN ET MAISONSur ce terrain, nous vous proposons cette maison neuve Aubetière. Avec une surface de 59 m² et équipée d’une chambre, cette maison traditionnelle est appréciée pour son excellent rapport qualité/prix. Personnalisez le plan de votre Aubetière 59 m² avec des options comme un garage ou un sous-sol.L’Aubetière est une maison moderne qui se distingue par son excellent rapport qualité/prix. Vous pouvez choisir entre une toiture à 2 pans ou à 4 pans, selon vos préférences esthétiques et pratiques. Cette maison neuve est basse consommation et conforme à la RE2020, garantissant ainsi des performances énergétiques optimales et un respect des normes environnementales les plus récentes. Le constructeur Babeau-Seguin, reconnu pour offrir le meilleur rapport qualité/prix du marché, vous accompagne dans la réalisation de votre projet de construction. Donnez vie à votre projet de construction en optant pour notre modèle traditionnel Aubetière et profitez d’une maison individuelle sur mesure, adaptée à vos besoins et à vos envies.

Tracy-le-Mont
TERRAINMagnifique terrain non-viabilisé de 767m² situé à Tracy-le-Mont, dans l’Oise (60170). Ce terrain offre une toile vierge idéale pour la construction de votre future maison, vous permettant d’imaginer et de réaliser le projet de vos rêves. Tracy-le-Mont, nichée dans un cadre champêtre, est réputée pour sa tranquillité, sa qualité de vie exceptionnelle et ses prix attractifs, vous offrant ainsi un emplacement privilégié pour vivre paisiblement. Ce terrain, avec son potentiel et son emplacement de choix, est une opportunité à ne pas manquer pour ceux qui souhaitent se bâtir un avenir serein et épanouissant. À noter qu’en tant que constructeur, nous ne sommes pas mandatés pour réaliser la vente de ce terrain.

Tracy-le-Mont
TERRAIN ET MAISONSur ce terrain, nous vous proposons cette maison neuve : la Focus EVO, un modèle unique de 110 m² conçu par Babeau-Seguin, constructeur offrant le meilleur rapport qualité/prix du marché. Cette maison basse consommation est conforme à la norme RE2020, garantissant des performances énergétiques exceptionnelles.La Focus EVO se distingue par son concept évolutif, alliant une maison neuve prête à vivre et une maison prête à finir. Livrée avec 73 m² habitables, elle est conçue pour évoluer avec vos besoins futurs. Grâce à ses combles aménageables, vous pouvez facilement augmenter votre surface habitable à 110 m², ajoutant ainsi deux chambres supplémentaires et une salle de bain, pour un total de 4 chambres et 2 salles de bains.Les caractéristiques principales de cette maison incluent un garage intégré, un cellier, et des combles aménageables. Les options les plus demandées par nos clients, telles que la version Investisseur et les prises USB murales, sont également disponibles.La Focus EVO est idéale pour tous ceux qui recherchent une maison complète à un prix compétitif. Elle comprend une grande pièce de jour traversante, 4 chambres, une salle de bain, et un garage de 15 m². Que vous soyez un jeune couple, un célibataire ou une famille en pleine expansion, cette maison saura s’adapter à vos besoins et à vos envies.Ne manquez pas cette occasion unique de devenir propriétaire d’une maison évolutive, économe en énergie et conforme aux dernières normes environnementales. Contactez-nous dès aujourd’hui pour plus d’informations et pour planifier une visite.

Carlepont
TERRAINterrain plat au calme avec bel ensoleillement écoles, périscolaire, proximité de commerces.Prix : 55000 €.Sur ce terrain, réalisez votre projet de construction de maison RE 2020 avec PAVILLONS D'ÎLE-DE-FRANCE (constructeur de maisons de gamme et sur-mesure depuis plus de 50 ans) :- Plan sur-mesure et personnalisé de 2 à 5 chambres- Mode de chauffage au choix- Grands choix d'équipements et de prestations- Matériaux de qualité selon les normes en vigueur- Accompagnement dans le choix et l’acquisition du terrainDemandez une étude gratuite et personnalisée de votre projet de construction sur ce terrain !Contactez Anthony CALMELS au (Numéro supprimé) ou au (Numéro supprimé) (Pavillons d'Île-de-France – Agence de Noyon).Prix hors frais de notaire. Terrain sélectionné et vu pour vous sous réserve de disponibilité et au prix indiqué par notre partenaire foncier. Visuels non contractuels.Cette annonce a été créée et diffusée avec le logiciel VITAHOME.

Choisy-au-Bac
TERRAINbien desservie, commerce accessible à pied, école, transport avec navette desservant COMPIEGNE ,proche centre bourg,à10 min de COMPIEGNE et sa gare,à 40min de PARIS.Prix : 110000 €.Sur ce terrain, réalisez votre projet de construction de maison RE 2020 avec PAVILLONS D'ÎLE-DE-FRANCE (constructeur de maisons de gamme et sur-mesure depuis plus de 50 ans) :- Plan sur-mesure et personnalisé de 2 à 5 chambres- Mode de chauffage au choix- Grands choix d'équipements et de prestations- Matériaux de qualité selon les normes en vigueur- Accompagnement dans le choix et l’acquisition du terrainDemandez une étude gratuite et personnalisée de votre projet de construction sur ce terrain !Contactez Anthony CALMELS au (Numéro supprimé) ou au (Numéro supprimé) (Pavillons d'Île-de-France – Agence de Noyon).Prix hors frais de notaire. Terrain sélectionné et vu pour vous sous réserve de disponibilité et au prix indiqué par notre partenaire foncier. Visuels non contractuels.Cette annonce a été créée et diffusée avec le logiciel VITAHOME.

Carlepont
TERRAINécoles, commerces , terrain plat au calme.Prix : 55000 €.Sur ce terrain, réalisez votre projet de construction de maison RE 2020 avec PAVILLONS D'ÎLE-DE-FRANCE (constructeur de maisons de gamme et sur-mesure depuis plus de 50 ans) :- Plan sur-mesure et personnalisé de 2 à 5 chambres- Mode de chauffage au choix- Grands choix d'équipements et de prestations- Matériaux de qualité selon les normes en vigueur- Accompagnement dans le choix et l’acquisition du terrainDemandez une étude gratuite et personnalisée de votre projet de construction sur ce terrain !Contactez Anthony CALMELS au (Numéro supprimé) ou au (Numéro supprimé) (Pavillons d'Île-de-France – Agence de Noyon).Prix hors frais de notaire. Terrain sélectionné et vu pour vous sous réserve de disponibilité et au prix indiqué par notre partenaire foncier. Visuels non contractuels.Cette annonce a été créée et diffusée avec le logiciel VITAHOME.

Carlepont
TERRAINterrain plat avec bel ensoleillement, écoles ,périscolaires, village qui fait bon vivre.15 min de COMPIEGNE, 5 min de NOYON, moins de 1h de PARIS.Prix : 100000 €.Sur ce terrain, réalisez votre projet de construction de maison RE 2020 avec PAVILLONS D'ÎLE-DE-FRANCE (constructeur de maisons de gamme et sur-mesure depuis plus de 50 ans) :- Plan sur-mesure et personnalisé de 2 à 5 chambres- Mode de chauffage au choix- Grands choix d'équipements et de prestations- Matériaux de qualité selon les normes en vigueur- Accompagnement dans le choix et l’acquisition du terrainDemandez une étude gratuite et personnalisée de votre projet de construction sur ce terrain !Contactez Anthony CALMELS au (Numéro supprimé) ou au (Numéro supprimé) (Pavillons d'Île-de-France – Agence de Noyon).Prix hors frais de notaire. Terrain sélectionné et vu pour vous sous réserve de disponibilité et au prix indiqué par notre partenaire foncier. Visuels non contractuels.Cette annonce a été créée et diffusée avec le logiciel VITAHOME.

Autrêches
TERRAINPrix : 50000 €.Sur ce terrain, réalisez votre projet de construction de maison RE 2020 avec PAVILLONS D'ÎLE-DE-FRANCE (constructeur de maisons de gamme et sur-mesure depuis plus de 50 ans) :- Plan sur-mesure et personnalisé de 2 à 5 chambres- Mode de chauffage au choix- Grands choix d'équipements et de prestations- Matériaux de qualité selon les normes en vigueur- Accompagnement dans le choix et l’acquisition du terrainDemandez une étude gratuite et personnalisée de votre projet de construction sur ce terrain !Contactez Norbert DE SA au (Numéro supprimé) ou au (Numéro supprimé) (Pavillons d'Île-de-France – Agence de Noyon).Prix hors frais de notaire. Terrain sélectionné et vu pour vous sous réserve de disponibilité et au prix indiqué par notre partenaire foncier. Visuels non contractuels.Cette annonce a été créée et diffusée avec le logiciel VITAHOME.
L’actualité immobilière à Tracy-le-Mont





