Maison à construire à Tracy-le-Mont (60170)
Images
Description
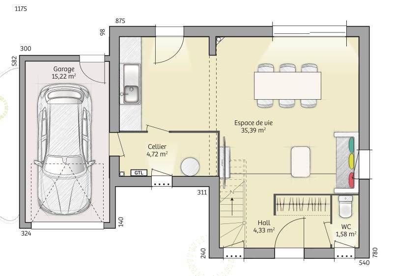
🏡 TERRAIN + MAISON - Tracy-le-Mont
Maison R+1 90 m² - 3 chambres à l'étage - Salle de bain - Garage accolé - Façade en L
Projet sur terrain 1 044 m² (façade ~20,50 m).
Maison R+1 avec L en avancé sur la façade : 3 chambres à l'étage, 1 salle de bain, belle pièce de vie lumineuse, garage accolé. Plan personnalisable.
📍 Emplacement idéal : Proche Compiègne / Noyon / Ribécourt, gares, collèges, lycées, commerces.
💶 Frais annexes inclus (étude de sol, raccordements, taxes).
📞 Contactez XAVIER DOS SANTOS pour le prix complet, au (Numéro supprimé)
Logement susceptibles de vous intéresser
Nous vous proposons de découvrir aussi cette sélection de logements situés à moins de 10km de Tracy-le-Mont et qui seraient susceptibles de vous intéresser.
Trosly-Breuil
TERRAIN ET MAISONRéalisez votre projet de construction de maison RE 2020 avec PAVILLONS D'ÎLE-DE-FRANCE (constructeur de maisons de gamme et sur-mesure depuis plus de 50 ans) :- Plan sur-mesure et personnalisé de 2 à 5 chambres- Mode de chauffage au choix- Grands choix d'équipements et de prestations- Matériaux de qualité selon les normes en vigueur- Accompagnement dans le choix et l’acquisition du terrainInformations du terrain : Terrain à bâtir de 371 m² dans le lotissement LE CLOS ROQUIN. Terrain viabilisé.Demandez une étude gratuite et personnalisée de votre projet de construction !Contactez Anthony CALMELS au (Numéro supprimé) ou au (Numéro supprimé) (Pavillons d'Île-de-France – Agence de Noyon).Prix avec assurance dommages-ouvrage comprise, hors VRD, terrain viabilisé, assainissement compris, frais de notaire non compris, taxes non comprises, frais divers non compris. Terrain sélectionné et vu pour vous sous réserve de disponibilité et au prix indiqué par notre partenaire foncier. Visuels non contractuels.Cette annonce a été créée et diffusée avec le logiciel VITAHOME.
Tracy-le-Val
TERRAIN ET MAISONMaison en combles aménagés idéale pour les terrains de petite façade. 3 chambres.Projet idéal pour jeune couple ou un 1er achatCe modèle n'est pas contractuel et peut être modifié selon vos choix afin de convenir à la maison de vos rêves.Demandez une étude gratuite et personnalisée de votre projet de construction !Contactez Véronique LEMOUTON au (Numéro supprimé)(Pavillons d'Île-de-France – Agence de Cauffry).Prix avec assurance dommages-ouvrage comprise, hors VRD, terrain viabilisé, assainissement compris, frais de notaire non compris, taxes non comprises, frais divers non compris. Terrain sélectionné et vu pour vous sous réserve de disponibilité et au prix indiqué par notre partenaire foncier. Visuels non contractuels.Cette annonce a été créée et diffusée avec le logiciel VITAHOME.
Tracy-le-Val
TERRAIN ET MAISONRéalisez votre projet de construction de maison RE 2020 avec PAVILLONS D'ÎLE-DE-FRANCE (constructeur de maisons de gamme et sur-mesure depuis plus de 50 ans) :- Plan sur-mesure et personnalisé de 2 à 5 chambres- Mode de chauffage au choix- Grands choix d'équipements et de prestations- Matériaux de qualité selon les normes en vigueur- Accompagnement dans le choix et l’acquisition du terrain- Garage non comprisInformations du terrain : FRAIS DE NOTAIRE OFFERTDemandez une étude gratuite et personnalisée de votre projet de construction !Contactez Norbert DE SA au (Numéro supprimé) ou au (Numéro supprimé) (Pavillons d'Île-de-France – Agence de Noyon).Prix avec assurance dommages-ouvrage comprise, hors VRD, terrain viabilisé, assainissement compris, frais de notaire non compris, taxes non comprises, frais divers non compris. Terrain sélectionné et vu pour vous sous réserve de disponibilité et au prix indiqué par notre partenaire foncier. Visuels non contractuels.Cette annonce a été créée et diffusée avec le logiciel VITAHOME.
Tracy-le-Val
TERRAIN ET MAISONRéalisez votre projet de construction de maison RE 2020 avec PAVILLONS D'ÎLE-DE-FRANCE (constructeur de maisons de gamme et sur-mesure depuis plus de 50 ans) :- Plan sur-mesure et personnalisé de 2 à 5 chambres- Mode de chauffage au choix- Grands choix d'équipements et de prestations- Matériaux de qualité selon les normes en vigueur- Accompagnement dans le choix et l’acquisition du terrainInformations du terrain : Terrain plat et viabilisé à Tracy le Val – 362 m² 🏡En tant que constructeur de maisons individuelles, je vous présente ce magnifique terrain de 362 m², idéalement situé à Tracy le Val. Avec une façade de 14,40 ml, ce terrain plat et viabilisé est parfait pour réaliser la maison de vos rêves.Tracy le Val est une commune dynamique offrant tous les atouts pour une vie agréable : commerces de proximité, écoles et restaurants à deux pas. De plus, vous bénéficierez d’un accès facile aux transports, avec la gare de Compiègne à seulement 17 km (40 minutes de Paris) et la gare de Noyon à 12 km. L'aéroport Roissy CDG est à une heure, facilitant vos déplacements.Et ce n'est pas tout ! Les frais de notaire sont offerts, rendant cette opportunité encore plus attractive.Ne laissez pas passer cette chance de construire votre future maison dans un cadre paisible et convivial. Contactez-moi dès aujourd'hui pour plus d'informations ou pour organiser une visite.Votre projet de vie commence ici !Demandez une étude gratuite et personnalisée de votre projet de construction !Contactez Anthony CALMELS au (Numéro supprimé) ou au (Numéro supprimé) (Pavillons d'Île-de-France – Agence de Noyon).Prix avec assurance dommages-ouvrage comprise, hors VRD, terrain viabilisé, assainissement compris, frais de notaire non compris, taxes non comprises, frais divers non compris. Terrain sélectionné et vu pour vous sous réserve de disponibilité et au prix indiqué par notre partenaire foncier. Visuels non contractuels.Cette annonce a été créée et diffusée avec le logiciel VITAHOME.
Cambronne-lès-Ribécourt
TERRAINTerrain à bâtir – Cambronne-lès-Ribécourt (60170)À vendre, terrain constructible de 455 m² situé sur la commune de Cambronne-lès-Ribécourt, offrant une façade de 30,99 m.Caractéristiques :CU positifZone UD (urbanisme)Aléa argileux faibleTerrain plat, bien proportionné, idéal pour un projet de constructionLocalisation :Proche de toutes commodités : commerces, écoles, transports, servicesOpportunité rare dans un secteur calme et recherché !Prix : 59400 €.Sur ce terrain, réalisez votre projet de construction de maison RE 2020 avec PAVILLONS D'ÎLE-DE-FRANCE (constructeur de maisons de gamme et sur-mesure depuis plus de 50 ans) :- Plan sur-mesure et personnalisé de 2 à 5 chambres- Mode de chauffage au choix- Grands choix d'équipements et de prestations- Matériaux de qualité selon les normes en vigueur- Accompagnement dans le choix et l’acquisition du terrainDemandez une étude gratuite et personnalisée de votre projet de construction sur ce terrain !Contactez Anthony CALMELS au (Numéro supprimé) ou au (Numéro supprimé) (Pavillons d'Île-de-France – Agence de Noyon).Prix hors frais de notaire. Terrain sélectionné et vu pour vous sous réserve de disponibilité et au prix indiqué par notre partenaire foncier. Visuels non contractuels.Cette annonce a été créée et diffusée avec le logiciel VITAHOME.
Tracy-le-Val
TERRAINTerrain plat et viabilisé de 446 m² , situé à TRACY LE VAL. Commune disposant de commerces de proximité, écoles, gare de Compiègne à 17km (40 mn de paris) et 12 km de la gare de Noyon, situé à 1 heure de ROISSY CDG. Sur place, vous avez école, restaurant, commerce de proximité.Prix : 51290 €.Sur ce terrain, réalisez votre projet de construction de maison RE 2020 avec PAVILLONS D'ÎLE-DE-FRANCE (constructeur de maisons de gamme et sur-mesure depuis plus de 50 ans) :- Plan sur-mesure et personnalisé de 2 à 5 chambres- Mode de chauffage au choix- Grands choix d'équipements et de prestations- Matériaux de qualité selon les normes en vigueur- Accompagnement dans le choix et l’acquisition du terrainDemandez une étude gratuite et personnalisée de votre projet de construction sur ce terrain !Contactez Anthony CALMELS au (Numéro supprimé) ou au (Numéro supprimé) (Pavillons d'Île-de-France – Agence de Noyon).Prix hors frais de notaire. Terrain sélectionné et vu pour vous sous réserve de disponibilité et au prix indiqué par notre partenaire foncier. Visuels non contractuels.Cette annonce a été créée et diffusée avec le logiciel VITAHOME.
Tracy-le-Val
TERRAINFRAIS DE NOTAIRE OFFERTPrix : 54570 €.Sur ce terrain, réalisez votre projet de construction de maison RE 2020 avec PAVILLONS D'ÎLE-DE-FRANCE (constructeur de maisons de gamme et sur-mesure depuis plus de 50 ans) :- Plan sur-mesure et personnalisé de 2 à 5 chambres- Mode de chauffage au choix- Grands choix d'équipements et de prestations- Matériaux de qualité selon les normes en vigueur- Accompagnement dans le choix et l’acquisition du terrainDemandez une étude gratuite et personnalisée de votre projet de construction sur ce terrain !Contactez Norbert DE SA au (Numéro supprimé) ou au (Numéro supprimé) (Pavillons d'Île-de-France – Agence de Noyon).Prix hors frais de notaire. Terrain sélectionné et vu pour vous sous réserve de disponibilité et au prix indiqué par notre partenaire foncier. Visuels non contractuels.Cette annonce a été créée et diffusée avec le logiciel VITAHOME.
Tracy-le-Mont
TERRAIN ET MAISONRéalisez votre projet de construction de maison RE 2020 avec PAVILLONS D'ÎLE-DE-FRANCE (constructeur de maisons de gamme et sur-mesure depuis plus de 50 ans) :- Plan sur-mesure et personnalisé de 2 à 5 chambres- Mode de chauffage au choix- Grands choix d'équipements et de prestations- Matériaux de qualité selon les normes en vigueur- Accompagnement dans le choix et l’acquisition du terrainDemandez une étude gratuite et personnalisée de votre projet de construction !Contactez Anthony CALMELS au (Numéro supprimé) ou au (Numéro supprimé) (Pavillons d'Île-de-France – Agence de Noyon).Prix avec assurance dommages-ouvrage comprise, hors VRD, terrain non viabilisé, assainissement non compris, frais de notaire non compris, taxes non comprises, frais divers non compris. Terrain sélectionné et vu pour vous sous réserve de disponibilité et au prix indiqué par notre partenaire foncier. Visuels non contractuels.Cette annonce a été créée et diffusée avec le logiciel VITAHOME.
Tracy-le-Val
TERRAINTerrain plat et viabilisé de 413m² , situé à TRACY LE VAL. Commune disposant de commerces de proximité, écoles, gare de Compiègne à 17km (40 mn de paris) et 12 km de la gare de Noyon, situé à 1 heure de ROISSY CDG. Sur place, vous avez école, restaurant, commerce de proximité.Prix : 47495 €.Sur ce terrain, réalisez votre projet de construction de maison RE 2020 avec PAVILLONS D'ÎLE-DE-FRANCE (constructeur de maisons de gamme et sur-mesure depuis plus de 50 ans) :- Plan sur-mesure et personnalisé de 2 à 5 chambres- Mode de chauffage au choix- Grands choix d'équipements et de prestations- Matériaux de qualité selon les normes en vigueur- Accompagnement dans le choix et l’acquisition du terrainDemandez une étude gratuite et personnalisée de votre projet de construction sur ce terrain !Contactez Anthony CALMELS au (Numéro supprimé) ou au (Numéro supprimé) (Pavillons d'Île-de-France – Agence de Noyon).Prix hors frais de notaire. Terrain sélectionné et vu pour vous sous réserve de disponibilité et au prix indiqué par notre partenaire foncier. Visuels non contractuels.Cette annonce a été créée et diffusée avec le logiciel VITAHOME.
L’actualité immobilière à Tracy-le-Mont
27/11/2023
02/11/2023
30/10/2023
20/10/2023
16/10/2023
16/10/2023