Images
Description
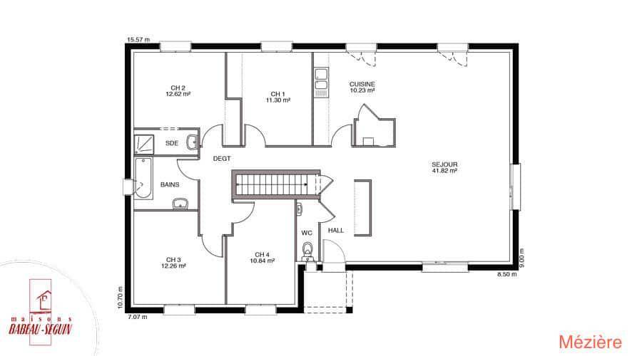
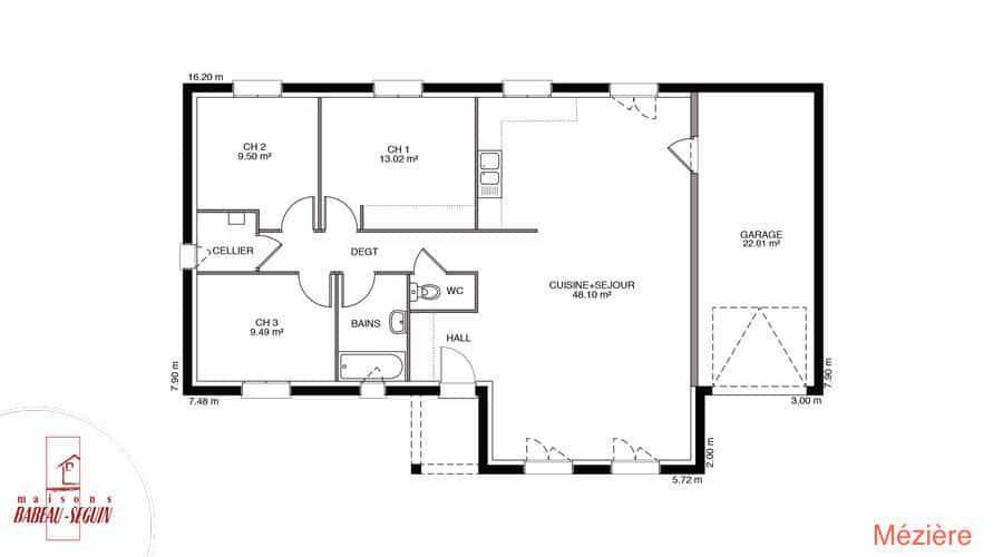
Sur ce terrain, nous vous proposons cette maison neuve, modèle Mézière, conçue par Babeau-Seguin, constructeur offrant le meilleur rapport qualité/prix du marché. Avec une surface de 88 m², cette maison de plain-pied saura répondre aux attentes de nombreuses familles grâce à ses 3 chambres et ses 4 pièces.
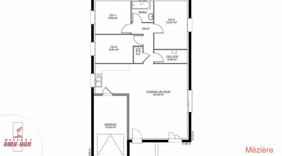
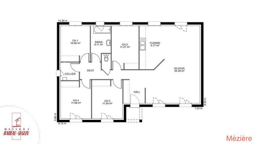
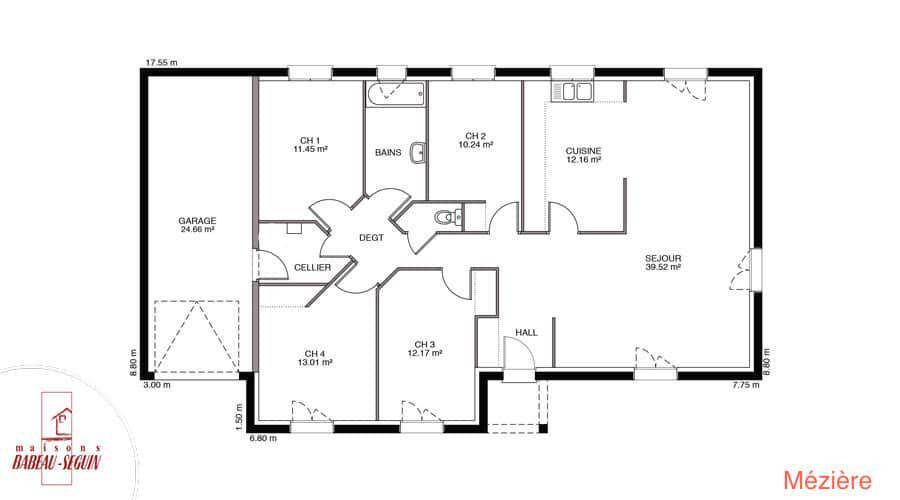
La Mézière se distingue par son plan en L, disponible en version 2 pans ou 4 pans, offrant ainsi une grande flexibilité pour s'adapter à vos besoins et à vos envies. Véritable maison sur mesure, elle séduit par ses nombreuses versions et options, permettant de créer un espace de vie unique et personnalisé.
Parmi les options les plus demandées par nos clients, vous trouverez les menuiseries en aluminium, la domotique pour une maison connectée, ainsi que la possibilité d'ajouter un garage ou un sous-sol. Ces options vous permettront de profiter pleinement de votre nouvelle maison, tout en bénéficiant des dernières innovations en matière de confort et de sécurité.
Cette maison neuve est également basse consommation et conforme à la réglementation environnementale RE2020, garantissant ainsi des performances énergétiques optimales et un impact réduit sur l'environnement. Vous pourrez ainsi réaliser des économies d'énergie tout en contribuant à la préservation de notre planète.
Véritable coup de cœur pour de nombreux clients Babeau-Seguin, la Mézière est une maison facilement modifiable, ce qui justifie pleinement son succès. Craquerez-vous aussi pour elle ? N'attendez plus pour découvrir cette maison d'exception et contactez-nous dès maintenant pour plus d'informations.
Logement susceptibles de vous intéresser
Nous vous proposons de découvrir aussi cette sélection de logements situés à moins de 10km de Tracy-le-Val et qui seraient susceptibles de vous intéresser.
Tracy-le-Val
TERRAINDans charmant petit village, situé à mi chemin de Compiègne et de Noyon.Autres parcelles disponibles.Prix : 48990 €.Sur ce terrain, réalisez votre projet de construction de maison RE 2020 avec PAVILLONS D'ÎLE-DE-FRANCE (constructeur de maisons de gamme et sur-mesure depuis plus de 50 ans) :- Plan sur-mesure et personnalisé de 2 à 5 chambres- Mode de chauffage au choix- Grands choix d'équipements et de prestations- Matériaux de qualité selon les normes en vigueur- Accompagnement dans le choix et l’acquisition du terrainDemandez une étude gratuite et personnalisée de votre projet de construction sur ce terrain !Contactez Vincent AUGE au (Numéro supprimé) ou au (Numéro supprimé) (Pavillons d'Île-de-France – Agence de Reims).Prix hors frais de notaire. Terrain sélectionné et vu pour vous sous réserve de disponibilité et au prix indiqué par notre partenaire foncier. Visuels non contractuels.Cette annonce a été créée et diffusée avec le logiciel VITAHOME.
Tracy-le-Val
TERRAIN ET MAISONRéalisez votre projet de construction de maison RE 2020 avec PAVILLONS D'ÎLE-DE-FRANCE (constructeur de maisons de gamme et sur-mesure depuis plus de 50 ans) :- Plan sur-mesure et personnalisé de 2 à 5 chambres- Mode de chauffage au choix- Grands choix d'équipements et de prestations- Matériaux de qualité selon les normes en vigueur- Accompagnement dans le choix et l’acquisition du terrainInformations du terrain : Dans charmant petit village, situé à mi chemin de Compiègne et de Noyon.Autres parcelles disponibles.Demandez une étude gratuite et personnalisée de votre projet de construction !Contactez Vincent AUGE au (Numéro supprimé) ou au (Numéro supprimé) (Pavillons d'Île-de-France – Agence de Reims).Prix avec assurance dommages-ouvrage comprise, hors VRD, terrain viabilisé, assainissement compris, frais de notaire non compris, taxes non comprises, frais divers non compris. Terrain sélectionné et vu pour vous sous réserve de disponibilité et au prix indiqué par notre partenaire foncier. Visuels non contractuels.Cette annonce a été créée et diffusée avec le logiciel VITAHOME.
Tracy-le-Val
TERRAIN ET MAISONRéalisez votre projet de construction de maison RE 2020 avec PAVILLONS D'ÎLE-DE-FRANCE (constructeur de maisons de gamme et sur-mesure depuis plus de 50 ans) :- Plan sur-mesure et personnalisé de 2 à 5 chambres- Mode de chauffage au choix- Grands choix d'équipements et de prestations- Matériaux de qualité selon les normes en vigueur- Accompagnement dans le choix et l’acquisition du terrainInformations du terrain : Dans charmant petit village, situé à mi chemin de Compiègne et de Noyon.Autres parcelles disponibles.Demandez une étude gratuite et personnalisée de votre projet de construction !Contactez Vincent AUGE au (Numéro supprimé) ou au (Numéro supprimé) (Pavillons d'Île-de-France – Agence de Reims).Prix avec assurance dommages-ouvrage comprise, hors VRD, terrain viabilisé, assainissement compris, frais de notaire non compris, taxes non comprises, frais divers non compris. Terrain sélectionné et vu pour vous sous réserve de disponibilité et au prix indiqué par notre partenaire foncier. Visuels non contractuels.Cette annonce a été créée et diffusée avec le logiciel VITAHOME.
Ribécourt-Dreslincourt
TERRAINTerrain à bâtir sur la charmante commune de RIBECOURT-DRESLINCOURT (60), très convoité, d’une superficie de 821 m²,plat, avec belle façade constructible de 20.00 ml, idéalement situé entre NOYON et COMPIEGNE.Commodité à proximité, groupe scolaire (maternelle et primaire) collège et lycée à RIBECOURT, commerce, gare sur place à 5 minutes.Projet clé en main.XAVIER de l’agence Maisons France Confort se fera un plaisir de vous recevoir pour plus de renseignements. tel : (Numéro supprimé).
Tracy-le-Val
TERRAIN ET MAISONRéalisez votre projet de construction de maison RE 2020 avec PAVILLONS D'ÎLE-DE-FRANCE (constructeur de maisons de gamme et sur-mesure depuis plus de 50 ans) :- Plan sur-mesure et personnalisé de 2 à 5 chambres- Mode de chauffage au choix- Grands choix d'équipements et de prestations- Matériaux de qualité selon les normes en vigueur- Accompagnement dans le choix et l’acquisition du terrainInformations du terrain : Dans charmant petit village, situé à mi chemin de Compiègne et de Noyon.Autres parcelles disponibles.Demandez une étude gratuite et personnalisée de votre projet de construction !Contactez Vincent AUGE au (Numéro supprimé) ou au (Numéro supprimé) (Pavillons d'Île-de-France – Agence de Reims).Prix avec assurance dommages-ouvrage comprise, hors VRD, terrain viabilisé, assainissement compris, frais de notaire non compris, taxes non comprises, frais divers non compris. Terrain sélectionné et vu pour vous sous réserve de disponibilité et au prix indiqué par notre partenaire foncier. Visuels non contractuels.Cette annonce a été créée et diffusée avec le logiciel VITAHOME.
Tracy-le-Val
TERRAIN ET MAISONMaison en combles aménagés idéale pour les terrains de petite façade. 3 chambres.Projet idéal pour jeune couple ou un 1er achatCe modèle n'est pas contractuel et peut être modifié selon vos choix afin de convenir à la maison de vos rêves.Demandez une étude gratuite et personnalisée de votre projet de construction !Contactez Véronique LEMOUTON au (Numéro supprimé)(Pavillons d'Île-de-France – Agence de Cauffry).Prix avec assurance dommages-ouvrage comprise, hors VRD, terrain viabilisé, assainissement compris, frais de notaire non compris, taxes non comprises, frais divers non compris. Terrain sélectionné et vu pour vous sous réserve de disponibilité et au prix indiqué par notre partenaire foncier. Visuels non contractuels.Cette annonce a été créée et diffusée avec le logiciel VITAHOME.
Tracy-le-Val
TERRAIN ET MAISONRéalisez votre projet de construction de maison RE 2020 avec PAVILLONS D'ÎLE-DE-FRANCE (constructeur de maisons de gamme et sur-mesure depuis plus de 50 ans) :- Plan sur-mesure et personnalisé de 2 à 5 chambres- Mode de chauffage au choix- Grands choix d'équipements et de prestations- Matériaux de qualité selon les normes en vigueur- Accompagnement dans le choix et l’acquisition du terrain- Garage non comprisInformations du terrain : FRAIS DE NOTAIRE OFFERTDemandez une étude gratuite et personnalisée de votre projet de construction !Contactez Norbert DE SA au (Numéro supprimé) ou au (Numéro supprimé) (Pavillons d'Île-de-France – Agence de Noyon).Prix avec assurance dommages-ouvrage comprise, hors VRD, terrain viabilisé, assainissement compris, frais de notaire non compris, taxes non comprises, frais divers non compris. Terrain sélectionné et vu pour vous sous réserve de disponibilité et au prix indiqué par notre partenaire foncier. Visuels non contractuels.Cette annonce a été créée et diffusée avec le logiciel VITAHOME.
Tracy-le-Val
TERRAIN ET MAISONRéalisez votre projet de construction de maison RE 2020 avec PAVILLONS D'ÎLE-DE-FRANCE (constructeur de maisons de gamme et sur-mesure depuis plus de 50 ans) :- Plan sur-mesure et personnalisé de 2 à 5 chambres- Mode de chauffage au choix- Grands choix d'équipements et de prestations- Matériaux de qualité selon les normes en vigueur- Accompagnement dans le choix et l’acquisition du terrainInformations du terrain : Terrain plat et viabilisé à Tracy le Val – 362 m² 🏡En tant que constructeur de maisons individuelles, je vous présente ce magnifique terrain de 362 m², idéalement situé à Tracy le Val. Avec une façade de 14,40 ml, ce terrain plat et viabilisé est parfait pour réaliser la maison de vos rêves.Tracy le Val est une commune dynamique offrant tous les atouts pour une vie agréable : commerces de proximité, écoles et restaurants à deux pas. De plus, vous bénéficierez d’un accès facile aux transports, avec la gare de Compiègne à seulement 17 km (40 minutes de Paris) et la gare de Noyon à 12 km. L'aéroport Roissy CDG est à une heure, facilitant vos déplacements.Et ce n'est pas tout ! Les frais de notaire sont offerts, rendant cette opportunité encore plus attractive.Ne laissez pas passer cette chance de construire votre future maison dans un cadre paisible et convivial. Contactez-moi dès aujourd'hui pour plus d'informations ou pour organiser une visite.Votre projet de vie commence ici !Demandez une étude gratuite et personnalisée de votre projet de construction !Contactez Anthony CALMELS au (Numéro supprimé) ou au (Numéro supprimé) (Pavillons d'Île-de-France – Agence de Noyon).Prix avec assurance dommages-ouvrage comprise, hors VRD, terrain viabilisé, assainissement compris, frais de notaire non compris, taxes non comprises, frais divers non compris. Terrain sélectionné et vu pour vous sous réserve de disponibilité et au prix indiqué par notre partenaire foncier. Visuels non contractuels.Cette annonce a été créée et diffusée avec le logiciel VITAHOME.
Cambronne-lès-Ribécourt
TERRAINTerrain à bâtir – Cambronne-lès-Ribécourt (60170)À vendre, terrain constructible de 455 m² situé sur la commune de Cambronne-lès-Ribécourt, offrant une façade de 30,99 m.Caractéristiques :CU positifZone UD (urbanisme)Aléa argileux faibleTerrain plat, bien proportionné, idéal pour un projet de constructionLocalisation :Proche de toutes commodités : commerces, écoles, transports, servicesOpportunité rare dans un secteur calme et recherché !Prix : 59400 €.Sur ce terrain, réalisez votre projet de construction de maison RE 2020 avec PAVILLONS D'ÎLE-DE-FRANCE (constructeur de maisons de gamme et sur-mesure depuis plus de 50 ans) :- Plan sur-mesure et personnalisé de 2 à 5 chambres- Mode de chauffage au choix- Grands choix d'équipements et de prestations- Matériaux de qualité selon les normes en vigueur- Accompagnement dans le choix et l’acquisition du terrainDemandez une étude gratuite et personnalisée de votre projet de construction sur ce terrain !Contactez Anthony CALMELS au (Numéro supprimé) ou au (Numéro supprimé) (Pavillons d'Île-de-France – Agence de Noyon).Prix hors frais de notaire. Terrain sélectionné et vu pour vous sous réserve de disponibilité et au prix indiqué par notre partenaire foncier. Visuels non contractuels.Cette annonce a été créée et diffusée avec le logiciel VITAHOME.
L’actualité immobilière à Tracy-le-Val
27/11/2023
02/11/2023
30/10/2023
20/10/2023
16/10/2023
16/10/2023