Maison à construire à Verderel-lès-Sauqueuse (60112)
Images
Description
Maison de 7 pièces (150 m²) en vente à Verderel-lès-Sauqueuse
IDÉALEMENT SITUÉE - MAISON 7 PIÈCES NEUVE
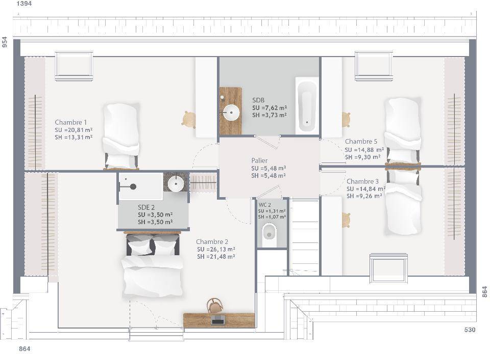
En vente : localisée à deux pas de Beauvais, nous sommes ravis de vous proposer cette maison de 7 pièces de 150 m² et de 660 m² de terrain idéalement située dans Verderel-lès-Sauqueuse (60112).
Cette maison compte 2 niveaux. Son intérieur dispose de cinq chambres, d'une cuisine et de deux salles de bains. Cette maison est neuve.
La maison est située dans un quartier attractif. Tous les types d'établissements scolaires sont implantés à moins de 10 minutes en voiture, quatre structures d'accueil pour les tout-petits à moins de 10 minutes à pied, tout comme l'Institut polytechnique UniLaSalle pour le supérieur. Niveau transports, on trouve quatre gares à moins de 10 minutes en voiture. Il y a des bibliothèques, des tennis, deux bassins de natation, des commerces, des boulangeries, des supermarchés, trois supérettes et des boucheries-charcuteries à proximité du logement. Le marché Place des Halles anime les environs.
Elle est à vendre pour la somme de 322 000 €.
Contactez Fabrice BONELLO (tél : (Numéro supprimé)) pour obtenir de plus amples renseignements sur le bien.
Logement susceptibles de vous intéresser
Nous vous proposons de découvrir aussi cette sélection de logements situés à moins de 10km de Verderel-lès-Sauqueuse et qui seraient susceptibles de vous intéresser.
Abbeville-Saint-Lucien
TERRAIN ET MAISONMaison F5 (85 m²) en vente à Abbeville-Saint-LucienIDÉALEMENT SITUÉE – MAISON 5 PIÈCES NEUVEEn vente : à quelques kilomètres de Beauvais, nous vous présentons cette maison de 5 pièces de 85 m² et de 1 015 m² de terrain idéalement située dans Abbeville-Saint-Lucien (60480). Elle se divise en trois chambres, une cuisine et deux salles de bains.Cette maison comporte 2 niveaux. Elle est neuve.La maison se situe dans un secteur prisé. Une école primaire y est implantée. L’autoroute A16 est accessible à 10 km. On trouve une bibliothèque et un commerce dans les environs.Son prix de vente est de 244 000 €.Contactez Fabrice BONELLO (tél : (Numéro supprimé)) pour toute information sur la maison.
Abbeville-Saint-Lucien
TERRAIN ET MAISONVENTE : maison de 5 pièces (110 m²) à Abbeville-Saint-LucienIDÉALEMENT SITUÉE – MAISON 5 PIÈCES NEUVEÀ vendre à quelques kilomètres de Beauvais, laissez vous charmer par cette maison de 5 pièces de plain-pied de 110 m² et de 1 015 m² de terrain idéalement située dans Abbeville-Saint-Lucien (60480). Elle propose quatre chambres, une cuisine et deux salles de bains.Cette maison est neuve.La maison se situe dans un secteur convoité. Une école primaire y est implantée. Il y a un accès à l’autoroute A16 à 10 km. On trouve une bibliothèque et un commerce dans les environs.Son prix de vente est de 274 000 €.N’hésitez pas à prendre contact avec notre agence (BONELLO Fabrice : (Numéro supprimé)) pour obtenir de plus amples renseignements sur la maison. Maisons France Confort Beauvais vous accompagne dans toutes vos démarches et à toutes les étapes de votre projet.
Abbeville-Saint-Lucien
TERRAIN ET MAISONVENTE d’une maison F5 (80 m²) à Abbeville-Saint-LucienIDÉALEMENT SITUÉE – MAISON 5 PIÈCES NEUVEÀ 10 km de Beauvais, Maisons France Confort Beauvais vous propose cette maison de 5 pièces de 80 m² et de 1 015 m² de terrain à vendre idéalement située dans Abbeville-Saint-Lucien (60480). Elle compte trois chambres, une cuisine et une salle de bains.Il s’agit d’une maison de 2 niveaux. Elle est neuve.Cette maison est située dans un secteur recherché. Une école primaire y est implantée. On trouve un accès à l’autoroute A16 à 10 km. On trouve une bibliothèque et un commerce dans les environs.Elle est à vendre pour la somme de 253 000 €.Contactez notre agence (BONELLO Fabrice : (Numéro supprimé)) pour tout renseignement sur la maison, sur les démarches à suivre ou sur les modalités de vente.
Troissereux
TERRAIN ET MAISONModèle disposant en RDC d'un bureau/Chambre d'amis avec SDO. 3 belles chambres à l'étage dont 1 parentale (dressing+ SDO) et une SDB commune.Ce modèle n'est pas contractuel. Chaque construction peut être travaillée en Sur Mesure selon vos critères et choix ainsi que les contraintes du secteur du terrain. Je suis à votre écoute pour donner vie à votre PROJETContactez Véronique LEMOUTON au (Numéro supprimé)(Pavillons d'Île-de-France – Agence de Cauffry).Prix avec assurance dommages-ouvrage comprise, hors VRD, terrain viabilisé, assainissement non compris, frais de notaire non compris, taxes non comprises, frais divers non compris. Terrain sélectionné et vu pour vous sous réserve de disponibilité et au prix indiqué par notre partenaire foncier. Visuels non contractuels.Cette annonce a été créée et diffusée avec le logiciel VITAHOME.
Troissereux
TERRAIN ET MAISONRéalisez votre projet de construction de maison RE 2020 avec PAVILLONS D'ÎLE-DE-FRANCE (constructeur de maisons de gamme et sur-mesure depuis plus de 50 ans) :- Plan sur-mesure et personnalisé de 2 à 5 chambres- Mode de chauffage au choix- Grands choix d'équipements et de prestations- Matériaux de qualité selon les normes en vigueur- Accompagnement dans le choix et l’acquisition du terrainInformations du terrain : Magnifique terrain à SAISIR au plus vite, situé dans une jolie rue et Calme garanti . Plat. Clos sur 3 cotés. Ensoleillement plein SUD. Possibilités R+1. Pas de contraintes ABF. Proche toutes commodités et à 10 mn de BeauvaisDemandez une étude gratuite et personnalisée de votre projet de construction !Contactez Véronique LEMOUTON au (Numéro supprimé) ou au (Numéro supprimé) (Pavillons d'Île-de-France – Agence de Cauffry).Prix avec assurance dommages-ouvrage comprise, hors VRD, terrain viabilisé, assainissement non compris, frais de notaire non compris, taxes non comprises, frais divers non compris. Terrain sélectionné et vu pour vous sous réserve de disponibilité et au prix indiqué par notre partenaire foncier. Visuels non contractuels.Cette annonce a été créée et diffusée avec le logiciel VITAHOME.
Abbeville-Saint-Lucien
TERRAINNOUVEAU! Magnifique terrain plat de 1015 m2 situé à ABBEVILLE SAINT LUCIEN à seulement 15 km de BEAUVAIS et de l’aéroport. Possédant une façade de 17.50 ml, Secteur calme et paisible, Peu de contraintes d’architectures! laissez parler votre imagination pour une construction 100% sur mesure. Parfait pour un premier investissement. A voir absolument! plus de renseignements contactez l’agence MAISONS FRANCE CONFORT au (Numéro supprimé)
Troissereux
TERRAINMagnifique terrain à SAISIR au plus vite, situé dans une jolie rue et Calme garanti . Plat. Clos sur 3 cotés. Ensoleillement plein SUD. Possibilités R+1. Pas de contraintes ABF. Proche toutes commodités et à 10 mn de BeauvaisPrix : 79900 €.Sur ce terrain, réalisez votre projet de construction de maison RE 2020 avec PAVILLONS D'ÎLE-DE-FRANCE (constructeur de maisons de gamme et sur-mesure depuis plus de 50 ans) :- Plan sur-mesure et personnalisé de 2 à 5 chambres- Mode de chauffage au choix- Grands choix d'équipements et de prestations- Matériaux de qualité selon les normes en vigueur- Accompagnement dans le choix et l’acquisition du terrainDemandez une étude gratuite et personnalisée de votre projet de construction sur ce terrain !Contactez Véronique LEMOUTON au (Numéro supprimé) ou au (Numéro supprimé) (Pavillons d'Île-de-France – Agence de Cauffry).Prix hors frais de notaire. Terrain sélectionné et vu pour vous sous réserve de disponibilité et au prix indiqué par notre partenaire foncier. Visuels non contractuels.Cette annonce a été créée et diffusée avec le logiciel VITAHOME.
Troissereux
TERRAIN ET MAISONRéalisez votre projet de construction de maison RE 2020 avec PAVILLONS D'ÎLE-DE-FRANCE (constructeur de maisons de gamme et sur-mesure depuis plus de 50 ans) :- Plan sur-mesure et personnalisé de 2 à 5 chambres- Mode de chauffage au choix- Grands choix d'équipements et de prestations- Matériaux de qualité selon les normes en vigueur- Accompagnement dans le choix et l’acquisition du terrainInformations du terrain : Magnifique terrain à SAISIR au plus vite, situé dans une jolie rue et Calme garanti . Plat. Clos sur 3 cotés. Ensoleillement plein SUD. Possibilités R+1. Pas de contraintes ABF. Proche toutes commodités et à 10 mn de BeauvaisDemandez une étude gratuite et personnalisée de votre projet de construction !Contactez Véronique LEMOUTON au (Numéro supprimé) ou au (Numéro supprimé) (Pavillons d'Île-de-France – Agence de Cauffry).Prix avec assurance dommages-ouvrage comprise, hors VRD, terrain viabilisé, assainissement non compris, frais de notaire non compris, taxes non comprises, frais divers non compris. Terrain sélectionné et vu pour vous sous réserve de disponibilité et au prix indiqué par notre partenaire foncier. Visuels non contractuels.Cette annonce a été créée et diffusée avec le logiciel VITAHOME.
Abbeville-Saint-Lucien
TERRAIN ET MAISONMaison de 4 pièces (50 m²) à vendre à Abbeville-Saint-LucienIDÉALEMENT SITUÉE – MAISON 4 PIÈCES NEUVEEn vente à quelques kilomètres de Beauvais, nous sommes ravis de vous présenter cette maison de 4 pièces de plain-pied de 50 m² idéalement située dans Abbeville-Saint-Lucien (60480).Elle comporte deux chambres, une cuisine et une salle de bains. La maison est neuve.Le terrain de la propriété est de 1 015 m².Cette maison se situe dans un secteur convoité. On y trouve une école primaire. Il y a un accès à l’autoroute A16 à 10 km. Il y a une bibliothèque et un commerce à proximité de la maison.Son prix de vente est de 193 000 €.N’hésitez pas à prendre contact avec notre agence (Fabrice BONELLO : (Numéro supprimé)) pour toute question sur la maison, sur les démarches à suivre ou sur les modalités de vente.
L’actualité immobilière à Verderel-lès-Sauqueuse
27/11/2023
02/11/2023
30/10/2023
20/10/2023
16/10/2023
16/10/2023