Maison à construire à Villers-Saint-Frambourg (60810)
Images
Description
Venez concevoir votre maison.
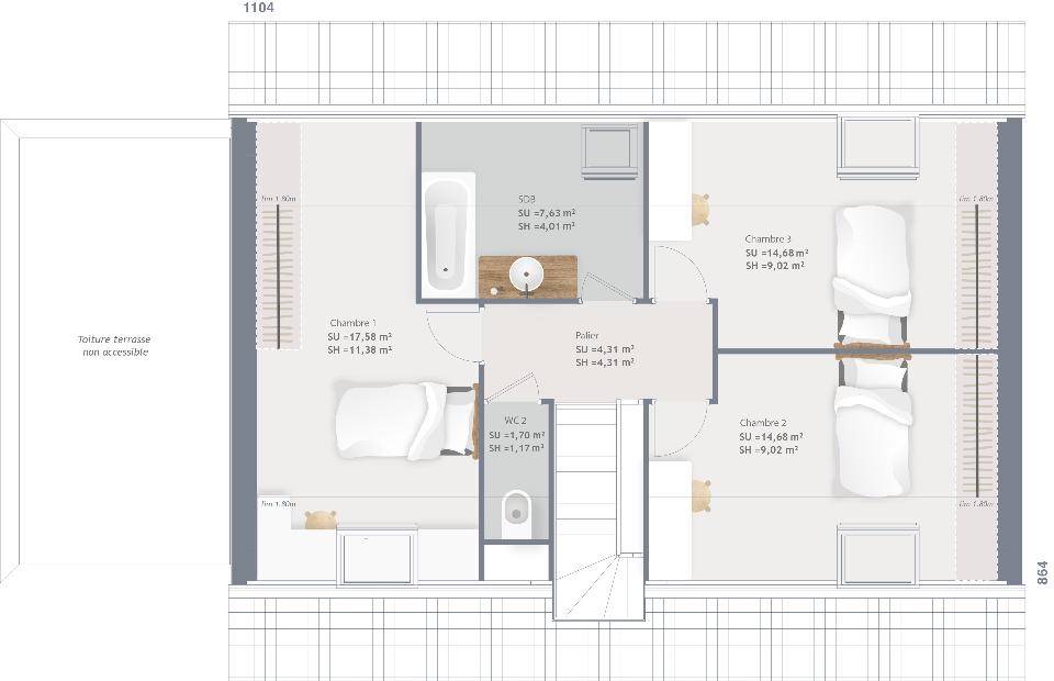
Exemple de projet maison (combles aménagés) de 115 m² loi Carrez.
Tous nos projets sont entièrement réalisés sur-mesure, de nombreuses prestations incluses: baies coulissantes en aluminium, volets roulants intégrés à la maçonnerie (non-apparents) motorisés.
Entrée, cuisine, pièce de vie, cellier et pièces d'eau carrelés,
Pompe à chaleur (classe énergétique A+), plancher chauffant RDC (et ETAGE), sèche-serviettes, plusieurs choix de menuiseries intérieures, construction en brique. RE 2020.
Pour tout renseignement contacter XAVIER de l'agence Maisons France Confort : (Numéro supprimé)
Logement susceptibles de vous intéresser
Nous vous proposons de découvrir aussi cette sélection de logements situés à moins de 10km de Villers-Saint-Frambourg-Ognon et qui seraient susceptibles de vous intéresser.
Rully
TERRAINTerrain de 513m² , viabilisé , plat , exposé plein sud , à 6 minutes de SENLIS .PTZ Zone B1Contactez moi pour une étude personnalisée .M. DOS SANTOS XAVIER(Numéro supprimé)
Villers-Saint-Frambourg-Ognon
TERRAINTerrain à bâtir à PONTPOINT (60) situé à 15 minutes de VILLERS SAINT FRAMBOURG, d’une superficie de 507 m², façade de 16.46 ml, plat, allée privative, secteur pavillonnaire recherché.Commodité à proximité, groupe scolaire à 5 min, commerce, transports en commun, gare TER direction Paris Nord.Projet clé en main : Conception des plans sur-mesure, gestion administrative (permis, notaire), suivi travaux.XAVIER de l’agence Maisons France Confort se fera un plaisir de vous recevoir pour plus de renseignements. tel : (Numéro supprimé)
Rully
TERRAIN ET MAISONMaison à combles aménagés , située à seulement 7 minutes de SENLIS , sur un terrain de 513m² viabilisé et exposé plein sud.Vue dégagée , environnement paisible et verdoyant , à deux pas de l’école , de la boulangerie et des médecins .Cette maison traditionnelle , dispose de 5 chambres avec rangements intégrés ,1 bureau , séjour carrelé ,2 salles d’eau équipées ,cellier et garage , packs alarme et domotique , modénatures , corniches , petites tuiles …Plans 100% personnalisables et modifiables .Accompagnement intégral : Financement , étude technique du terrain , gestion administrative .Frais annexes ( raccordements , viabilisation , puisards, enlèvements des terres excédentaires , chemin d’accès )inclus dans le prix de cette annonce .Contactez moi pour une étude gratuite .Rendez vous en agence ou à votre domicile .M. DOS SANTOS XAVIER(Numéro supprimé)
Rully
TERRAIN ET MAISONMaison à combles aménagés , située à seulement 7 minutes de SENLIS , sur un terrain de 513m² viabilisé et exposé plein sud.Vue dégagée , environnement paisible et verdoyant , à deux pas de l’école , de la boulangerie et des médecins .Cette maison traditionnelle , dispose de 4 chambres avec rangements intégrés , séjour carrelé ,2 salles d’eau équipées ,cellier et garage , packs alarme et domotique , modénatures , corniches , petites tuiles …Plans 100% personnalisables et modifiables .Accompagnement intégral : Financement , étude technique du terrain , gestion administrative .Frais annexes ( raccordements , viabilisation , puisards, enlèvements des terres excédentaires , chemin d’accès )inclus dans le prix de cette annonce .Contactez moi pour une étude gratuite .Rendez vous en agence ou à votre domicile .M. DOS SANTOS XAVIER(Numéro supprimé)
Rully
TERRAIN ET MAISONMaison à combles aménagés , située à seulement 7 minutes de SENLIS , sur un terrain de 513m² viabilisé et exposé plein sud.Vue dégagée , environnement paisible et verdoyant , à deux pas de l’école , de la boulangerie et des médecins .Cette maison traditionnelle , dispose de 4 chambres avec rangements intégrés , séjour carrelé ,2 salles d’eau équipées ,cellier et garage , packs alarme et domotique , modénatures , corniches , petites tuiles …Plans 100% personnalisables et modifiables .Accompagnement intégral : Financement , étude technique du terrain , gestion administrative .Frais annexes ( raccordements , viabilisation , puisards, enlèvements des terres excédentaires , chemin d’accès )inclus dans le prix de cette annonce .Contactez moi pour une étude gratuite .Rendez vous en agence ou à votre domicile .M. DOS SANTOS XAVIER(Numéro supprimé)
Rully
TERRAIN ET MAISONMaison à combles aménagés , située à seulement 7 minutes de SENLIS , sur un terrain de 513m² viabilisé et exposé plein sud.Vue dégagée , environnement paisible et verdoyant , à deux pas de l’école , de la boulangerie et des médecins .Cette maison traditionnelle , dispose de 3 chambres avec rangements intégrés , séjour carrelé ,1 salle d’eau équipée ,cellier et garage , packs alarme et domotique , modénatures , corniches , petites tuiles …Plans 100% personnalisables et modifiables .Accompagnement intégral : Financement , étude technique du terrain , gestion administrative .Frais annexes ( raccordements , viabilisation , puisards, enlèvements des terres excédentaires , chemin d’accès )inclus dans le prix de cette annonce .Contactez moi pour une étude gratuite .Rendez vous en agence ou à votre domicile .M. DOS SANTOS XAVIER(Numéro supprimé)
Rully
TERRAIN ET MAISONMaison à combles aménagés , située à seulement 7 minutes de SENLIS , sur un terrain de 513m² viabilisé et exposé plein sud.Vue dégagée , environnement paisible et verdoyant , à deux pas de l’école , de la boulangerie et des médecins .Cette maison traditionnelle , dispose de 3 chambres avec rangements intégrés , séjour carrelé ,1 salle d’eau équipée ,cellier et garage , packs alarme et domotique , modénatures , corniches , petites tuiles …Plans 100% personnalisables et modifiables .Accompagnement intégral : Financement , étude technique du terrain , gestion administrative .Frais annexes ( raccordements , viabilisation , puisards, enlèvements des terres excédentaires , chemin d’accès )inclus dans le prix de cette annonce .Contactez moi pour une étude gratuite .Rendez vous en agence ou à votre domicile .M. DOS SANTOS XAVIER(Numéro supprimé)
Rully
TERRAIN ET MAISONMaison de 145m² habitables plus garage , située à RULLY.M. DOS SANTOS XAVIER(Numéro supprimé)
Rully
TERRAIN ET MAISONMaison à combles aménagés , située à seulement 7 minutes de SENLIS , sur un terrain de 513m² viabilisé et exposé plein sud.Vue dégagée , environnement paisible et verdoyant , à deux pas de l’école , de la boulangerie et des médecins .Cette maison traditionnelle , dispose de 4 chambres avec rangements intégrés , séjour carrelé ,2 salles d’eau équipées ,cellier et garage , packs alarme et domotique , modénatures , corniches , petites tuiles …Plans 100% personnalisables et modifiables .Accompagnement intégral : Financement , étude technique du terrain , gestion administrative .Frais annexes ( raccordements , viabilisation , puisards, enlèvements des terres excédentaires , chemin d’accès )inclus dans le prix de cette annonce .Contactez moi pour une étude gratuite .Rendez vous en agence ou à votre domicile .M. DOS SANTOS XAVIER(Numéro supprimé)
L’actualité immobilière à Villers-Saint-Frambourg-Ognon
27/11/2023
02/11/2023
30/10/2023
20/10/2023
16/10/2023
16/10/2023