Maison à construire à Auxi-le-Château (62390)
Images
Description
VENTE : maison de 5 pièces (90 m²) à Auxi-le-Château
IDÉALEMENT SITUÉE - MAISON 5 PIÈCES NEUVE
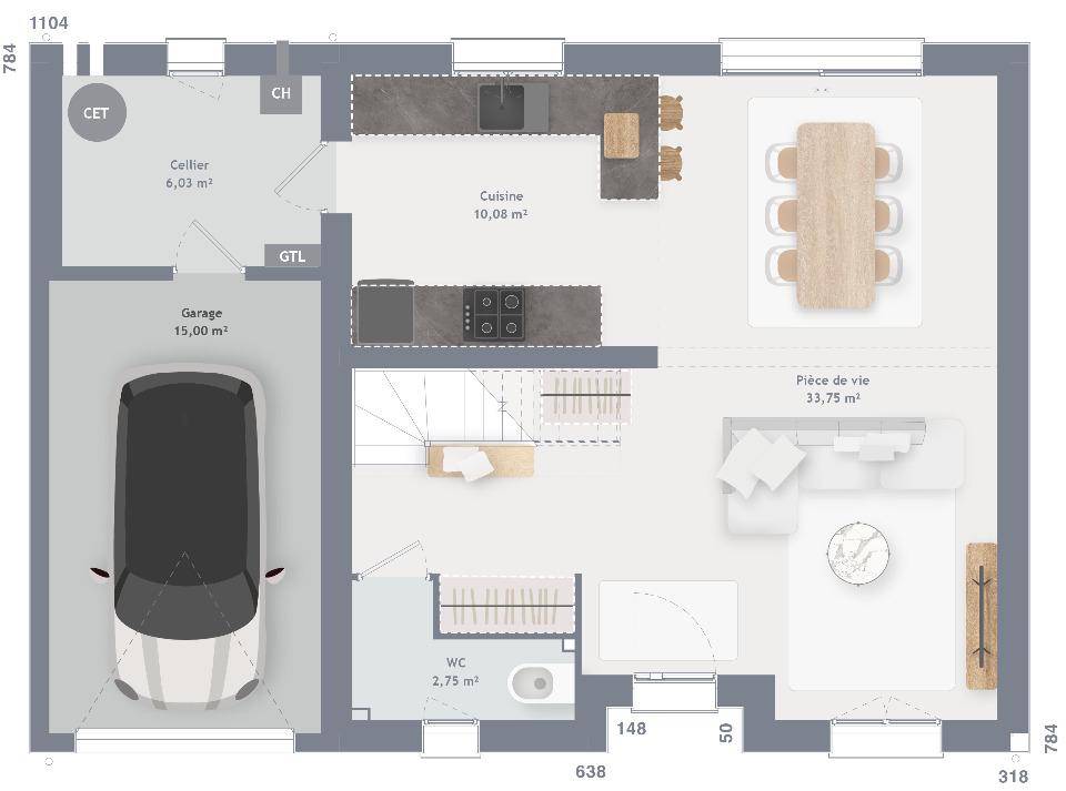
Nous sommes heureux de vous proposer à vendre, idéalement située dans Auxi-le-Château (62390), cette maison de 5 pièces de 90 m² et de 915 m² de terrain. Elle dispose de trois chambres, d'une cuisine et d'une salle de bains.
C'est une maison de 2 niveaux. Elle est neuve.
Cette maison se trouve dans un quartier recherché. Trois établissements scolaires sont implantés à moins de 10 minutes à pied, tout comme, parmi lesquels l'École Primaire Privée Notre-Dame de Lourdes et le Collège du Val d'Authie.
Elle est à vendre pour la somme de 231 000 €.
Contactez Maxime JACQUEMONT (tél : (Numéro supprimé)) pour obtenir de plus amples informations sur la maison ou sur les démarches à suivre. Maisons Les Naturelles Abbeville est là pour vous accompagner dans tous vos projets immobiliers.
Logement susceptibles de vous intéresser
Nous vous proposons de découvrir aussi cette sélection de logements situés à moins de 10km de Auxi-le-Château et qui seraient susceptibles de vous intéresser.
Auxi-le-Château
TERRAINVENTE : terrain de 915 m² à Auxi-le-ChâteauIDÉALEMENT SITUÉÀ Auxi-le-Château (62390), venez découvrir ce terrain de 915 m². Ce terrain, orienté plein sud-ouest, donne sur un espace vert. Il se trouve dans un quartier prisé. Il y a trois établissements scolaires à moins de 10 minutes à pied et, comme l’École Primaire Privée Notre-Dame de Lourdes ou le Collège du Val d’Authie. Ce terrain est à vendre pour la somme de 23 800 €. Contactez Maxime JACQUEMONT (tél : (Numéro supprimé)) pour plus d’informations sur ce terrain, sur les démarches à suivre ou sur les modalités de vente. Donnez vie à vos projets immobiliers avec Maisons Les Naturelles Abbeville.
Auxi-le-Château
TERRAIN ET MAISONVENTE : maison de 5 pièces (101 m²) à Auxi-le-ChâteauIDÉALEMENT SITUÉE – MAISON 5 PIÈCES NEUVENous sommes ravis de vous proposer cette maison de 5 pièces de 101 m² avec vue sur espace vert idéalement située dans Auxi-le-Château (62390). Conçue de plain-pied, elle inclut quatre chambres, une cuisine et une salle de bains.Le terrain de la propriété est de 915 m².C’est une maison de plain-pied. Elle est neuve.Cette maison est située dans un secteur convoité. Trois établissements scolaires sont implantés à moins de 10 minutes à pied, tout comme dont l’École Primaire Privée Notre-Dame de Lourdes et le Collège du Val d’Authie. Elle est proposée à l’achat pour 199 000 €.N’hésitez pas à prendre contact avec Maxime JACQUEMONT ((Numéro supprimé)) pour toute question sur la maison et sur les démarches à suivre. Maisons Les Naturelles Abbeville est là pour vous accompagner dans tous vos projets immobiliers.
Auxi-le-Château
TERRAIN ET MAISONMaison de 6 pièces (114 m²) en vente à Auxi-le-ChâteauIDÉALEMENT SITUÉE – MAISON 6 PIÈCES NEUVEMaisons Les Naturelles Abbeville vous propose en vente, idéalement située dans Auxi-le-Château (62390), cette maison de 6 pièces de 114 m² et de 915 m² de terrain. Elle offre cinq chambres, une cuisine et deux salles de bains.Cette maison comporte 2 niveaux. Elle est neuve.Le bien se trouve dans un secteur convoité. Il y a trois établissements scolaires à moins de 10 minutes à pied et, comme l’École Primaire Privée Notre-Dame de Lourdes ou le Collège du Val d’AuthieIl est proposé à l’achat pour 332 000 €.Contactez notre agence (JACQUEMONT Maxime : (Numéro supprimé)) pour toute information sur la maison. Concrétisez vos projets immobiliers avec Maisons Les Naturelles Abbeville.
Auxi-le-Château
TERRAIN ET MAISONAuxi-le-Château : maison T4 (94 m²) à vendreIDÉALEMENT SITUÉE – MAISON 4 PIÈCES NEUVEEn vente : votre agence Maisons Les Naturelles Abbeville est heureuse de vous proposer, idéalement située dans Auxi-le-Château (62390), cette maison de 4 pièces de plain-pied de 94 m² et de 915 m² de terrain. Conçue de plain-pied, elle comporte trois chambres, une cuisine et deux salles de bains.Cette maison est neuve.La maison se trouve dans un secteur recherché. Il y a trois établissements scolaires à moins de 10 minutes à pied et, parmi lesquels l’École Primaire Privée Notre-Dame de Lourdes et le Collège du Val d’Authie. Son prix de vente est de 241 300 €.Prenez contact avec Maxime JACQUEMONT ((Numéro supprimé)) pour toute question sur le bien, sur les démarches à suivre ou sur les modalités de vente. Donnez vie à vos projets immobiliers avec Maisons Les Naturelles Abbeville.
Auxi-le-Château
TERRAIN ET MAISONVENTE : maison de 5 pièces (90 m²) à Auxi-le-ChâteauIDÉALEMENT SITUÉE – MAISON 5 PIÈCES NEUVENous sommes heureux de vous proposer à vendre, idéalement située dans Auxi-le-Château (62390), cette maison de 5 pièces de 90 m² et de 915 m² de terrain. Elle dispose de trois chambres, d’une cuisine et d’une salle de bains.C’est une maison de 2 niveaux. Elle est neuve.Cette maison se trouve dans un quartier recherché. Trois établissements scolaires sont implantés à moins de 10 minutes à pied, tout comme, parmi lesquels l’École Primaire Privée Notre-Dame de Lourdes et le Collège du Val d’Authie. Elle est à vendre pour la somme de 231 000 €.Contactez Maxime JACQUEMONT (tél : (Numéro supprimé)) pour obtenir de plus amples informations sur la maison ou sur les démarches à suivre. Maisons Les Naturelles Abbeville est là pour vous accompagner dans tous vos projets immobiliers.
Auxi-le-Château
TERRAINDans un environnement paisible et verdoyant, venez découvrir ce beau terrain situé à Auxi-le-Château. o Superficie totale : 4 071 m² o Partie à bâtir : environ 600 m² o Façade de 27 mètresLe terrain n’est ni viabilisé ni borné, mais offre de belles possibilités pour vos futurs projets.Un emplacement idéal pour ceux qui recherchent le calme, la nature, et un beau potentiel d’aménagement.Vous souhaitez en savoir plus ? N’hésitez pas à me contacter. Les honoraires sont à la charge du vendeur.Les informations sur les risques auxquels ce bien est exposé sont disponibles sur le site Géorisques : www. georisques. gouv. fr.Contactez Sylviane HUAUMÉ Entrepreneur Individuel, Agent commercial OptimHome (RSAC N(Numéro supprimé) Greffe de ARRAS) (Numéro supprimé) (réf. 582684 )
Boffles
TERRAINBelle opportunité à saisir !!Je vous propose ce beau terrain plat constructible de 1620 m2 avec une belle façade de 27 m, situé sur l’axe Auxi-le-Château et Frévent.Dans un secteur calme, il est idéal pour une construction individuelleLibre constructeur et non viabilisé.Contactez-moi au (Numéro supprimé), je me ferai un plaisir de vous le faire découvrir. Taxe foncière : EUR . Honoraires charge vendeur. Contactez votre conseiller FIJ immobilier : Madame Guéant Sandrine. Tél : (Numéro supprimé). Mail : (Email supprimé). Agent commercial immatriculé au RSAC de : ARRAS sous le numéro : 794 854 661. Spécialiste sur le secteur de : ERVILLERS et ses environs.
L’actualité immobilière à Auxi-le-Château
27/11/2023
02/11/2023
30/10/2023
20/10/2023
16/10/2023
16/10/2023