Maison à construire à Bailleul-Sir-Berthoult (62580)
Images
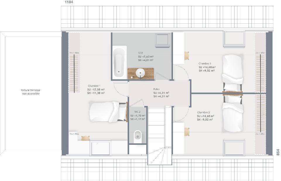
Description
Maison T6 (115 m²) à vendre à Bailleul-Sir-Berthoult
PROCHE ARRAS - MAISON 6 PIÈCES NEUVE
En vente à quelques kilomètres de la Belgique et à 17 km de Douai, nous vous proposons à Bailleul-Sir-Berthoult (62580), cette maison de 6 pièces de 115 m². Son intérieur est composé de quatre chambres, d'une cuisine et de deux salles de bains.
Le terrain de la maison s'étend sur 454 m².
Cette maison comporte 2 niveaux. Elle est neuve.
On trouve l'École Primaire Lucie Aubrac à moins de 10 minutes à pied. Niveau transports, il y a la gare Bailleul-Sir-Berthoult dans les alentours. Les autoroutes A1, A26 et A211 et les nationales N17 et N25 sont accessibles à moins de 10 km. On trouve un tennis, une bibliothèque, une boulangerie, un commerce et une boucherie-charcuterie à quelques minutes à peine.
Elle est proposée à l'achat pour 264 854 €.
Contactez notre agence (DEDOURGES Vincent : (Numéro supprimé)) pour tout renseignement sur cette maison, sur les démarches à suivre ou sur les modalités de vente. Maisons France Confort Arras vous accompagne à toutes les étapes de l'achat et dans tous vos projets immobiliers.
Logement susceptibles de vous intéresser
Nous vous proposons de découvrir aussi cette sélection de logements situés à moins de 10km de Bailleul-Sir-Berthoult et qui seraient susceptibles de vous intéresser.
Bois-Bernard
TERRAINVENTE : terrain de 589 m² à Bois-BernardEMPLACEMENT PRIVILÉGIÉ À Bois-Bernard (62320) à moins de 36 km de la Belgique et à deux pas de Lille, imaginez la maison de vos rêves sur ce terrain de 589 m². Il donne sur un jardin. Dans un quartier prisé, le terrain bénéficiant d’un emplacement d’exception est proche des écoles et des commerces. Il y a l’École Primaire Condorcet à moins de 10 minutes à pied. Côté transports en commun, on trouve 16 gares à moins de 10 minutes en voiture. Quatre autoroutes et la nationale N17 sont accessibles à moins de 10 km. Il y a un tennis et une bibliothèque dans les environs.Il est proposé à l’achat pour 88 000 €. N’hésitez pas à prendre contact avec notre agence (Alexis BAVENCOFFE : (Numéro supprimé)) pour toute question sur ce terrain ou sur les modalités de vente.
Bois-Bernard
TERRAIN ET MAISONVENTE d’une maison de 4 pièces (90 m²) à Bois-BernardEMPLACEMENT PRIVILÉGIÉ – MAISON 4 PIÈCES NEUVEÀ vendre : située à moins de 36 km de la Belgique et à quelques kilomètres de Lille, nous vous proposons, bénéficiant d’un emplacement d’exception dans Bois-Bernard (62320), cette maison de 4 pièces de 90 m² et de 589 m² de terrain avec vue sur jardin.C’est une maison de plain-pied. Conçue de plain-pied, elle inclut trois chambres, une cuisine et une salle de bains. Cette maison est neuve.Elle est située dans un quartier attractif. L’École Primaire Condorcet est implantée à moins de 10 minutes à pied. Niveau transports, il y a 16 gares à moins de 10 minutes en voiture. Quatre autoroutes et la nationale N17 sont accessibles à moins de 10 km. On trouve un tennis et une bibliothèque à quelques minutes du logement.Son prix de vente est de 254 963 €.Prenez contact avec Alexis BAVENCOFFE ((Numéro supprimé)) pour plus d’informations sur la maison, sur les démarches à suivre ou sur les modalités de vente.
Bois-Bernard
TERRAIN ET MAISONBois-Bernard : maison T4 (95 m²) à vendreEMPLACEMENT PRIVILÉGIÉ – MAISON 4 PIÈCES NEUVEÀ 36 km de la frontière belge et à deux pas de Lille, en vente bénéficiant d’un emplacement privilégié dans Bois-Bernard (62320), Maisons France Confort Arras vous propose cette maison de 4 pièces de 95 m² et de 589 m² de terrain. Son intérieur offre trois chambres, une cuisine et une salle de bains.Cette maison comporte 2 niveaux. Elle est neuve.Elle se trouve dans un quartier convoité. L’École Primaire Condorcet est implantée à moins de 10 minutes à pied. Côté transports en commun, on trouve 16 gares à moins de 10 minutes en voiture. Quatre autoroutes et la nationale N17 sont accessibles à moins de 10 km. Il y a un tennis et une bibliothèque dans les environs.Elle est proposée à l’achat pour 265 242 €.Contactez Alexis BAVENCOFFE (tél : (Numéro supprimé)) pour toute information sur la maison. Maisons France Confort Arras est là pour vous accompagner dans toutes vos démarches.
Bois-Bernard
TERRAIN ET MAISONBois-Bernard : maison F6 (160 m²) en venteEMPLACEMENT PRIVILÉGIÉ – MAISON 6 PIÈCES NEUVEÀ vendre à 36 km de la frontière belge et à 30 km de Lille, nous vous proposons cette maison de 6 pièces de 160 m² et de 589 m² de terrain bénéficiant d’un emplacement d’exception dans Bois-Bernard (62320). Elle dispose de cinq chambres, d’une cuisine et de deux salles de bains.C’est une maison de 2 niveaux. Elle est neuve.Elle se trouve dans un quartier convoité. L’École Primaire Condorcet est implantée à moins de 10 minutes à pied. Niveau transports en commun, on trouve 16 gares à moins de 10 minutes en voiture. Quatre autoroutes et la nationale N17 sont accessibles à moins de 10 km. Il y a un tennis et une bibliothèque dans les environs.Elle est à vendre pour la somme de 392 521 €.Prenez contact avec notre agence (BAVENCOFFE Alexis : (Numéro supprimé)) pour toute question sur cette maison.
Bois-Bernard
TERRAIN ET MAISONVENTE d’une maison de 5 pièces (100 m²) à Bois-BernardEMPLACEMENT PRIVILÉGIÉ – MAISON 5 PIÈCES NEUVEÀ vendre à moins de 36 km de la Belgique et à quelques kilomètres de Lille, Maisons France Confort Arras vous présente cette maison de 5 pièces de 100 m² bénéficiant d’un emplacement d’exception dans Bois-Bernard (62320). Son intérieur compte quatre chambres, une cuisine et une salle de bains.Le terrain de cette maison s’étend sur 589 m².Cette maison comporte 2 niveaux. Elle est neuve.Elle se trouve dans un quartier attractif. L’École Primaire Condorcet est implantée à moins de 10 minutes à pied. Niveau transports, il y a 16 gares à moins de 10 minutes en voiture. Quatre autoroutes et la nationale N17 sont accessibles à moins de 10 km. On trouve un tennis et une bibliothèque à proximité de la maison.Elle est proposée à l’achat pour 282 994 €.N’hésitez pas à prendre contact avec notre agence (BAVENCOFFE Alexis : (Numéro supprimé)) pour obtenir de plus amples informations sur la maison. Maisons France Confort Arras est là pour vous accompagner dans tous vos projets immobiliers.
Bois-Bernard
TERRAIN ET MAISONBois-Bernard : maison F5 (104 m²) à vendreEMPLACEMENT PRIVILÉGIÉ – MAISON 5 PIÈCES NEUVEEn vente à moins de 36 km de la Belgique et à quelques kilomètres de Lille, venez découvrir, bénéficiant d’un emplacement privilégié dans Bois-Bernard (62320), cette maison de 5 pièces de plain-pied de 104 m². Conçue de plain-pied, elle dispose de quatre chambres, d’une cuisine et de deux salles de bains.Le terrain de la maison s’étend sur 589 m².Cette maison est neuve.Elle se trouve dans un quartier recherché. Il y a l’École Primaire Condorcet à moins de 10 minutes à pied. Niveau transports en commun, on trouve 16 gares à moins de 10 minutes en voiture. Quatre autoroutes et la nationale N17 sont accessibles à moins de 10 km. Il y a un tennis et une bibliothèque dans les environs.Son prix de vente est de 299 635 €.Contactez notre agence (Alexis BAVENCOFFE : (Numéro supprimé)) pour obtenir de plus amples informations sur la maison ou sur les démarches à suivre. Maisons France Confort Arras vous accompagne à toutes les étapes de l’achat et dans tous vos projets immobiliers.
Oppy
TERRAINOppy : terrain de 430 m² à vendreSituation idéale, vue sur les champs dans secteur calmeÀ Oppy (62580) est à deux pas d’Arras, Henin Beaumont et Douai, donnez vie à votre projet de construction sur ce terrain de 430 m². Ce terrain, avec vue dégagée, bénéficie d’une exposition sud. Dans un secteur attractif, le terrain idéalement situé est proche des commerces et des écoles (RPI). Côté transports en commun, on trouve 1 gare à moins de 10 minutes en voiture. Quatre autoroutes et la nationale N17 sont accessibles à moins de 10 km. Il y a un commerce à proximité du terrain.Son prix de vente est de 80 025 €. Prenez contact avec notre agence (DOLLET Carole : (Numéro supprimé)) pour obtenir de plus amples informations sur ce terrain ou sur les modalités de vente. Maisons France Confort Hénin-Beaumont est là pour vous accompagner dans tous vos projets immobiliers.
Givenchy-en-Gohelle
TERRAIN ET MAISONA construire à Givenchy-en-Gohelle dans quartier recherché -Maison contemporaine à OSSATURE BOIS, nous vous proposons cette maison à OSSATURE BOIS de 114 m² et de 508 m² de terrain.C’est une maison de 2 niveaux. Son intérieur propose quatre chambres dont une au rez de chaussée, une pièce de vie ouverte est lumineuse et une salle de bains, entrée avec vestiaire et WC, cellier et garageConstruction économe, délais de construction réduitsElle est située dans un secteur prisé. Il y a l’École Élémentaire et l’École Maternelle à moins de 10 minutes à pied. Niveau transports en commun, on trouve 1 gare à moins de 10 minutes en voiture. Les autoroutes A211, A26 et A21 et les nationales N17 et N47 sont accessibles rapidement.Son prix de vente est de 441 312 €.N’hésitez pas à prendre contact avec Carole DOLLET (tél : (Numéro supprimé)) pour obtenir de plus amples informations sur cette propriété. Maisons France Confort Hénin-Beaumont vous accompagne dans toutes vos démarches et à toutes les étapes de l’achat.
Oppy
TERRAIN ET MAISONConstruisez la maison de vos rêves sur la commune de OPPY (62580)Idéalement située avec vue sur les champs, notre agence Maisons France Confort Hénin-Beaumont est heureuse de vous proposer à Oppy (62580) cette maison de plain-pied de 100 m² + garage et de 430 m² de terrain.Elle est composée d’une pièce de vie de 40m2 lumineuse, d’une entrée avec WC et vestiaire, cellier, 3 chambres et une salle de bainsCette maison est à construire, terrain déjà clôturéCette maison se trouve dans un quartier recherché.Côté transports, on trouve 1 gare à moins de 10 minutes en voiture. Quatre autoroutes (dont l’autoroute A1)et la nationale N17 sont accessibles à moins de 5 mn.Elle est à vendre pour la somme de 246 424 €.Prenez contact avec notre agence (Carole DOLLET : (Numéro supprimé)) pour toute question sur la maison ou sur les démarches à suivre. Maisons France Confort Hénin-Beaumont vous accompagne à toutes les étapes de votre projet et dans tous vos projets immobiliers.
L’actualité immobilière à Bailleul-Sir-Berthoult
27/11/2023
02/11/2023
30/10/2023
20/10/2023
16/10/2023
16/10/2023