Maison à construire à Ervillers (62121)
Images
Description
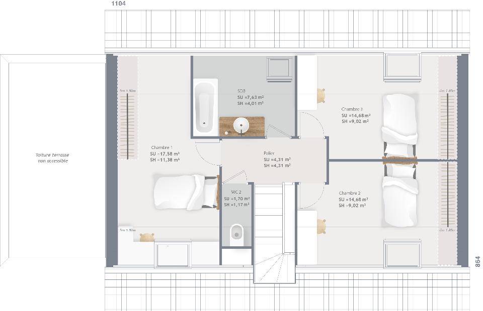
VENTE d'une maison de 6 pièces (115 m²) à Ervillers
EMPLACEMENT PRIVILÉGIÉ - MAISON 6 PIÈCES NEUVE
À vendre à deux pas d'ARRAS, nous sommes heureux de vous proposer, bénéficiant d'un emplacement privilégié dans Ervillers (62121), cette maison de 6 pièces de 115 m² et de 892 m² de terrain. Son intérieur se divise en quatre chambres, une cuisine et deux salles de bains.
Il s'agit d'une maison de 2 niveaux. Elle est neuve.
La maison se trouve dans un quartier recherché. Il y a l'École Maternelle rpi 37 à moins de 10 minutes à pied. Niveau transports, on trouve quatre gares à moins de 10 minutes en voiture. On trouve un accès à l'autoroute A1 à 7 km. Il y a une boucherie-charcuterie à proximité.
Elle est à vendre pour la somme de 274 463 €.
Prenez contact avec notre agence (DEDOURGES Vincent : (Numéro supprimé)) pour toute information sur la maison.
Logement susceptibles de vous intéresser
Nous vous proposons de découvrir aussi cette sélection de logements situés à moins de 10km de Ervillers et qui seraient susceptibles de vous intéresser.
Ervillers
TERRAINErvillers : terrain de 892 m² en venteEMPLACEMENT PRIVILÉGIÉ – VUE DÉGAGÉEGrand terrain à vendre à deux pas d’ARRAS 15 km. De 892 m², ce terrain se situe bénéficiant d’un emplacement privilégié dans Ervillers (62121). Il profite d’une vue dégagée. Ce terrain se situe dans un secteur recherché. Il y a l’École Maternelle rpi 37 à moins de 10 minutes à pied. Niveau transports en commun, on trouve quatre gares à moins de 10 minutes en voiture. Il y a un accès à l’autoroute A1 à 7 km. Il y a une boucherie-charcuterie à quelques minutes du terrain.Il est à vendre pour la somme de 74 690 €. Contactez Vincent DEDOURGES (tél : (Numéro supprimé)) pour toute information sur le terrain. Maisons France Confort Arras vous accompagne à toutes les étapes de votre projet et dans toutes vos démarches.
Ervillers
TERRAIN ET MAISONMaison de 5 pièces (113 m²) en vente à ErvillersNOUVELLE GAMME BOIS MAISONS FRANCE CONFORT!Cette maison présente des atouts majeur : Ecologique et économique grâce à son isolation renforcée ainsi que sa rapidité de construction. EMPLACEMENT PRIVILÉGIÉ – VUE DÉGAGÉEÀ deux pas d’ARRAS, votre agence Maisons France Confort Arras est ravie de vous présenter en vente, bénéficiant d’un emplacement d’exception dans Ervillers (62121), cette maison de 5 pièces de 113 m² avec vue dégagée. Elle est composée de quatre chambres, d’une cuisine et de deux salles de bains.Le terrain de cette maison de plain-pied s’étend sur 892 m².La maison est neuve.La maison est située dans un secteur convoité. On trouve l’École Maternelle rpi 37 à moins de 10 minutes à pied. Côté transports, il y a quatre gares à moins de 10 minutes en voiture. On trouve un accès à l’autoroute A1 à 7 km. On trouve une boucherie-charcuterie à quelques minutes à peine.Elle est à vendre pour la somme de 325 613 €.Contactez Vincent DEDOURGES (tél : (Numéro supprimé)) pour plus d’informations sur le bien, sur les modalités de vente ou sur les démarches à suivre. Donnez vie à vos projets immobiliers avec Maisons France Confort Arras.
Ervillers
TERRAIN ET MAISONMaison de 6 pièces (114 m²) en vente à ErvillersNOUVELLE GAMME BOIS MAISONS FRANCE CONFORT!Cette maison présente des atouts majeur : Ecologique et économique grâce à son isolation renforcée ainsi que sa rapidité de construction. EMPLACEMENT PRIVILÉGIÉ – MAISON 6 PIÈCES NEUVEÀ 15 km d’ARRAS, nous vous proposons à vendre, bénéficiant d’un emplacement d’exception dans Ervillers (62121), cette maison de 6 pièces de 114 m².Cette maison comporte 2 niveaux. Son intérieur est composé de cinq chambres, d’une cuisine et de deux salles de bains. La maison est neuve.Le terrain du bien est de 892 m².Cette maison se situe dans un quartier prisé. L’École Maternelle rpi 37 se trouve à moins de 10 minutes à pied. Niveau transports, il y a quatre gares à moins de 10 minutes en voiture. Il y a un accès à l’autoroute A1 à 7 km. On trouve une boucherie-charcuterie dans les environs.Son prix de vente est de 404 159 €.N’hésitez pas à prendre contact avec Vincent DEDOURGES (tél : (Numéro supprimé)) pour toute information sur la maison, sur les modalités de vente et sur les démarches à suivre.
Ervillers
TERRAIN ET MAISONMaison F6 (135 m²) en vente à ErvillersEMPLACEMENT PRIVILÉGIÉ – MAISON 6 PIÈCES NEUVEEn vente à deux pas d’ARRAS, Maisons France Confort Arras vous propose, bénéficiant d’un emplacement privilégié dans Ervillers (62121), cette maison de 6 pièces de plain-pied de 135 m² et de 892 m² de terrain.Elle compte quatre chambres, une cuisine et deux salles de bains. La maison est neuve.La maison se trouve dans un secteur attractif. Il y a l’École Maternelle rpi 37 à moins de 10 minutes à pied. Niveau transports, on trouve quatre gares à moins de 10 minutes en voiture. Il y a un accès à l’autoroute A1 à 7 km. Il y a une boucherie-charcuterie dans les environs.Elle est proposée à l’achat pour 338 106 €.N’hésitez pas à prendre contact avec notre agence (Vincent DEDOURGES : (Numéro supprimé)) pour obtenir de plus amples informations sur la maison. Maisons France Confort Arras est là pour vous accompagner à toutes les étapes de votre projet.
Ervillers
TERRAIN ET MAISONErvillers : maison de 3 pièces (100 m²) en venteEMPLACEMENT PRIVILÉGIÉ – MAISON 3 PIÈCES NEUVEÀ 15 km d’ARRAS, votre agence Maisons France Confort Arras est ravie de vous proposer cette maison de 3 pièces de plain-pied de 100 m² et de 892 m² de terrain en vente, bénéficiant d’un emplacement privilégié dans Ervillers (62121).Elle compte trois chambres, une cuisine et une salle de bains. La maison est neuve.Cette maison est située dans un secteur recherché. L’École Maternelle rpi 37 se trouve à moins de 10 minutes à pied. Niveau transports, il y a quatre gares à moins de 10 minutes en voiture. On trouve un accès à l’autoroute A1 à 7 km. On trouve une boucherie-charcuterie dans les environs.Son prix de vente est de 259 630 €.Contactez Vincent DEDOURGES ((Numéro supprimé)) pour plus de renseignements sur la maison ou sur les modalités de vente. Maisons France Confort Arras vous accompagne à toutes les étapes de l’achat et dans tous vos projets immobiliers.
Ervillers
TERRAIN ET MAISONMaison de 5 pièces (99 m²) en vente à ErvillersEMPLACEMENT PRIVILÉGIÉ – MAISON 5 PIÈCES NEUVEEn vente : à 15 km d’ARRAS ayez le coup de coeur pour cette maison de 5 pièces de 99 m² bénéficiant d’un emplacement d’exception dans Ervillers (62121). Son intérieur compte trois chambres, une cuisine et une salle de bains.Le terrain de la propriété s’étend sur 892 m².C’est une maison de 2 niveaux. Elle est neuve.La maison se situe dans un quartier attractif. L’École Maternelle rpi 37 est implantée à moins de 10 minutes à pied. Côté transports, on trouve quatre gares à moins de 10 minutes en voiture. L’autoroute A1 est accessible à 7 km. Il y a une boucherie-charcuterie dans les environs.Elle est proposée à l’achat pour 255 109 €.Prenez contact avec notre agence (Vincent DEDOURGES : (Numéro supprimé)) pour toute question sur la maison ou sur les modalités de vente. Concrétisez vos projets immobiliers avec Maisons France Confort Arras.
Ervillers
TERRAIN ET MAISONVENTE d’une maison de 6 pièces (115 m²) à ErvillersEMPLACEMENT PRIVILÉGIÉ – MAISON 6 PIÈCES NEUVEÀ vendre à deux pas d’ARRAS, nous sommes heureux de vous proposer, bénéficiant d’un emplacement privilégié dans Ervillers (62121), cette maison de 6 pièces de 115 m² et de 892 m² de terrain. Son intérieur se divise en quatre chambres, une cuisine et deux salles de bains.Il s’agit d’une maison de 2 niveaux. Elle est neuve.La maison se trouve dans un quartier recherché. Il y a l’École Maternelle rpi 37 à moins de 10 minutes à pied. Niveau transports, on trouve quatre gares à moins de 10 minutes en voiture. On trouve un accès à l’autoroute A1 à 7 km. Il y a une boucherie-charcuterie à proximité.Elle est à vendre pour la somme de 274 463 €.Prenez contact avec notre agence (DEDOURGES Vincent : (Numéro supprimé)) pour toute information sur la maison.
Ervillers
TERRAIN ET MAISONVENTE d’une maison de 8 pièces (145 m²) à ErvillersEMPLACEMENT PRIVILÉGIÉ – MAISON 8 PIÈCES NEUVEEn vente à deux pas d’Arras, bénéficiant d’un emplacement privilégié dans Ervillers (62121), découvrez cette maison de 8 pièces de 145 m².Cette maison comporte 2 niveaux. Elle se divise en six chambres, une cuisine et deux salles de bains. Cette maison est neuve.Le terrain du bien s’étend sur 892 m².Cette maison se trouve dans un quartier attractif. L’École Maternelle rpi 37 est implantée à moins de 10 minutes à pied. Côté transports en commun, on trouve quatre gares à moins de 10 minutes en voiture. L’autoroute A1 est accessible à 7 km. Il y a une boucherie-charcuterie dans les environs.Elle est à vendre pour la somme de 327 129 €.Prenez contact avec Vincent DEDOURGES (tél : (Numéro supprimé)) pour tout renseignement sur la maison, sur les démarches à suivre et sur les modalités de vente.
Ervillers
TERRAIN ET MAISONVENTE d’une maison T6 (125 m²) à ErvillersEMPLACEMENT PRIVILÉGIÉ – MAISON 6 PIÈCES NEUVEÀ vendre : à deux pas d’ARRAS, nous vous proposons, bénéficiant d’un emplacement d’exception dans Ervillers (62121), cette maison de 6 pièces de 125 m² et de 892 m² de terrain.Cette maison possède 2 niveaux. Son intérieur compte quatre chambres, une cuisine et une salle de bains. Cette maison est neuve.La maison est située dans un secteur attractif. Il y a l’École Maternelle rpi 37 à moins de 10 minutes à pied. Côté transports, on trouve quatre gares à moins de 10 minutes en voiture. L’autoroute A1 est accessible à 7 km. Il y a une boucherie-charcuterie dans les environs.Elle est proposée à l’achat pour 307 563 €.Contactez Vincent DEDOURGES ((Numéro supprimé)) pour plus de renseignements sur la maison, sur les modalités de vente ou sur les démarches à suivre. Concrétisez vos projets immobiliers avec Maisons France Confort Arras.
L’actualité immobilière à Ervillers
27/11/2023
02/11/2023
30/10/2023
20/10/2023
16/10/2023
16/10/2023