Maison neuve à Évin-Malmaison (62141)
Images
Description
Évin-Malmaison : maison de 5 pièces (90 m²) à vendre
IDÉALEMENT SITUÉE - MAISON 5 PIÈCES NEUVE
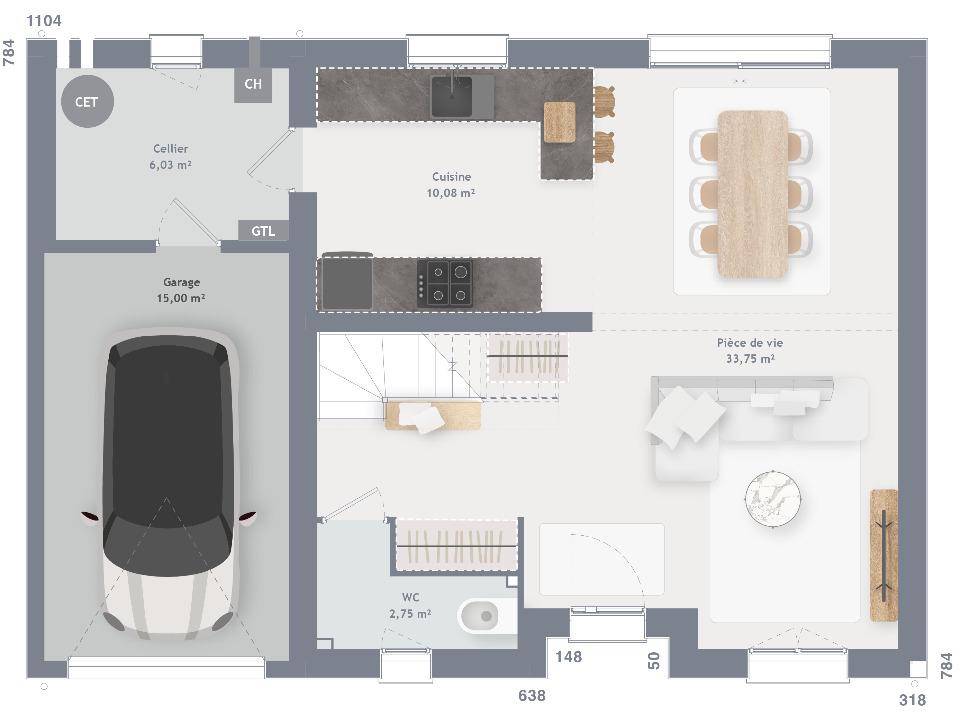
En vente : située à quelques kilomètres de la Belgique et à 22 km de Lille, Maisons France Confort Hénin-Beaumont vous présente, idéalement située dans Évin-Malmaison (62141), cette maison de 5 pièces de 90 m² avec vue sur jardin.
Il s'agit d'une maison de 2 niveaux. Elle dispose de quatre chambres, d'une cuisine et d'une salle de bains. Cette maison est neuve.
Le terrain du bien est de 267 m².
Elle est située dans un quartier convoité. L'École Élémentaire Méresse-Ségard, l'École Élémentaire Léon Blum et l'École Maternelle Françoise Dolto sont implantées à moins de 10 minutes à pied. Côté transports, il y a neuf gares à moins de 10 minutes en voiture. Les autoroutes A21 et A1 sont accessibles à moins de 4 km. On trouve un tennis, une boulangerie, un commerce, trois épiceries, une supérette et une poissonnerie à proximité de la maison.
Elle est à vendre pour la somme de 249 000 €.
Contactez notre agence (Sylvaine CHARLET : (Numéro supprimé)) pour plus de renseignements sur cette maison ou sur les démarches à suivre.
Logement susceptibles de vous intéresser
Nous vous proposons de découvrir aussi cette sélection de logements situés à moins de 10km de Évin-Malmaison et qui seraient susceptibles de vous intéresser.
Waziers
TERRAINWaziers : terrain de 500 m² à vendreIDÉALEMENT SITUÉ – VUE SANS VIS-À-VISÀ Waziers (59119) à moins de 25 km de la Belgique et à 28 km de Lille, projetez la maison de vos rêves sur ce terrain de 500 m². Il profite d’une vue sans vis-à-vis et bénéficie d’une exposition sud. Il se trouve dans un secteur convoité. Il y a des établissements scolaires (de la maternelle au lycée) à moins de 10 minutes à pied, tout comme une structure d’accueil pour les tout-petits. Niveau transports en commun, on trouve neuf gares à moins de 10 minutes en voiture. Les autoroutes A21 et A1 sont accessibles à moins de 10 km. Il y a un bassin de natation, une bibliothèque, un tennis, des commerces, deux supermarchés, une boulangerie, des boucheries-charcuteries et trois épiceries dans les environs.Il est à vendre pour la somme de 48 000 €. Prenez contact avec notre agence (Mathilde GROS : (Numéro supprimé)) pour toute question sur ce terrain, sur les démarches à suivre ou sur les modalités de vente. Maisons France Confort Valenciennes vous accompagne à toutes les étapes de l’achat et dans tous vos projets immobiliers.
Roost-Warendin
TERRAINRoost-Warendin : terrain de 550 m² à vendreIDÉALEMENT SITUÉ – VUE SANS VIS-À-VISÀ Roost-Warendin (59286) proche de la Belgique et à 25 km de Lille, découvrez ce terrain de 550 m². Il profite d’une vue sans vis-à-vis et bénéficie d’une exposition sud. Dans un quartier convoité, le terrain idéalement situé est proche des écoles et des commerces. Il y a l’École Primaire du Centre-Salengro et le Collège Docteur Ernest Schaffner à moins de 10 minutes à pied. Niveau transports, on trouve neuf gares à moins de 10 minutes en voiture. Les autoroutes A21 et A1 sont accessibles à moins de 8 km. Il y a quatre commerces, trois boulangeries, un supermarché, une boucherie-charcuterie et un bureau de poste à proximité.Son prix de vente est de 73 000 €. N’hésitez pas à prendre contact avec notre agence (Mathilde GROS : (Numéro supprimé)) pour tout renseignement sur ce terrain ou sur les modalités de vente. Maisons France Confort Valenciennes vous accompagne à toutes les étapes de votre projet et dans toutes vos démarches.
Évin-Malmaison
TERRAINVENTE : terrain de 1 700 m² à Évin-MalmaisonIDÉALEMENT SITUÉ – VUE SANS VIS-À-VISÀ Évin-Malmaison (62141) en vente à 30 km de la frontière belge et à deux pas de Lille, découvrez ce terrain de 1 700 m². Ce terrain, avec une exposition sud, profite d’une vue sans vis-à-vis. Dans un quartier attractif, le terrain idéalement situé est proche des écoles et des commerces. Il y a l’École Élémentaire Méresse-Ségard, l’École Élémentaire Léon Blum et l’École Maternelle Françoise Dolto à moins de 10 minutes à pied. Niveau transports en commun, on trouve neuf gares à moins de 10 minutes en voiture. Les autoroutes A21 et A1 sont accessibles à moins de 4 km. Il y a un tennis, une boulangerie, un commerce, une supérette, un bureau de poste et une poissonnerie dans les environs.Son prix de vente est de 62 500 €. Contactez Mathilde GROS ((Numéro supprimé)) pour plus d’informations sur ce terrain, sur les démarches à suivre ou sur les modalités de vente.
Libercourt
TERRAINVENTE d’un terrain de 480 m² à LibercourtEMPLACEMENT PRIVILÉGIÉ – VUE SANS VIS-À-VISProche de la Belgique et à 17 km de Lille à Libercourt (62820), terrain de 480 m². Ce terrain, sans vis-à-vis, est exposé au sud. Dans un secteur attractif, le terrain bénéficiant d’un emplacement d’exception est proche des écoles et des commerces. Cinq établissements scolaires sont implantés à moins de 10 minutes à pied, tout comme une crèche. Niveau transports en commun, il y a la gare Libercourt dans un rayon de 1 km. Les autoroutes A1 et A21 sont accessibles à moins de 6 km. On trouve une bibliothèque, un bassin de natation, un tennis, trois boulangeries, trois supermarchés, des commerces, une épicerie et une boucherie-charcuterie dans les environs. Ne manquez pas le marché Rue Saint Guislain chaque jeudi matin.Son prix de vente est de 54 000 €. Prenez contact avec Mathilde GROS (tél : (Numéro supprimé)) pour obtenir de plus amples renseignements sur ce terrain, sur les modalités de vente ou sur les démarches à suivre. Maisons France Confort Valenciennes vous accompagne à toutes les étapes de l’achat et dans tous vos projets immobiliers.
Waziers
TERRAIN ET MAISONWaziers : maison F3 (90 m²) à vendreIDÉALEMENT SITUÉE – MAISON 3 PIÈCES NEUVEProche de la Belgique et à deux pas de Lille, nous vous présentons en vente, idéalement située dans Waziers (59119), cette maison de 3 pièces de plain-pied de 90 m² et de 500 m² de terrain.Conçue de plain-pied, elle est composée de trois chambres, d’une cuisine et d’une salle de bains. La maison est neuve.Elle se trouve dans un secteur attractif. Des écoles du primaire et du secondaire sont implantées à moins de 10 minutes à pied, tout comme une crèche. Niveau transports en commun, il y a neuf gares à moins de 10 minutes en voiture. Les autoroutes A21 et A1 sont accessibles à moins de 10 km. On trouve un bassin de natation, une bibliothèque, un tennis, des commerces, deux supermarchés, une boulangerie, une supérette et des boucheries-charcuteries à quelques minutes à peine.Son prix de vente est de 189 000 €.Contactez notre agence (GROS Mathilde : (Numéro supprimé)) pour plus de renseignements sur cette maison, sur les modalités de vente ou sur les démarches à suivre. Maisons France Confort Valenciennes est là pour vous accompagner dans tous vos projets immobiliers.
Waziers
TERRAIN ET MAISONWaziers : maison de 3 pièces (93 m²) en venteIDÉALEMENT SITUÉE – MAISON 3 PIÈCES NEUVEÀ vendre : à moins de 25 km de la Belgique et à 28 km de Lille, nous sommes ravis de vous proposer, idéalement située dans Waziers (59119), cette maison de 3 pièces de plain-pied de 93 m². Conçue de plain-pied, elle est composée de trois chambres, d’une cuisine et d’une salle de bains.Le terrain du bien s’étend sur 500 m².La maison est neuve.Elle se trouve dans un secteur attractif. Des écoles de tous types (de la maternelle au lycée) sont implantées à moins de 10 minutes à pied, tout comme une structure d’accueil pour la petite enfance. Niveau transports en commun, il y a neuf gares à moins de 10 minutes en voiture. Les autoroutes A21 et A1 sont accessibles à moins de 10 km. On trouve un bassin de natation, une bibliothèque, un tennis, des commerces, deux supermarchés, une boulangerie, trois épiceries et un bureau de poste à quelques minutes de la maison.Son prix de vente est de 203 000 €.Contactez notre agence (GROS Mathilde : (Numéro supprimé)) pour plus d’informations sur cette maison. Donnez vie à vos projets immobiliers avec Maisons France Confort Valenciennes.
Roost-Warendin
TERRAIN ET MAISONVENTE d’une maison T3 (90 m²) à Roost-WarendinIDÉALEMENT SITUÉE – MAISON 3 PIÈCES NEUVEÀ vendre à moins de 24 km de la Belgique et à deux pas de Lille, Maisons France Confort Valenciennes vous présente cette maison de 3 pièces de 90 m² idéalement située dans Roost-Warendin (59286).Cette maison possède 2 niveaux. Son intérieur se divise en trois chambres, une cuisine et une salle de bains. La maison est neuve.Le terrain du bien est de 550 m².Elle se trouve dans un quartier attractif. L’École Primaire du Centre-Salengro et le Collège Docteur Ernest Schaffner sont implantés à moins de 10 minutes à pied. Côté transports, il y a neuf gares à moins de 10 minutes en voiture. Les autoroutes A21 et A1 sont accessibles à moins de 8 km. On trouve quatre commerces, trois boulangeries, un supermarché, un bureau de poste et une boucherie-charcuterie à quelques minutes du logement.Elle est à vendre pour la somme de 223 000 €.Contactez Mathilde GROS ((Numéro supprimé)) pour plus d’informations sur cette maison, sur les démarches à suivre ou sur les modalités de vente.
Évin-Malmaison
TERRAIN ET MAISONMaison de 3 pièces (90 m²) à vendre à Évin-MalmaisonIDÉALEMENT SITUÉE – MAISON 3 PIÈCES NEUVEÀ 30 km de la frontière belge et à quelques kilomètres de Lille, à vendre idéalement située dans Évin-Malmaison (62141), notre agence Maisons France Confort Valenciennes est heureuse de vous proposer cette maison de 3 pièces de plain-pied de 90 m².Elle propose trois chambres, une cuisine et une salle de bains. Cette maison est neuve.Le terrain de la propriété s’étend sur 1 700 m².Elle est située dans un secteur prisé. Il y a l’École Élémentaire Méresse-Ségard, l’École Élémentaire Léon Blum et l’École Maternelle Françoise Dolto à moins de 10 minutes à pied. Niveau transports en commun, on trouve neuf gares à moins de 10 minutes en voiture. Les autoroutes A21 et A1 sont accessibles à moins de 4 km. Il y a un tennis, une boulangerie, un commerce, un bureau de poste, une boucherie-charcuterie et une supérette à proximité du bien.Elle est à vendre pour la somme de 217 000 €.Contactez Mathilde GROS (tél : (Numéro supprimé)) pour toute question sur la maison. Maisons France Confort Valenciennes vous accompagne dans tous vos projets immobiliers et dans toutes vos démarches.
Libercourt
TERRAIN ET MAISONLibercourt : maison F3 (90 m²) à vendreEMPLACEMENT PRIVILÉGIÉ – MAISON 3 PIÈCES NEUVEEn vente : à quelques kilomètres de la Belgique et à deux pas de Lille, bénéficiant d’un emplacement d’exception dans Libercourt (62820), Maisons France Confort Valenciennes vous présente cette maison de 3 pièces de plain-pied de 90 m².Son intérieur offre trois chambres, une cuisine et une salle de bains. Cette maison est neuve.Le terrain de la propriété est de 480 m².Il se situe dans un quartier attractif. Il y a cinq établissements scolaires à moins de 10 minutes à pied, tout comme une crèche. Niveau transports en commun, on trouve la gare Libercourt à proximité. Les autoroutes A1 et A21 sont accessibles à moins de 6 km. Il y a une bibliothèque, un bassin de natation, un tennis, trois boulangeries, trois supermarchés, des commerces, une épicerie et une boucherie-charcuterie à quelques minutes. Ne manquez pas le marché Rue Saint Guislain chaque jeudi matin.Il est à vendre pour la somme de 216 000 €.Prenez contact avec Mathilde GROS (tél : (Numéro supprimé)) pour toute information sur cette maison.
L’actualité immobilière à Évin-Malmaison
27/11/2023
02/11/2023
30/10/2023
20/10/2023
16/10/2023
16/10/2023