Maison à construire à Fleurbaix (62840)
Images
Description
Maison Contemporaine Neuve - RE 2020 - Proche de Lille
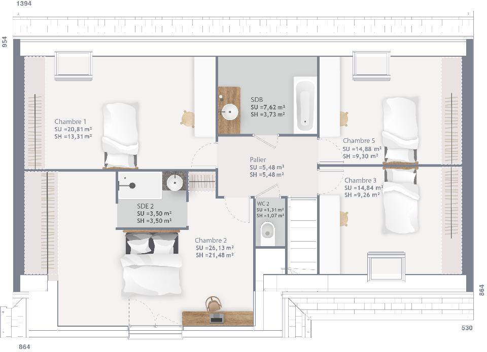
À seulement quelques minutes de Lille, découvrez cette maison neuve contemporaine, construite selon la dernière norme environnementale RE 2020. Implantée sur un terrain bien exposé, elle offre une vue dégagée sur le jardin et un cadre de vie paisible, dans un quartier familial.
Des prestations modernes et durables :
Grande pièce de vie lumineuse avec cuisine ouverte, idéale pour les moments en famille
Plusieurs chambres confortables, pensées pour le bien-être de chacun
Salle de bain moderne, fonctionnelle et élégante
Matériaux nobles et écologiques, gage de durabilité et de respect de l'environnement
Nous collaborons en priorité avec des artisans locaux et des fournisseurs régionaux, pour une qualité de construction optimale.
Un environnement privilégié :
Écoles, crèche, collège à proximité immédiate
Gare et accès autoroutiers à quelques minutes
Commerces de quartier, bibliothèque, infrastructures sportives, boulangeries, épiceries, bureau de poste...
Prix de vente : à partir de 414 000 € (hors frais annexes)
Garanties décennale, dommage ouvrage et livraison incluses (Contrat de construction CCMI loi de la construction et de l'habitation de 1990)
________________________________________
Construisez votre avenir avec Maisons France Confort
Faites confiance à Maisons France Confort, marque du groupe HEXAOM, pour concrétiser votre projet immobilier.
Accompagnement personnalisé à chaque étape.
📞 Contactez Sébastien RAVIART au (Numéro supprimé)
pour plus d'informations ou pour convenir d'un rendez-vous.
Logement susceptibles de vous intéresser
Nous vous proposons de découvrir aussi cette sélection de logements situés à moins de 10km de Fleurbaix et qui seraient susceptibles de vous intéresser.
Armentières
TERRAIN ET MAISONÀ vendre : Maison 5 pièces de 90 m² à Armentières (59280)Maison neuve – Proche de la frontière belgeMaisons France Confort Lille vous propose cette maison T5 de 90 m² sur un terrain de 437 m², parfaite pour une famille.🏡 Caractéristiques de la maisonSurface habitable : 90 m²Nombre de chambres : 3Cuisine : à aménager selon vos besoinsSalle de bains : 1Nombre de niveaux : 2Maison neuve📍 Situation et commoditésÉcoles de tous types (maternelle, élémentaire et secondaire) à moins de 10 minutes à pied4 gares accessibles en moins de 10 minutes en voitureAccès rapide à l’autoroute A25 et à la nationale N41 (< 10 km)Bibliothèque, tennis, boulangeries, commerces, deux supermarchés, bureau de poste et supérette à proximité💰 Prix : 303 600 €📞 Contact : David CHAMBAULT - (Numéro supprimé)Pour toute information sur la maison, les modalités de vente ou les démarches à suivre, contactez notre agence. Maisons France Confort Lille vous accompagne à toutes les étapes de votre projet immobilier.
La Gorgue
TERRAIN ET MAISONLa Gorgue – Maison T5 (90 m²) à vendrePrix : 323 600 €Surface habitable : 90 m² | Terrain : 1 140 m²Description :À 22 km de Lille, découvrez cette maison neuve de plain-pied composée de 5 pièces :3 chambresCuisineSalle de bainsEnvironnement et commodités :Écoles : École Primaire de l’Alloeu, École Primaire Privée Saint Martin, École Primaire du Grand CheminTransports : Gare de Nieppe et de Steenwerck à moins de 10 minutes en voiture, accès autoroute A25 à 9 kmCommodités : Bibliothèque et supermarché à proximitéContact :David CHAMBAULT – (Numéro supprimé)Maisons France Confort Lille vous accompagne dans toutes les étapes de votre projet immobilier.
Fleurbaix
TERRAIN ET MAISONFleurbaix – Maison 4 pièces à vendre (92 m²)Prix : 339 900 €Surface : 92 m²Terrain : 630 m²Description :Maison neuve de plain-pied, composée de :Trois chambresUne cuisineUne salle de bainsEnvironnement et commodités :Écoles : École Primaire Franche Terre, École Primaire Privée Sacré-Coeur et crèche à moins de 10 minutes à piedTransports : Gares d’Armentières, Nieppe et Steenwerck à moins de 10 minutes en voitureAccès routier : Autoroute A25 et nationale N41 à moins de 10 kmCommodités : Tennis, commerces, deux boulangeries, supermarché, épicerie et bureau de poste à proximitéContact :David CHAMBAULT – (Numéro supprimé)Maisons France Confort Lille vous accompagne dans toutes les étapes de votre projet immobilier.
Armentières
TERRAIN ET MAISONMaison 6 pièces – 125 m² à Armentières (59280)Maison neuve – 2 niveaux – 437 m² de terrainÀ quelques kilomètres de la Belgique, découvrez cette maison neuve de 125 m² comprenant :4 chambresCuisineSalle de bainsÀ proximité : écoles primaires et secondaires à moins de 10 minutes à pied, gares accessibles en moins de 10 minutes en voiture, bibliothèque, tennis, commerces, boulangeries, supermarchés et bureau de poste.Accès rapide aux axes routiers : autoroute A25 et nationale N41 à moins de 10 km.💰 Prix : 352 000 €📞 Contact : David CHAMBAULT – (Numéro supprimé)Pour toute information sur la maison ou les modalités de vente. Maisons France Confort Lille vous accompagne dans toutes vos démarches et vos projets immobiliers.
Lorgies
TERRAIN ET MAISONLorgies – Maison à vendre (4 pièces, 92 m²)Prix : 299 500 €Surface : 92 m²Terrain : 623 m²Description :À quelques kilomètres de Lille, découvrez cette maison neuve de plain-pied composée de :3 chambresCuisineSalle de bainsEnvironnement et commodités :École : École Primaire le Frenelet à moins de 10 minutes à piedTransports : 8 gares à moins de 10 minutes en voiture, accès aux nationales N47 et N41 à moins de 10 kmCommodités : Bibliothèque, tennis, commerce et épicerie à proximitéContact :David CHAMBAULT – (Numéro supprimé)Maisons France Confort Lille vous accompagne dans toutes les étapes de votre projet immobilier.
Wicres
TERRAIN ET MAISONÀ Vendre – Maison neuve T3 de 71 m² à Wicres (59134)Secteur Lille – Plain-pied moderne à 15 km de la frontière belgeDécouvrez cette maison neuve de plain-pied de 71 m², idéalement située à Wicres, à seulement 14 km de Lille et 15 km de la Belgique. Une opportunité rare dans un environnement calme et recherché.Description du bien :Maison entièrement neuvePlain-pied fonctionnel et lumineux2 chambres confortablesCuisine (à préciser : ouverte, équipée, selon ton projet si besoin)Salle de bains moderneTerrain de 426 m², idéal pour profiter d’un espace extérieur agréableCommodités & environnement :École Primaire La Libaude à moins de 10 minutes à piedCommerce de proximité et boulangerie accessibles en quelques minutes10 gares situées à moins de 10 minutes en voitureAccès rapide à l’A25, à la N41 et à la N47 (moins de 9 km)Cette maison est proposée au prix de 275 800 €.Pour toute information complémentaire ou pour vous accompagner dans votre projet, contactez :David CHAMBAULT – (Numéro supprimé)Maisons France Confort Lille vous guide dans toutes les étapes de votre achat immobilier.
Wicres
TERRAIN ET MAISONÀ Vendre – Maison neuve 4 pièces de 92 m² à Wicres (59134)Secteur Lille – À 15 km de la frontière belgeMaisons France Confort Lille vous propose cette maison neuve de plain-pied, d’une surface de 92 m², édifiée sur un terrain de 426 m², idéalement située à Wicres, à seulement quelques minutes de Lille et de la Belgique.Description du bien :Maison entièrement neuvePlain-pied pratique et lumineux3 chambres spacieusesCuisine ouverte ou fermée selon votre projet (à préciser si besoin)Salle de bains moderneEnvironnement & commodités :École Primaire La Libaude à moins de 10 minutes à piedCommerces et boulangerie à proximité immédiate10 gares accessibles en moins de 10 minutes en voitureAccès rapide à l’A25, à la N41 et à la N47 (moins de 9 km)Cette maison est proposée au prix de 302 500 €.Pour tout renseignement supplémentaire ou pour vous accompagner dans votre projet, contactez :David CHAMBAULT – (Numéro supprimé)Maisons France Confort Lille vous accompagne à chaque étape de l’achat.
Capinghem
TERRAIN ET MAISONVENTE d’une maison de 5 pièces (100 m²) à CapinghemIDÉALEMENT SITUÉE – MAISON 5 PIÈCES NEUVEÀ vendre proche de la Belgique et à quelques kilomètres de Lille, notre agence Maisons France Confort Valenciennes est ravie de vous proposer cette maison de 5 pièces de 100 m² et de 660 m² de terrain idéalement située dans Capinghem (59160). Son intérieur se divise en quatre chambres, une cuisine et deux salles de bains.Il s’agit d’une maison de 2 niveaux. Elle est neuve.Elle se trouve dans un secteur prisé. L’École Primaire Lucie Aubrac est implantée à moins de 10 minutes à pied. Niveau transports en commun, il y a 15 gares à moins de 10 minutes en voiture. Les autoroutes A25 et A1 et les nationales N41 et N356 sont accessibles à moins de 9 km. On trouve une bibliothèque, des commerces, deux boulangeries, un supermarché, deux boucheries-charcuteries et une supérette à proximité de la maison.Elle est proposée à l’achat pour 449 566 €.Contactez Christian SMOLAREK (tél : (Numéro supprimé)) pour tout renseignement sur cette maison.
Hallennes-lez-Haubourdin
TERRAIN ET MAISONHallennes-lez-Haubourdin : maison F5 (100 m²) à vendreQUARTIER RECHERCHÉ – MAISON 5 PIÈCES NEUVEÀ vendre à quelques kilomètres de la Belgique et à 7 km de Lille, nichée dans un quartier recherché d’Hallennes-lez-Haubourdin (59320), ayez le coup de coeur pour cette maison de 5 pièces de 100 m².C’est une maison de 2 niveaux. Elle est composée de quatre chambres, d’une cuisine et de deux salles de bains. La maison est neuve.Le terrain de la propriété s’étend sur 1 000 m².Elle se trouve dans un secteur convoité. Il y a l’École Élémentaire Roger Salengro et l’École Maternelle Victor Loridan à moins de 10 minutes à pied. Côté transports en commun, on trouve 20 gares à moins de 10 minutes en voiture. La nationale N41 est accessible à 1 km. Il y a un tennis, un supermarché, plusieurs commerces et une boulangerie à quelques minutes du bien.Elle est proposée à l’achat pour 378 560 €.N’hésitez pas à prendre contact avec notre agence (Christian SMOLAREK : (Numéro supprimé)) pour obtenir de plus amples renseignements sur la maison.
L’actualité immobilière à Fleurbaix
27/11/2023
02/11/2023
30/10/2023
20/10/2023
16/10/2023
16/10/2023