Maison à construire à Hesdigneul-lès-Boulogne (62360)
Images
Description
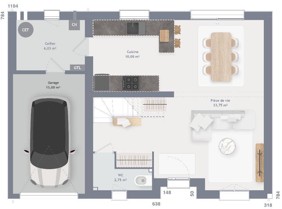
VENTE d'une maison T5 (90 m²) à Hesdigneul-lès-Boulogne
IDÉALEMENT SITUÉE - MAISON 5 PIÈCES NEUVE
En vente : à 12 km de la Manche et à quelques kilomètres de Boulogne-sur-Mer, idéalement située dans Hesdigneul-lès-Boulogne (62360), laissez vous charmer par cette maison de 5 pièces de 90 m².
Il s'agit d'une maison de 2 niveaux. Son intérieur comporte trois chambres, une cuisine et une salle de bains. La maison est neuve.
Le terrain du bien s'étend sur 500 m².
Cette maison se trouve dans un quartier attractif. Une école primaire y est implantée. Côté transports, il y a la gare Hesdigneul-lès-Boulogne à moins de 10 minutes à pied. L'autoroute A16 et les nationales N1 et N42 sont accessibles à moins de 8 km. On trouve un tennis, deux boulangeries et trois commerces dans les environs.
Faites le choix d'une maison qui vous ressemble
Avec plus de 5 000 maisons construites, Maisons Les Naturelles est un acteur reconnu pour la qualité de ses réalisations et son engagement envers la satisfaction client. En choisissant notre expertise, vous optez pour une maison alliant charme, confort et respect de l'environnement.
Pour en savoir plus sur ce projet de construction, contactez dès maintenant Sabrina Herbez au (Numéro supprimé) ou rendez-vous à notre agence de Boulogne.
Logement susceptibles de vous intéresser
Nous vous proposons de découvrir aussi cette sélection de logements situés à moins de 10km de Hesdigneul-lès-Boulogne et qui seraient susceptibles de vous intéresser.
Neufchâtel-Hardelot
TERRAINLOTISSEMENT ‘LES VILLAS DU MOULIN’Idéalement situé, dans un cadre verdoyant, calme et résidentiel, découvrez ce terrain viabilisé de 1.411m² bénéficiant d’un permis de construire purgé de tout recours, libre de constructeur, vous offrant une occasion rare de réaliser votre projet immobilier en toute sérénité pour une villa de 200m² hab.Les informations sur les risques auxquels ce bien est exposé sont disponibles sur le site Géorisques : www.georisques.gouv.fr
Neufchâtel-Hardelot
TERRAIN3%.COM IMMOBILIER VOUS PRÉSENTE CE TERRAIN À BATIR DE 1282 M2 LIBRE DE CONSTRUCTEUR SUR LA COMMUNE DE NEUFCHÂTEL HARDELOT.Avec une emprise au sol de 40 % et ses 60 mètres de façade, construisez votre plain pied idéal. Nous vous proposons un accompagnement personnalisé grâce à nos partenaires en construction et en courtage.Pour plus de renseignements, contactez vos conseillers Guilaine et Geoffrey au (Numéro supprimé) agent commercial en immobilier immatriculé au rsac no 914 324 413 Boulogne sur merRetrouvez nous également sur notre page professionnelle Facebook Bonvalet immobilier – Annonce rédigée et publiée par un Agent Mandataire –
Saint-Martin-Boulogne
TERRAINTerrain de 370 m² en vente à Saint-Martin-BoulognePROCHE DE CALAISTerrain de 370 m² en vente à 9 km de la Manche et à quelques kilomètres de Calais. Ce terrain se situe dans Saint-Martin-Boulogne (62280). Le terrain est proche des commerces et des écoles. Le Lycée Polyvalent Giraux Sannier, l’École Élémentaire Isabelle Nacry, l’École Primaire Privée Saint Charles, le Collège Roger Salengro et l’École Maternelle Jacques Prévert sont implantés à moins de 10 minutes à pied. Niveau transports, on trouve cinq gares à moins de 10 minutes en voiture. L’autoroute A16 est accessible à 1 km. Il y a un bassin de natation, un tennis, des commerces, des boulangeries, un supermarché, une poissonnerie et un bureau de poste à quelques minutes du terrain.Ce terrain est proposé à l’achat pour 84 700 €. N’hésitez pas à prendre contact avec notre agence (SORET Tony : (Numéro supprimé)) pour tout renseignement sur le terrain ou sur les démarches à suivre. Maisons Les Naturelles Boulogne-sur-Mer vous accompagne à toutes les étapes de l’achat et dans tous vos projets immobiliers.
Saint-Martin-Boulogne
TERRAIN ET MAISONVENTE d’une maison F5 (106 m²) à Saint-Martin-BoulognePROCHE DE CALAIS – MAISON 5 PIÈCES NEUVEÀ vendre : localisée à 9 km de la Manche et à deux pas de Calais, votre agence Maisons Les Naturelles Boulogne-sur-Mer est ravie de vous proposer cette maison de 5 pièces de plain-pied de 106 m² et de 370 m² de terrain à Saint-Martin-Boulogne (62280). Elle inclut quatre chambres, une cuisine et deux salles de bains.Cette maison est neuve.Il y a le Lycée Polyvalent Giraux Sannier, l’École Élémentaire Isabelle Nacry, l’École Primaire Privée Saint Charles, le Collège Roger Salengro et l’École Maternelle Jacques Prévert à moins de 10 minutes à pied. Niveau transports, on trouve cinq gares à moins de 10 minutes en voiture. On trouve un accès à l’autoroute A16 à 1 km. Il y a un bassin de natation, un tennis, des commerces, des boulangeries, un supermarché, un bureau de poste et une poissonnerie à proximité.Elle est proposée à l’achat pour 297 950 €.Contactez Tony SORET (tél : (Numéro supprimé)) pour toute question sur la maison, sur les démarches à suivre ou sur les modalités de vente. Maisons Les Naturelles Boulogne-sur-Mer vous accompagne dans tous vos projets immobiliers et à toutes les étapes de l’achat.« Depuis 1968, Maisons Les Naturelles accompagne ses clients dans la construction de maisons alliant savoir-faire artisanal, traditions et respect de l’environnement. Avec plus de 5 500 réalisations à notre actif, nous sommes reconnus pour la qualité de nos constructions et notre engagement en faveur d’une approche plus durable de l’habitat. Nous privilégions des matériaux français, biosourcés et à faible empreinte carbone, tout en collaborant avec des artisans locaux qui partagent nos valeurs. Parce que chaque client est unique, nous concevons des maisons sur mesure, pensées pour allier esthétique, confort et haute performance énergétique. Construisons ensemble un avenir plus responsable, en créant des maisons qui s’intègrent harmonieusement à leur environnement
Saint-Martin-Boulogne
TERRAIN ET MAISONMaison de 4 pièces (92 m²) en vente à Saint-Martin-BoulognePROCHE DE CALAIS – MAISON 4 PIÈCES NEUVEÀ vendre : à 9 km de la Manche et à deux pas de Calais, venez découvrir à Saint-Martin-Boulogne (62280), cette maison de 4 pièces de plain-pied de 92 m² et de 370 m² de terrain. Conçue de plain-pied, elle offre trois chambres, une cuisine et une salle de bains.La maison est neuve.On trouve le Lycée Polyvalent Giraux Sannier, l’École Élémentaire Isabelle Nacry, l’École Primaire Privée Saint Charles, le Collège Roger Salengro et l’École Maternelle Jacques Prévert à moins de 10 minutes à pied. Niveau transports, il y a cinq gares à moins de 10 minutes en voiture. On trouve un accès à l’autoroute A16 à 1 km. On trouve un bassin de natation, un tennis, des commerces, des boulangeries, un supermarché, un bureau de poste et une poissonnerie à proximité.Elle est à vendre pour la somme de 255 700 €.Contactez notre agence (SORET Tony : (Numéro supprimé)) pour toute question sur le bien.« Depuis 1968, Maisons Les Naturelles accompagne ses clients dans la construction de maisons alliant savoir-faire artisanal, traditions et respect de l’environnement. Avec plus de 5 500 réalisations à notre actif, nous sommes reconnus pour la qualité de nos constructions et notre engagement en faveur d’une approche plus durable de l’habitat. Nous privilégions des matériaux français, biosourcés et à faible empreinte carbone, tout en collaborant avec des artisans locaux qui partagent nos valeurs. Parce que chaque client est unique, nous concevons des maisons sur mesure, pensées pour allier esthétique, confort et haute performance énergétique. Construisons ensemble un avenir plus responsable, en créant des maisons qui s’intègrent harmonieusement à leur environnement et favorisent un mode de vie durable. »
Saint-Martin-Boulogne
TERRAIN ET MAISONVENTE : maison de 5 pièces (90 m²) à Saint-Martin-BoulognePROCHE DE CALAIS – MAISON 5 PIÈCES NEUVEÀ 9 km de la Manche et à deux pas de Calais, venez découvrir cette maison de 5 pièces de plain-pied de 90 m² à Saint-Martin-Boulogne (62280).Elle dispose de quatre chambres, d’une cuisine et d’une salle de bains. La maison est neuve.Le terrain de la propriété s’étend sur 370 m².Il y a le Lycée Polyvalent Giraux Sannier, l’École Élémentaire Isabelle Nacry, l’École Primaire Privée Saint Charles, le Collège Roger Salengro et l’École Maternelle Jacques Prévert à moins de 10 minutes à pied. Niveau transports, on trouve cinq gares à moins de 10 minutes en voiture. L’autoroute A16 est accessible à 1 km. Il y a un bassin de natation, un tennis, des commerces, des boulangeries, un supermarché, une poissonnerie et un bureau de poste à quelques minutes à peine.Il est proposé à l’achat pour 264 700 €.N’hésitez pas à prendre contact avec notre agence (SORET Tony : (Numéro supprimé)) pour toute information sur la maison, sur les démarches à suivre et sur les modalités de vente. Maisons Les Naturelles Boulogne-sur-Mer est là pour vous accompagner dans tous vos projets immobiliers.« Depuis 1968, Maisons Les Naturelles accompagne ses clients dans la construction de maisons alliant savoir-faire artisanal, traditions et respect de l’environnement. Avec plus de 5 500 réalisations à notre actif, nous sommes reconnus pour la qualité de nos constructions et notre engagement en faveur d’une approche plus durable de l’habitat. Nous privilégions des matériaux français, biosourcés et à faible empreinte carbone, tout en collaborant avec des artisans locaux qui partagent nos valeurs. Parce que chaque client est unique, nous concevons des maisons sur mesure, pensées pour allier esthétique, confort et haute performance énergétique. Construisons ensemble un avenir plus responsable, en créant des maisons qui s’intègrent harmonieusement à leur environnement et favorisent un mode de vie du
Saint-Martin-Boulogne
TERRAIN ET MAISONSaint-Martin-Boulogne : maison de 6 pièces (150 m²) en venteMAISON 6 PIÈCES NEUVE – PROCHE DE CALAISEn vente : située à 9 km de la Manche et à quelques kilomètres de Calais, votre agence Maisons Les Naturelles Boulogne-sur-Mer est ravie de vous présenter cette maison de 6 pièces de 150 m² à Saint-Martin-Boulogne (62280).Cette maison possède 2 niveaux. Son intérieur compte quatre chambres, une cuisine et deux salles de bains. Cette maison est neuve.Le terrain du bien est de 370 m².Il y a le Lycée Polyvalent Giraux Sannier, l’École Élémentaire Isabelle Nacry, l’École Primaire Privée Saint Charles, le Collège Roger Salengro et l’École Maternelle Jacques Prévert à moins de 10 minutes à pied. Côté transports, on trouve cinq gares à moins de 10 minutes en voiture. Il y a un accès à l’autoroute A16 à 1 km. Il y a un bassin de natation, un tennis, des commerces, des boulangeries, un supermarché, une poissonnerie et un bureau de poste à quelques minutes.Elle est proposée à l’achat pour 411 395 €.Contactez Tony SORET (tél : (Numéro supprimé)) pour toute information sur la maison.« Depuis 1968, Maisons Les Naturelles accompagne ses clients dans la construction de maisons alliant savoir-faire artisanal, traditions et respect de l’environnement. Avec plus de 5 500 réalisations à notre actif, nous sommes reconnus pour la qualité de nos constructions et notre engagement en faveur d’une approche plus durable de l’habitat. Nous privilégions des matériaux français, biosourcés et à faible empreinte carbone, tout en collaborant avec des artisans locaux qui partagent nos valeurs. Parce que chaque client est unique, nous concevons des maisons sur mesure, pensées pour allier esthétique, confort et haute performance énergétique. Construisons ensemble un avenir plus responsable, en créant des maisons qui s’intègrent harmonieusement à leur environnement et favorisent un mode de vie durable. »
Saint-Martin-Boulogne
TERRAIN ET MAISONVENTE d’une maison de 5 pièces (135 m²) à Saint-Martin-BoulogneMAISON 5 PIÈCES NEUVE – PROCHE DE CALAISEn vente : à 9 km de la Manche et à quelques kilomètres de Calais, nous sommes ravis de vous présenter cette maison de 5 pièces de 135 m² à Saint-Martin-Boulogne (62280). Son intérieur compte quatre chambres, une cuisine et deux salles de bains.Le terrain du bien est de 370 m².Cette maison comporte 2 niveaux. Elle est neuve.Il y a le Lycée Polyvalent Giraux Sannier, l’École Élémentaire Isabelle Nacry, l’École Primaire Privée Saint Charles, le Collège Roger Salengro et l’École Maternelle Jacques Prévert à moins de 10 minutes à pied. Niveau transports, on trouve cinq gares à moins de 10 minutes en voiture. L’autoroute A16 est accessible à 1 km. Il y a un bassin de natation, un tennis, des commerces, des boulangeries, un supermarché, une poissonnerie et un bureau de poste dans les environs.Son prix de vente est de 359 650 €.N’hésitez pas à prendre contact avec Tony SORET (tél : (Numéro supprimé)) pour toute question sur cette maison ou sur les démarches à suivre. Maisons Les Naturelles Boulogne-sur-Mer vous accompagne à toutes les étapes de votre projet et dans tous vos projets immobiliers.« Depuis 1968, Maisons Les Naturelles accompagne ses clients dans la construction de maisons alliant savoir-faire artisanal, traditions et respect de l’environnement. Avec plus de 5 500 réalisations à notre actif, nous sommes reconnus pour la qualité de nos constructions et notre engagement en faveur d’une approche plus durable de l’habitat. Nous privilégions des matériaux français, biosourcés et à faible empreinte carbone, tout en collaborant avec des artisans locaux qui partagent nos valeurs. Parce que chaque client est unique, nous concevons des maisons sur mesure, pensées pour allier esthétique, confort et haute performance énergétique. Construisons ensemble un avenir plus responsable, en créant des maisons qui s’intègrent harmonieusement à leur environnement et f
Saint-Martin-Boulogne
TERRAIN ET MAISONVENTE : maison F4 (85 m²) à Saint-Martin-BoulognePROCHE DE CALAIS – MAISON 4 PIÈCES NEUVEÀ vendre : à 9 km de la Manche et à quelques kilomètres de Calais, Maisons Les Naturelles Boulogne-sur-Mer vous propose à Saint-Martin-Boulogne (62280), cette maison de 4 pièces de plain-pied de 85 m².Conçue de plain-pied, elle propose trois chambres, une cuisine et une salle de bains. Cette maison est neuve.Le terrain de la propriété s’étend sur 370 m².Il y a le Lycée Polyvalent Giraux Sannier, l’École Élémentaire Isabelle Nacry, l’École Primaire Privée Saint Charles, le Collège Roger Salengro et l’École Maternelle Jacques Prévert à moins de 10 minutes à pied. Niveau transports, on trouve cinq gares à moins de 10 minutes en voiture. Il y a un accès à l’autoroute A16 à 1 km. Il y a un bassin de natation, un tennis, des commerces, des boulangeries, un supermarché, un bureau de poste et une poissonnerie à quelques minutes.Elle est à vendre pour la somme de 240 775 €.Contactez notre agence (SORET Tony : (Numéro supprimé)) pour toute information sur cette maison et sur les démarches à suivre.« Depuis 1968, Maisons Les Naturelles accompagne ses clients dans la construction de maisons alliant savoir-faire artisanal, traditions et respect de l’environnement. Avec plus de 5 500 réalisations à notre actif, nous sommes reconnus pour la qualité de nos constructions et notre engagement en faveur d’une approche plus durable de l’habitat. Nous privilégions des matériaux français, biosourcés et à faible empreinte carbone, tout en collaborant avec des artisans locaux qui partagent nos valeurs. Parce que chaque client est unique, nous concevons des maisons sur mesure, pensées pour allier esthétique, confort et haute performance énergétique. Construisons ensemble un avenir plus responsable, en créant des maisons qui s’intègrent harmonieusement à leur environnement et favorisent un mode de vie durable. »
L’actualité immobilière à Hesdigneul-lès-Boulogne
27/11/2023
02/11/2023
30/10/2023
20/10/2023
16/10/2023
16/10/2023