Maison à construire à La Capelle-lès-Boulogne (62360)
Images
Description
VENTE d'une maison de 7 pièces (150 m²) à La Capelle-lès-Boulogne
PROCHE DE CALAIS - MAISON 7 PIÈCES NEUVE
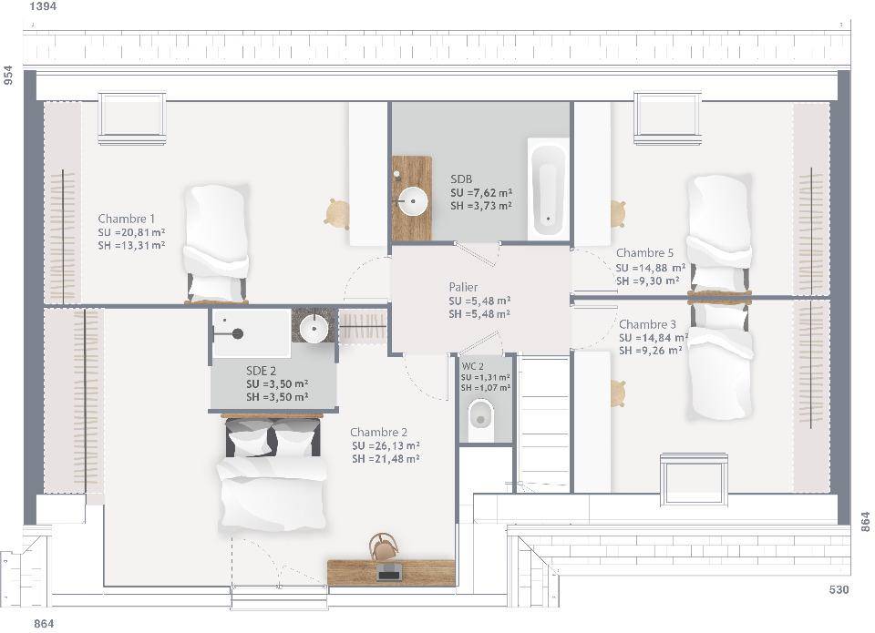
À vendre : située à 16 km de la Manche et à deux pas de Calais, votre agence Maisons Les Naturelles Boulogne-sur-Mer est ravie de vous présenter cette maison de 7 pièces de 150 m² à La Capelle-lès-Boulogne (62360).
C'est une maison de 2 niveaux. Elle se divise en cinq chambres, une cuisine et deux salles de bains. Cette maison est neuve.
Le terrain du bien est de 882 m².
L'École Primaire des Poètes et l'École Primaire Privée Saint Joseph se trouvent à moins de 10 minutes à pied. Niveau transports, il y a six gares à moins de 10 minutes en voiture. Il y a un accès à la nationale N42 à 1 km. On trouve un tennis, une bibliothèque, une boucherie-charcuterie et une épicerie dans les environs.
Son prix de vente est de 425 700 €.
Prenez contact avec notre agence (Tony SORET : (Numéro supprimé)) pour plus d'informations sur cette maison. Maisons Les Naturelles Boulogne-sur-Mer est là pour vous accompagner à toutes les étapes de l'achat.
« Depuis 1968, Maisons Les Naturelles accompagne ses clients dans la construction de maisons alliant savoir-faire artisanal, traditions et respect de l'environnement.
Avec plus de 5 500 réalisations à notre actif, nous sommes reconnus pour la qualité de nos constructions et notre engagement en faveur d'une approche plus durable de l'habitat.
Nous privilégions des matériaux français, biosourcés et à faible empreinte carbone, tout en collaborant avec des artisans locaux qui partagent nos valeurs.
Parce que chaque client est unique, nous concevons des maisons sur mesure, pensées pour allier esthétique, confort et haute performance énergétique.
Construisons ensemble un avenir plus responsable, en créant des maisons qui s'intègrent harmonieusement à leur environnement et favorisent un mode de vie durable. »
Logement susceptibles de vous intéresser
Nous vous proposons de découvrir aussi cette sélection de logements situés à moins de 10km de La Capelle-lès-Boulogne et qui seraient susceptibles de vous intéresser.
Carly
TERRAINSur la commune de Carly, au lieu dit le Hourquet, dans un secteur calme et verdoyant, terrain constructible de 755 m2.Très bonne exposition.Tous les réseaux, électricité, eau, téléphone, sont en limite de propriété.Les informations sur les risques auxquels ce bien est exposé sont disponibles sur le site Géorisques : www.georisques.gouv.frPrix de vente : 75 500 €Honoraires charge vendeurContactez votre consultant megAgence : Stéphanie FISCHER, Tél. : (Numéro supprimé), E-mail : (Email supprimé) – EI – Agent commercial immatriculé au RSAC de BOULOGNE-SUR-MER sous le numéro 884 916 008
Baincthun
TERRAIN ET MAISONBaincthun : maison F5 (113 m²) en venteEMPLACEMENT PRIVILÉGIÉ – MAISON 5 PIÈCES NEUVEÀ vendre à 13 km de la Manche et à 31 km de Calais, découvrez cette maison de 5 pièces de plain-pied de 113 m² bénéficiant d’un emplacement privilégié dans Baincthun (62360).Son intérieur est composé de quatre chambres, d’une cuisine et de deux salles de bains. La maison est neuve.Le terrain du bien s’étend sur 1 700 m².La maison est située dans un secteur convoité. L’École Primaire de la Pâturelle se trouve à moins de 10 minutes à pied. Niveau transports, il y a six gares à moins de 10 minutes en voiture. L’autoroute A16 et les nationales N42 et N1 sont accessibles à moins de 5 km. On trouve une boulangerie et une supérette dans les environs.Elle est à vendre pour la somme de 373 791 €.Contactez notre agence (HERBEZ Sabrina : (Numéro supprimé)) pour obtenir de plus amples renseignements sur la maison ou sur les modalités de vente.
Baincthun
TERRAIN ET MAISONVENTE : maison de 6 pièces (114 m²) à BaincthunEMPLACEMENT PRIVILÉGIÉ – MAISON 6 PIÈCES NEUVEÀ vendre : à 13 km de la Manche et à quelques kilomètres de Calais, bénéficiant d’un emplacement privilégié dans Baincthun (62360), Maisons Les Naturelles Boulogne-sur-Mer vous présente cette maison de 6 pièces de 114 m². Elle inclut cinq chambres, une cuisine et deux salles de bains.Le terrain de la maison s’étend sur 1 700 m².Cette maison possède 2 niveaux. Elle est neuve.La maison se trouve dans un quartier recherché. Il y a l’École Primaire de la Pâturelle à moins de 10 minutes à pied. Niveau transports, on trouve six gares à moins de 10 minutes en voiture. L’autoroute A16 et les nationales N42 et N1 sont accessibles à moins de 5 km. Il y a une boulangerie et une supérette dans les environs.Elle est proposée à l’achat pour 443 103 €.N’hésitez pas à prendre contact avec Sabrina HERBEZ ((Numéro supprimé)) pour toute information sur la propriété. Maisons Les Naturelles Boulogne-sur-Mer vous accompagne dans tous vos projets immobiliers et dans toutes vos démarches.
Baincthun
TERRAIN ET MAISONVENTE : maison T6 (125 m²) à BaincthunEMPLACEMENT PRIVILÉGIÉ – MAISON 6 PIÈCES NEUVEEn vente à 13 km de la Manche et à deux pas de Calais, laissez vous charmer par cette maison de 6 pièces de 125 m² et de 1 700 m² de terrain bénéficiant d’un emplacement d’exception dans Baincthun (62360). Son intérieur se divise en quatre chambres, une cuisine et deux salles de bains.C’est une maison de 2 niveaux. Elle est neuve.Cette maison se situe dans un quartier attractif. L’École Primaire de la Pâturelle est implantée à moins de 10 minutes à pied. Niveau transports en commun, il y a six gares à moins de 10 minutes en voiture. L’autoroute A16 et les nationales N42 et N1 sont accessibles à moins de 5 km. On trouve une boulangerie et une supérette dans les environs.Elle est à vendre pour la somme de 376 999 €.Contactez notre agence (Sabrina HERBEZ : (Numéro supprimé)) pour toute information sur la maison. Maisons Les Naturelles Boulogne-sur-Mer vous accompagne dans tous vos projets immobiliers et dans toutes vos démarches.
Baincthun
TERRAINVENTE d’un terrain de 700 m² à BaincthunEMPLACEMENT PRIVILÉGIÉ – PROCHE DE CALAISÀ Baincthun (62360) en vente à 13 km de la Manche et à 31 km de Calais, projetez la maison de vos rêves sur ce terrain de 700 m². Il est orienté au sud-ouest. Dans un quartier attractif, le terrain bénéficiant d’un emplacement privilégié est proche des écoles et des commerces. On trouve l’École Primaire de la Pâturelle à moins de 10 minutes à pied. Côté transports, il y a six gares à moins de 10 minutes en voiture. L’autoroute A16 et les nationales N42 et N1 sont accessibles à moins de 5 km. On trouve une boulangerie et une supérette à proximité.Ce terrain est à vendre pour la somme de 128 980 €. Prenez contact avec Sabrina HERBEZ (tél : (Numéro supprimé)) pour obtenir de plus amples informations sur le terrain ou sur les modalités de vente.
Baincthun
TERRAIN ET MAISONBaincthun : maison de 5 pièces (104 m²) à vendreEMPLACEMENT PRIVILÉGIÉ – MAISON 5 PIÈCES NEUVEÀ vendre : à 13 km de la Manche et à 31 km de Calais, nous vous présentons, bénéficiant d’un emplacement privilégié dans Baincthun (62360), cette maison de 5 pièces de plain-pied de 104 m² et de 1 700 m² de terrain.Conçue de plain-pied, elle inclut quatre chambres, une cuisine et deux salles de bains. La maison est neuve.Ce bien se trouve dans un secteur recherché. L’École Primaire de la Pâturelle est implantée à moins de 10 minutes à pied. Côté transports en commun, il y a six gares à moins de 10 minutes en voiture. L’autoroute A16 et les nationales N42 et N1 sont accessibles à moins de 5 km. On trouve une boulangerie et une supérette à quelques minutes.Il est à vendre pour la somme de 357 292 €.Contactez notre agence (Sabrina HERBEZ : (Numéro supprimé)) pour plus d’informations sur la maison ou sur les modalités de vente. Maisons Les Naturelles Boulogne-sur-Mer est là pour vous accompagner à toutes les étapes de votre projet.
Baincthun
TERRAIN ET MAISONVENTE d’une maison de 5 pièces (90 m²) à BaincthunEMPLACEMENT PRIVILÉGIÉ – MAISON 5 PIÈCES NEUVEEn vente à 13 km de la Manche et à quelques kilomètres de Calais, votre agence Maisons Les Naturelles Boulogne-sur-Mer est ravie de vous présenter cette maison de 5 pièces de plain-pied de 90 m² et de 1 700 m² de terrain bénéficiant d’un emplacement d’exception dans Baincthun (62360). Conçue de plain-pied, elle se divise en trois chambres, une cuisine et une salle de bains.Cette maison est neuve.Le bien est situé dans un secteur recherché. L’École Primaire de la Pâturelle se trouve à moins de 10 minutes à pied. Niveau transports, il y a six gares à moins de 10 minutes en voiture. L’autoroute A16 et les nationales N42 et N1 sont accessibles à moins de 5 km. On trouve une boulangerie et une supérette dans les environs.Son prix de vente est de 337 300 €.Prenez contact avec notre agence (HERBEZ Sabrina : (Numéro supprimé)) pour obtenir de plus amples informations sur la maison. Maisons Les Naturelles Boulogne-sur-Mer vous accompagne dans tous vos projets immobiliers et à toutes les étapes de votre projet.
Baincthun
TERRAIN ET MAISONMaison de 3 pièces (71 m²) en vente à BaincthunEMPLACEMENT PRIVILÉGIÉ – MAISON 3 PIÈCES NEUVEEn vente à 13 km de la Manche et à deux pas de Calais, bénéficiant d’un emplacement d’exception dans Baincthun (62360), votre agence Maisons Les Naturelles Boulogne-sur-Mer est ravie de vous présenter cette maison de 3 pièces de 71 m². Elle compte deux chambres, une cuisine et une salle de bains.Le terrain de cette maison est de 1 700 m².Cette maison comporte 2 niveaux. Elle est neuve.La maison est située dans un quartier attractif. Il y a l’École Primaire de la Pâturelle à moins de 10 minutes à pied. Côté transports, on trouve six gares à moins de 10 minutes en voiture. L’autoroute A16 et les nationales N42 et N1 sont accessibles à moins de 5 km. Il y a une boulangerie et une supérette à quelques minutes de la maison.Elle est proposée à l’achat pour 375 000 €.Prenez contact avec notre agence (HERBEZ Sabrina : (Numéro supprimé)) pour plus d’informations sur la propriété.
Rinxent
TERRAIN ET MAISONRinxent : maison F5 (101 m²) en ventePROCHE GARE – MAISON 5 PIÈCES NEUVEEn vente : située à 15 km de la Manche et à deux pas de Calais, proche de la gare de Rinxent (62720), Maisons Les Naturelles Boulogne-sur-Mer vous propose cette maison de 5 pièces de plain-pied de 101 m². Conçue de plain-pied, elle comporte quatre chambres, une cuisine et une salle de bains.Le terrain de la propriété s’étend sur 470 m².La maison est neuve.L’école élémentaire Groupe Scolaire Jacques Brel est implantée à moins de 10 minutes à pied. Côté transports, on trouve la gare Marquise-Rinxent dans un rayon de 1 km. L’autoroute A16 et la nationale N42 sont accessibles à moins de 8 km. Il y a une bibliothèque, un commerce et un supermarché dans les environs.Son prix de vente est de 246 748 €.Contactez notre agence (Tony SORET : (Numéro supprimé)) pour tout renseignement sur la maison.« Depuis 1968, Maisons Les Naturelles accompagne ses clients dans la construction de maisons alliant savoir-faire artisanal, traditions et respect de l’environnement. Avec plus de 5 500 réalisations à notre actif, nous sommes reconnus pour la qualité de nos constructions et notre engagement en faveur d’une approche plus durable de l’habitat. Nous privilégions des matériaux français, biosourcés et à faible empreinte carbone, tout en collaborant avec des artisans locaux qui partagent nos valeurs. Parce que chaque client est unique, nous concevons des maisons sur mesure, pensées pour allier esthétique, confort et haute performance énergétique. Construisons ensemble un avenir plus responsable, en créant des maisons qui s’intègrent harmonieusement à leur environnement et favorisent un mode de vie durable. »
L’actualité immobilière à La Capelle-lès-Boulogne
27/11/2023
02/11/2023
30/10/2023
20/10/2023
16/10/2023
16/10/2023