Maison à construire à Lapugnoy (62122)
Images
Description
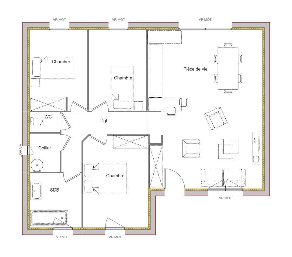
Lapugnoy : maison T5 (83 m²) en vente
IDÉALEMENT SITUÉE - MAISON 5 PIÈCES NEUVE
En vente : à quelques kilomètres de Béthune et à deux pas d'Arras, idéalement située dans Lapugnoy (62122), votre agence Maisons France Confort Béthune est heureuse de vous présenter cette maison de 5 pièces de plain-pied de 83 m².
Son intérieur se divise en trois chambres, une cuisine et une salle de bains. La maison est neuve.
Le terrain de la propriété est de 510 m².
Elle est située dans un secteur convoité. On trouve l'École Primaire Privée Notre-Dame et l'École Primaire les Marronniers à moins de 10 minutes à pied. Niveau transports en commun, il y a huit gares à moins de 10 minutes en voiture. Il y a un accès à l'autoroute A26 à 5 km. On trouve un tennis, une bibliothèque, deux boulangeries, quatre commerces, une supérette, un bureau de poste et une boucherie-charcuterie à quelques minutes à peine.
Elle est à vendre pour la somme de 190 000 €.
N'hésitez pas à prendre contact avec notre constructeur (WALRYCK Franck : (Numéro supprimé)) pour plus d'informations sur cette maison ou sur les démarches à suivre. Maisons France Confort Béthune vous accompagne à toutes les étapes de votre projet et dans tous vos projets immobiliers.
Logement susceptibles de vous intéresser
Nous vous proposons de découvrir aussi cette sélection de logements situés à moins de 10km de Lapugnoy et qui seraient susceptibles de vous intéresser.
Houdain
TERRAINHoudain : terrain de 324 m² en venteEMPLACEMENT PRIVILÉGIÉ – PROCHE D’ARRAS LENS rocade miniéreÀ Houdain (62150) à 42 km de la frontière belge et à quelques kilomètres d’Arras, venez découvrir ce terrain de 324 m². Ce terrain, avec vue sur espace vert, bénéficie d’une exposition sud. Il est situé dans un secteur recherché. On trouve des établissements scolaires maternelles et élémentaires à moins de 10 minutes à pied. Côté transports, il y a cinq gares à moins de 10 minutes en voiture. L’autoroute A26 est accessible à 9 km. On trouve une bibliothèque, un tennis, des commerces, une boulangerie, deux supermarchés, une boucherie-charcuterie et un bureau de poste à proximité. TVA 5.5 possible ( conditions en agence)Son prix de vente est de 44 208 €. Contactez Sylvaine CHARLET ((Numéro supprimé)) pour toute information sur ce terrain ou sur les démarches à suivre. Maisons France Confort Hénin-Beaumont vous accompagne à toutes les étapes de votre projet et dans tous vos projets immobiliers.
Houdain
TERRAIN ET MAISONVENTE d’une maison F2 (50 m²) à HoudainEMPLACEMENT PRIVILÉGIÉ – MAISON 2 PIÈCES NEUVEÀ vendre à quelques kilomètres de la Belgique et à 25 km d’Arras, bénéficiant d’un emplacement d’exception dans Houdain (62150), votre agence Maisons France Confort Hénin-Beaumont est ravie de vous proposer cette maison de 2 pièces de plain-pied de 50 m² et de 324 m² de terrain. Son intérieur comporte une chambre, une cuisine et une salle de bains.La maison est neuve.Elle se trouve dans un quartier recherché. Des écoles maternelles et élémentaires sont implantées à moins de 10 minutes à pied. Côté transports en commun, il y a cinq gares à moins de 10 minutes en voiture. On trouve un accès à l’autoroute A26 à 9 km. On trouve une bibliothèque, un tennis, des commerces, une boulangerie, deux supermarchés, un bureau de poste et une boucherie-charcuterie à proximité.Elle est à vendre pour la somme de 165 000 €.N’hésitez pas à prendre contact avec Sylvaine CHARLET (tél : (Numéro supprimé)) pour toute question sur cette maison, sur les démarches à suivre ou sur les modalités de vente. Maisons France Confort Hénin-Beaumont est là pour vous accompagner dans tous vos projets immobiliers.
Houdain
TERRAIN ET MAISONHoudain : maison F2 (60 m²) à vendreEMPLACEMENT PRIVILÉGIÉ – MAISON 2 PIÈCES NEUVEEn vente : à moins de 42 km de la Belgique et à quelques kilomètres d’Arras, votre agence Maisons France Confort Hénin-Beaumont est heureuse de vous proposer cette maison de 2 pièces de plain-pied de 60 m² et de 324 m² de terrain, bénéficiant d’un emplacement d’exception dans Houdain (62150). Conçue de plain-pied, elle est composée d’une chambre, d’une cuisine et d’une salle de bains.La maison est neuve.Elle se trouve dans un quartier prisé. Des écoles maternelles et élémentaires sont implantées à moins de 10 minutes à pied. Niveau transports en commun, on trouve cinq gares à moins de 10 minutes en voiture. Il y a un accès à l’autoroute A26 à 9 km. Il y a une bibliothèque, un tennis, des commerces, une boulangerie, deux supermarchés, une boucherie-charcuterie et un bureau de poste dans les environs.Elle est proposée à l’achat pour 174 200 €.Contactez notre constructeur (Sylvaine CHARLET : (Numéro supprimé)) pour toute question sur la maison, sur les démarches à suivre ou sur les modalités de vente.
Houdain
TERRAIN ET MAISONVENTE : maison de 5 pièces (80 m²) à HoudainEMPLACEMENT PRIVILÉGIÉ – MAISON 5 PIÈCES NEUVEEn vente à 42 km de la frontière belge et à quelques kilomètres d’Arras, bénéficiant d’un emplacement d’exception dans Houdain (62150), Maisons France Confort Hénin-Beaumont vous propose cette maison de 5 pièces de plain-pied de 80 m² et de 324 m² de terrain. Son intérieur comporte trois chambres, une cuisine et une salle de bains.La maison est neuve.Elle se trouve dans un secteur recherché. Des établissements scolaires maternelles et élémentaires sont implantés à moins de 10 minutes à pied. Niveau transports en commun, on trouve cinq gares à moins de 10 minutes en voiture. On trouve un accès à l’autoroute A26 à 9 km. Il y a une bibliothèque, un tennis, des commerces, une boulangerie, deux supermarchés, une boucherie-charcuterie et un bureau de poste à quelques minutes.Elle est à vendre pour la somme de 199 900 €.Prenez contact avec Sylvaine CHARLET ((Numéro supprimé)) pour plus de renseignements sur cette maison, sur les démarches à suivre ou sur les modalités de vente. Maisons France Confort Hénin-Beaumont est là pour vous accompagner à toutes les étapes de votre projet.
Houdain
TERRAIN ET MAISONHoudain : maison de 4 pièces (94 m²) en venteEMPLACEMENT PRIVILÉGIÉ – MAISON 4 PIÈCES NEUVE CONFORT DE L OSSATURE BOIS!En vente à moins de 42 km de la Belgique et à 25 km d’Arras, ayez le coup de coeur pour cette maison de 4 pièces de plain-pied de 94 m² bénéficiant d’un emplacement privilégié dans Houdain (62150).Son intérieur compte trois chambres, une cuisine et deux salles de bains. La maison est neuve.Le terrain du bien est de 324 m².Elle est située dans un quartier convoité. Des écoles maternelles et élémentaires se trouvent à moins de 10 minutes à pied. Côté transports, il y a cinq gares à moins de 10 minutes en voiture. L’autoroute A26 est accessible à 9 km. On trouve une bibliothèque, un tennis, des commerces, une boulangerie, deux supermarchés, une boucherie-charcuterie et un bureau de poste à proximité.Elle est à vendre pour la somme de 269 000 €.Prenez contact avec notre agence (CHARLET Sylvaine : (Numéro supprimé)) pour toute question sur cette maison.
Houdain
TERRAIN ET MAISONMaison F5 (80 m²) à vendre à HoudainEMPLACEMENT PRIVILÉGIÉ – MAISON 5 PIÈCES NEUVEÀ 42 km de la frontière belge et à deux pas d’Arras, nous vous proposons en vente, bénéficiant d’un emplacement privilégié dans Houdain (62150), cette maison de 5 pièces de plain-pied de 80 m² et de 324 m² de terrain.Elle se divise en quatre chambres, une cuisine et deux salles de bains. Cette maison est neuve.Elle se trouve dans un secteur convoité. Des établissements scolaires primaires sont implantés à moins de 10 minutes à pied. Niveau transports, il y a cinq gares à moins de 10 minutes en voiture. L’autoroute A26 est accessible à 9 km. On trouve une bibliothèque, un tennis, des commerces, une boulangerie, deux supermarchés, une boucherie-charcuterie et un bureau de poste dans les environs.Elle est proposée à l’achat pour 209 000 €.Prenez contact avec notre agence (CHARLET Sylvaine : (Numéro supprimé)) pour obtenir de plus amples renseignements sur la propriété ou sur les démarches à suivre. Maisons France Confort Hénin-Beaumont est là pour vous accompagner dans tous vos projets immobiliers.
Houdain
TERRAIN ET MAISONHoudain : maison T5 (90 m²) en venteEMPLACEMENT PRIVILÉGIÉ – MAISON 5 PIÈCES NEUVEProche de la Belgique et à quelques kilomètres d’Arras, votre agence Maisons France Confort Hénin-Beaumont est heureuse de vous présenter cette maison de 5 pièces de 90 m² bénéficiant d’un emplacement privilégié dans Houdain (62150).Cette maison comporte 2 niveaux. Elle offre trois chambres, une cuisine et une salle de bains. La maison est neuve.Le terrain de la propriété s’étend sur 324 m².Elle se situe dans un secteur attractif. Des écoles maternelles et élémentaires se trouvent à moins de 10 minutes à pied. Côté transports en commun, il y a cinq gares à moins de 10 minutes en voiture. L’autoroute A26 est accessible à 9 km. On trouve une bibliothèque, un tennis, des commerces, une boulangerie, deux supermarchés, un bureau de poste et une boucherie-charcuterie à quelques minutes à peine.Son prix de vente est de 219 000 €.Contactez Sylvaine CHARLET (tél : (Numéro supprimé)) pour tout renseignement sur cette maison ou sur les démarches à suivre.
Houdain
TERRAINHoudain : terrain de 419 m² à vendreIDÉALEMENT SITUÉ – En vente à Houdain (62150), terrain de 419 m². Réalisez-y votre projet de construction. Il donne sur un jardin. Dans un quartier prisé, le terrain idéalement situé est proche des écoles et des commerces. Il y a des écoles maternelles et élémentaires à moins de 10 minutes à pied. Côté transports, on trouve cinq gares à moins de 10 minutes en voiture. Il y a un accès à l’autoroute A26 à 9 km. Il y a une bibliothèque, un tennis, des commerces, une boulangerie, deux supermarchés, un bureau de poste et une boucherie-charcuterie à quelques minutes du terrain.Ce terrain est proposé à l’achat pour 53 045 €. N’hésitez pas à prendre contact avec notre agence (BAVENCOFFE Alexis : (Numéro supprimé)) pour obtenir de plus amples renseignements sur le terrain, sur les démarches à suivre ou sur les modalités de vente. Maisons France Confort Arras vous accompagne dans tous vos projets immobiliers et à toutes les étapes de l’achat.Projet soumis à des conditions spécifiques de revenus ( tva 5.5 % )
Houdain
TERRAIN ET MAISONVENTE d’une maison T4 (90 m²) à HoudainIDÉALEMENT SITUÉE – MAISON 4 PIÈCES NEUVEÀ vendre idéalement située dans Houdain (62150), ayez le coup de coeur pour cette maison de 4 pièces de 90 m² avec vue sur jardin.C’est une maison de plain-pied. Son intérieur se divise en trois chambres, une cuisine et une salle de bains. La maison est neuve.Le terrain du bien s’étend sur 419 m².Elle se situe dans un secteur attractif. Il y a des établissements scolaires primaires à moins de 10 minutes à pied. Niveau transports, on trouve cinq gares à moins de 10 minutes en voiture. L’autoroute A26 est accessible à 9 km. Il y a une bibliothèque, un tennis, des commerces, une boulangerie, deux supermarchés, une boucherie-charcuterie et un bureau de poste dans les environs.Elle est proposée à l’achat pour 180 000 €.Contactez Alexis BAVENCOFFE (tél : (Numéro supprimé)) pour toute information sur cette propriété ou sur les démarches à suivre. Maisons France Confort Arras vous accompagne à toutes les étapes de l’achat et dans tous vos projets immobiliers.
L’actualité immobilière à Lapugnoy
27/11/2023
02/11/2023
30/10/2023
20/10/2023
16/10/2023
16/10/2023