Maison à construire à Libercourt (62820)
Images
Description
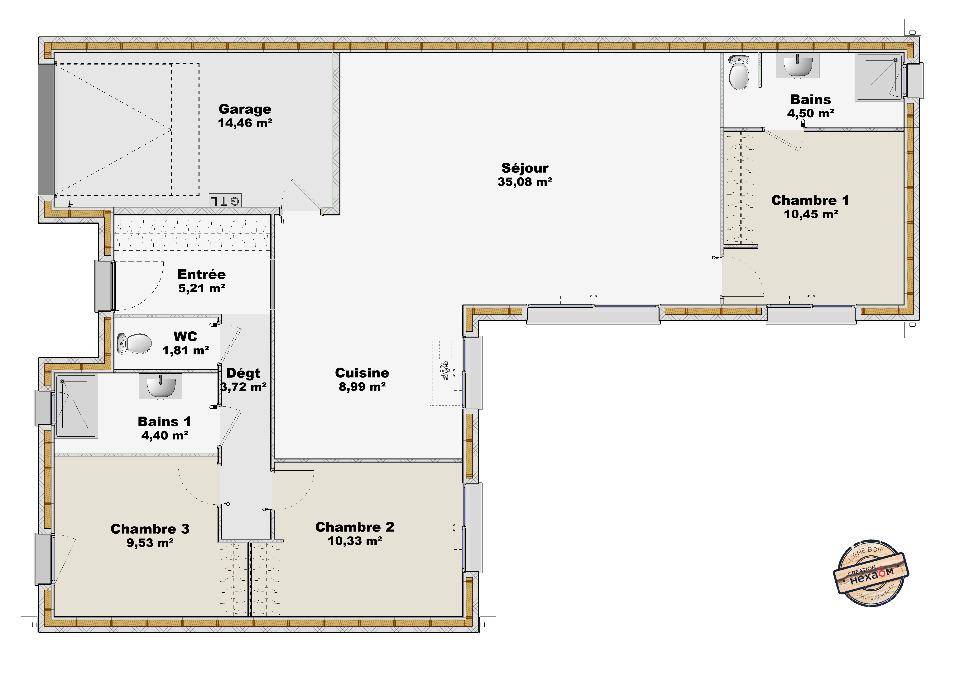
A construire à Libercourt cette maison de plain pied en L à OSSATURE BOIS de 94m2 + garage
A 5mn de Carvin et 20mn de Lille, nous sommes ravis de vous présenter cette maison de plain-pied de 94 m², idéalement située dans Libercourt (62820).
La maison à OSSATURE BOIS présente de nombreux avantages : délai de construction, gain sur les intérêts intercalaires, performance énergétique
Elle se compose d'une belle pièce de vie ouverte et lumineuse, de 4 chambres dont une suite parentale ave salle d'eau et une salle de bains
Le terrain du bien est de 522 m².
Cette maison est à construire
Elle se trouve dans un secteur convoité. Cinq établissements scolaires sont implantés à moins de 10 minutes à pied, tout comme une crèche. Niveau transports en commun, il y a la gare Libercourt dans les alentours. Les autoroutes A1 et A21 sont accessibles à moins de 6 km.
Elle est à vendre pour la somme de 285 954 €.
N'hésitez pas à prendre contact avec Carole DOLLET (tél : (Numéro supprimé)) pour toute information sur ce bien ou sur les démarches à suivre. Maisons France Confort Hénin-Beaumont est là pour vous accompagner dans tous vos projets immobiliers.
Logement susceptibles de vous intéresser
Nous vous proposons de découvrir aussi cette sélection de logements situés à moins de 10km de Libercourt et qui seraient susceptibles de vous intéresser.
Libercourt
TERRAINA vendre terrain de 522 m² à Libercourt pour la construction d’une Maison France ConfortTerrain idéalement situé à 5mn de Carvin, 20mn de LilleIl est prêt à accueillir la maison de vos rêves pour toute la famille. Il donne sur un bois. Dans un quartier attractif, le terrain idéalement situé est proche des écoles et des commerces. Cinq établissements scolaires se trouvent à moins de 10 minutes à pied, tout comme une crèche. Niveau transports, il y a la gare Libercourt dans les environs. Les autoroutes A1 et A21 sont accessibles à moins de 6 km. Ce terrain est à vendre pour la somme de 60 000 €. Prenez contact avec Carole DOLLET ((Numéro supprimé)) pour toute information sur ce terrain ou sur les démarches à suivre. Faites de vos projets immobiliers une réalité avec Maisons France Confort Hénin-Beaumont.
Libercourt
TERRAIN ET MAISONA construire à Libercourt cette maison de plain pied en L à OSSATURE BOIS de 94m2 + garageA 5mn de Carvin et 20mn de Lille, nous sommes ravis de vous présenter cette maison de plain-pied de 94 m², idéalement située dans Libercourt (62820). La maison à OSSATURE BOIS présente de nombreux avantages : délai de construction, gain sur les intérêts intercalaires, performance énergétiqueElle se compose d’une belle pièce de vie ouverte et lumineuse, de 4 chambres dont une suite parentale ave salle d’eau et une salle de bainsLe terrain du bien est de 522 m².Cette maison est à construireElle se trouve dans un secteur convoité. Cinq établissements scolaires sont implantés à moins de 10 minutes à pied, tout comme une crèche. Niveau transports en commun, il y a la gare Libercourt dans les alentours. Les autoroutes A1 et A21 sont accessibles à moins de 6 km. Elle est à vendre pour la somme de 285 954 €.N’hésitez pas à prendre contact avec Carole DOLLET (tél : (Numéro supprimé)) pour toute information sur ce bien ou sur les démarches à suivre. Maisons France Confort Hénin-Beaumont est là pour vous accompagner dans tous vos projets immobiliers.
Hénin-Beaumont
TERRAINVENTE : terrain de 430 m² à Henin Beaumont en lotissementA deux pas de l’accès des autoroutes A1 et A21, 10mn de Carvin, 30mn de LilleCe terrain de 430 m² est prêt à accueillir la maison de vos rêves pour toute la famille. Ce terrain, avec vue sur jardin,Dans un quartier prisé, le terrain idéalement situé est proche des écoles et des commerces. On trouve une école Maternelle à moins de 10 minutes à pied.Niveau transports en commun, il y a une gare à moins de 10 minutes . Ce terrain est à vendre pour la somme de 63 000€. N’hésitez pas à prendre contact avec notre agence (Carole DOLLET : (Numéro supprimé)) pour plus d’informations sur le terrain, sur les modalités de vente ou sur les démarches
Hénin-Beaumont
TERRAIN ET MAISONA Henin Beaumont, construisez votre maison de plain pied de 92m2Proche centre de la gare, A deux pas de l’accès des autoroutes A1 et A21, 10mn de Carvin, 30mn de LilleNous sommes heureux de vous proposer cette maison de plain-pied de 92 m². Elle comporte trois chambres, une pièce de vie ouverte et lumineuse de 42m2, salle de bains Le terrain de la propriété s’étend sur 430 m².La maison est à construire.Elle se trouve dans un secteur prisé. Il y a des établissements scolaires (de la maternelle au lycée) à moins de 10 minutes à pied. Elle est proposée à l’achat pour 209 563 €.Contactez Carole DOLLET (tél : (Numéro supprimé)) pour toute question sur cette maison et sur les modalités de vente.
Billy-Montigny
TERRAINBilly-Montigny : terrain de 543 m² en venteEMPLACEMENT PRIVILÉGIÉ – PROCHE DE LILLEDans le cadre d’un projet immobilier avec Maisons France Confort. Projet éligible à la TVA 5,5% (conditions et éligibilités sur rendez-vous).Grand terrain à 32 km de la frontière belge et à 26 km de Lille. De 543 m², ce terrain se situe bénéficiant d’un emplacement privilégié dans Billy-Montigny (62420). Dans un secteur convoité, le terrain est proche des commerces et des écoles. Cinq établissements scolaires sont implantés à moins de 10 minutes à pied. Niveau transports, il y a la gare Billy-Montigny juste à côté. Les autoroutes A21, A1 et A211 et les nationales N17 et N47 sont accessibles à moins de 8 km. On trouve une bibliothèque, un bassin de natation, un tennis, des commerces, deux supermarchés, des boulangeries, une supérette et un bureau de poste dans les environs.Il est proposé à l’achat pour 65 990 €. N’hésitez pas à prendre contact avec notre agence (KENNEDY Maxime : (Numéro supprimé)) pour obtenir de plus amples informations sur ce terrain, sur les démarches à suivre ou sur les modalités de vente. Concrétisez vos projets immobiliers avec Maisons France Confort Valenciennes.Annonce proposée par un Agent Commercial Partenaire.
Billy-Montigny
TERRAIN ET MAISONEMPLACEMENT PRIVILÉGIÉ – MAISON NEUVE DE PLAIN-PIED A CONSTRUIRE VOTRE CONSEILLER : Maxime KENNEDY – (Numéro supprimé)Venez découvrir votre future maison neuve sur la commune de Billy-Montigny. Il s’agit d’une maison de 4 pièces de plain-pied contemporaine en toiture 4 pans, d’une surface de 93 m². Cette maison dispose de trois chambres, d’un espace de vie ouvert et lumineux, d’une salle de bains, d’un cellier et d’une salle de bains. Construction conforme aux dernières normes RE2020 (basse consommation) sur une base de mur en biobric revêtu d’un enduit (avec bichromie ou non) selon la couleur souhaitée. Mode de chauffage dernière génération via pompe à chaleur air / air type RIBO (meilleur confort l’hiver comme l’été). Plans sur mesures et modifiables à la demande. Garanties et assurances obligatoires incluses (voir détails en agence). Hors raccordements, hors branchements, hors frais de notaire sur le terrain. Terrain sélectionné et vu pour vous sous réserve de disponibilité et au prix indiqué par notre partenaire foncier. La maison est située dans un quartier recherché proche de Montigny-en-Gohelle, Hénin-Beaumont, Rouvroy, Méricourt, Harnes, Courrières, Oignies, Carvin, Lens, Lille, etcA proximité des écoles et commerces de proximités.Son prix de vente est de 191 300 €. Projet éligible à la TVA 5,5% (conditions et éligibilités sur rendez-vous).Contactez Maxime Kennedy ((Numéro supprimé)) pour toute information sur cette maison. Pourquoi faire confiance à Maisons France confort ? Maisons France Confort c’est le numéro 1 en France de la construction de maisons individuelles avec nos maisons personnalisables et qui s’adaptent à chaque budget. C’est un accompagnement personnel dans toutes les démarches et étapes de votre projet immobilier (terrain, maison et financement entre autres). Ensemble, construisons la maison qui vous ressemble !Annonce proposée par un Agent Commercial Partenaire.
Billy-Montigny
TERRAIN ET MAISONEMPLACEMENT PRIVILÉGIÉ – MAISON NEUVE DE PLAIN-PIED A CONSTRUIRE VOTRE CONSEILLER : Maxime KENNEDY – (Numéro supprimé)Venez découvrir votre future maison neuve sur la commune de Billy-Montigny. Il s’agit d’une maison de 4 pièces de plain-pied contemporaine en toiture 4 pans, d’une surface de 93 m². Cette maison dispose de trois chambres, d’un espace de vie ouvert et lumineux, d’une salle de bains, d’un cellier et d’une salle de bains. Construction conforme aux dernières normes RE2020 (basse consommation) sur une base de mur composite (mur en bio bric de 20 cm + vide d’air + briques moulées-mains).Mode de chauffage dernière génération via pompe à chaleur air / air type RIBO (meilleur confort l’hiver comme l’été). Plans sur mesures et modifiables à la demande. Garanties et assurances obligatoires incluses (voir détails en agence). Hors raccordements, hors branchements, hors frais de notaire sur le terrain. Terrain sélectionné et vu pour vous sous réserve de disponibilité et au prix indiqué par notre partenaire foncier. La maison est située dans un quartier recherché proche de Montigny-en-Gohelle, Hénin-Beaumont, Rouvroy, Méricourt, Harnes, Courrières, Oignies, Carvin, Lens, Lille, etcA proximité des écoles et commerces de proximités.Son prix de vente est de 204 330 €. Projet éligible à la TVA 5,5% (conditions et éligibilités sur rendez-vous).Contactez Maxime Kennedy ((Numéro supprimé)) pour toute information sur cette maison. Pourquoi faire confiance à Maisons France confort ? Maisons France Confort c’est le numéro 1 en France de la construction de maisons individuelles avec nos maisons personnalisables et qui s’adaptent à chaque budget. C’est un accompagnement personnel dans toutes les démarches et étapes de votre projet immobilier (terrain, maison et financement entre autres). Ensemble, construisons la maison qui vous ressemble !Annonce proposée par un Agent Commercial Partenaire.
Billy-Montigny
TERRAIN ET MAISONEMPLACEMENT PRIVILÉGIÉ – MAISON NEUVE DE PLAIN-PIED A CONSTRUIRE VOTRE CONSEILLER : Maxime KENNEDY – (Numéro supprimé)Venez découvrir votre future maison neuve sur la commune de Billy-Montigny. Il s’agit d’une maison de 4 pièces de plain-pied contemporaine en toiture 4 pans, d’une surface de 93 m² habitable + garage accolé en toiture 3 versants de 15 m². Cette maison dispose de trois chambres, d’un espace de vie ouvert et lumineux, d’une salle de bains, d’un cellier, d’une salle de bains et d’un garage de 15 m².Construction conforme aux dernières normes RE2020 (basse consommation) sur une base de mur enduit biton (mur en bio bric de 20 cm + enduit projeté avec coloris au choix).Mode de chauffage dernière génération via pompe à chaleur air / eau sur plancher chauffant et rafraichissant. Plans sur mesures et modifiables à la demande. Garanties et assurances obligatoires incluses (voir détails en agence). Hors raccordements, hors branchements, hors frais de notaire sur le terrain. Terrain sélectionné et vu pour vous sous réserve de disponibilité et au prix indiqué par notre partenaire foncier. La maison est située dans un quartier recherché proche de Montigny-en-Gohelle, Hénin-Beaumont, Rouvroy, Méricourt, Harnes, Courrières, Oignies, Carvin, Lens, Lille, etcA proximité des écoles et commerces de proximités.Son prix de vente est de 210 600 €. Projet éligible à la TVA 5,5% (conditions et éligibilités sur rendez-vous).Contactez Maxime Kennedy ((Numéro supprimé)) pour toute information sur cette maison. Pourquoi faire confiance à Maisons France confort ? Maisons France Confort c’est le numéro 1 en France de la construction de maisons individuelles avec nos maisons personnalisables et qui s’adaptent à chaque budget. C’est un accompagnement personnel dans toutes les démarches et étapes de votre projet immobilier (terrain, maison et financement entre autres). Ensemble, construisons la maison qui vous ressemble !Annonce proposée par un
Billy-Montigny
TERRAIN ET MAISONEMPLACEMENT PRIVILÉGIÉ – MAISON NEUVE A CONSTRUIRE VOTRE CONSEILLER : Maxime KENNEDY – (Numéro supprimé)Venez découvrir votre future maison neuve sur la commune de Billy-Montigny. Il s’agit d’une maison de 5 pièces de plain-pied, d’une surface de 100 m² + 15 m² de garage. Cette maison dispose de quatre chambres, d’un espace de vie ouvert et lumineux, d’une salle de bains, d’un garage intégré de 15 m² avec un cellier attenant. Construction conforme aux dernières normes RE2020 (basse consommation) sur une base de mur en biobric revêtu d’un enduit (avec bichromie ou non) selon la couleur souhaitée. Mode de chauffage dernière génération via pompe à chaleur air / air. Plans sur mesures et modifiables à la demande. Garanties et assurances obligatoires incluses (voir détails en agence). Hors raccordements, hors branchements, hors frais de notaire sur le terrain. Terrain sélectionné et vu pour vous sous réserve de disponibilité et au prix indiqué par notre partenaire foncier. La maison est située dans un quartier recherché proche de Montigny-en-Gohelle, Hénin-Beaumont, Rouvroy, Méricourt, Harnes, Courrières, Oignies, Carvin, Lens, Lille, etcA proximité des écoles et commerces de proximités.Son prix de vente est de 204 500 €. Projet éligible à la TVA 5,5% (conditions et éligibilités sur rendez-vous).Contactez Maxime Kennedy ((Numéro supprimé)) pour toute information sur cette maison. Pourquoi faire confiance à Maisons France confort ? Maisons France Confort c’est le numéro 1 en France de la construction de maisons individuelles avec nos maisons personnalisables et qui s’adaptent à chaque budget. C’est un accompagnement personnel dans toutes les démarches et étapes de votre projet immobilier (terrain, maison et financement entre autres). Ensemble, construisons la maison qui vous ressemble !Annonce proposée par un Agent Commercial Partenaire.
L’actualité immobilière à Libercourt
27/11/2023
02/11/2023
30/10/2023
20/10/2023
16/10/2023
16/10/2023