Maison à construire à Neuve-Chapelle (62840)
Images
Description
MAISON OSSATURE BOIS
Neuve-Chapelle : maison F4 (75 m²) à vendre
EMPLACEMENT PRIVILÉGIÉ - MAISON 4 PIÈCES NEUVE
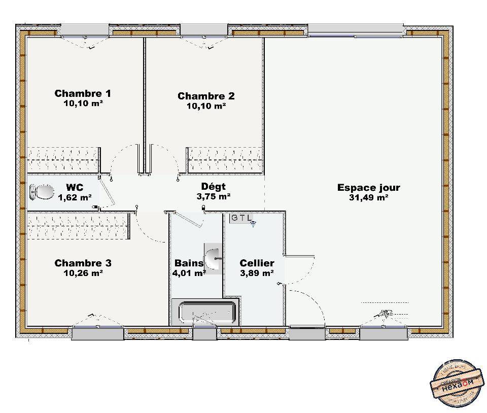
Maisons France Confort Hénin-Beaumont vous propose cette maison de 4 pièces de plain-pied de 75 m² et de 561 m² de terrain.
Conçue de plain-pied, elle dispose de trois chambres, d'une cuisine et d'une salle de bains. Cette maison est neuve.
Elle se trouve dans un secteur prisé. L'École Primaire Vieux Moulin est implantée à moins de 10 minutes à pied. Niveau transports en commun, on trouve 2 gares à moins de 10 minutes en voiture. La nationale N47 est accessible à 7 km. Il y a une boulangerie dans les environs.
Elle est à vendre pour la somme de 250 122 €.
Contactez notre agence (HAUSTRATE Thomas : (Numéro supprimé)) pour tout renseignement sur ce bien, sur les démarches à suivre ou sur les modalités de vente.
Logement susceptibles de vous intéresser
Nous vous proposons de découvrir aussi cette sélection de logements situés à moins de 10km de Neuve-Chapelle et qui seraient susceptibles de vous intéresser.
La Couture
TERRAINTerrain de 609 m² en vente à La CoutureIDÉALEMENT SITUÉ – PROCHE DE LILLEÀ La Couture (62136), projetez la maison de vos rêves sur ce terrain de 609 m². Ce terrain, avec vue sur espace vert, est exposé au sud-est. Dans un quartier prisé, le terrain idéalement situé est proche des écoles et des commerces. L’École Primaire du Centre Antoine de Saint-Exupéry se trouve à moins de 10 minutes à pied. Niveau transports en commun, il y a six gares à moins de 10 minutes en voiture. L’autoroute A26 et la nationale N47 sont accessibles à moins de 10 km. On trouve quatre commerces, une boulangerie et une épicerie à proximité du bien.Il est à vendre pour la somme de 76 700 €. N’hésitez pas à prendre contact avec Marie HALFTERMEYER ((Numéro supprimé)) pour obtenir de plus amples renseignements sur ce terrain, sur les démarches à suivre ou sur les modalités de vente. Maisons France Confort Béthune vous accompagne à toutes les étapes de votre projet et dans tous vos projets immobiliers.
La Couture
TERRAIN ET MAISONMaison de 5 pièces (135 m²) en vente à La CoutureIDÉALEMENT SITUÉE – MAISON 5 PIÈCES NEUVEÀ vendre : Proche Lille, idéalement située dans La Couture (62136), nous vous présentons cette maison de 5 pièces de 135 m² et de 609 m² de terrain avec vue sur espace vert. Son intérieur compte quatre chambres, une cuisine et deux salles de bains.Il s’agit d’une maison de 2 niveaux. Elle est neuve.Elle se trouve dans un quartier prisé. Il y a l’École Primaire du Centre Antoine de Saint-Exupéry à moins de 10 minutes à pied. Niveau transports, on trouve six gares à moins de 10 minutes en voiture. L’autoroute A26 et la nationale N47 sont accessibles à moins de 10 km. Il y a quatre commerces, une boulangerie et une épicerie à quelques minutes à peine.Son prix de vente est de 334 000 €.Contactez notre agence (Marie HALFTERMEYER : (Numéro supprimé)) pour plus de renseignements sur cette maison, sur les démarches à suivre ou sur les modalités de vente.
La Couture
TERRAIN ET MAISONMaison de 5 pièces (90 m²) en vente à La CoutureIDÉALEMENT SITUÉE – MAISON 5 PIÈCES NEUVEEn vente proche de Lille, venez découvrir, idéalement située dans La Couture (62136), cette maison de 5 pièces de plain-pied de 90 m² et de 609 m² de terrain. Son intérieur offre trois chambres, une cuisine et une salle de bains.La maison est neuve.Elle se trouve dans un secteur attractif. L’École Primaire du Centre Antoine de Saint-Exupéry est implantée à moins de 10 minutes à pied. Niveau transports en commun, il y a six gares à moins de 10 minutes en voiture. L’autoroute A26 et la nationale N47 sont accessibles à moins de 10 km. On trouve quatre commerces, une boulangerie et une épicerie à proximité.Son prix de vente est de 221 000 €.N’hésitez pas à prendre contact avec Marie HALFTERMEYER (tél : (Numéro supprimé)) pour toute question sur cette maison. Faites de vos projets immobiliers une réalité avec Maisons France Confort Béthune.
La Couture
TERRAIN ET MAISONLa Couture : maison T5 (101 m²) en venteIDÉALEMENT SITUÉE – MAISON 5 PIÈCES NEUVEÀ vendre : Notre agence Maisons France Confort Béthune est ravie de vous présenter, idéalement située dans La Couture (62136), cette maison de 5 pièces de plain-pied de 101 m² et de 609 m² de terrain.Elle compte quatre chambres, une cuisine et une salle de bains. Cette maison est neuve.Elle se trouve dans un quartier convoité. Il y a l’École Primaire du Centre Antoine de Saint-Exupéry à moins de 10 minutes à pied. Niveau transports en commun, on trouve six gares à moins de 10 minutes en voiture. L’autoroute A26 et la nationale N47 sont accessibles à moins de 10 km. Il y a quatre commerces, une boulangerie et une épicerie dans les environs.Elle est à vendre pour la somme de 234 000 €.Contactez notre agence (HALFTERMEYER Marie : (Numéro supprimé)) pour tout renseignement sur cette maison, sur les démarches à suivre ou sur les modalités de vente. Faites de vos projets immobiliers une réalité avec Maisons France Confort Béthune.
La Couture
TERRAIN ET MAISONVENTE d’une maison de 5 pièces (124 m²) à La CoutureIDÉALEMENT SITUÉE – MAISON 5 PIÈCES NEUVEÀ vendre :Découvrez cette maison de 5 pièces de plain-pied de 124 m² et de 609 m² de terrain idéalement située dans La Couture (62136). Son intérieur est composé de quatre chambres, d’une cuisine et de deux salles de bains.Cette maison est neuve.Elle est située dans un quartier prisé. Il y a l’École Primaire du Centre Antoine de Saint-Exupéry à moins de 10 minutes à pied. Côté transports, on trouve six gares à moins de 10 minutes en voiture. L’autoroute A26 et la nationale N47 sont accessibles à moins de 10 km. Il y a quatre commerces, une boulangerie et une épicerie dans les environs.Elle est à vendre pour la somme de 374 000 €.Contactez Marie HALFTERMEYER ((Numéro supprimé)) pour obtenir de plus amples renseignements sur la maison, sur les démarches à suivre ou sur les modalités de vente.
Douvrin
TERRAINVENTE : terrain de 400 m² à DouvrinPROCHE DE LILLEProche de la Belgique et à 20 km de Lille à Douvrin (62138), terrain de 400 m². Le terrain est proche des commerces et des écoles. On trouve cinq établissements scolaires à moins de 10 minutes à pied, tout comme une structure d’accueil pour la petite enfance. Niveau transports en commun, il y a 13 gares à moins de 10 minutes en voiture. On trouve un accès à la nationale N47 à 1 km. On trouve un tennis, une bibliothèque, des commerces, une boulangerie, un bureau de poste et une boucherie-charcuterie dans les environs.Il est à vendre pour la somme de 70 000 €. N’hésitez pas à prendre contact avec notre agence (Franck WALRYCK : (Numéro supprimé)) pour toute information sur ce terrain ou sur les modalités de vente. Maisons France Confort Béthune vous accompagne à toutes les étapes de l’achat et dans toutes vos démarches.
Douvrin
TERRAIN ET MAISONVENTE d’une maison de 7 pièces (120 m²) à DouvrinMAISON 7 PIÈCES NEUVE – PROCHE DE LILLEEn vente : localisée proche de la Belgique et à 20 km de Lille, Maisons France Confort Béthune vous présente cette maison de 7 pièces de 120 m² et de 400 m² de terrain à Douvrin (62138). Elle inclut cinq chambres, une cuisine et deux salles de bains.Il s’agit d’une maison de 2 niveaux. Elle est neuve.Cinq établissements scolaires se trouvent à moins de 10 minutes à pied, tout comme une structure d’accueil pour les enfants en bas âge. Côté transports, il y a 13 gares à moins de 10 minutes en voiture. La nationale N47 est accessible à 1 km. On trouve un tennis, une bibliothèque, des commerces, une boulangerie, un bureau de poste et une boucherie-charcuterie à proximité du logement.Elle est proposée à l’achat pour 290 000 €.Contactez notre agence (Franck WALRYCK : (Numéro supprimé)) pour plus d’informations sur la maison. Faites de vos projets immobiliers une réalité avec Maisons France Confort Béthune.
Douvrin
TERRAIN ET MAISONMaison de 6 pièces (125 m²) en vente à DouvrinMAISON 6 PIÈCES NEUVE – PROCHE DE LILLEProche de la Belgique et à 20 km de Lille, votre agence Maisons France Confort Béthune est ravie de vous proposer en vente à Douvrin (62138), cette maison de 6 pièces de 125 m².Cette maison comporte 2 niveaux. Son intérieur compte quatre chambres, une cuisine et deux salles de bains. La maison est neuve.Le terrain du bien est de 400 m².Cinq établissements scolaires sont implantés à moins de 10 minutes à pied, tout comme une crèche. Côté transports en commun, on trouve 13 gares à moins de 10 minutes en voiture. Il y a un accès à la nationale N47 à 1 km. Il y a un tennis, une bibliothèque, des commerces, une boulangerie, une boucherie-charcuterie et un bureau de poste à quelques minutes de la maison.Elle est proposée à l’achat pour 310 000 €.Contactez notre agence (Franck WALRYCK : (Numéro supprimé)) pour plus de renseignements sur ce bien et sur les démarches à suivre. Maisons France Confort Béthune vous accompagne dans tous vos projets immobiliers et à toutes les étapes de votre projet.
Douvrin
TERRAIN ET MAISONMaison de 5 pièces (93 m²) en vente à DouvrinPROCHE DE LILLE – MAISON 5 PIÈCES NEUVEEn vente : proche de la Belgique et à 20 km de Lille, à Douvrin (62138), Maisons France Confort Béthune vous présente cette maison de 5 pièces de plain-pied de 93 m² et de 400 m² de terrain. Son intérieur compte trois chambres, une cuisine et une salle de bains.La maison est neuve.Cinq établissements scolaires sont implantés à moins de 10 minutes à pied, tout comme une crèche. Côté transports en commun, il y a 13 gares à moins de 10 minutes en voiture. La nationale N47 est accessible à 1 km. On trouve un tennis, une bibliothèque, des commerces, une boulangerie, une boucherie-charcuterie et un bureau de poste à quelques minutes du logement.Elle est proposée à l’achat pour 215 000 €.Contactez Franck WALRYCK ((Numéro supprimé)) pour obtenir de plus amples informations sur la maison.
L’actualité immobilière à Neuve-Chapelle
27/11/2023
02/11/2023
30/10/2023
20/10/2023
16/10/2023
16/10/2023