Maison à construire à Noeux-les-Mines (62290)
Images
Description
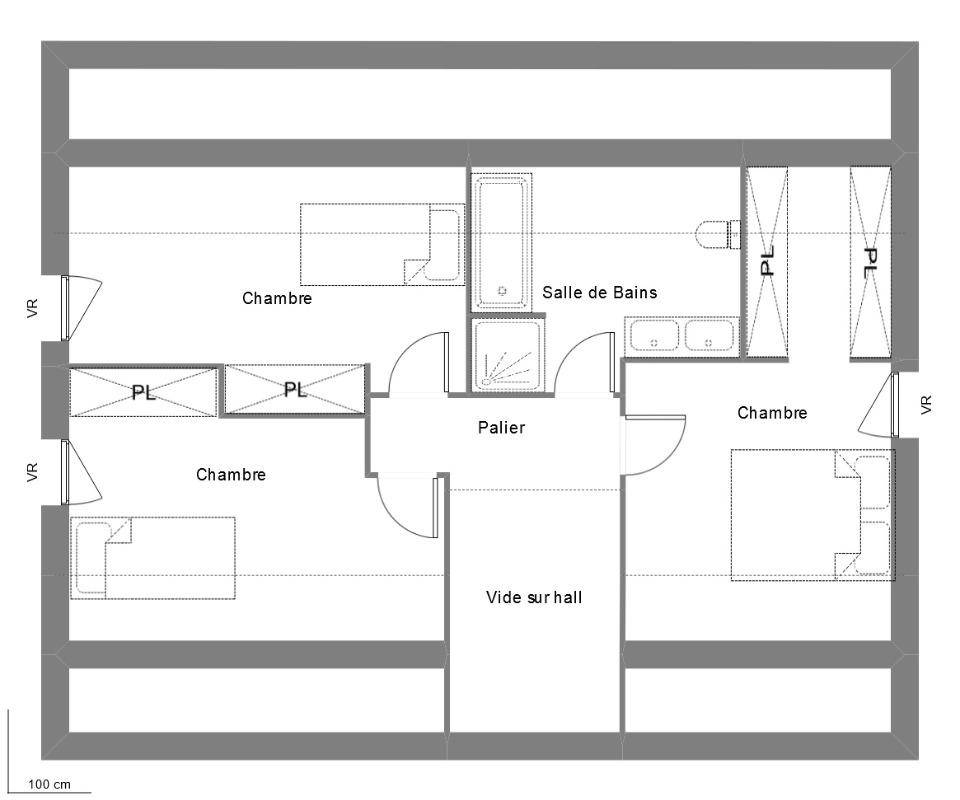
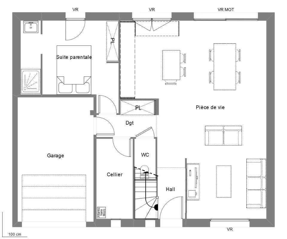
VENTE d'une maison T7 (100 m²) à Noeux-les-Mines
EMPLACEMENT PRIVILÉGIÉ
À deux pas d'Arras, Maisons France Confort Béthune vous présente cette maison de 7 pièces de 100 m² et de 450 m² de terrain à vendre bénéficiant d'un emplacement privilégié dans Noeux-les-Mines (62290). Son intérieur dispose de quatre chambres, d'une cuisine et de deux salles de bains.
Il s'agit d'une maison de 2 niveaux. Elle est neuve.
Elle se situe dans un secteur prisé. Des établissements scolaires de tous niveaux (de la maternelle au lycée) sont implantés à moins de 10 minutes à pied. Niveau transports en commun, on trouve la gare Noeux-les-Mines à quelques pas de la maison. Les autoroutes A26 et A21 sont accessibles à moins de 8 km. Il y a un bassin de natation, des commerces, des boulangeries, deux boucheries-charcuteries, une supérette et deux épiceries à quelques minutes du logement. Ne manquez pas le marché Place du Chateau tous les mardis après-midi.
Son prix de vente est de 235 000 €.
Contactez Franck WALRYCK (tél : (Numéro supprimé)) pour tout renseignement sur la maison. Maisons France Confort Béthune vous accompagne dans toutes vos démarches et dans tous vos projets immobiliers.
Logement susceptibles de vous intéresser
Nous vous proposons de découvrir aussi cette sélection de logements situés à moins de 10km de Nœux-les-Mines et qui seraient susceptibles de vous intéresser.

Nœux-les-Mines
TERRAINTerrain de 450 m² en vente à Noeux-les-MinesEMPLACEMENT PRIVILÉGIÉ – PROCHE D’ARRASÀ Noeux-les-Mines (62290) à deux pas d’Arras, imaginez la maison de vos rêves sur ce terrain de 450 m². Il est orienté au sud-ouest. Dans un secteur recherché, le terrain bénéficiant d’un emplacement privilégié est proche des commerces et des écoles. Il y a des écoles de tous types à moins de 10 minutes à pied. Niveau transports en commun, on trouve la gare Noeux-les-Mines à quelques pas du terrain. Les autoroutes A26 et A21 sont accessibles à moins de 8 km. Il y a un bassin de natation, des commerces, des boulangeries, une supérette, un bureau de poste et deux épiceries à proximité. Ne manquez pas le marché Place du Chateau tous les mardis après-midi.Il est proposé à l’achat pour 55 000 €. Prenez contact avec Franck WALRYCK (tél : (Numéro supprimé)) pour obtenir de plus amples renseignements sur ce terrain ou sur les démarches à suivre. Donnez vie à vos projets immobiliers avec Maisons France Confort Béthune.

Nœux-les-Mines
TERRAIN ET MAISONVENTE d’une maison T7 (100 m²) à Noeux-les-MinesEMPLACEMENT PRIVILÉGIÉ À deux pas d’Arras, Maisons France Confort Béthune vous présente cette maison de 7 pièces de 100 m² et de 450 m² de terrain à vendre bénéficiant d’un emplacement privilégié dans Noeux-les-Mines (62290). Son intérieur dispose de quatre chambres, d’une cuisine et de deux salles de bains.Il s’agit d’une maison de 2 niveaux. Elle est neuve.Elle se situe dans un secteur prisé. Des établissements scolaires de tous niveaux (de la maternelle au lycée) sont implantés à moins de 10 minutes à pied. Niveau transports en commun, on trouve la gare Noeux-les-Mines à quelques pas de la maison. Les autoroutes A26 et A21 sont accessibles à moins de 8 km. Il y a un bassin de natation, des commerces, des boulangeries, deux boucheries-charcuteries, une supérette et deux épiceries à quelques minutes du logement. Ne manquez pas le marché Place du Chateau tous les mardis après-midi.Son prix de vente est de 235 000 €.Contactez Franck WALRYCK (tél : (Numéro supprimé)) pour tout renseignement sur la maison. Maisons France Confort Béthune vous accompagne dans toutes vos démarches et dans tous vos projets immobiliers.

Nœux-les-Mines
TERRAIN ET MAISONVENTE d’une maison de 5 pièces (90 m²) à Noeux-les-MinesEMPLACEMENT PRIVILÉGIÉ En vente : à 22 km d’Arras, Maisons France Confort Béthune est heureuse de vous présenter, bénéficiant d’un emplacement privilégié dans Noeux-les-Mines (62290), cette maison de 5 pièces de plain-pied de 90 m². Son intérieur propose trois chambres, une cuisine et une salle de bains.Le terrain de la propriété est de 450 m².Cette maison est neuve.Elle se situe dans un quartier recherché. Des écoles (de la maternelle au lycée) sont implantées à moins de 10 minutes à pied. Côté transports en commun, on trouve la gare Noeux-les-Mines dans un rayon de 1 km. Les autoroutes A26 et A21 sont accessibles à moins de 8 km. Il y a un bassin de natation, des commerces, des boulangeries, deux boucheries-charcuteries, deux épiceries et un bureau de poste dans les environs. Ne manquez pas le marché Place du Chateau chaque mardi après-midi.Elle est à vendre pour la somme de 200 000 €.N’hésitez pas à prendre contact avec notre agence (Franck WALRYCK : (Numéro supprimé)) pour toute question sur la propriété ou sur les modalités de vente.

Nœux-les-Mines
TERRAIN ET MAISONVENTE : maison de 6 pièces (115 m²) à Noeux-les-MinesEMPLACEMENT PRIVILÉGIÉ – MAISON 6 PIÈCES NEUVEEn vente :à deux pas d’Arras, bénéficiant d’un emplacement privilégié dans Noeux-les-Mines (62290), votre agence Maisons France Confort Béthune est ravie de vous proposer cette maison de 6 pièces de 115 m². Elle propose quatre chambres, une cuisine et deux salles de bains.Le terrain de la propriété s’étend sur 450 m².Il s’agit d’une maison de 2 niveaux. Elle est neuve.Elle se trouve dans un quartier prisé. Il y a des établissements scolaires (de la maternelle au lycée) à moins de 10 minutes à pied. Niveau transports en commun, on trouve la gare Noeux-les-Mines juste à côté. Les autoroutes A26 et A21 sont accessibles à moins de 8 km. Il y a un bassin de natation, des commerces, des boulangeries, un bureau de poste, deux boucheries-charcuteries et une supérette à quelques minutes. Le marché Place du Chateau a lieu chaque mardi après-midi.Elle est proposée à l’achat pour 275 000 €.Contactez Franck WALRYCK (tél : (Numéro supprimé)) pour tout renseignement sur cette maison. Maisons France Confort Béthune vous accompagne dans toutes vos démarches et à toutes les étapes de l’achat.

Nœux-les-Mines
TERRAIN ET MAISONVENTE d’une maison F7 (137 m²) à Noeux-les-MinesEMPLACEMENT PRIVILÉGIÉ – MAISON 7 PIÈCES NEUVEÀ deux pas d’Arras, en vente bénéficiant d’un emplacement privilégié dans Noeux-les-Mines (62290), votre agence Maisons France Confort Béthune est ravie de vous proposer cette maison de 7 pièces de 137 m².Maison à étage à l’architecture design, sa conception lui permet de s’affranchir en grande partie des mansardes et de vous offrir de très beaux volumes avec une pièce de vie de plus de 45 m², une belle suite parentale en rdc, 3 grandes chbs à l’étage ainsi qu’une deuxième sdb et un espace dédié au télétravail associé à un vide sur hall lumineux.Maisons France Confort vous propose une alternative pleine d’originalité et aux prestations haut de gamme.Elle se situe dans un secteur attractif. Tous les types d’écoles (maternelle, élémentaire et secondaire) sont implantés à moins de 10 minutes à pied. Niveau transports, on trouve la gare Noeux-les-Mines dans un rayon de 1 km. Les autoroutes A26 et A21 sont accessibles à moins de 8 km. Il y a un bassin de natation, des commerces, des boulangeries, un bureau de poste, deux boucheries-charcuteries et une supérette à quelques minutes. Enfin, le marché Place du Chateau a lieu chaque mardi après-midi.Son prix de vente est de 315 000 €.N’hésitez pas à prendre contact avec Franck WALRYCK ((Numéro supprimé)) pour toute question sur la maison, sur les modalités de vente ou sur les démarches à suivre. Donnez vie à vos projets immobiliers avec Maisons France Confort Béthune.

Nœux-les-Mines
TERRAIN ET MAISONVENTE : maison de 7 pièces (120 m²) à Noeux-les-MinesEMPLACEMENT PRIVILÉGIÉ – MAISON 7 PIÈCES NEUVEÀ quelques kilomètres d’Arras, Maisons France Confort Béthune vous présente à vendre, bénéficiant d’un emplacement d’exception dans Noeux-les-Mines (62290), cette maison de 7 pièces de 120 m² et de 450 m² de terrain.Il s’agit d’une maison de 2 niveaux. Son intérieur propose cinq chambres, une cuisine et deux salles de bains. Cette maison est neuve.Elle se trouve dans un quartier prisé. Il y a des établissements scolaires de tous niveaux à moins de 10 minutes à pied. Niveau transports en commun, on trouve la gare Noeux-les-Mines juste à côté. Les autoroutes A26 et A21 sont accessibles à moins de 8 km. Il y a un bassin de natation, des commerces, des boulangeries, un bureau de poste, deux épiceries et une supérette à quelques minutes à peine. Ne manquez pas le marché Place du Chateau tous les mardis après-midi.Son prix de vente est de 275 000 €.N’hésitez pas à prendre contact avec notre agence (WALRYCK Franck : (Numéro supprimé)) pour tout renseignement sur la propriété. Maisons France Confort Béthune est là pour vous accompagner dans toutes vos démarches.

Nœux-les-Mines
TERRAIN ET MAISONNoeux-les-Mines EMPLACEMENT PRIVILÉGIÉEn vente à quelques kilomètres d’Arras, nous vous proposons cette maison de 5 pièces de plain-pied de 83 m² et de 450 m² de terrain, bénéficiant d’un emplacement privilégié dans Noeux-les-Mines (62290). Son intérieur inclut trois chambres, une cuisine et une salle de bains.La maison est neuve.Elle se situe dans un secteur attractif. On trouve tous les types d’écoles (maternelle, élémentaire et secondaire) à moins de 10 minutes à pied. Niveau transports, il y a la gare Noeux-les-Mines à proximité. Les autoroutes A26 et A21 sont accessibles à moins de 8 km. On trouve un bassin de natation, des commerces, des boulangeries, un bureau de poste, une supérette et deux boucheries-charcuteries à quelques minutes. Enfin, le marché Place du Chateau a lieu tous les mardis après-midi.Son prix de vente est de 215 000 €.N’hésitez pas à prendre contact avec notre agence (Franck WALRYCK : (Numéro supprimé)) pour toute information sur la maison. Maisons France Confort Béthune vous accompagne dans toutes vos démarches et dans tous vos projets immobiliers.

Aix-Noulette
TERRAINVENTE : terrain de 602 m² à Aix-NouletteEMPLACEMENT PRIVILÉGIÉ – VUE DÉGAGÉEÀ 36 km de la frontière belge et à 26 km de Douai à Aix-Noulette (62160), grand terrain déjà viabilisé et borné. Il est prêt à accueillir votre projet de construction pour toute la famille. Ce terrain, orienté au sud, profite d’une vue dégagée. Dans un quartier convoité, ce terrain bénéficiant d’un emplacement d’exception est proche des écoles et des commerces. L’École Élémentaire Prévert-Mendès France et le Lycée Professionnel Léo Lagrange se trouvent à moins de 10 minutes à pied. Côté transports, il y a sept gares à moins de 10 minutes en voiture. Il y a un accès à l’autoroute A26 à 1 km. On trouve plusieurs commerces, une boulangerie, deux épiceries et un bureau de poste à quelques minutes de la propriété.Il est à vendre pour la somme de 60 500 €. N’hésitez pas à prendre contact avec Marie HALFTERMEYER (tél : (Numéro supprimé)) pour tout renseignement sur le terrain ou sur les démarches à suivre. Maisons France Confort Béthune vous accompagne à toutes les étapes de votre projet et dans tous vos projets immobiliers.

Béthune
TERRAINBéthune : terrain de 374 m² en venteIDÉALEMENT SITUÉ – VUE DÉGAGÉEÀ moins de 10 minutes de Béthune (62400), terrain de 374 m². Réalisez-y votre résidence principale ou secondaire. Ce terrain, orienté sud-ouest, profite d’une vue dégagée. Dans un quartier recherché, le terrain idéalement situé est proche des écoles et des commerces. Des établissements scolaires du primaire et du secondaire se trouvent à moins de 10 minutes à pied. Côté transports en commun, il y a huit gares à moins de 10 minutes en voiture. L’autoroute A26 est accessible à 3 km. On trouve une bibliothèque, un bassin de natation, des commerces, des boulangeries, quatre supermarchés, un bureau de poste et une poissonnerie à quelques minutes. 2 marchés animent les environs.Il est à vendre pour la somme de 40 000 €. Contactez notre agence (Marie HALFTERMEYER : (Numéro supprimé)) pour toute information sur ce terrain. Donnez vie à vos projets immobiliers avec Maisons France Confort Béthune.
L’actualité immobilière à Nœux-les-Mines





