Maison à construire à Rinxent (62720)
Images
Description
VENTE d'une maison T4 (94 m²) à Rinxent
PROCHE GARE - MAISON 4 PIÈCES NEUVE
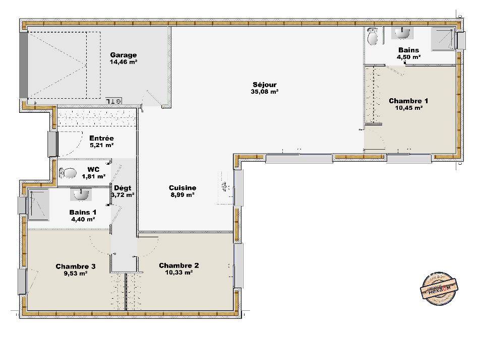
À vendre à 15 km de la Manche et à 19 km de Calais, venez découvrir cette maison de 4 pièces de plain-pied de 94 m² et de 470 m² de terrain dans Rinxent (62720), proche de la gare. Conçue de plain-pied, elle inclut trois chambres, une cuisine et deux salles de bains.
Cette maison est neuve.
Il y a l'école élémentaire Groupe Scolaire Jacques Brel à moins de 10 minutes à pied. Niveau transports en commun, on trouve la gare Marquise-Rinxent dans les alentours. L'autoroute A16 et la nationale N42 sont accessibles à moins de 8 km. Il y a une bibliothèque, un commerce et un supermarché à quelques minutes à peine.
Elle est proposée à l'achat pour 288 155 €.
N'hésitez pas à prendre contact avec Tony SORET (tél : (Numéro supprimé)) pour tout renseignement sur la maison, sur les démarches à suivre ou sur les modalités de vente. Maisons Les Naturelles Boulogne-sur-Mer est là pour vous accompagner à toutes les étapes de votre projet.
« Depuis 1968, Maisons Les Naturelles accompagne ses clients dans la construction de maisons alliant savoir-faire artisanal, traditions et respect de l'environnement.
Avec plus de 5 500 réalisations à notre actif, nous sommes reconnus pour la qualité de nos constructions et notre engagement en faveur d'une approche plus durable de l'habitat.
Nous privilégions des matériaux français, biosourcés et à faible empreinte carbone, tout en collaborant avec des artisans locaux qui partagent nos valeurs.
Parce que chaque client est unique, nous concevons des maisons sur mesure, pensées pour allier esthétique, confort et haute performance énergétique.
Construisons ensemble un avenir plus responsable, en créant des maisons qui s'intègrent harmonieusement à leur environnement et favorisent un mode de vie durable. »
Logement susceptibles de vous intéresser
Nous vous proposons de découvrir aussi cette sélection de logements situés à moins de 10km de Rinxent et qui seraient susceptibles de vous intéresser.
Rinxent
TERRAINPROCHE GARE – entre calais et boulogneÀ Rinxent (62720) à quelques kilomètres de Calais, donnez vie à votre résidence principale ou secondaire sur ce terrain de 490 m². Il est orienté plein sud. Non loin de la gare, ce terrain proche de la gare est proche des écoles et des commerces. Il y a l’école élémentaire Groupe Scolaire Jacques Brel à moins de 10 minutes à pied. Côté transports, on trouve la gare Marquise-Rinxent dans les environs. L’autoroute A16 et la nationale N42 sont accessibles à moins de 8 km. Il y a une bibliothèque, un commerce et un supermarché à proximité.Son prix de vente est de 81 000 €. Prenez contact avec Sabrina HERBEZ (tél : (Numéro supprimé)) pour tout renseignement sur le terrain. Maisons Les Naturelles Boulogne-sur-Mer vous accompagne dans tous vos projets immobiliers et à toutes les étapes de votre projet.
Rinxent
TERRAIN ET MAISONRinxent : maison de 4 pièces (82 m²) à vendrePROCHE GARE – MAISON 4 PIÈCES NEUVEÀ 15 km de la Manche et à quelques kilomètres de Calais, Maisons Les Naturelles Boulogne-sur-Mer vous propose cette maison de 4 pièces de 82 m² proche de la gare de Rinxent (62720).Il s’agit d’une maison de 2 niveaux. Son intérieur inclut trois chambres, une cuisine et une salle de bains. Cette maison est neuve.Le terrain de la propriété s’étend sur 490 m².Il y a l’école élémentaire Groupe Scolaire Jacques Brel à moins de 10 minutes à pied. Côté transports en commun, on trouve la gare Marquise-Rinxent dans les alentours. L’autoroute A16 et la nationale N42 sont accessibles à moins de 8 km. Il y a une bibliothèque, un commerce et un supermarché à quelques minutes du logement.Elle est proposée à l’achat pour 251 700 €.Prenez contact avec notre agence (HERBEZ Sabrina : (Numéro supprimé)) pour toute question sur la maison ou sur les démarches à suivre. Maisons Les Naturelles Boulogne-sur-Mer est là pour vous accompagner dans tous vos projets immobiliers.
Rinxent
TERRAIN ET MAISONRinxent : maison de 5 pièces (90 m²) en ventePROCHE GARE – MAISON 5 PIÈCES NEUVEÀ vendre à 15 km de la Manche et à 19 km de Calais, votre agence Maisons Les Naturelles Boulogne-sur-Mer est heureuse de vous présenter, proche de la gare de Rinxent (62720), cette maison de 5 pièces de plain-pied de 90 m². Son intérieur inclut trois chambres, une cuisine et une salle de bains.Le terrain de cette maison s’étend sur 490 m².Cette maison est neuve.Il y a l’école élémentaire Groupe Scolaire Jacques Brel à moins de 10 minutes à pied. Niveau transports en commun, on trouve la gare Marquise-Rinxent à proximité. L’autoroute A16 et la nationale N42 sont accessibles à moins de 8 km. Il y a une bibliothèque, un commerce et un supermarché dans les environs.Son prix de vente est de 254 700 €.Contactez notre constructeur (Sabrina HERBEZ : (Numéro supprimé)) pour plus d’informations sur la maison, sur les modalités de vente ou sur les démarches à suivre. Maisons Les Naturelles Boulogne-sur-Mer est là pour vous accompagner dans tous vos projets immobiliers.
Rinxent
TERRAIN ET MAISONVENTE : maison F5 (80 m²) à RinxentPROCHE GARE – MAISON 5 PIÈCES NEUVEÀ vendre à 15 km de la Manche et à quelques kilomètres de Calais, Maisons Les Naturelles Boulogne-sur-Mer vous propose cette maison de 5 pièces de plain-pied de 80 m², dans Rinxent (62720), proche de la gare. Elle dispose de trois chambres, d’une cuisine et d’une salle de bains.Le terrain du bien est de 490 m².La maison est neuve.L’école élémentaire Groupe Scolaire Jacques Brel est implantée à moins de 10 minutes à pied. Niveau transports, on trouve la gare Marquise-Rinxent à proximité. L’autoroute A16 et la nationale N42 sont accessibles à moins de 8 km. Il y a une bibliothèque, un commerce et un supermarché dans les environs.Il est à vendre pour la somme de 241 457 €.Contactez notre agence (HERBEZ Sabrina : (Numéro supprimé)) pour toute information sur la maison.
Rinxent
TERRAIN ET MAISONRinxent : maison F5 (113 m²) en ventePROCHE GARE – MAISON 5 PIÈCES NEUVEEn vente : à 15 km de la Manche et à deux pas de Calais, nous sommes heureux de vous présenter cette maison de 5 pièces de plain-pied de 113 m², proche de la gare de Rinxent (62720).Elle offre quatre chambres, une cuisine et deux salles de bains. La maison est neuve.Le terrain de la propriété est de 490 m².Il y a l’école élémentaire Groupe Scolaire Jacques Brel à moins de 10 minutes à pied. Niveau transports en commun, on trouve la gare Marquise-Rinxent à quelques pas du bien. L’autoroute A16 et la nationale N42 sont accessibles à moins de 8 km. Il y a une bibliothèque, un commerce et un supermarché à quelques minutes du logement.Son prix de vente est de 319 000 €.Prenez contact avec Sabrina HERBEZ (tél : (Numéro supprimé)) pour obtenir de plus amples informations sur la maison, sur les modalités de vente ou sur les démarches à suivre.
Rinxent
TERRAIN ET MAISONMaison F5 (114 m²) à vendre à RinxentPROCHE GARE – MAISON 5 PIÈCES NEUVEÀ vendre : située à 15 km de la Manche et à 19 km de Calais, nous sommes heureux de vous proposer cette maison de 5 pièces de 114 m² et de 490 m² de terrain proche de la gare de Rinxent (62720).Il s’agit d’une maison de 2 niveaux. Son intérieur inclut quatre chambres, une cuisine et une salle de bains. La maison est neuve.L’école élémentaire Groupe Scolaire Jacques Brel est implantée à moins de 10 minutes à pied. Côté transports, il y a la gare Marquise-Rinxent juste à côté. L’autoroute A16 et la nationale N42 sont accessibles à moins de 8 km. On trouve une bibliothèque, un commerce et un supermarché à quelques minutes.Elle est proposée à l’achat pour 422 812 €.N’hésitez pas à prendre contact avec notre agence (HERBEZ Sabrina : (Numéro supprimé)) pour toute information sur la maison. Donnez vie à vos projets immobiliers avec Maisons Les Naturelles Boulogne-sur-Mer.
Rinxent
TERRAIN ET MAISONVENTE : maison de 3 pièces (65 m²) à RinxentPROCHE GARE – MAISON 3 PIÈCES NEUVEÀ vendre : localisée à 15 km de la Manche et à deux pas de Calais, proche de la gare de Rinxent (62720), ayez le coup de coeur pour cette maison de 3 pièces de plain-pied de 65 m².Elle comporte deux chambres, une cuisine et une salle de bains. Cette maison est neuve.Le terrain du bien s’étend sur 490 m².On trouve l’école élémentaire Groupe Scolaire Jacques Brel à moins de 10 minutes à pied. Niveau transports en commun, il y a la gare Marquise-Rinxent à quelques pas du bien. L’autoroute A16 et la nationale N42 sont accessibles à moins de 8 km. On trouve une bibliothèque, un commerce et un supermarché dans les environs.Elle est à vendre pour la somme de 229 526 €.Prenez contact avec notre agence (Sabrina HERBEZ : (Numéro supprimé)) pour tout renseignement sur la maison.
Marquise
TERRAINVENTE : terrain de 410 m² à Wierre-EffroyEMPLACEMENT PRIVILÉGIÉ – PROCHE DE CALAISÀ quelques minutes de Marquise.Ce terrain viabilisé est situé dans un quartier convoité. L’École Primaire la Scierie se trouve à moins de 10 minutes à pied. Niveau transports en commun, il y a quatre gares à moins de 10 minutes en voiture. L’autoroute A16 et la nationale N42 sont accessibles à moins de 5 km.Il est à vendre pour la somme de 74 000 €. N’hésitez pas à prendre contact avec notre agence (HUEZ Jean-François : (Numéro supprimé)) pour obtenir de plus amples informations sur ce terrain, sur les modalités de vente ou sur les démarches à suivre.
Marquise
TERRAIN ET MAISONMaison en vente à Wierre-EffroyEMPLACEMENT PRIVILÉGIÉ – MAISON NEUVEEn vente à 16 km de la Manche et à deux pas de Calais, Maisons France Confort Dunkerque vous propose cette maison de plain-pied de 95 m² et de 410 m² de terrain, bénéficiant d’un emplacement d’exception dans Wierre-Effroy (62720).Son intérieur comporte trois chambres, une cuisine et une salle de bains. La maison est neuve.Cette maison se trouve dans un secteur recherché à quelques minutes de Marquise.Ce programme (maison aménagée et terrain) est à vendre pour la somme de 249 000 €.N’hésitez pas à prendre contact avec notre agence (HUEZ Jean-François : (Numéro supprimé)) pour toute question sur la maison ou sur les démarches à suivre. Maisons France Confort Dunkerque vous accompagne dans tous vos projets immobiliers et à toutes les étapes de votre projet.
L’actualité immobilière à Rinxent
27/11/2023
02/11/2023
30/10/2023
20/10/2023
16/10/2023
16/10/2023