Maison à construire à Ruisseauville (62310)
Images
Description
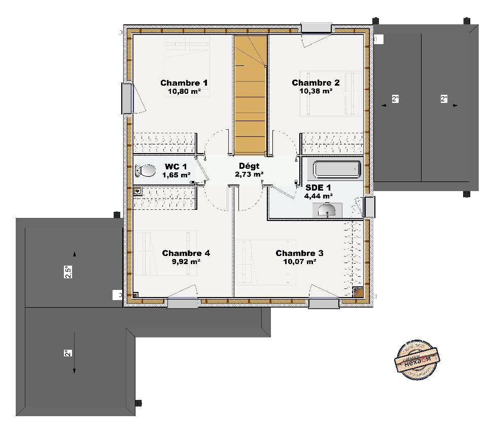
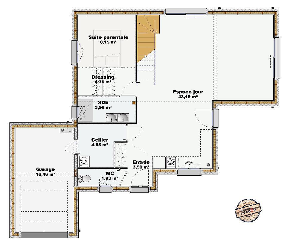
Maison T6 (114 m²) en vente à Ruisseauville
IDÉALEMENT SITUÉE - MAISON 6 PIÈCES NEUVE
En vente : Maisons Les Naturelles Abbeville vous présente cette maison de 6 pièces de 114 m² et de 986 m² de terrain idéalement située dans Ruisseauville (62310).
Cette maison comporte 2 niveaux. Son intérieur comporte cinq chambres, une cuisine et deux salles de bains. Cette maison est neuve.
La maison se trouve dans un quartier prisé. Il y a l'École Primaire-Regroupement Pédagogique Intercommunal Concentré de Ruisseauville à moins de 10 minutes à pied. Côté transports en commun, on trouve les gares Blangy-sur-Ternoise et Auchy-lès-Hesdin à moins de 10 minutes en voiture.
Elle est à vendre pour la somme de 332 720 €.
N'hésitez pas à prendre contact avec notre agence (Maxime JACQUEMONT : (Numéro supprimé)) pour tout renseignement sur la maison. Maisons Les Naturelles Abbeville est là pour vous accompagner dans tous vos projets immobiliers.
Logement susceptibles de vous intéresser
Nous vous proposons de découvrir aussi cette sélection de logements situés à moins de 10km de Ruisseauville et qui seraient susceptibles de vous intéresser.
Ruisseauville
TERRAINVENTE d’un terrain de 986 m² à RuisseauvilleIDÉALEMENT SITUÉÀ Ruisseauville (62310), imaginez la maison de vos rêves sur ce terrain de 986 m². Il donne sur un espace vert. Il est situé dans un quartier convoité. L’École Primaire-Regroupement Pédagogique Intercommunal Concentré de Ruisseauville se trouve à moins de 10 minutes à pied. Côté transports, il y a deux gares (Blangy-sur-Ternoise et Auchy-lès-Hesdin) à moins de 10 minutes en voiture.Ce terrain est à vendre pour la somme de 23 720 €. Contactez notre agence (Maxime JACQUEMONT : (Numéro supprimé)) pour plus d’informations sur le terrain, sur les démarches à suivre ou sur les modalités de vente.
Ruisseauville
TERRAIN ET MAISONVENTE : maison de 4 pièces (85 m²) à RuisseauvilleIDÉALEMENT SITUÉE – MAISON 4 PIÈCES NEUVENous vous présentons à vendre, idéalement située dans Ruisseauville (62310), cette maison de 4 pièces de 85 m² et de 986 m² de terrain avec vue sur espace vert. Elle comporte trois chambres, une cuisine et une salle de bains.Il s’agit d’une maison de plain-pied. Elle est neuve.Ce bien est situé dans un quartier attractif. Il y a l’École Primaire-Regroupement Pédagogique Intercommunal Concentré de Ruisseauville à moins de 10 minutes à pied. Niveau transports en commun, on trouve deux gares (Blangy-sur-Ternoise et Auchy-lès-Hesdin) à moins de 10 minutes en voiture.Il est à vendre pour la somme de 172 720 €.Contactez Maxime JACQUEMONT ((Numéro supprimé)) pour toute question sur la maison ou sur les modalités de vente. Maisons Les Naturelles Abbeville vous accompagne dans toutes vos démarches et dans tous vos projets immobiliers.
Ruisseauville
TERRAIN ET MAISONMaison de 5 pièces (101 m²) en vente à RuisseauvilleIDÉALEMENT SITUÉE – MAISON 5 PIÈCES NEUVEÀ vendre idéalement située dans Ruisseauville (62310), votre agence Maisons Les Naturelles Abbeville est heureuse de vous proposer cette maison de 5 pièces de plain-pied de 101 m² et de 986 m² de terrain.Elle inclut quatre chambres, une cuisine et une salle de bains. Cette maison est neuve.La maison est située dans un quartier convoité. L’École Primaire-Regroupement Pédagogique Intercommunal Concentré de Ruisseauville se trouve à moins de 10 minutes à pied. Niveau transports en commun, il y a deux gares (Blangy-sur-Ternoise et Auchy-lès-Hesdin) à moins de 10 minutes en voiture.Elle est à vendre pour la somme de 190 720 €.Contactez Maxime JACQUEMONT ((Numéro supprimé)) pour tout renseignement sur la maison. Maisons Les Naturelles Abbeville vous accompagne dans toutes vos démarches et dans tous vos projets immobiliers.
Ruisseauville
TERRAIN ET MAISONMaison de 5 pièces (96 m²) en vente à RuisseauvilleIDÉALEMENT SITUÉE – MAISON 5 PIÈCES NEUVEVenez découvrir cette maison de 5 pièces de 96 m² et de 986 m² de terrain idéalement située dans Ruisseauville (62310). Elle compte quatre chambres, une cuisine et une salle de bains.Cette maison comporte 2 niveaux. Elle est neuve.Cette maison se trouve dans un quartier recherché. Il y a l’École Primaire-Regroupement Pédagogique Intercommunal Concentré de Ruisseauville à moins de 10 minutes à pied. Niveau transports, on trouve les gares Blangy-sur-Ternoise et Auchy-lès-Hesdin à moins de 10 minutes en voiture.Elle est à vendre pour la somme de 201 720 €.Contactez notre agence (JACQUEMONT Maxime : (Numéro supprimé)) pour plus d’informations sur la maison. Maisons Les Naturelles Abbeville vous accompagne dans tous vos projets immobiliers et à toutes les étapes de l’achat.
Ruisseauville
TERRAIN ET MAISONMaison T6 (114 m²) en vente à RuisseauvilleIDÉALEMENT SITUÉE – MAISON 6 PIÈCES NEUVEEn vente : Maisons Les Naturelles Abbeville vous présente cette maison de 6 pièces de 114 m² et de 986 m² de terrain idéalement située dans Ruisseauville (62310).Cette maison comporte 2 niveaux. Son intérieur comporte cinq chambres, une cuisine et deux salles de bains. Cette maison est neuve.La maison se trouve dans un quartier prisé. Il y a l’École Primaire-Regroupement Pédagogique Intercommunal Concentré de Ruisseauville à moins de 10 minutes à pied. Côté transports en commun, on trouve les gares Blangy-sur-Ternoise et Auchy-lès-Hesdin à moins de 10 minutes en voiture.Elle est à vendre pour la somme de 332 720 €.N’hésitez pas à prendre contact avec notre agence (Maxime JACQUEMONT : (Numéro supprimé)) pour tout renseignement sur la maison. Maisons Les Naturelles Abbeville est là pour vous accompagner dans tous vos projets immobiliers.
Ruisseauville
TERRAIN ET MAISONVENTE : maison F5 (104 m²) à RuisseauvilleIDÉALEMENT SITUÉE – MAISON 5 PIÈCES NEUVEÀ vendre : Maisons Les Naturelles Abbeville vous présente cette maison de 5 pièces de plain-pied de 104 m², idéalement située dans Ruisseauville (62310). Conçue de plain-pied, elle se divise en quatre chambres, une cuisine et deux salles de bains.Le terrain du bien s’étend sur 986 m².La maison est neuve.La maison se trouve dans un secteur recherché. Il y a l’École Primaire-Regroupement Pédagogique Intercommunal Concentré de Ruisseauville à moins de 10 minutes à pied. Côté transports en commun, on trouve les gares Blangy-sur-Ternoise et Auchy-lès-Hesdin à moins de 10 minutes en voiture.Elle est proposée à l’achat pour 246 720 €.Contactez notre agence (Maxime JACQUEMONT : (Numéro supprimé)) pour obtenir de plus amples informations sur la maison, sur les modalités de vente ou sur les démarches à suivre.
Ruisseauville
TERRAIN ET MAISONVENTE : maison de 6 pièces (105 m²) à RuisseauvilleIDÉALEMENT SITUÉE – MAISON 6 PIÈCES NEUVENous sommes ravis de vous présenter en vente, idéalement située dans Ruisseauville (62310), cette maison de 6 pièces de plain-pied de 105 m² et de 986 m² de terrain.Son intérieur comporte quatre chambres, une cuisine et deux salles de bains. Cette maison est neuve.Cette maison est située dans un quartier recherché. On trouve l’École Primaire-Regroupement Pédagogique Intercommunal Concentré de Ruisseauville à moins de 10 minutes à pied. Côté transports en commun, il y a les gares Blangy-sur-Ternoise et Auchy-lès-Hesdin à moins de 10 minutes en voiture.Elle est proposée à l’achat pour 223 720 €.Contactez notre agence (Maxime JACQUEMONT : (Numéro supprimé)) pour tout renseignement sur le bien ou sur les démarches à suivre. Maisons Les Naturelles Abbeville est là pour vous accompagner dans tous vos projets immobiliers.
Ruisseauville
TERRAIN ET MAISONMaison T7 (120 m²) à vendre à RuisseauvilleIDÉALEMENT SITUÉE – MAISON 7 PIÈCES NEUVEÀ vendre : idéalement située dans Ruisseauville (62310), Maisons Les Naturelles Abbeville vous propose cette maison de 7 pièces de 120 m².Il s’agit d’une maison de 2 niveaux. Son intérieur comporte cinq chambres, une cuisine et deux salles de bains. La maison est neuve.Le terrain du bien est de 986 m².Cette maison se trouve dans un secteur attractif. L’École Primaire-Regroupement Pédagogique Intercommunal Concentré de Ruisseauville est implantée à moins de 10 minutes à pied. Côté transports, il y a les gares Blangy-sur-Ternoise et Auchy-lès-Hesdin à moins de 10 minutes en voiture.Son prix de vente est de 252 720 €.N’hésitez pas à prendre contact avec notre agence (JACQUEMONT Maxime : (Numéro supprimé)) pour plus de renseignements sur la propriété ou sur les démarches à suivre.
Fressin
TERRAINTerrain constructible plat de 1152 m2, légèrement surélevé par rapport à la voirie communale en façade. Environ 20 ml de façade et 58 ml de profondeur. Les concessionnaires sont existants en voirie. CU OK. Dans le village, la garderie, la cantine et l’école primaire assurent la tranquillité des jeunes parents. Un ramassage scolaire dessert les collèges et lycées de Fruges et Saint Pol sur Ternoise, arrêt à 5 mns à pied. Calme et sérénité assuré sans aucun risque d’inondation. Appelez votre conseiller local pour tous renseignements, Hugues Wallon au (Numéro supprimé).Le prix indiqué comprend les honoraires de négociation qui se montent à 17.36% TTC du prix affiché, ces honoraires sont à la charge exclusive de l’acquéreur. DPE non concerné. Hugues WALLON, Agent Commercial immatriculé au RSAC de BOULOGNE SUR MER sous le numéro 89319756600019 – A la lucarne de l’immobilier – Ref. 84354
L’actualité immobilière à Ruisseauville
27/11/2023
02/11/2023
30/10/2023
20/10/2023
16/10/2023
16/10/2023