Images
Description
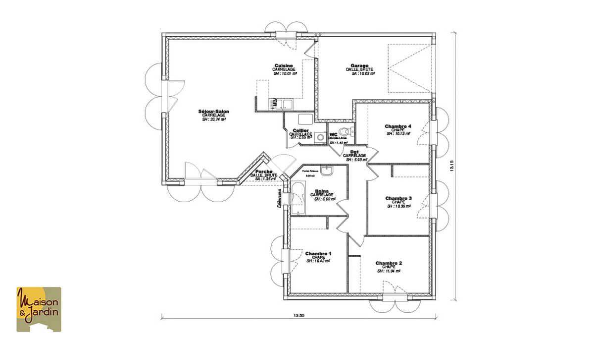
Nous vous proposons cette maison neuve, baptisée Eolia, un modèle d'habitation qui conjugue élégance et fonctionnalité sur une surface de 89 m². Conçue en forme de L, cette maison se distingue par son architecture moderne et son intégration harmonieuse dans l'environnement. Avec ses 3 chambres et ses 4 pièces au total, Eolia offre un cadre de vie idéal pour une famille à la recherche de confort et de bien-être.
L'Eolia se présente avec sa toiture 4 pans et intègre un garage, combinant esthétique et praticité. Son design en L n'est pas seulement un choix esthétique mais aussi fonctionnel, permettant de délimiter naturellement les espaces de vie et offrant la possibilité d'aménager une très grande terrasse. Cette dernière, véritable extension de l'espace de vie intérieur, promet des moments conviviaux en plein air, dans un cadre privilégié.
Cette maison est conçue pour répondre aux attentes les plus exigeantes en termes de performance énergétique. Basse consommation et conforme à la norme RE2020, l'Eolia est une réponse concrète aux enjeux de développement durable et de réduction des dépenses énergétiques. Elle représente ainsi un investissement pérenne, garantissant confort et économies sur le long terme.
L'intérieur de l'Eolia est pensé pour offrir un cadre de vie agréable et fonctionnel. Les espaces sont optimisés pour faciliter la circulation et maximiser la lumière naturelle, créant une atmosphère chaleureuse et accueillante. Cette maison est le coup de cœur assuré pour ceux qui cherchent à allier modernité, confort et respect de l'environnement.
Choisir l'Eolia, c'est opter pour une maison qui s'adapte à votre style de vie tout en anticipant les besoins de demain. Ne manquez pas l'opportunité de construire la maison de vos rêves, une demeure où il fait bon vivre, ouverte sur l'extérieur et respectueuse de l'environnement.
Logement susceptibles de vous intéresser
Nous vous proposons de découvrir aussi cette sélection de logements situés à moins de 10km de Saint-Laure et qui seraient susceptibles de vous intéresser.
Beauregard-l'Évêque
TERRAIN ET MAISONEXCLUSIVITÉ — Votre maison neuve à Beauregard-l’Évêque !Venez découvrir ce projet de construction idéal pour une vie de famille sereine, au cœur d’un environnement recherché : terrain plat de 400 m², parfaitement exposé, dans un secteur calme et résidentiel.La maison, pensée pour offrir confort et fonctionnalité au quotidien, se compose de 😕 3 chambres lumineuses? Belle pièce de vie traversante donnant sur le jardin? Cuisine ouverte pour un espace convivial? Garage + cellier attenant pour un maximum de rangement? WC séparé et salle de bain moderneBénéficiez de prestations soignées et d’un excellent niveau d’équipement (chauffage /Climatisation performant, volets roulants motorisés, matériaux de qualité…), pour une maison économique, agréable à vivre et prête à accueillir votre famille.?? Un village dynamique à proximité de Clermont-Ferrand, commerces, écoles et services accessibles rapidement.?? Ne manquez pas cette opportunité ! Contactez-moi dès maintenant pour recevoir le plan et/ou étudier votre projet sur mesure…
Beauregard-l'Évêque
TERRAIN ET MAISONEXCLUSIVITÉ — Votre maison neuve à Beauregard-l’Évêque !Venez découvrir ce projet de construction idéal pour une vie de famille sereine, au cœur d’un environnement recherché : terrain plat de 400 m², parfaitement exposé, dans un secteur calme et résidentiel.La maison, pensée pour offrir confort et fonctionnalité au quotidien, se compose de 😕 3 chambres lumineuses? Belle pièce de vie traversante donnant sur le jardin? Cuisine ouverte pour un espace convivial? Garage + cellier attenant pour un maximum de rangement? WC séparé et salle de bain moderneBénéficiez de prestations soignées et d’un excellent niveau d’équipement (chauffage /Climatisation performant, volets roulants motorisés, matériaux de qualité…), pour une maison économique, agréable à vivre et prête à accueillir votre famille.?? Un village dynamique à proximité de Clermont-Ferrand, commerces, écoles et services accessibles rapidement.?? Ne manquez pas cette opportunité ! Contactez-moi dès maintenant pour recevoir le plan et/ou étudier votre projet sur mesure…
Saint-Laure
TERRAINNous vous présentons une occasion rare d’acquérir un terrain plat de 700 m² situé dans la charmante commune de Saint-Laure, dans le département du Puy-de-Dôme. Ce terrain, encore non viabilisé, offre un cadre de vie paisible et agréable, parfaitement adapté à un projet de construction de maison. La localisation stratégique de cet espace en fait un choix de premier ordre pour ceux qui souhaitent conjuguer confort et tranquillité au quotidien. Ce terrain est une opportunité à ne pas manquer pour réaliser le projet de vos rêves. N’hésitez pas à nous contacter pour explorer le potentiel de cette propriété unique. À noter qu’en tant que constructeur, nous ne sommes pas mandatés pour réaliser la vente de ce terrain.
Saint-Laure
TERRAIN ET MAISONNous vous proposons cette maison neuve, baptisée Eolia, un modèle d’habitation qui conjugue élégance et fonctionnalité sur une surface de 89 m². Conçue en forme de L, cette maison se distingue par son architecture moderne et son intégration harmonieuse dans l’environnement. Avec ses 3 chambres et ses 4 pièces au total, Eolia offre un cadre de vie idéal pour une famille à la recherche de confort et de bien-être.L’Eolia se présente avec sa toiture 4 pans et intègre un garage, combinant esthétique et praticité. Son design en L n’est pas seulement un choix esthétique mais aussi fonctionnel, permettant de délimiter naturellement les espaces de vie et offrant la possibilité d’aménager une très grande terrasse. Cette dernière, véritable extension de l’espace de vie intérieur, promet des moments conviviaux en plein air, dans un cadre privilégié.Cette maison est conçue pour répondre aux attentes les plus exigeantes en termes de performance énergétique. Basse consommation et conforme à la norme RE2020, l’Eolia est une réponse concrète aux enjeux de développement durable et de réduction des dépenses énergétiques. Elle représente ainsi un investissement pérenne, garantissant confort et économies sur le long terme.L’intérieur de l’Eolia est pensé pour offrir un cadre de vie agréable et fonctionnel. Les espaces sont optimisés pour faciliter la circulation et maximiser la lumière naturelle, créant une atmosphère chaleureuse et accueillante. Cette maison est le coup de cœur assuré pour ceux qui cherchent à allier modernité, confort et respect de l’environnement.Choisir l’Eolia, c’est opter pour une maison qui s’adapte à votre style de vie tout en anticipant les besoins de demain. Ne manquez pas l’opportunité de construire la maison de vos rêves, une demeure où il fait bon vivre, ouverte sur l’extérieur et respectueuse de l’environnement.
Maringues
TERRAIN ET MAISONNous vous proposons cette maison neuve, baptisée Focus 80, un modèle phare de notre gamme qui se distingue par son excellent rapport qualité/prix. Conçue pour répondre aux attentes des familles modernes, cette maison de 80 m² allie fonctionnalité et esthétique avec un design contemporain et jeune. Elle comprend 3 chambres spacieuses, un vaste séjour lumineux pour des moments de partage en famille ou entre amis, ainsi qu’un garage intégré, offrant ainsi un total de 4 pièces bien agencées pour un confort optimal.La Focus 80 est avant tout une maison basse consommation, conçue dans le strict respect de la norme RE2020. Cette réglementation environnementale de dernière génération garantit une efficacité énergétique maximale, réduisant considérablement vos factures d’énergie tout en contribuant à la protection de l’environnement. Opter pour la Focus 80, c’est faire le choix d’un habitat durable, qui répond aux exigences les plus élevées en matière de performance énergétique.Parmi les options les plus plébiscitées par nos clients, nous avons intégré des solutions innovantes pour renforcer le confort de votre maison tout en optimisant sa consommation énergétique. La Focus 80 se démarque par son prix d’appel imbattable, ce qui en fait un choix privilégié pour les acquéreurs à la recherche d’un excellent rapport qualité/prix sans compromis sur la qualité et la durabilité.En choisissant la Focus 80, vous optez pour une maison qui va à l’essentiel sans négliger l’élégance et le bien-être. C’est le coup de cœur assuré pour ceux qui rêvent d’une maison neuve, moderne, et respectueuse de l’environnement. Ne laissez pas passer cette opportunité de construire la maison de vos rêves, conforme aux dernières normes environnementales. La Focus 80 vous attend pour commencer un nouveau chapitre de votre vie dans un cadre confortable et durable.
Maringues
TERRAINDécouvrez cette belle opportunité d’achat d’un terrain de 500 m² situé dans la charmante ville de Maringues, dans le département du Puy-de-Dôme, au cœur de la région Auvergne-Rhône-Alpes. Ce terrain plat, idéal pour un projet de construction de maison, vous offre la possibilité de créer un espace de vie sur mesure selon vos goûts et vos besoins. Profitez d’un cadre de vie agréable et d’un environnement paisible, parfait pour accueillir votre future demeure. Ce terrain représente un potentiel immense pour votre futur projet. N’hésitez pas à nous contacter pour en savoir plus sur cette occasion unique. À noter qu’en tant que constructeur, nous ne sommes pas mandatés pour réaliser la vente de ce terrain.
Maringues
TERRAINEXCLUSIVITE MARINGUES Centre dans quartier calme et paisible beau terrain plat de 544 m2 (20 X 27) – A viabiliser (viabilisation en bordure) – Proche des commerces et autres – 2mn des écoles privés et publiques – 30mn de Clermont-Ferrand et Vichy – 20 mn de Riom et gare – 15 mn de l’autoroute – Les honoraires sont à la charge du vendeur.Les informations sur les risques auxquels ce bien est exposé sont disponibles sur le site Géorisques : www. georisques. gouv. fr.Contactez Thierry BOURBON Entrepreneur Individuel, Agent commercial OptimHome (RSAC N(Numéro supprimé) Greffe de CLERMONT FERRAND) (Numéro supprimé) (réf. 593122 )
Joze
TERRAIN ET MAISONNous vous proposons cette maison neuve, baptisée Focus 75, une perle rare dans notre gamme MAISON ET JARDIN qui incarne le meilleur rapport qualité-prix. Conçue pour répondre aux attentes des plus exigeants, cette maison de 75 m² au look moderne et aux finitions soignées est l’incarnation même de l’efficacité et du confort. Avec ses 3 chambres et ses 4 pièces au total, elle est idéale pour accueillir une famille désireuse de s’épanouir dans un espace à la fois fonctionnel et accueillant.La Focus 75 se distingue par sa construction robuste en parpaings, gage de durabilité et de solidité. Son garage intégré de 15 m² offre non seulement un espace sécurisé pour votre véhicule mais aussi un espace de rangement supplémentaire, optimisant ainsi chaque mètre carré de la maison.L’une des caractéristiques les plus remarquables de cette maison est son engagement envers l’environnement et votre portefeuille. Conforme à la norme RE2020, la Focus 75 est une maison basse consommation qui vous permettra de réaliser d’importantes économies d’énergie tout en réduisant votre empreinte carbone. Cet aspect est d’autant plus important aujourd’hui, où la conscience écologique et la recherche d’efficacité énergétique sont au cœur des préoccupations des nouveaux propriétaires.Les options les plus plébiscitées par nos clients, telles que des solutions d’isolation avancées, des systèmes de chauffage performants et des équipements éco-énergétiques, sont disponibles pour personnaliser votre maison selon vos besoins et vos envies. La Focus 75 est donc une toile vierge prête à être adaptée à votre image, garantissant un confort de vie inégalé.En choisissant la Focus 75, vous optez pour une maison qui allie esthétique moderne, fonctionnalité et respect de l’environnement, le tout pour un excellent rapport qualité/prix. Ne manquez pas l’opportunité de construire la maison de vos rêves, une maison qui répond à vos exigences d’aujourd’hui et de demain. Contactez-nous pour plus d’informations
Joze
TERRAINNous vous proposons de réaliser votre projet de construction dans ce lotissement de Joze, idéalement placé, dans un environnement calme. Les terrains sont plats, avec une vue dégagée. N’hésitez pas à nous contacter pour plus d’informations ou pour organiser une visite. À noter qu’en tant que constructeur, nous ne sommes pas mandatés pour réaliser la vente de ce terrain.
L’actualité immobilière à Saint-Laure
27/11/2023
02/11/2023
30/10/2023
20/10/2023
16/10/2023
16/10/2023