Maison à construire à Pézilla-la-Rivière (66370)
Images
Description
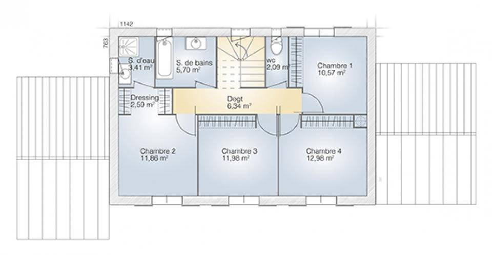
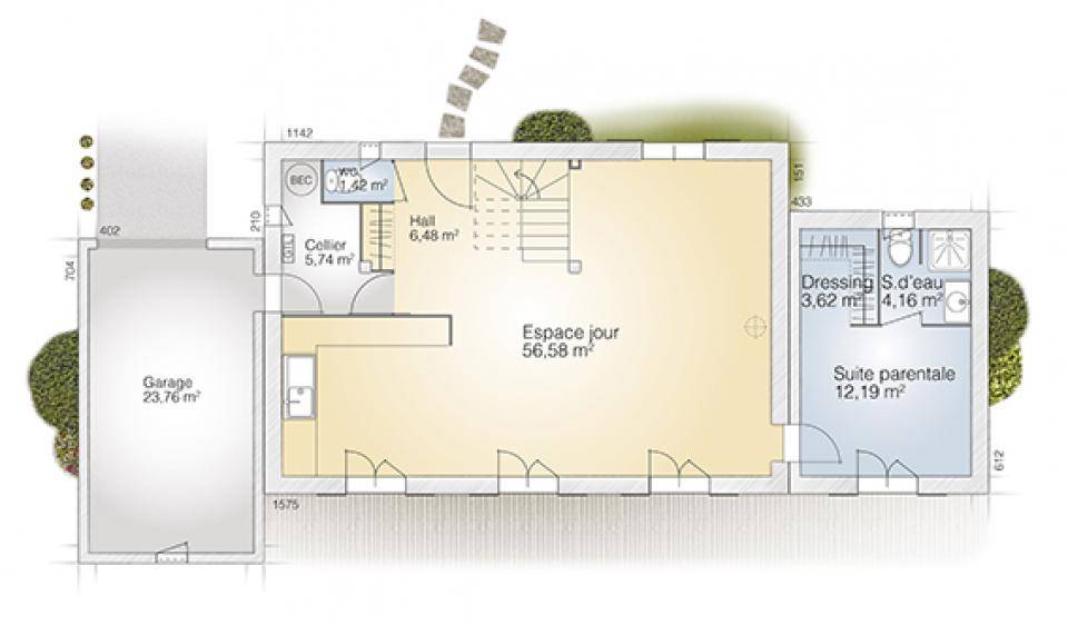
VENTE : maison de 140 m² à Pézilla-la-Rivière
À vendre à Pézilla-la-Rivière (66370) : maison neuve de 140 m² et de 961 m² de terrain. Son intérieur offre cinq chambres et un espace jour de 56m².
Cette maison de 7 pièces est proposée à l'achat pour 514 000 €.
Contactez notre agence (Maryline MARIE : (Numéro supprimé)) pour toute question sur la maison, sur les démarches à suivre ou sur les modalités de vente. Maisons Balency Cabestany est là pour vous accompagner dans tous vos projets immobiliers. Plans sur mesure.
Logement susceptibles de vous intéresser
Nous vous proposons de découvrir aussi cette sélection de logements situés à moins de 10km de Pézilla-la-Rivière et qui seraient susceptibles de vous intéresser.
Canohès
TERRAINParcelle d’une surface totale de 507m² située sur un quartier de la commune de Canohes, offrant calme et cadre de vie agréable.Ce terrain est constructible et viabilisé.Libre de constructeur, il est idéal pour recevoir la maison de vos rêves.Forage existant.Cette annonce référence 314458 vous est présentée par votre agent commercial BSK Immobilier GWLADYS COTEILL DOLCEROCCA (EI) immatriculé au RSAC de PERPIGNAN (66000) sous le numéro 92483239700013.Prix du bien : 169 000,00 €Les honoraires d’agence sont à la charge du vendeur.Les informations sur les risques auxquels ce bien est exposé sont disponibles sur le site Géorisques : www.georisques.gouv.fr
Baho
TERRAINFiche N°Id-TCT179078 : BAHO Fiche BC179078 : Baho, Terrain de 388 m2 – – Equipements annexes : – chauffage : Aucun – Plus d’informations disponibles sur demande… – Mentions légales : Proposé à la vente à 100000 Euros (honoraires à la charge du vendeur) – Affaire suivie par Mr Renaud Gauthier (Conseiller immobilier salarié) – Reseau Immo-Diffusion Perpignan – Pour plus d’informations, contactez notre secrétariat au (Numéro supprimé) (Appel gratuit ou prix d’une communication locale)
Baho
TERRAINFiche N°Id-TCT179077 : BAHO Fiche BC179077 : Baho, Terrain de 1022 m2 – – Equipements annexes : – chauffage : Aucun – Plus d’informations disponibles sur demande… – Mentions légales : Proposé à la vente à 160000 Euros (honoraires à la charge du vendeur) – Affaire suivie par Mr Renaud Gauthier (Conseiller immobilier salarié) – Reseau Immo-Diffusion Perpignan – Pour plus d’informations, contactez notre secrétariat au (Numéro supprimé) (Appel gratuit ou prix d’une communication locale)
Pézilla-la-Rivière
TERRAINVENTE : terrain de 961 m² à Pézilla-la-RivièreProche de Perpignan, à Pézilla-la-Rivière (66370) : terrain de 961 m².Son prix de vente est de 195 000 €. Terrain présenté pour une construction MAISONS BALENCY. Prenez contact avec Maryline MARIE : (Numéro supprimé) pour convenir d’un rendez-vous en agence afin d’étudier votre projet de construction dans sa globalité. Etude personnalisée. Plans sur mesure pour une maison aux dernières normes par le groupe leader de la construction en France. Contrat CCMI.
Estagel
TERRAINOpportunité rare ! À vendre en exclusivité, un lot de terrains superficie de 6 123 m² situés sur la commune d’Estagel. Pour plus d’informations et une visite, contactez LILIANA MADERN au (Numéro supprimé) RSAC 904 553 989 EI. Votre Conseillère en immobilier KW OXYGÈNE. Les informations sur les risques auxquels ce bien est exposé sont disponibles sur le site Géorisques : www.georisques.gouv.fr
Estagel
TERRAINOpportunité rare ! À vendre en exclusivité, un lot de terrains superficie de 13 630 m² situés sur la commune d’Estagel. Les informations sur les risques auxquels ce bien est exposé sont disponibles sur le site Géorisques : www.georisques.gouv.fr
Pézilla-la-Rivière
TERRAIN ET MAISONVENTE : maison de 140 m² à Pézilla-la-RivièreÀ vendre à Pézilla-la-Rivière (66370) : maison neuve de 140 m² et de 961 m² de terrain. Son intérieur offre cinq chambres et un espace jour de 56m². Cette maison de 7 pièces est proposée à l’achat pour 514 000 €.Contactez notre agence (Maryline MARIE : (Numéro supprimé)) pour toute question sur la maison, sur les démarches à suivre ou sur les modalités de vente. Maisons Balency Cabestany est là pour vous accompagner dans tous vos projets immobiliers. Plans sur mesure.
Montner
TERRAINVous rêvez de construire votre maison sur-mesure dans un cadre paisible et verdoyant ? Ne cherchez plus. Ce terrain de 477 m², situé dans la charmante commune de Montner (66), est une opportunité à saisir. Les atouts du terrain o Libre de construction – Donnez vie à votre projet selon vos envies et besoins o Surface de plancher possible : 180 m² – Idéal pour une maison spacieuse et lumineuse o Environnement calme et préservé – Vivez au coeur de la nature o À proximité de Perpignan et des principaux axes routiers Localisation Montner, un village authentique des Pyrénées-Orientales, offrant un cadre de vie agréable tout en restant proche des commodités. Contactez-moi pour plus d’informations : Marie Sylvestre (EI) + 06*48*85*97*52 RSAC Perpignan : 415 257 906 Retrouvez les informations sur les risques liés à ce bien sur le site officiel Géorisques.
Pézilla-la-Rivière
TERRAIN ET MAISONVENTE : maison de 150 m² à Pézilla-la-RivièreÀ Pézilla-la-Rivière, maison neuve à vendre de 150 m² de surface sur 961 m² de terrain en 4 faces. Elle inclut quatre chambres dont une suite au RDC et un séjour de 50m². Le prix de vente de cette maison de 6 pièces est de 539 000 €.Prenez contact avec Maryline MARIE ((Numéro supprimé)) pour tout renseignement sur la maison ou sur les démarches à suivre. Maisons Balency Cabestany est là pour vous accompagner dans tous vos projets immobiliers. Plans sur mesure.
L’actualité immobilière à Pézilla-la-Rivière
27/11/2023
02/11/2023
30/10/2023
20/10/2023
16/10/2023
16/10/2023