Maison à construire à Saint-Jean-Lasseille (66300)
Images
Description
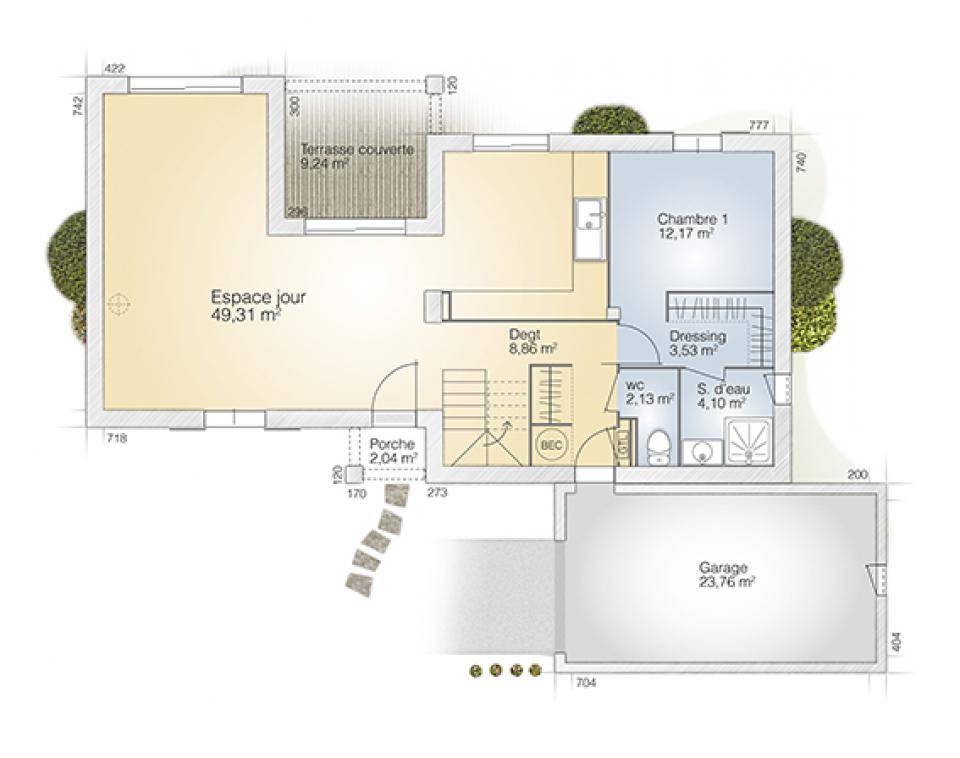
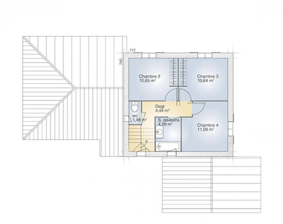
Maison de 125 m² à vendre à Saint-Jean-Lasseille
Proche de Perpignan - À Saint-Jean-Lasseille (66300), maison neuve à vendre de 6 pièces, 2 niveaux, 125 m² de surface et 604 m² de terrain en 4 faces. Autoroute A9 à 7 km. Mer Méditerranée à 20 km. Espagne à 15 km.
Cette maison de 6 pièces est à vendre pour la somme de 434 000 €.
Prenez contact avec Maryline MARIE ((Numéro supprimé)) pour obtenir de plus amples informations sur la maison. Plans sur mesure.
Logement susceptibles de vous intéresser
Nous vous proposons de découvrir aussi cette sélection de logements situés à moins de 10km de Saint-Jean-Lasseille et qui seraient susceptibles de vous intéresser.
Le Boulou
TERRAINVenez découvrir ce joli terrain à bâtir clôturé et non viabilisé de 303 m² dans un quartier très calme et recherché sur la commune du Boulou.Possibilité de réaliser un plain-pied ou une maison en R+1.Une hésitation, des questions?Je vous accompagne dans la réalisation de votre projet en collaboration avec un professionnel de la construction.Le Boulou est une commune attractive avec ses nombreux commerces et services de proximité.La situation géographique est un atout non négligeable avec un accès rapide vers les plages (20mn), l’Espagne (10mn) et l’autoroute A9 à seulement 2 Klms.Les informations sur les risques auxquels ce bien est exposé sont disponibles sur le site Géorisques : www.georisques.gouv.fr.
Canohès
TERRAINParcelle d’une surface totale de 507m² située sur un quartier de la commune de Canohes, offrant calme et cadre de vie agréable.Ce terrain est constructible et viabilisé.Libre de constructeur, il est idéal pour recevoir la maison de vos rêves.Forage existant.Cette annonce référence 314458 vous est présentée par votre agent commercial BSK Immobilier GWLADYS COTEILL DOLCEROCCA (EI) immatriculé au RSAC de PERPIGNAN (66000) sous le numéro 92483239700013.Prix du bien : 169 000,00 €Les honoraires d’agence sont à la charge du vendeur.Les informations sur les risques auxquels ce bien est exposé sont disponibles sur le site Géorisques : www.georisques.gouv.fr
Elne
TERRAIN ET MAISONMAISON 3 PIÈCES NEUVE Maisons de Manon Perpignan vous propose à vendre à Latour-Bas-Elne, cette maison de 3 pièces de plain-pied de 50 m² et de 198 m² de terrain.Elle inclut deux chambres, une pièce de vie avec coin cuisine, une salle de bains avec WC et un garage. Elle est à vendre pour la somme de 195 500 €.Contactez notre agence (POC Amélie : (Numéro supprimé)) pour tout renseignement sur le bien ou sur les modalités de vente.
Villeneuve-de-la-Raho
TERRAIN ET MAISONA vendre sur VILLENEUVE DE LA RAHOSuperficie Maison : 101 m²Superficie Terrain : 770 m²Caractéristiques : Plain pied, 4 chambres, 1 cellier, 2 WC, 1 salle de bains, une pièce de vie avec cuisine ouverte et un garage.Cette maison est neuve et répond à la règlementation RE2020. Matériaux de qualité.La construction est entièrement personnalisable selon vos souhaits et vos besoins.Elle est proposée à l’achat pour 499 100 €.Intéressez par cette maison ? Ou envie d’un projet personnalisé ?N’hésitez pas à contacter Amélie : (Numéro supprimé) pour tout renseignement.Maisons de Manon Perpignan vous accompagne dans toutes vos démarches et dans tous vos projets immobiliers.
Villeneuve-de-la-Raho
TERRAINVENTE : terrain de 770 m² à Villeneuve-de-la-RahoLivraison prévue début 2026. Viabilisé. 4 FacesSon prix de vente est de 330 000 €. Prenez contact avec notre agence (POC Amélie : (Numéro supprimé)) pour obtenir de plus amples informations sur le terrain, sur les modalités de vente ou sur les démarches à suivre. Maisons de Manon Perpignan est là pour vous accompagner à toutes les étapes de votre projet de construction.
Ponteilla
TERRAIN ET MAISONMaison à vendre à PonteillaSuperficie Maison : 78 m²Superficie Terrain : 284 m²Caractéristiques : R+1, 3 chambres, 1 cellier, 2 WC, 1 salle d’eau, un pièce de vie avec cuisine ouverte et un garage.Cette maison est neuve et répond à la règlementation RE2020. Matériaux de qualité.La construction est entièrement personnalisable selon vos souhaits et vos besoins.Elle est proposée à l’achat pour 249 800 €.Intéressez par cette maison ? Ou envie d’un projet personnalisé ?N’hésitez pas à contacter Amélie : (Numéro supprimé) pour tout renseignement.Maisons de Manon Perpignan vous accompagne dans toutes vos démarches et dans tous vos projets immobiliers.
Théza
TERRAIN ET MAISONMAISON 4 PIÈCES NEUVENous sommes ravis de vous proposer à Théza, cette maison de 4 pièces de 82 m². Elle compte au RDC, une pièce de vie avec coin cuisine, un WC et un garage. A l’étage se trouve trois chambres dont une avec dressing et une salle de bains avec WC.Le terrain de la propriété est de 336 m².Son prix de vente est de 294 780 €.Contactez notre agence (Amélie POC : (Numéro supprimé)) pour tout renseignement sur cette maison ou pour un projet personnalisé.
Llupia
TERRAIN ET MAISONVENTE d’une maison de 4 pièces à LlupiaMaisons de Manon Perpignan vous présente cette maison de 4 pièces de 95 m².Cette maison possède 2 niveaux. Elle dispose de trois chambres dont une suite parentale, d’une pièce de vie avec coin cuisine, d’une salle de bains, de 2 WC , d’un cellier et d’un garage.Le terrain du bien est de 289 m².Elle est à vendre pour la somme de 313 300 €.N’hésitez pas à prendre contact avec Amélie POC ((Numéro supprimé)) pour toute question sur cette maison ou sur les démarches à suivre. Concrétisez vos projets immobiliers avec Maisons de Manon Perpignan.
Ponteilla
TERRAIN ET MAISONPROCHE DE PERPIGNAN – MAISON 4 PIÈCES NEUVEMaisons de Manon Perpignan vous présente à Ponteilla, cette maison de 4 pièces de plain-pied de 85 m² et de 284 m² de terrain. Elle compte trois chambres, une pièce de vie avec cuisine, un cellier, une salle de bains et un garage.Son prix de vente est de 237 000 €.La construction est entièrement personnalisable selon vos souhaits et vos besoins.Règlementation RE2020 avec matériaux de qualité et prestations aux choix.Intéressez par cette maison ? Ou envie d’un projet personnalisé ?N’hésitez pas à contacter Amélie : (Numéro supprimé) pour tout renseignement.Maisons de Manon Perpignan vous accompagne dans toutes vos démarches et dans tous vos projets immobiliers.
L’actualité immobilière à Saint-Jean-Lasseille
27/11/2023
02/11/2023
30/10/2023
20/10/2023
16/10/2023
16/10/2023