Maison à construire à Villeneuve-de-la-Raho (66180)
Images
Description
A vendre sur VILLENEUVE DE LA RAHO
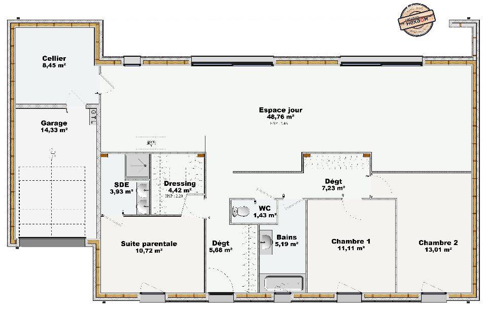
Superficie Maison Ossature bois : 120 m²
Superficie Terrain : 770 m²
Caractéristiques : Plain pied, 3 chambres dont une suite parentale avec salle d'eau et dressing, 1 WC séparé, 1 salle de bains, une pièce de vie avec cuisine ouverte, un cellier et un garage.
Cette maison est neuve et répond à la règlementation RE2020. Matériaux de qualité.
Une maison en ossature bois c'est :
- Isolant thermique naturel 20 fois meilleure que le béton.
- Pas de contrainte d'entretien.
- 6,5 fois plus léger que le béton.
- Des murs en bois moins épais que ceux en béton ou en brique, permettant de gagner jusqu'à 15% de surface habitable.
- Ecologique car très faible empreinte carbone qui permet de diminuer les gaz à effets de serre.
Elle est proposée à l'achat pour 632 999€.
Intéressez par cette maison ? Ou envie d'un projet personnalisé ?
N'hésitez pas à contacter Amélie : (Numéro supprimé) pour tout renseignement.
Logement susceptibles de vous intéresser
Nous vous proposons de découvrir aussi cette sélection de logements situés à moins de 10km de Villeneuve-de-la-Raho et qui seraient susceptibles de vous intéresser.
Latour-Bas-Elne
TERRAINOc Résidences, constructeur de maisons individuelles depuis 1983 vous propose de découvrir sur la commune de Latour Bas Elne, dans un endroit calme et proche du centre ce terrain de 289 m² en 3 faces, idéalement exposé afin de réaliser votre projet de construction.Villa témoin à visité sur Perpignan!!Pour plus de renseignements, contactez l’Agence de Perpignan au (Numéro supprimé)
Bages
TERRAINOc Résidences, constructeur de maisons individuelles depuis 1983 vous propose de découvrir sur la commune de Bages, dans un endroit calme et proche du centre ce terrain de 405 m² en 3 faces, idéalement exposé afin de réaliser votre projet de construction.Villa témoin à visité sur Perpignan!!Pour plus de renseignements, contactez l’Agence de Perpignan au (Numéro supprimé)
Bages
TERRAIN ET MAISONDécouvrez le modèle Rosée 86 m², une élégante maison de plain-pied conçue dans le respect de l’architecture de notre région. La villa se compose d’un spacieux Salon/Séjour dotée d’une grande baie vitrée. La cuisine ouverte avec un accès direct dans le garage. Le coté nuit s’articule autour de 3 chambres avec placard, un WC indépendant et une belle salle de bains. Cette maison, vous assurera des espaces de vie jour et nuit bien séparés. Elle est à construire dans le département du Tarn, l’Aude, l’Hérault, la Haute-Garonne ainsi que les Pyrénées Orientales par Oc Résidences, votre constructeur sur mesure en Occitanie.
Latour-Bas-Elne
TERRAIN ET MAISONLe modèle ZEPHYR 87 m² est une maison aux lignes sobres et authentiques qui saura vous séduire par son aménagement intérieur conçu pour optimiser votre confort. Ce pavillon vous offre trois chambres, une salle de bains, un bel espace vie de plus de 41 m² et un garage de 14 m², facilement transformable en une quatrième chambre. Cette maison sera répondre aux normes accessibilité. Votre projet de vie est à construire dans le département du Tarn, l’Aude, l’Hérault, la Haute-Garonne ainsi que les Pyrénées Orientales par Oc résidences, votre constructeur sur mesure en Occitanie.
Bages
TERRAINBages : terrain de 402 m² à vendreProche de Villeneuve de la Raho, à Bages : donnez vie à votre projet sur ce terrain de 402 m².Accès autoroute A9 à 7 km. Mer Méditerranée à 16 km. Espagne à 15 km.Son prix de vente est de 164 900 €. Terrain présenté pour une construction MAISONS BALENCY. Prenez contact avec Maryline MARIE : (Numéro supprimé) pour convenir d’un rendez-vous en agence afin d’étudier votre projet de construction dans sa globalité. Etude personnalisée. Plans sur mesure pour une maison aux dernières normes par le groupe leader de la construction en France. Contrat CCMI.
Bages
TERRAIN ET MAISONVENTE : maison de 110 m² à BagesProche de Villeneuve de la Raho – Maison neuve 4 pièces en vente à Bages (66670) avec 2 niveaux, une surface de 110 m² sur un terrain de 402 m². Son intérieur est composé de trois chambres dont une suite au RDC et un séjour de 50m².Accès autoroute A9 à 7 km. Mer Méditerranée à 16 km. Espagne à 15 km.Le prix de vente de cette maison de 4 pièces est de 384 000 €.Prenez contact avec notre agence (MARIE Maryline : (Numéro supprimé)) pour obtenir de plus amples informations sur la maison, sur les démarches à suivre ou sur les modalités de vente. Donnez vie à vos projets immobiliers avec Maisons Balency Cabestany.
Bages
TERRAIN ET MAISONBages : maison de 125 m² en venteProche de Villeneuve de la Raho, à Bages : maison neuve 4 pièces de 125 m² sur un terrain de 402 m². Son intérieur se divise en trois chambres dont une suite et un séjour de 47m². Accès autoroute A9 à 7 km. Mer Méditerranée à 16 km. Espagne à 15 km.Le prix de vente de cette maison de 4 pièces est de 423 000 €.Contactez notre agence (Maryline MARIE : (Numéro supprimé)) pour obtenir de plus amples informations sur la maison ou sur les modalités de vente. Plans sur mesure.
Bages
TERRAIN ET MAISONMaison de 83 m² à vendre à BagesProche de Villeneuve de la Raho, à Bages (66670) : maison neuve 3 pièces en vente. Surface de 83 m² et 402 m² de terrain. Conçue de plain-pied, elle compte deux chambres et un grand séjour. Accès autoroute A9 à 7 km. Mer Méditerranée à 16 km. Espagne à 15 km.Cette maison de 3 pièces est à vendre pour la somme de 324 900 €.N’hésitez pas à prendre contact avec Maryline MARIE ((Numéro supprimé)) pour toute question sur la maison, sur les modalités de vente ou sur les démarches à suivre. Maisons Balency Cabestany vous accompagne à toutes les étapes de l’achat et dans tous vos projets immobiliers.
Cabestany
TERRAIN ET MAISONVous souhaitez visiter rapidement ? Vous pouvez contacter Bruno KOENIG & Julien BORREIL de la TEAM BELEZA au 06*25*70*47*84Vous êtes une famille à la recherche d’une maison lumineuse et moderne ?Vous êtes retraité et rechercher à vivre de plain pied tout en pouvant recevoir du monde ?Cette maison moderne est habitable de plain pied grâce à une suite parentale au rez de chaussée.Vous bénéficierez aussi du confort d’une deuxième suite parentale et 2 chambres suplémentaires, idéales pour accueillir votre famille ou votre bébé.La maison est piscinable.Envie d’en savoir plus ? Contactez-nous pour organiser la visite !Bruno KOENIG & Alexia BIGNOLO de la Team BELEZA – 06*.25.*70*.47*.84RSAC : 502058886KW OXYGENE(Lien supprimé) />Pour votre véhicule, cette maison possède un garage.Il y a le Collège Pau Casals, le Campus Dragons Catalans et l’École Élémentaire Jacques Prévert à moins de 10 minutes à pied ainsi qu’une structure d’accueil pour les tout-petits. Côté transports, on trouve deux gares (Perpignan et Elne) à moins de 10 minutes en voiture. L’autoroute A9 et la nationale N116 sont accessibles à moins de 9 km et Perpignan est située à 5 km. Pour vos loisirs, vous pourrez compter sur un tennis et une bibliothèque à quelques minutes. Il y a aussi quatre restaurants, un commerce et un supermarché.Les informations sur les risques auxquels ce bien est exposé sont disponibles sur le site Géorisques : www.georisques.gouv.fr.Découvrez toutes les originalités de cette maison à vendre en prenant RDV avec notre agence immobilière KW OXYGÈNE.
L’actualité immobilière à Villeneuve-de-la-Raho
27/11/2023
02/11/2023
30/10/2023
20/10/2023
16/10/2023
16/10/2023