Images
Description
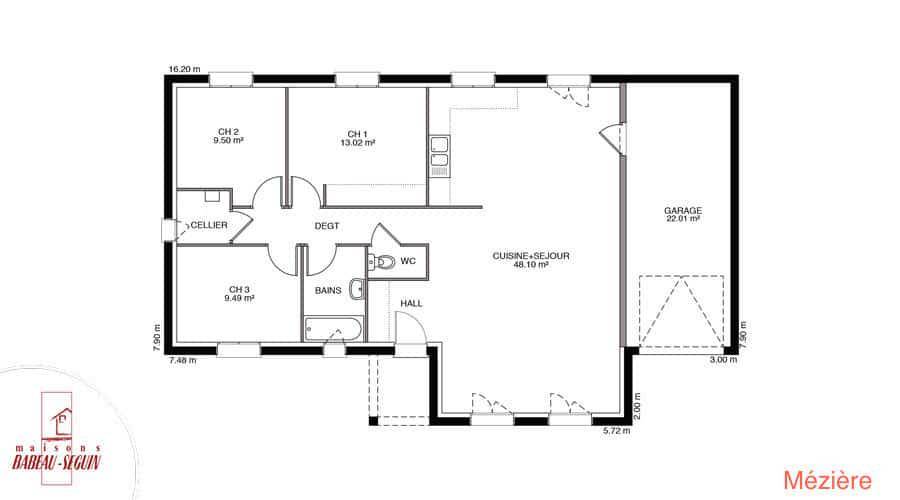
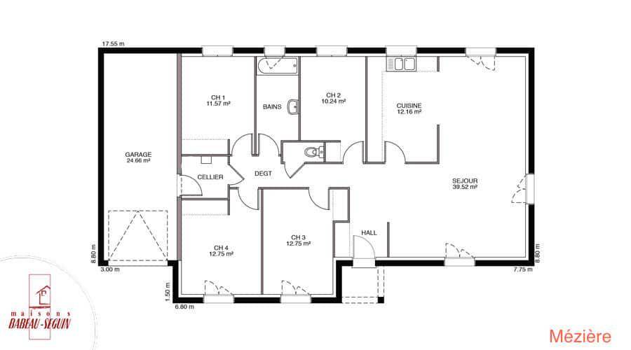
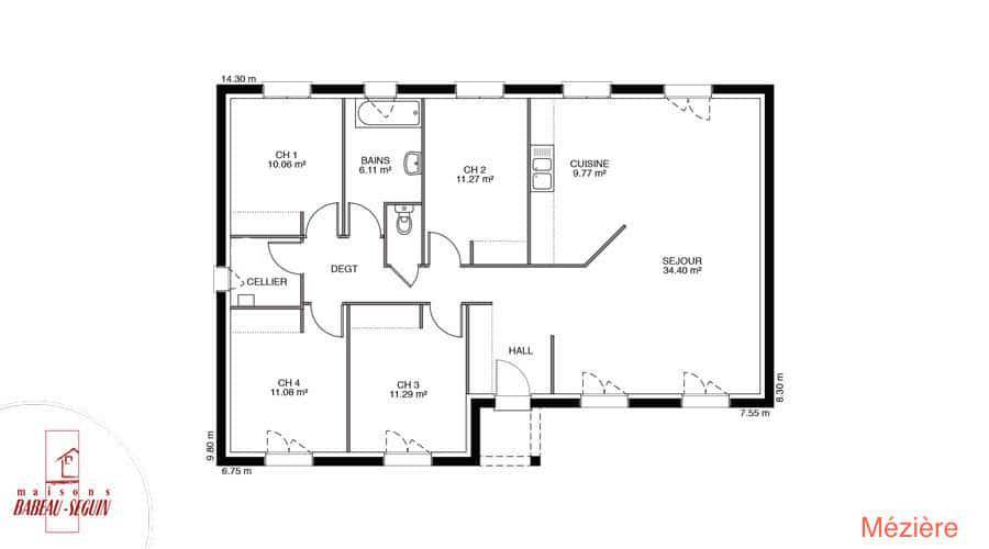
Sur ce terrain, nous vous proposons cette maison neuve, modèle Mézière, conçue par Babeau-Seguin, constructeur offrant le meilleur rapport qualité/prix du marché. Avec une surface de 108 m², cette maison basse consommation, conforme à la RE2020, saura répondre à toutes vos attentes.
La Mézière se distingue par son plan en L, disponible en version 2 pans ou 4 pans, et ses 4 chambres spacieuses réparties sur 4 pièces. Grâce à ses nombreuses versions, elle sait séduire et s’adapter aux besoins de chacun, ce qui fait de la Mézière une véritable maison sur mesure.
Les options les plus demandées par nos clients, telles que les menuiseries en aluminium, la domotique, ainsi que le garage ou le sous-sol, sont disponibles pour personnaliser votre maison selon vos envies et besoins.
Véritable coup de cœur pour de nombreux clients Babeau-Seguin, la Mézière est facilement modifiable, ce qui justifie pleinement son succès. Craquerez-vous aussi pour elle ?
N'attendez plus pour découvrir cette maison qui répondra aux besoins de nombreuses familles. Contactez-nous pour plus d'informations et pour organiser une visite.
Logement susceptibles de vous intéresser
Nous vous proposons de découvrir aussi cette sélection de logements situés à moins de 10km de Allériot et qui seraient susceptibles de vous intéresser.
Saint-Christophe-en-Bresse
TERRAINEric BONNOT vous propose cette parcelle avec un accès indépendant de plus d’environ 8765 m² de terrain constructible idéal pour un marchant de bien ou lotisseur , promoteur cette parcelle avec une de 23000m² peut recevoir 34 maisonsvous souhaitez faire un placement financier à long termest Christophe en Bresse est a moins de 30 minutes de l’autoroute A6 et de Chalon sur Saônevous venez d’Europe ou de l’étranger? l’aéroport de Lyon st Exupéry est a 1 h 40 par autoroutevotre job est à Paris ou Lyon que vous soyez de Paris par TGV en 2 H ou Lyon 1H et l’ autoroute à environ 5 Kms .ce lieu est pour les futur habitants un emplacement premium en plein bourg un vrai Avre de repos un vrai paradisétude de sol réalisée150000 euros HAI honoraire VendeurPour visiter et vous accompagner dans votre projet, contactez Eric BONNOT, au (Numéro supprimé) ou, par courriel à (Email supprimé).Selon l’article L.561.5 du Code Monétaire et Financier, pour l’organisation de la visite, la présentation d’une pièce d’identité vous sera demandée.Cette présente annonce a été rédigée sous la responsabilité éditoriale de Eric BONNOT agissant sous le statut d’agent commercial immatriculé au RSAC 513955823 auprès de SAS PROPRIETES PRIVEES, au capital de 44 920 euros, ZAC LE CHÊNE FERRÉ – 44 ALLÉE DES CINQ CONTINENTS 44120 VERTOU; SIRET 487 624 777 00040, RCS Nantes. Carte Professionnelle Transactions sur immeubles et fonds de commerce (T) et Gestion immobilière (G) n°CPI 4401 2016 000 010 388 délivrée par la CCI Nantes – Saint Nazaire. Compte séquestre n(Numéro supprimé)67 BPA SAINT-SEBASTIEN-SUR-LOIRE (44230). Garantie GALIAN-SMABTP – 89 rue de la Boétie, 75008 Paris – n°28137 J pour 2 000 000 euros pour T et 120 000 euros pour G. Assurance responsabilité civile professionnelle par GALIAN-SMABTP n° de police 28137.JMandat réf : ????426606??. – Le professionnel garantit et sécurise votre projet immobilier. Eric BONNOT (EI) Agent Commercial – Numéro RSAC : 513955823 – .
Saint-Christophe-en-Bresse
TERRAINEric BONNOT vous propose cette parcelle avec un accès indépendant de plus d’environ 23000 m² de terrain constructible idéal pour un marchant de bien ou lotisseur , promoteurvous souhaitez faire un placement financier à long termest Christophe en Bresse est a moins de 30 minutes de l’autoroute A6 et de Chalon sur Saônevous venez d’Europe ou de l’étranger? l’aéroport de Lyon st Exupéry est a 1 h 40 par autoroutevotre job est à Paris ou Lyon que vous soyez de Paris par TGV en 2 H ou Lyon 1H et l’ autoroute à environ 5 Kms .ce lieu est pour les futur habitants un emplacement premium en plein bourg un vrai Avre de repos un vrai paradisétude de sol réalisée225000 euros HAI honoraire VendeurPour visiter et vous accompagner dans votre projet, contactez Eric BONNOT, au (Numéro supprimé) ou, par courriel à (Email supprimé).Selon l’article L.561.5 du Code Monétaire et Financier, pour l’organisation de la visite, la présentation d’une pièce d’identité vous sera demandée.Cette présente annonce a été rédigée sous la responsabilité éditoriale de Eric BONNOT agissant sous le statut d’agent commercial immatriculé au RSAC 513955823 auprès de SAS PROPRIETES PRIVEES, au capital de 44 920 euros, ZAC LE CHÊNE FERRÉ – 44 ALLÉE DES CINQ CONTINENTS 44120 VERTOU; SIRET 487 624 777 00040, RCS Nantes. Carte Professionnelle Transactions sur immeubles et fonds de commerce (T) et Gestion immobilière (G) n°CPI 4401 2016 000 010 388 délivrée par la CCI Nantes – Saint Nazaire. Compte séquestre n(Numéro supprimé)67 BPA SAINT-SEBASTIEN-SUR-LOIRE (44230). Garantie GALIAN-SMABTP – 89 rue de la Boétie, 75008 Paris – n°28137 J pour 2 000 000 euros pour T et 120 000 euros pour G. Assurance responsabilité civile professionnelle par GALIAN-SMABTP n° de police 28137.JMandat réf : ????426608??. – Le professionnel garantit et sécurise votre projet immobilier. Eric BONNOT (EI) Agent Commercial – Numéro RSAC : 513955823 – .
Saint-Martin-en-Bresse
TERRAINDécouvrez ce terrain exceptionnel à vendre dans le charmant lotissement de Saint-Martin-en-Bresse, en Saône-et-Loire, s’étendant sur une généreuse surface de 800 m². Viabilisé et entièrement prêt pour accueillir votre projet de construction de maison, ce terrain offre l’opportunité de réaliser vos rêves architecturaux dans un cadre paisible et accueillant. La localité vous séduira par son ambiance tranquille, idéale pour une vie de famille ou un projet d’investissement. Situé dans la belle région de Bourgogne-Franche-Comté, Saint-Martin-en-Bresse regorge de commodités à proximité. Vous profiterez de commerces variés, d’écoles à deux pas et d’un accès facile aux infrastructures locales, rendant la vie quotidienne agréable et pratique. Ce village pittoresque est entouré de paysages enchanteurs, ajoutant une touche naturelle à votre futur chez-vous. L’environnement allie tranquillité et accessibilité, un atout majeur pour apprécier pleinement la qualité de vie offerte par cette région. Ne laissez pas passer cette excellente opportunité d’investir dans un terrain à fort potentiel, idéal pour créer la maison de vos rêves. Contactez-nous pour envisager cette proposition unique et réaliser votre projet immobilier. À noter qu’en tant que constructeur, nous ne sommes pas mandatés pour réaliser la vente de ce terrain.
Saint-Martin-en-Bresse
TERRAIN ET MAISONSur ce terrain, nous vous proposons cette maison neuve, le modèle Ménilière, une maison plain-pied moderne qui intègre de base un garage et une longue galerie sur la face avant. Avec une surface de 100 m², cette maison dispose de 4 chambres et de 4 pièces, offrant ainsi un espace de vie confortable et fonctionnel pour toute la famille.Véritable « »tout-en-un » » de la maison individuelle, ce modèle est idéal pour votre projet de construction sur-mesure. La Ménilière est disponible avec un toit à 2 pans ou 4 pans, selon vos préférences esthétiques. Le garage intégré et la galerie avant ajoutent une touche pratique et élégante à cette maison.Les options les plus demandées par nos clients, telles que les menuiseries en aluminium et le sous-sol, sont également disponibles pour personnaliser davantage votre future maison. De plus, cette maison neuve est basse consommation et conforme à la réglementation environnementale RE2020, garantissant ainsi des performances énergétiques optimales et un impact environnemental réduit.Le constructeur Babeau-Seguin, reconnu pour offrir le meilleur rapport qualité/prix du marché, vous accompagne dans la réalisation de votre projet immobilier. Avec un prix serré et une personnalisation facile, il n’est pas étonnant que la Ménilière soit dans le top 5 des ventes de Babeau-Seguin.Ne manquez pas cette opportunité unique de devenir propriétaire d’une maison moderne, économe en énergie et parfaitement adaptée à vos besoins. Contactez-nous dès maintenant pour plus d’informations et pour planifier une visite de ce modèle exceptionnel.
Saint-Martin-en-Bresse
TERRAINNous vous proposons un terrain exceptionnel de 626 m², idéalement situé dans un lotissement prisé de Saint-Martin-en-Bresse. Ce terrain viabilisé représente une opportunité parfaite pour la réalisation de votre projet de construction de maison. Avec son orientation favorable et sa superficie généreuse, il est le cadre idéal pour un confort de vie optimal et personnalisable selon vos désirs. Saint-Martin-en-Bresse, nichée au coeur de la Saône-et-Loire en Bourgogne-Franche-Comté, offre un cadre de vie paisible et agréable. Vous bénéficierez à proximité d’une multitude de commodités, comprenant commerces, écoles et loisirs, idéal pour les familles. De plus, sa situation géographique stratégique permet un accès facile aux attractions locales, tout en préservant une ambiance bucolique. Cette ville charmante combine harmonieusement tranquillité et dynamisme, vous promettant ainsi un cadre de vie de qualité. Ne manquez pas cette opportunité unique d’acquérir un terrain au potentiel exceptionnel, idéal pour donner vie à vos rêves de construction. Contactez-nous rapidement pour plus d’informations ! À noter qu’en tant que constructeur, nous ne sommes pas mandatés pour réaliser la vente de ce terrain.
Saint-Martin-en-Bresse
TERRAIN ET MAISONSur ce terrain, nous vous proposons cette maison neuve : le modèle Focus Cosy city. Conçue par Babeau-Seguin, constructeur reconnu pour offrir le meilleur rapport qualité/prix du marché, cette maison de plain-pied traditionnelle offre une surface habitable de 79 m², parfaitement optimisée pour répondre aux besoins des familles.Idéale pour les petits budgets, la Focus Cosy city est une maison neuve écologique, conforme aux normes strictes de la RE2020. Elle garantit une basse consommation énergétique, ce qui se traduit par des coûts d’usage et d’entretien très faibles, notamment pour le chauffage.Cette maison se compose de 4 pièces, dont 3 chambres lumineuses, parfaites pour accueillir une famille. Le grand séjour de 33 m² est baigné de lumière naturelle grâce à une baie vitrée coulissante, créant un espace de vie convivial et chaleureux. La cuisine ouverte sur le séjour permet de partager des moments agréables en famille ou entre amis. Un cellier, situé dans le prolongement de la cuisine, offre un espace de rangement pratique pour les provisions.La maison dispose également d’une salle de bain avec des WC séparés, offrant un espace de vie fonctionnel et bien organisé pour toute la famille. Les options les plus demandées par les clients, telles que la domotique et l’enduit bi-ton, peuvent être intégrées pour personnaliser votre maison selon vos préférences.En résumé, le modèle Focus Cosy city est une maison neuve économique et écologique, qui combine une conception pratique avec une haute efficacité énergétique. Elle offre ainsi un cadre de vie confortable et abordable pour les familles à la recherche d’un logement durable et respectueux de l’environnement. Économie à la construction, économie à la consommation !
Saint-Martin-en-Bresse
TERRAINDécouvrez ce superbe terrain à vendre, d’une superficie de 639 m², idéalement situé à Saint-Martin-en-Bresse, dans le département de Saône-et-Loire. Ce terrain viabilisé est parfait pour la conception de votre future maison. Avec ses caractéristiques uniques, cet emplacement offre un cadre de vie paisible tout en étant proche des commodités nécessaires à votre quotidien. Saint-Martin-en-Bresse se distingue par son ambiance conviviale et son accessibilité. Profitez d’une proximité avec divers commerces et services qui facilitent la vie de tous les jours. Non loin des magnifiques espaces naturels de la Bourgogne-Franche-Comté, ce terrain vous permettra également de vous adonner à de nombreuses activités récréatives en plein air. Ce cadre serein et attrayant vous promet une qualité de vie incomparable. Ne manquez pas cette opportunité unique d’acquérir un terrain au potentiel prometteur, idéal pour réaliser votre projet de construction. Contactez-nous dès maintenant pour en savoir plus ! À noter qu’en tant que constructeur, nous ne sommes pas mandatés pour réaliser la vente de ce terrain.
Saint-Martin-en-Bresse
TERRAIN ET MAISONSur ce terrain, nous vous proposons cette maison neuve, la Prunière, l’un des modèles les plus vendus par Babeau-Seguin, constructeur offrant le meilleur rapport qualité/prix du marché. Figurant dans le top 5 des maisons individuelles Babeau-Seguin, cette maison plain-pied Prunière séduit par son renfoncement qui casse la monotonie de la façade avant et offre un abri de seuil.Avec une surface de 73 m², cette maison traditionnelle comprend 3 pièces, dont 2 chambres, et un garage intégré. Vous avez le choix entre une toiture à 2 pans ou à 4 pans, selon vos préférences esthétiques.La Prunière est également une maison basse consommation, conforme à la réglementation environnementale RE2020, ce qui vous garantit des économies d’énergie et un confort optimal tout au long de l’année.Si on devait retenir la Prunière, ce serait toutefois son prix ! La Prunière est en effet la maison à petit prix par excellence, tout en offrant des prestations de qualité.Ne manquez pas cette opportunité de construire une maison qui allie confort, économie et esthétisme. Contactez-nous pour plus d’informations et pour découvrir toutes les options disponibles pour personnaliser votre future maison.
Saint-Martin-en-Bresse
TERRAINDécouvrez ce magnifique terrain à bâtir d’une surface de 733 m², idéalement situé dans le charmant lotissement de Saint-Martin-en-Bresse, en Saône-et-Loire. Ce terrain viabilisé offre la possibilité de concrétiser votre projet de construction de maison dans un environnement paisible et accueillant. La localité se distingue par son ambiance convivial, faisant de cet endroit un cadre de vie agréable pour les familles et les amoureux de la nature. Saint-Martin-en-Bresse, un bijou de la région Bourgogne-Franche-Comté, est réputé pour ses commodités accessibles et sa proximité avec les écoles et les commerces. Vous profiterez d’une vie paisible, tout en ayant accès aux richesses de la nature environnante et aux activités locales. Que ce soit pour un investissement immobilier ou pour bâtir la maison de vos rêves, ce terrain jouit d’un emplacement stratégique qui saura séduire de nombreux acquéreurs. Ne manquez pas cette opportunité unique d’acquérir un terrain de qualité dans une ville en plein essor. Contactez-nous pour plus d’informations et envisagez de faire de ce lieu votre futur foyer. À noter qu’en tant que constructeur, nous ne sommes pas mandatés pour réaliser la vente de ce terrain.
L’actualité immobilière à Allériot
27/11/2023
02/11/2023
30/10/2023
20/10/2023
16/10/2023
16/10/2023