Images
Description
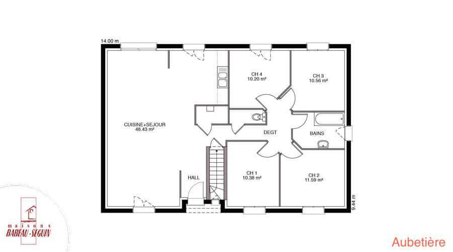
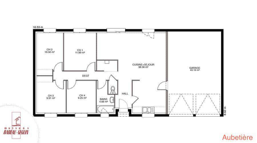
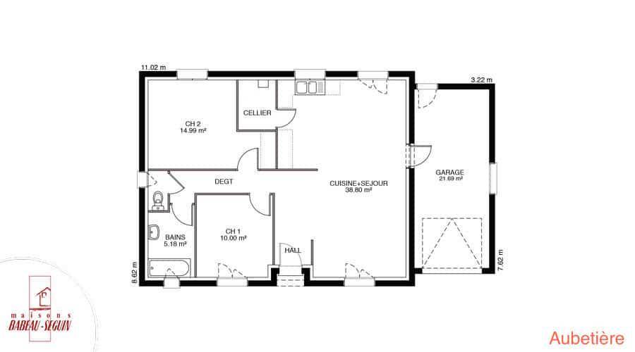
Sur ce terrain, nous vous proposons cette maison neuve Aubetière, un modèle traditionnel signé Babeau-Seguin, constructeur reconnu pour offrir le meilleur rapport qualité/prix du marché. Avec une surface de 111 m², cette maison de plain-pied se distingue par son design moderne et ses nombreuses options de personnalisation.
L'Aubetière dispose de 4 chambres spacieuses et de 4 pièces, offrant un espace de vie confortable et fonctionnel pour toute la famille. Vous avez le choix entre une toiture à 2 pans ou à 4 pans, ainsi que la possibilité d'ajouter un garage ou un sous-sol selon vos besoins et préférences.
Cette maison neuve est également basse consommation et conforme à la réglementation environnementale RE2020, garantissant des performances énergétiques optimales et un impact réduit sur l'environnement.
L'Aubetière est appréciée pour son excellent rapport qualité/prix et sa capacité à s'adapter à vos envies grâce à ses nombreuses déclinaisons et plans disponibles. Donnez vie à votre projet de construction en optant pour cette maison individuelle sur mesure, qui saura répondre à toutes vos attentes.
Ne manquez pas cette opportunité unique de construire la maison de vos rêves avec Babeau-Seguin, le constructeur qui allie qualité, performance et économie.
Logement susceptibles de vous intéresser
Nous vous proposons de découvrir aussi cette sélection de logements situés à moins de 10km de Fragnes-La Loyère et qui seraient susceptibles de vous intéresser.
Virey-le-Grand
TERRAIN ET MAISONSur ce terrain, nous vous proposons cette maison neuve Aubetière, un modèle traditionnel signé Babeau-Seguin, constructeur reconnu pour offrir le meilleur rapport qualité/prix du marché. Avec une surface de 111 m², cette maison de plain-pied se distingue par son design moderne et ses nombreuses options de personnalisation.L’Aubetière dispose de 4 chambres spacieuses et de 4 pièces, offrant un espace de vie confortable et fonctionnel pour toute la famille. Vous avez le choix entre une toiture à 2 pans ou à 4 pans, ainsi que la possibilité d’ajouter un garage ou un sous-sol selon vos besoins et préférences.Cette maison neuve est également basse consommation et conforme à la réglementation environnementale RE2020, garantissant des performances énergétiques optimales et un impact réduit sur l’environnement.L’Aubetière est appréciée pour son excellent rapport qualité/prix et sa capacité à s’adapter à vos envies grâce à ses nombreuses déclinaisons et plans disponibles. Donnez vie à votre projet de construction en optant pour cette maison individuelle sur mesure, qui saura répondre à toutes vos attentes.Ne manquez pas cette opportunité unique de construire la maison de vos rêves avec Babeau-Seguin, le constructeur qui allie qualité, performance et économie.
Saint-Rémy
TERRAIN ET MAISONSur ce terrain, nous vous proposons cette maison neuve Aubetière, un modèle traditionnel signé Babeau-Seguin, constructeur reconnu pour offrir le meilleur rapport qualité/prix du marché. Avec une surface de 111 m², cette maison de plain-pied se distingue par son design moderne et ses nombreuses options de personnalisation.L’Aubetière dispose de 4 chambres spacieuses et de 4 pièces, offrant un espace de vie confortable et fonctionnel pour toute la famille. Vous avez le choix entre une toiture à 2 pans ou à 4 pans, ainsi que la possibilité d’ajouter un garage ou un sous-sol selon vos besoins et préférences.Cette maison neuve est également basse consommation et conforme à la réglementation environnementale RE2020, garantissant des performances énergétiques optimales et un impact réduit sur l’environnement.L’Aubetière est appréciée pour son excellent rapport qualité/prix et sa capacité à s’adapter à vos envies grâce à ses nombreuses déclinaisons et plans disponibles. Donnez vie à votre projet de construction en optant pour cette maison individuelle sur mesure, qui saura répondre à toutes vos attentes.Ne manquez pas cette opportunité unique de construire la maison de vos rêves avec Babeau-Seguin, le constructeur qui allie qualité, performance et économie.
Virey-le-Grand
TERRAINNous vous présentons une occasion rare d’acquérir un terrain de 690 m², situé dans le charmant lotissement de Virey-le-Grand, dans le département de Saône-et-Loire. Ce terrain, entièrement viabilisé, est idéal pour un projet de construction de maison, offrant un cadre de vie paisible et agréable. Les dimensions généreuses de ce terrain permettent d’envisager plusieurs configurations architecturales, tout en garantissant un espace extérieur privé pour profiter des journées ensoleillées. Virey-le-Grand, niché au cœur de la Bourgogne-Franche-Comté, offre un cadre de vie exceptionnel. En plus de ses écoles de qualité à proximité, la ville bénéficie d’une excellente accessibilité aux commerces et services locaux. Les passionnés de nature apprécieront les espaces verts environnants et la tranquillité des lieux. Le secteur regorge également d’attractions culturelles et historiques, faisant de cette localité un lieu de vie des plus prisés. Ce terrain représente ainsi un excellent investissement, que ce soit pour une résidence principale ou un projet de loisirs. Ce terrain à Virey-le-Grand est une opportunité à saisir pour ceux qui souhaitent construire leur maison dans un cadre agréable. N’hésitez pas à découvrir le potentiel de cette offre unique. À noter qu’en tant que constructeur, nous ne sommes pas mandatés pour réaliser la vente de ce terrain.
Givry
TERRAIN ET MAISONSur ce terrain, nous vous proposons cette maison neuve : la Focus Cosy. Conçue par Babeau-Seguin, constructeur offrant le meilleur rapport qualité/prix du marché, cette maison de 79 m² est idéale pour les familles à la recherche d’un logement confortable et économique.La Focus Cosy se distingue par son design contemporain et ses finitions soignées. Avec ses 4 pièces, dont 3 chambres, cette maison de plain-pied offre un espace de vie bien pensé et harmonieux. Le vaste séjour-cuisine est un lieu convivial où il fait bon vivre, tandis que l’espace nuit garantit tranquillité et intimité.L’un des atouts majeurs de cette maison est son garage intégré, qui ajoute une touche de praticité supplémentaire. L’enduit bi-ton de la façade apporte une touche esthétique moderne et élégante.Cette maison neuve est également basse consommation et conforme à la RE2020, ce qui en fait un choix écologique et économique. Les options les plus demandées par nos clients, telles que les menuiseries en aluminium, peuvent être intégrées pour encore plus de confort et de modernité.En choisissant la Focus Cosy, vous optez pour une maison accessible à tous les budgets, sans compromis sur les équipements. Avec ses performances énergétiques et écologiques de pointe, cette maison bénéficie des dernières innovations technologiques et de toute l’expertise des Maisons Babeau-Seguin.Ne manquez pas cette opportunité de réaliser votre rêve de maison à un prix incroyablement attractif. La Focus Cosy est une maison pratique et élégante où votre famille se sentira immédiatement chez elle.
Fragnes-La Loyère
TERRAIN ET MAISONSur ce terrain, nous vous proposons cette maison neuve Aubetière, un modèle traditionnel signé Babeau-Seguin, constructeur reconnu pour offrir le meilleur rapport qualité/prix du marché. Avec une surface de 111 m², cette maison de plain-pied se distingue par son design moderne et ses nombreuses options de personnalisation.L’Aubetière dispose de 4 chambres spacieuses et de 4 pièces, offrant un espace de vie confortable et fonctionnel pour toute la famille. Vous avez le choix entre une toiture à 2 pans ou à 4 pans, ainsi que la possibilité d’ajouter un garage ou un sous-sol selon vos besoins et préférences.Cette maison neuve est également basse consommation et conforme à la réglementation environnementale RE2020, garantissant des performances énergétiques optimales et un impact réduit sur l’environnement.L’Aubetière est appréciée pour son excellent rapport qualité/prix et sa capacité à s’adapter à vos envies grâce à ses nombreuses déclinaisons et plans disponibles. Donnez vie à votre projet de construction en optant pour cette maison individuelle sur mesure, qui saura répondre à toutes vos attentes.Ne manquez pas cette opportunité unique de construire la maison de vos rêves avec Babeau-Seguin, le constructeur qui allie qualité, performance et économie.
Fragnes-La Loyère
TERRAINDécouvrez ce terrain exceptionnel de 778 m², situé dans le charmant lotissement de La Loyère, dans le département de Saône-et-Loire. Ce bien, entièrement viabilisé, représente une opportunité idéale pour concrétiser votre projet de construction de maison. La Loyère se distingue par son ambiance paisible et son cadre champêtre, offrant ainsi un cadre de vie agréable et serein pour toute la famille. Ce terrain bénéficie d’une localisation privilégiée en Bourgogne-Franche-Comté, à proximité de toutes les commodités essentielles. Profitez de la proximité des commerces, des écoles et des services, tout en savourant le calme de la campagne environnante. N’attendez plus pour vous projeter dans ce lieu où nature et modernité se rencontrent, offrant un cadre de vie équilibré et harmonieux. Ce terrain vous offre un potentiel immense pour réaliser votre rêve immobilier. Ne manquez pas cette opportunité d’achat unique. À noter qu’en tant que constructeur, nous ne sommes pas mandatés pour réaliser la vente de ce terrain.
Givry
TERRAINNous vous proposons un terrain à vendre de 621 m² idéalement situé dans le charmant lotissement de Givry, dans le département de Saône-et-Loire, en région Bourgogne-Franche-Comté. Ce terrain viabilisé constitue une opportunité exceptionnelle pour concrétiser votre projet de construction de maison, en offrant un espace adapté et convivial pour un cadre de vie agréable. Établissez votre foyer dans cette zone prometteuse qui allie calme et dynamisme. Givry est une ville riche en attractions locales et en commodités. Vous trouverez à proximité de ce terrain de nombreux commerces, des écoles ainsi qu’un collège et un lycée, garantissant ainsi un cadre familial optimal. La région est également reconnue pour ses paysages pittoresques, ses produits du terroir et son ample choix d’activités culturelles et sportives. Une localisation idéale pour profiter pleinement de la vie quotidienne tout en restant proche des activités de loisirs. Ce terrain vous offre un potentiel immense pour créer la maison de vos rêves. N’hésitez pas à saisir cette opportunité unique d’acquérir un bien dans un environnement attractif et pratique. À noter qu’en tant que constructeur, nous ne sommes pas mandatés pour réaliser la vente de ce terrain.
Allériot
TERRAIN ET MAISONSur ce terrain, nous vous proposons cette maison neuve, la Sauvetière, conçue par Babeau-Seguin, constructeur reconnu pour offrir le meilleur rapport qualité/prix du marché. La Sauvetière est sans aucun doute à classer dans la catégorie maison moderne de notre catalogue. Cette maison plain-pied traditionnelle de 80 m² vous séduira par son audacieux plan en forme de L et ses touches résolument modernes. Elle dispose de 3 pièces, dont 2 chambres confortables, et d’un vaste séjour lumineux.L’architecture en L de la Sauvetière abrite un garage accolé, offrant un accès direct à la maison. Vous avez le choix entre une toiture à 2 pans ou à 4 pans, selon vos préférences esthétiques.Cette maison neuve est basse consommation et conforme à la RE2020, garantissant des performances énergétiques optimales et un confort de vie inégalé. Ne manquez pas cette opportunité unique de devenir propriétaire d’une maison moderne, économe en énergie et parfaitement adaptée à vos besoins. Contactez-nous dès maintenant pour plus d’informations et pour planifier une visite du terrain.
Allériot
TERRAINÀ vendre, un terrain de 1001 m², idéalement situé dans la paisible commune d’Allériot, dans le département de la Saône-et-Loire. Ce terrain, non viabilisé, offre un cadre champêtre à couper le souffle et constitue l’emplacement parfait pour réaliser votre projet de construction de maison. Profitez d’un environnement calme et serein, où la verdure et la tranquillité sont au rendez-vous, tout en étant à proximité des commodités nécessaires pour un quotidien agréable. Allériot, au cœur de la région Bourgogne-Franche-Comté, se distingue par son charme rural et ses atouts locaux. Vous trouverez à proximité des attractions authentiques, ainsi que des services tels que des commerces, des écoles et des espaces de loisirs. Évoluez dans un cadre de vie convivial, où les promenades en nature et les rencontres entre voisins font partie intégrante de la vie quotidienne. Ce terrain représente une opportunité inégalée pour ceux qui rêvent de bâtir leur havre de paix dans un environnement privilégié. Ne manquez pas l’occasion d’acquérir ce terrain prometteur à Allériot, lieu idéal pour concrétiser votre projet de vie. Contactez-nous dès aujourd’hui pour profiter de cette offre ! À noter qu’en tant que constructeur, nous ne sommes pas mandatés pour réaliser la vente de ce terrain.
L’actualité immobilière à Fragnes-La Loyère
27/11/2023
02/11/2023
30/10/2023
20/10/2023
16/10/2023
16/10/2023