Images
Description
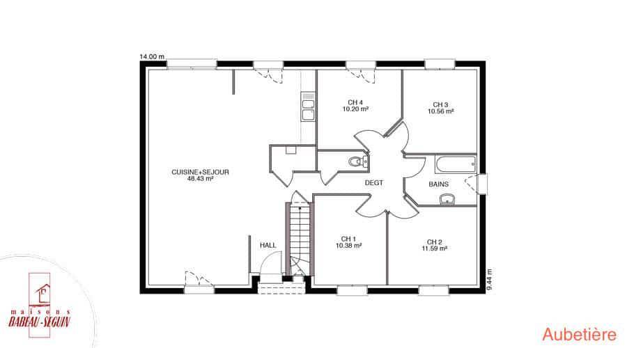
Sur ce terrain, nous vous proposons cette maison neuve Aubetière, un modèle traditionnel signé Babeau-Seguin, constructeur reconnu pour offrir le meilleur rapport qualité/prix du marché. Avec une surface de 111 m², cette maison de plain-pied se distingue par son design moderne et ses nombreuses options de personnalisation.
L'Aubetière dispose de 4 chambres spacieuses et de 4 pièces, offrant un espace de vie confortable et fonctionnel pour toute la famille. Vous avez le choix entre une toiture à 2 pans ou à 4 pans, ainsi que la possibilité d'ajouter un garage ou un sous-sol selon vos besoins et préférences.
Cette maison neuve est également basse consommation et conforme à la réglementation environnementale RE2020, garantissant des performances énergétiques optimales et un impact réduit sur l'environnement.
L'Aubetière est appréciée pour son excellent rapport qualité/prix et sa capacité à s'adapter à vos envies grâce à ses nombreuses déclinaisons et plans disponibles. Donnez vie à votre projet de construction en optant pour cette maison individuelle sur mesure, qui saura répondre à toutes vos attentes.
Ne manquez pas cette opportunité unique de construire la maison de vos rêves avec Babeau-Seguin, le constructeur qui allie qualité, performance et économie.
Logement susceptibles de vous intéresser
Nous vous proposons de découvrir aussi cette sélection de logements situés à moins de 10km de Granges et qui seraient susceptibles de vous intéresser.
Givry
TERRAINDécouvrez ce magnifique terrain plat de 1381 m² situé à Givry, en Saône-et-Loire, au cœur de la région Bourgogne-Franche-Comté. Ce terrain non viabilisé est parfaitement adapté pour réaliser votre projet de construction de maison, offrant une opportunité rare de construire un lieu de vie répondant à toutes vos attentes. Avec sa belle superficie et son environnement paisible, ce terrain saura séduire les futurs propriétaires désireux de s’installer dans un cadre agréable. Givry est une commune dynamique, réputée pour son ambiance conviviale et ses commodités de proximité. Profitez d’un cadre de vie attractif avec des commerces à deux pas, des écoles, un collège et un lycée à proximité, garantissant un accès facile à l’éducation pour vos enfants. Les nombreuses infrastructures de loisirs et l’attrait des paysages bourguignons en font un lieu idéal pour les familles et les amoureux de la nature. La douceur de vivre qui règne ici vous permettra de savourer chaque instant dans ce cadre enchanteur. Ne laissez pas passer cette opportunité unique d’acquérir un terrain offrant un potentiel inexploré dans un environnement privilégié. Nous vous invitons à envisager cet achat et à réaliser vos rêves de construction. À noter qu’en tant que constructeur, nous ne sommes pas mandatés pour réaliser la vente de ce terrain.
Givry
TERRAIN ET MAISONSur ce terrain, nous vous proposons cette maison neuve : l’Intimity U de la gamme Evasihome, le confort pour les parents?!Avec une surface de 109 m², cette maison en U est parfaitement conçue pour répondre aux besoins de toute la famille. Elle dispose de 3 chambres, dont une superbe suite parentale avec dressing et salle d’eau privative, offrant un espace de tranquillité pour les parents. Le grand séjour-cuisine central est idéal pour les moments de convivialité, et le garage intégré ajoute une touche de praticité au quotidien.Les caractéristiques principales de l’Intimity U incluent une verrière qui inonde la maison de lumière naturelle, des prises USB murales pour plus de modernité, et un garage intégré pour votre confort. De plus, cette maison est basse consommation et conforme à la RE2020, garantissant des économies d’énergie et un respect de l’environnement.Les options les plus demandées par nos clients, telles que l’enduit bi-ton et la domotique, sont également disponibles pour personnaliser votre maison selon vos goûts et vos besoins.Babeau-Seguin, constructeur offrant le meilleur rapport qualité/prix du marché, vous propose cette maison qui allie design et équipement sans compromis. Venez découvrir l’Intimity U et offrez-vous la tranquillité que vous méritez?!Rencontrons-nous en agence pour donner forme à votre rêve dès aujourd’hui?!
Granges
TERRAINNous vous présentons un terrain de 990 m², idéalement situé dans un cadre champêtre et au calme, parfait pour concrétiser votre projet de construction de maison. Ce terrain, non viabilisé, vous offre l’opportunité de réaliser la maison de vos rêves, sur un lotissement qui met en avant la tranquillité de la vie rurale tout en restant à proximité des commodités essentielles. Situé à Granges, dans le département de Saône-et-Loire en Bourgogne-Franche-Comté, ce terrain bénéficie d’une localisation avantageuse. La ville est un havre de paix, entourée de verdure et de paysages pittoresques. Vous pourrez profiter des attractions locales, tout en étant à quelques minutes des services nécessaires tels que commerces, écoles et infrastructures sportives. La région est réputée pour sa richesse culturelle et historique, offrant ainsi un cadre de vie agréable et dynamique. Ce terrain représente une opportunité unique pour tous ceux qui souhaitent s’installer dans un environnement serein et convivial. N’attendez plus pour envisager cette acquisition exceptionnelle ! À noter qu’en tant que constructeur, nous ne sommes pas mandatés pour réaliser la vente de ce terrain.
Granges
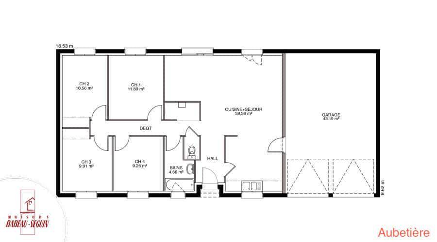
TERRAIN ET MAISONSur ce terrain, nous vous proposons cette maison neuve Aubetière, un modèle traditionnel signé Babeau-Seguin, constructeur reconnu pour offrir le meilleur rapport qualité/prix du marché. Avec une surface de 111 m², cette maison de plain-pied se distingue par son design moderne et ses nombreuses options de personnalisation.L’Aubetière dispose de 4 chambres spacieuses et de 4 pièces, offrant un espace de vie confortable et fonctionnel pour toute la famille. Vous avez le choix entre une toiture à 2 pans ou à 4 pans, ainsi que la possibilité d’ajouter un garage ou un sous-sol selon vos besoins et préférences.Cette maison neuve est également basse consommation et conforme à la réglementation environnementale RE2020, garantissant des performances énergétiques optimales et un impact réduit sur l’environnement.L’Aubetière est appréciée pour son excellent rapport qualité/prix et sa capacité à s’adapter à vos envies grâce à ses nombreuses déclinaisons et plans disponibles. Donnez vie à votre projet de construction en optant pour cette maison individuelle sur mesure, qui saura répondre à toutes vos attentes.Ne manquez pas cette opportunité unique de construire la maison de vos rêves avec Babeau-Seguin, le constructeur qui allie qualité, performance et économie.
Granges
TERRAINDécouvrez ce superbe terrain à vendre, idéalement situé à Granges, dans la commune paisible de Saône-et-Loire. Avec une superficie de 990 m², ce terrain non viabilisé offre un espace propice à la construction de la maison de vos rêves. Son environnement calme et champêtre en fait un cadre de vie parfait pour ceux qui recherchent à se ressourcer au quotidien, tout en étant à proximité des commodités nécessaires. Granges, niché en Bourgogne-Franche-Comté, est une localité qui bénéficie d’une ambiance conviviale et d’un accès facile à de nombreuses attractions locales. Les résidents peuvent profiter de la tranquillité de la nature environnante, tout en ayant le nécessaire à portée de main. La région est connue pour ses paysages pittoresques, ses activités de plein air et sa riche culture locale, promettant une qualité de vie exceptionnelle. Ne manquez pas cette opportunité de créer votre cadre de vie personnalisé dans un environnement convivial et agréable. Ce terrain représente une occasion unique pour les projet d’avenir. N’attendez plus pour envisager ce potentiel exceptionnel ! À noter qu’en tant que constructeur, nous ne sommes pas mandatés pour réaliser la vente de ce terrain.
Granges
TERRAIN ET MAISONSur ce terrain, nous vous proposons cette maison neuve, le modèle Ménilière, une maison plain-pied moderne qui intègre de base un garage et une longue galerie sur la face avant. Avec une surface de 100 m², cette maison dispose de 4 chambres et de 4 pièces, offrant ainsi un espace de vie confortable et fonctionnel pour toute la famille.Véritable « »tout-en-un » » de la maison individuelle, ce modèle est idéal pour votre projet de construction sur-mesure. La Ménilière est disponible avec un toit à 2 pans ou 4 pans, selon vos préférences esthétiques. Le garage intégré et la galerie avant ajoutent une touche pratique et élégante à cette maison.Les options les plus demandées par nos clients, telles que les menuiseries en aluminium et le sous-sol, sont également disponibles pour personnaliser davantage votre future maison. De plus, cette maison neuve est basse consommation et conforme à la réglementation environnementale RE2020, garantissant ainsi des performances énergétiques optimales et un impact environnemental réduit.Le constructeur Babeau-Seguin, reconnu pour offrir le meilleur rapport qualité/prix du marché, vous accompagne dans la réalisation de votre projet immobilier. Avec un prix serré et une personnalisation facile, il n’est pas étonnant que la Ménilière soit dans le top 5 des ventes de Babeau-Seguin.Ne manquez pas cette opportunité unique de devenir propriétaire d’une maison moderne, économe en énergie et parfaitement adaptée à vos besoins. Contactez-nous dès maintenant pour plus d’informations et pour planifier une visite de ce modèle exceptionnel.
Saint-Rémy
TERRAINNous vous présentons un terrain exceptionnel à vendre, d’une superficie de 783 m², situé dans le charmant lotissement de Saint-Rémy, au cœur de la Saône-et-Loire. Ce terrain viabilisé offre une opportunité idéale pour réaliser votre projet de construction de maison. Avec ses caractéristiques uniques, cette parcelle est parfaite pour accueillir la maison de vos rêves, tout en bénéficiant d’un cadre de vie agréable. Saint-Rémy, situé en Bourgogne-Franche-Comté, se distingue par son ambiance paisible et sa proximité avec de nombreuses commodités. Vous trouverez à quelques pas des commerces de proximité, ainsi que des écoles allant du primaire au lycée, facilitant le quotidien des familles. Profitez également de l’attrait de la région, qui offre un accès facile aux paysages pittoresques de la Bourgogne, des activités de plein air et un cadre de vie attrayant. Ce terrain promet un cadre de vie idyllique à proximité de toutes les commodités nécessaires. Ne manquez pas cette opportunité unique d’acquérir un terrain au potentiel remarquable, parfait pour construire la maison qui vous ressemble. Contactez-nous dès maintenant pour plus d’informations. À noter qu’en tant que constructeur, nous ne sommes pas mandatés pour réaliser la vente de ce terrain.
Saint-Rémy
TERRAIN ET MAISONSur ce terrain, nous vous proposons cette maison neuve, la Ménilière, un modèle plain-pied moderne qui saura répondre à toutes vos attentes. Avec une surface de 73 m², cette maison dispose de 3 pièces, dont 2 chambres, et intègre de base un garage ainsi qu’une longue galerie sur la face avant.Véritable « »tout-en-un » » de la maison individuelle, la Ménilière est idéale pour votre projet de construction sur-mesure. Elle est disponible avec un toit à 2 pans ou 4 pans, selon vos préférences esthétiques. Le garage intégré et la galerie avant ajoutent une touche de praticité et de confort à votre quotidien.Parmi les options les plus demandées par nos clients, vous pouvez opter pour des menuiseries en aluminium et un sous-sol, afin de personnaliser encore davantage votre future maison.Cette maison neuve est basse consommation et conforme à la RE2020, garantissant ainsi des performances énergétiques optimales et un respect des normes environnementales actuelles.Le constructeur Babeau-Seguin, reconnu pour offrir le meilleur rapport qualité/prix du marché, vous accompagne dans la réalisation de votre projet de vie. Avec un prix serré et une personnalisation facile, il n’est pas étonnant que la Ménilière soit dans le top 5 des ventes de Babeau-Seguin.Ne manquez pas cette opportunité unique de devenir propriétaire d’une maison moderne, fonctionnelle et économe en énergie. Contactez-nous dès maintenant pour plus d’informations et pour visiter ce modèle sur notre terrain.
Givry
TERRAINÀ Givry, Côte Chalonnaise – Terrain constructible de 1 179 m² prêt à bâtir.Bornage effectué. Terrain viabilisé avec raccordements (eau, électricité, télécom, assainissement) à proximité. Étude de sol réalisée.La construction neuve, c’est la liberté d’un réalisation sur-mesure, conforme à vos besoins et à vos envies !Ici, compte tenu de la configuration en légère cuvette, ce serait pour moi une construction inversée (type souplex), offrant ainsi la possibilité d’une architecture originale et d’un aménagement intérieur optimisé.Et vous ? Quel serait votre projet ?Secteur attractif : commune dynamique avec commerces et écoles, au cœur d’un cadre viticole et patrimonial recherché. Voie Verte toute proche.Honoraires d’agence à la charge du vendeur.Consultez nos tarifs sur le site de Immobilier Email.Annonce publiée le 04/11/2025 par Peggy Merle (Numéro supprimé), RSAC 498775923 – agent commercial indépendant de IMMOBILIER EMAIL SAS – EI, Tribunal de Commerce de Chalon-sur-Saône
L’actualité immobilière à Granges
27/11/2023
02/11/2023
30/10/2023
20/10/2023
16/10/2023
16/10/2023