Images
Description
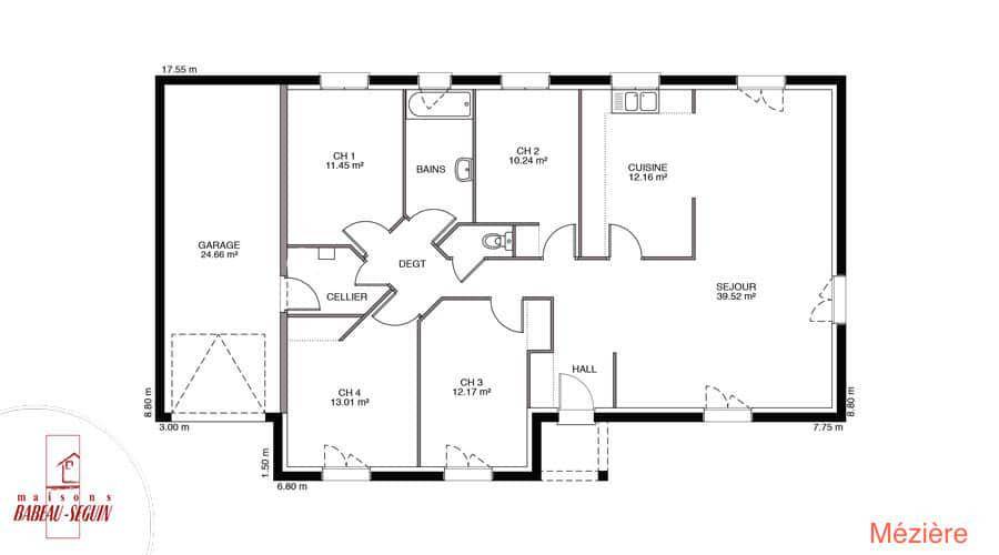
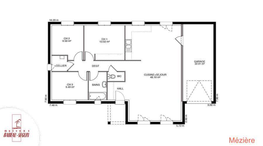
Sur ce terrain, nous vous proposons cette maison neuve, modèle Mézière, conçue par Babeau-Seguin, constructeur offrant le meilleur rapport qualité/prix du marché. Avec une surface de 88 m², cette maison de plain-pied saura répondre aux attentes de nombreuses familles grâce à ses 3 chambres et ses 4 pièces.
La Mézière se distingue par son plan en L, disponible en version 2 pans ou 4 pans, offrant ainsi une grande flexibilité pour s'adapter à vos besoins et à vos envies. Véritable maison sur mesure, elle séduit par ses nombreuses versions et options, permettant de créer un espace de vie unique et personnalisé.
Parmi les options les plus demandées par nos clients, vous trouverez les menuiseries en aluminium, la domotique pour une maison connectée, ainsi que la possibilité d'ajouter un garage ou un sous-sol. Ces options vous permettront de profiter pleinement de votre nouvelle maison, tout en bénéficiant des dernières innovations en matière de confort et de sécurité.
Cette maison neuve est également basse consommation et conforme à la réglementation environnementale RE2020, garantissant ainsi des performances énergétiques optimales et un impact réduit sur l'environnement. Vous pourrez ainsi réaliser des économies d'énergie tout en contribuant à la préservation de notre planète.
Véritable coup de cœur pour de nombreux clients Babeau-Seguin, la Mézière est une maison facilement modifiable, ce qui justifie pleinement son succès. Craquerez-vous aussi pour elle ? N'attendez plus pour découvrir cette maison d'exception et contactez-nous dès maintenant pour plus d'informations.
Logement susceptibles de vous intéresser
Nous vous proposons de découvrir aussi cette sélection de logements situés à moins de 10km de Lans et qui seraient susceptibles de vous intéresser.
Saint-Rémy
TERRAIN ET MAISONSur ce terrain, nous vous proposons cette maison neuve Aubetière, un modèle traditionnel signé Babeau-Seguin, constructeur reconnu pour offrir le meilleur rapport qualité/prix du marché. Avec une surface de 111 m², cette maison de plain-pied se distingue par son design moderne et ses nombreuses options de personnalisation.L’Aubetière dispose de 4 chambres spacieuses et de 4 pièces, offrant un espace de vie confortable et fonctionnel pour toute la famille. Vous avez le choix entre une toiture à 2 pans ou à 4 pans, ainsi que la possibilité d’ajouter un garage ou un sous-sol selon vos besoins et préférences.Cette maison neuve est également basse consommation et conforme à la réglementation environnementale RE2020, garantissant des performances énergétiques optimales et un impact réduit sur l’environnement.L’Aubetière est appréciée pour son excellent rapport qualité/prix et sa capacité à s’adapter à vos envies grâce à ses nombreuses déclinaisons et plans disponibles. Donnez vie à votre projet de construction en optant pour cette maison individuelle sur mesure, qui saura répondre à toutes vos attentes.Ne manquez pas cette opportunité unique de construire la maison de vos rêves avec Babeau-Seguin, le constructeur qui allie qualité, performance et économie.
L'Abergement-Sainte-Colombe
TERRAINTerrain à bâtir de 1035m2 situé dans la charmante commune de l’abergement sainte colombe (71370),ce terrain situé à 500M du bourg, vous offrira un accès direct aux commodités (écoles, commerces…), et la possibilité de rejoindre rapidement de grands axes (Chalon sur Saône 12KMS, A6 15KMS, route express 15KMS)Borné, non viabilisé, les réseaux sont accessibles au bord du terrain ( assainissement, eau, électricité, fibre)certificat d’urbanisme OKn’hésitez pas à nous contacter pour que nous puissions vous faire découvrir votre futur havre de paixBIEN non soumis à DPEprix de vente 44 430 euros honoraires d’agence inclusPour visiter et vous accompagner dans votre projet, contactez Sébastien PETIOT, au (Numéro supprimé) ou, par courriel à (Email supprimé).Selon l’article L.561.5 du Code Monétaire et Financier, pour l’organisation de la visite, la présentation d’une pièce d’identité vous sera demandée.Cette présente annonce a été rédigée sous la responsabilité éditoriale de Sébastien PETIOT agissant sous le statut d’agent commercial immatriculé au RSAC CHALON SUR SAONE 494 742 612 auprès de SAS PROPRIETES PRIVEES, au capital de 44 920 euros, ZAC LE CHÊNE FERRÉ – 44 ALLÉE DES CINQ CONTINENTS 44120 VERTOU; SIRET 487 624 777 00040, RCS Nantes. Carte Professionnelle Transactions sur immeubles et fonds de commerce (T) et Gestion immobilière (G) n°CPI 4401 2016 000 010 388 délivrée par la CCI Nantes – Saint Nazaire. Compte séquestre n(Numéro supprimé)67 BPA SAINT-SEBASTIEN-SUR-LOIRE (44230). Garantie GALIAN-SMABTP – 89 rue de la Boétie, 75008 Paris – n°28137 J pour 2 000 000 euros pour T et 120 000 euros pour G. Assurance responsabilité civile professionnelle par GALIAN-SMABTP n° de police 28137.JMandat réf : 430766 – Le professionnel garantit et sécurise votre projet immobilier. Sébastien PETIOT (EI) Agent Commercial – Numéro RSAC : CHALON SUR SAONE 494 742 612 – .
L'Abergement-Sainte-Colombe
TERRAINTerrain à bâtir de 1143 m2 situé dans la charmante commune de l’abergement sainte colombe (71370),ce terrain situé à 500M du bourg, vous offrira un accès direct aux commodités (écoles, commerces…), et la possibilité de rejoindre rapidement de grands axes (Chalon sur Saône 12KMS, A6 15KMS, route express 15KMS)Borné, non viabilisé, les réseaux sont accessibles au bord du terrain ( assainissement, eau, électricité, fibre)certificat d’urbanisme OK48 434 euros honoraires charge vendeurn’hésitez pas à nous contacter pour que nous puissions vous faire découvrir votre futur havre de paixBIEN non soumis à DPEPour visiter et vous accompagner dans votre projet, contactez Sébastien PETIOT, au (Numéro supprimé) ou, par courriel à (Email supprimé).Selon l’article L.561.5 du Code Monétaire et Financier, pour l’organisation de la visite, la présentation d’une pièce d’identité vous sera demandée.Cette présente annonce a été rédigée sous la responsabilité éditoriale de Sébastien PETIOT agissant sous le statut d’agent commercial immatriculé au RSAC CHALON SUR SAONE 494 742 612 auprès de SAS PROPRIETES PRIVEES, au capital de 44 920 euros, ZAC LE CHÊNE FERRÉ – 44 ALLÉE DES CINQ CONTINENTS 44120 VERTOU; SIRET 487 624 777 00040, RCS Nantes. Carte Professionnelle Transactions sur immeubles et fonds de commerce (T) et Gestion immobilière (G) n°CPI 4401 2016 000 010 388 délivrée par la CCI Nantes – Saint Nazaire. Compte séquestre n(Numéro supprimé)67 BPA SAINT-SEBASTIEN-SUR-LOIRE (44230). Garantie GALIAN-SMABTP – 89 rue de la Boétie, 75008 Paris – n°28137 J pour 2 000 000 euros pour T et 120 000 euros pour G. Assurance responsabilité civile professionnelle par GALIAN-SMABTP n° de police 28137.JMandat réf : 430694 – Le professionnel garantit et sécurise votre projet immobilier. Sébastien PETIOT (EI) Agent Commercial – Numéro RSAC : CHALON SUR SAONE 494 742 612 – .
Ouroux-sur-Saône
TERRAIN ET MAISONSur ce terrain, nous vous proposons cette maison neuve : l’Intimity U de la gamme Evasihome, le confort pour les parents?!Avec une surface de 124 m², cette maison en U est idéale pour les familles en quête d’intimité et de confort. Elle dispose de 4 chambres, dont une superbe suite parentale avec dressing et salle d’eau privative, offrant un espace de détente rien que pour vous. La suite parentale bénéficie également d’un accès direct à la terrasse, parfaite pour profiter des beaux jours.Le reste de la maison se compose de trois autres chambres avec placards, d’un grand séjour-cuisine central baigné de lumière grâce à une verrière, et d’un garage intégré pour votre confort. Les prises USB murales ajoutent une touche de modernité et de praticité à votre quotidien.Les options les plus demandées par nos clients, telles que l’enduit bi-ton et la domotique, sont disponibles pour personnaliser votre maison selon vos goûts et besoins.Cette maison neuve est basse consommation et conforme à la RE2020, garantissant des performances énergétiques optimales et un respect de l’environnement.Le constructeur Babeau-Seguin, reconnu pour offrir le meilleur rapport qualité/prix du marché, vous accompagne dans la réalisation de votre projet immobilier. Offrez-vous la tranquillité que vous méritez avec l’Intimity U, la maison que vous attendiez?! Rencontrons-nous en agence pour donner forme à votre rêve dès aujourd’hui?!
Ouroux-sur-Saône
TERRAINÀ la recherche d’un espace idéal pour bâtir la maison de vos rêves ? Ce terrain viabilisé de 1435 m², situé dans le charmant lotissement de L’Abergement-Sainte-Colombe, offre une opportunité exceptionnelle pour un projet de construction. Le terrain se distingue par son environnement arboré et son cadre champêtre, faisant de cette parcelle un lieu de vie paisible et agréable. L’Abergement-Sainte-Colombe se trouve dans la dynamique région de Bourgogne-Franche-Comté, où la qualité de vie est réputée. Ce bien est parfait pour les familles souhaitant s’installer dans un havre de paix. Idéalement situé dans le département de Saône-et-Loire, ce terrain est à proximité de nombreuses commodités locales, allant des commerces aux établissements scolaires, assurant ainsi un quotidien pratique et agréable. Vous pourrez également profiter de la beauté naturelle environnante et des diverses activités de loisirs offertes par la région. La commune promet un cadre de vie harmonieux où il fait bon se ressourcer tout en restant connectée aux infrastructures et services essentiels. C’est un lieu à fort potentiel, tant pour la vie familiale que pour une retraite paisible. Ne manquez pas cette occasion unique d’acquérir un terrain à fort potentiel dans un cadre idyllique. Contactez-nous dès aujourd’hui pour discuter de votre projet d’achat ! À noter qu’en tant que constructeur, nous ne sommes pas mandatés pour réaliser la vente de ce terrain.
Ouroux-sur-Saône
TERRAIN ET MAISONSur ce terrain, nous vous proposons cette maison neuve, la Provencière, conçue par Babeau-Seguin, constructeur offrant le meilleur rapport qualité/prix du marché. Inspirée par le charme de la Provence, cette maison de 134 m² allie élégance et fonctionnalité.La Provencière se distingue par son architecture typiquement provençale avec sa tour et son plan en L. Elle est disponible avec une toiture à 2 pans ou 4 pans, selon vos préférences. La maison comprend 4 chambres spacieuses et 4 pièces, offrant un espace de vie confortable et bien agencé.Les caractéristiques principales de cette maison incluent une dalle étage en béton, une avancée en tour et une galerie, ajoutant une touche de prestige et de charme à l’ensemble. Les options les plus demandées par nos clients, telles que l’enduit bi-ton et les menuiseries en aluminium, sont également disponibles pour personnaliser votre maison selon vos goûts.Cette maison neuve est basse consommation et conforme à la réglementation environnementale RE2020, garantissant une performance énergétique optimale et un respect de l’environnement.Prestigieuse et attachante, cette maison du sud vous fera sans doute craquer ! Idéale pour les terrains étroits, la Provencière conserve tous les avantages de la gamme, offrant un espace de vie harmonieux et fonctionnel.Ne manquez pas cette opportunité unique de devenir propriétaire d’une maison alliant tradition provençale et modernité, avec le meilleur rapport qualité/prix du marché. Contactez-nous dès aujourd’hui pour plus d’informations et pour planifier une visite.
Ouroux-sur-Saône
TERRAINDécouvrez ce terrain de 1522 m² viabilisé, idéalement situé dans le charmant village de L’Abergement-Sainte-Colombe, au cœur de la Saône-et-Loire en Bourgogne-Franche-Comté. Ce bien offre une opportunité rare pour réaliser votre projet de construction de maison dans un cadre paisible et enchanteur. Profitez de l’espace généreux de ce terrain pour donner vie à votre vision d’un foyer idéal, en harmonie avec la nature environnante. Localisé dans un environnement calme et verdoyant, L’Abergement-Sainte-Colombe se distingue par ses atouts indéniables. À proximité, vous bénéficierez de commodités telles que des commerces, des écoles et diverses infrastructures nécessaires à votre quotidien. La région est également reconnue pour ses paysages bucoliques et son ambiance relaxante qui en font un lieu de vie privilégié. Explorez les richesses naturelles et les attractions locales qui embelliront votre quotidien et renforceront le cadre de vie de votre future maison. Ne manquez pas cette chance unique d’acquérir un terrain avec un potentiel exceptionnel à L’Abergement-Sainte-Colombe. Réalisez votre rêve d’un lieu de vie idéal dans ce magnifique coin de Bourgogne. À noter qu’en tant que constructeur, nous ne sommes pas mandatés pour réaliser la vente de ce terrain.
Lans
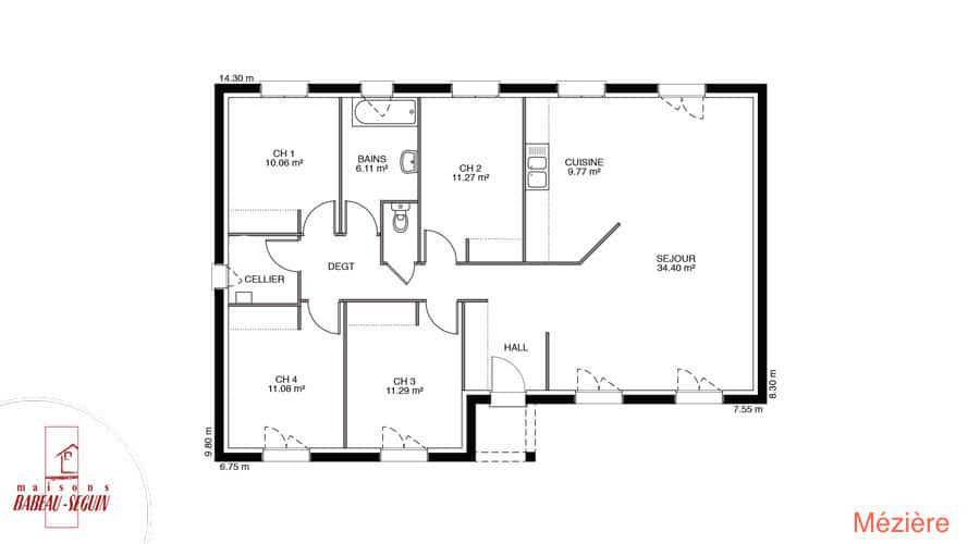
TERRAIN ET MAISONSur ce terrain, nous vous proposons cette maison neuve, modèle Mézière, conçue par Babeau-Seguin, constructeur offrant le meilleur rapport qualité/prix du marché. Avec une surface de 88 m², cette maison de plain-pied saura répondre aux attentes de nombreuses familles grâce à ses 3 chambres et ses 4 pièces.La Mézière se distingue par son plan en L, disponible en version 2 pans ou 4 pans, offrant ainsi une grande flexibilité pour s’adapter à vos besoins et à vos envies. Véritable maison sur mesure, elle séduit par ses nombreuses versions et options, permettant de créer un espace de vie unique et personnalisé.Parmi les options les plus demandées par nos clients, vous trouverez les menuiseries en aluminium, la domotique pour une maison connectée, ainsi que la possibilité d’ajouter un garage ou un sous-sol. Ces options vous permettront de profiter pleinement de votre nouvelle maison, tout en bénéficiant des dernières innovations en matière de confort et de sécurité.Cette maison neuve est également basse consommation et conforme à la réglementation environnementale RE2020, garantissant ainsi des performances énergétiques optimales et un impact réduit sur l’environnement. Vous pourrez ainsi réaliser des économies d’énergie tout en contribuant à la préservation de notre planète.Véritable coup de cœur pour de nombreux clients Babeau-Seguin, la Mézière est une maison facilement modifiable, ce qui justifie pleinement son succès. Craquerez-vous aussi pour elle ? N’attendez plus pour découvrir cette maison d’exception et contactez-nous dès maintenant pour plus d’informations.
Lans
TERRAINNous sommes ravis de vous présenter un terrain de 682 m², idéalement situé à Lans, dans la magnifique région de Saône-et-Loire, Bourgogne-Franche-Comté. Ce terrain, bien orienté, est parfait pour un projet de construction de maison répondant à vos besoins et à vos désirs. Bien que non viabilisé, son potentiel est immense, offrant à la fois espace et liberté pour réaliser votre rêve immobilier. La charmante commune de Lans vous séduira par son cadre de vie paisible et ses commodités de proximité. Située à seulement quelques minutes des commerces, des écoles, ainsi que d’un collège et d’un lycée, cette ville offre toute l’infrastructure nécessaire pour une vie familiale épanouissante. Avec ses paysages verdoyants et son environnement convivial, Lans est un lieu de vie idéal pour ceux qui recherchent à la fois tranquillité et accessibilité à toutes les infrastructures locales. Ne manquez pas cette opportunité unique d’acquérir un terrain dans un cadre exceptionnel. Considérez ce terrain comme le point de départ de votre futur projet immobilier vibrant et accueillant. À noter qu’en tant que constructeur, nous ne sommes pas mandatés pour réaliser la vente de ce terrain.
L’actualité immobilière à Lans
16/10/2023