Images
Description
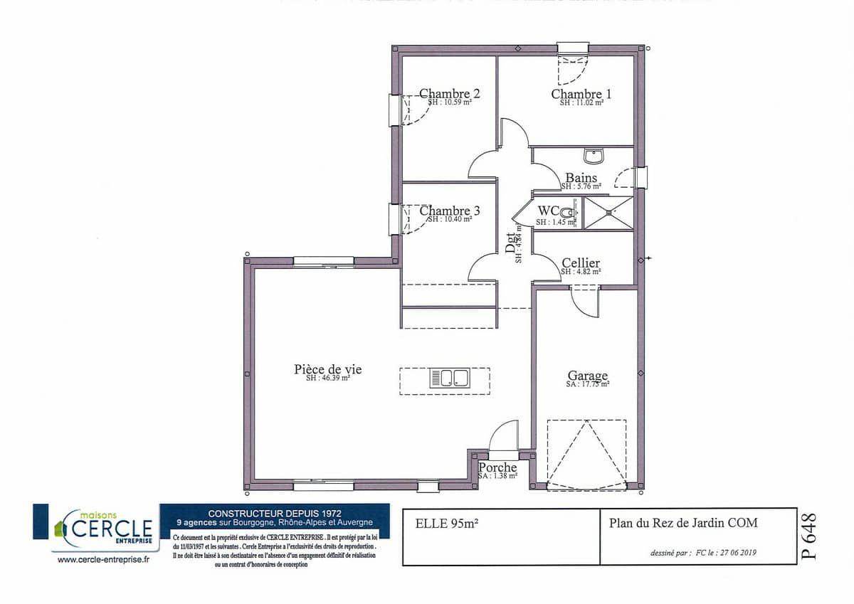
Nous vous présentons avec fierté notre nouvelle maison, baptisée "Elle", un modèle qui allie élégance et fonctionnalité, conçu pour répondre aux exigences les plus élevées en matière d'habitat moderne. Dotée d'une surface habitable de 95 m², "Elle" se distingue par son architecture en forme de L, offrant un design unique et une intégration harmonieuse dans son environnement.
Cette maison comprend 3 chambres spacieuses, permettant à chaque membre de la famille de bénéficier de son propre espace de tranquillité. Le plan inclut donc 4 pièces bien agencées, assurant une vie familiale des plus agréables. Le vaste espace de vie, entièrement ouvert, est conçu pour maximiser la lumière naturelle grâce à de grandes baies coulissantes qui créent une transition fluide entre l'intérieur et l'extérieur.
Le garage intégré assure une transition pratique et sécurisée entre votre espace de vie et votre véhicule. "Elle" se distingue par sa flexibilité, offrant plusieurs configurations possibles : que vous souhaitiez 4 chambres simples, une suite parentale pour plus d'intimité, ou encore une version incluant un bureau pour vos activités professionnelles ou créatives, toutes ces options sont réalisables.
Les options populaires, telles que le choix entre un toit à 2 ou 4 pans, un double garage pour plus d'espace, ou encore des menuiseries en aluminium pour une touche de modernité et de durabilité, sont disponibles pour personnaliser votre maison selon vos préférences.
Au-delà de son esthétique et de sa fonctionnalité, "Elle" est une maison basse consommation, conforme à la norme RE2020. Ce modèle représente une véritable prouesse en matière d'efficacité énergétique, garantissant un confort optimal tout en minimisant votre empreinte écologique. "Elle" n'est pas simplement une maison ; c'est un espace de vie conçu pour s'adapter à vos rêves et à votre quotidien, tout en respectant l'environnement.
Saisissez cette opportunité unique de construire le foyer de vos rêves, alliant esthéti
Logement susceptibles de vous intéresser
Nous vous proposons de découvrir aussi cette sélection de logements situés à moins de 10km de Marcilly-lès-Buxy et qui seraient susceptibles de vous intéresser.
Montchanin
TERRAINDécouvrez ce terrain d’une surface généreuse de 1255 m², situé à Montchanin, dans le département dynamique de Saône-et-Loire. Ce terrain non viabilisé offre une belle opportunité pour un projet de construction de maison personnalisée. Son format idéal et son emplacement privilégié vous permettront de concevoir un espace de vie à votre image, au cœur d’une ville à fort potentiel. Montchanin, située en Bourgogne-Franche-Comté, est une ville qui allie authenticité et modernité. Vous profiterez d’une proximité immédiate avec de nombreux commerces et commodités, ainsi que d’établissements scolaires allant des écoles aux collèges et lycées. La gare à proximité facilite les déplacements, renforçant ainsi l’attractivité de cette localité. Profitez également de paysages régionaux pittoresques et de l’effervescence culturelle qui font de Montchanin un lieu de vie agréable et recherché. Ce terrain représente une véritable opportunité pour ceux qui souhaitent bâtir leur futur dans un cadre de vie agréable. Ne manquez pas cette occasion de réaliser votre projet immobilier à Montchanin. À noter qu’en tant que constructeur, nous ne sommes pas mandatés pour réaliser la vente de ce terrain.
Montchanin
TERRAIN ET MAISONSur ce terrain, nous vous proposons cette maison neuve : l’Intimity L de la gamme Evasihome, un confort absolu. Parce qu’être parent n’est pas toujours facile quand la petite tribu remue dans la maison, et qu’on a tous besoin d’intimité et d’un lieu bien à soi, Babeau-Seguin propose une nouvelle gamme de maisons avec suite parentale, Evasihome. L’Intimity L va vous séduire, vous qui, après une longue journée, avez besoin de vous ressourcer dans votre espace privatif.Intimity L, parce que les parents aussi ont droit au meilleur?! Lorsqu’on construit une maison neuve, on pense avant tout au confort des enfants. Et si pour une fois cela changeait un peu?? Offrez-vous la chambre parentale que vous méritez?! Dotée d’un beau dressing et d’une salle d’eau, celle-ci est autonome, grâce à une porte-fenêtre donnant directement sur la terrasse bétonnée. Dans le reste de cette très belle maison en L, vous disposerez de trois chambres supplémentaires avec placards, un confortable espace de jour avec cuisine ouverte, un cellier et un garage intégré.Laissez-vous séduire par cette si belle maison où chaque membre de la famille trouvera sa place. Avec une surface de 124 m², cette demeure offre un espace de vie optimisé et lumineux pour que toute la famille s’épanouisse. Les caractéristiques principales incluent une verrière, des prises USB murales, une suite parentale, une terrasse bétonnée et un garage intégré. De plus, cette maison neuve est basse consommation et conforme à la RE2020, garantissant des économies d’énergie et un confort thermique optimal. Les options les plus demandées par nos clients, telles que l’enduit bi-ton et la domotique, sont également disponibles pour personnaliser votre maison selon vos envies.Babeau-Seguin, constructeur offrant le meilleur rapport qualité/prix du marché, vous invite à découvrir l’Intimity L. Vous êtes convaincus?? Alors n’attendez pas, venez à notre rencontre, nous évoquerons ensemble votre projet de construction?!
Marcilly-lès-Buxy
TERRAINÀ la recherche d’un terrain idéal pour réaliser votre projet de construction de maison ? Ne cherchez plus ! Nous vous présentons ce magnifique terrain viabilisé de 1134 m², situé dans le charmant lotissement de Marcilly-lès-Buxy. Vous serez séduit par son cadre champêtre et au calme, propice à la création de votre havre de paix. Ce terrain plat dispose de toutes les caractéristiques nécessaires pour accueillir votre future demeure. Une opportunité à saisir pour les futurs propriétaires et constructeurs en quête d’authenticité et de tranquillité. Marcilly-lès-Buxy, niché dans le département de Saône-et-Loire en Bourgogne-Franche-Comté, vous offre un cadre de vie agréable et de nombreuses attractions locales. La région est connue pour ses paysages pittoresques, ses sentiers de randonnées, et sa proximité avec des commodités essentielles, telles que des commerces et des services de santé. Les amoureux de la nature apprécieront les balades en pleine campagne et la tranquillité ambiante. Ici, vous bénéficierez d’un environnement propice à la vie de famille tout en restant connecté aux grandes villes environnantes. Ne manquez pas l’occasion de concrétiser votre rêve immobilier sur ce terrain prometteur dans une commune où il fait bon vivre. Contactez-nous dès aujourd’hui pour plus d’informations sur cette opportunité unique. À noter qu’en tant que constructeur, nous ne sommes pas mandatés pour réaliser la vente de ce terrain.
Marcilly-lès-Buxy
TERRAIN ET MAISONSur ce terrain, nous vous proposons cette maison neuve, modèle Prunière, l’un des modèles les plus vendus par Babeau-Seguin, constructeur offrant le meilleur rapport qualité/prix du marché. Figurant dans le top 5 des maisons individuelles Babeau-Seguin, cette maison plain-pied Prunière séduit par son renfoncement qui casse la monotonie de la façade avant et offre un abri de seuil.Avec une surface de 85 m², cette maison traditionnelle comprend 4 pièces, dont 3 chambres, et un garage intégré. Elle se décline en versions à 2 pans ou 4 pans, selon vos préférences. Parfaitement équipée, la Prunière est en effet la maison à petit prix par excellence.En plus de son design attrayant, cette maison neuve est basse consommation et conforme à la RE2020, garantissant ainsi des performances énergétiques optimales et un confort de vie inégalé. Ne manquez pas cette opportunité de construire la maison de vos rêves avec Babeau-Seguin, le constructeur qui allie qualité, prix et satisfaction client.
Montchanin
TERRAIN ET MAISONNous vous proposons cette maison neuve, baptisée Design L, une conception architecturale moderne et élégante qui optimise l’espace et la lumière naturelle. Avec une surface habitable de 90 m², cette maison de plain-pied se distingue par sa forme en « »L » », permettant une parfaite adaptation sur des terrains de petite largeur tout en offrant un espace de vie convivial et intime.La Design L se compose de 4 pièces principales, dont 3 chambres confortables, un cellier pratique et un garage intégré, répondant ainsi aux besoins des familles en quête d’un foyer fonctionnel et accueillant. La disposition en « »L » » de la maison crée un espace extérieur protégé, idéal pour des moments de détente en toute intimité.Cette maison est conçue dans le respect des normes RE2020, garantissant une performance énergétique de premier plan. En tant que maison basse consommation, elle vous permettra de réaliser d’importantes économies d’énergie tout en contribuant à la protection de l’environnement. La Design L est donc une réponse concrète aux attentes des acquéreurs soucieux de leur empreinte écologique et désireux de bénéficier des dernières innovations en matière de confort et d’économie d’énergie.Parmi les options les plus plébiscitées par nos clients, la Design L offre la possibilité d’ajouter des équipements et des finitions personnalisées pour que votre maison neuve réponde parfaitement à vos attentes et à votre style de vie.Choisir la Design L, c’est opter pour une maison à la fois moderne, économique et adaptée à la vie de famille. Son prix attractif et ses caractéristiques en font une des références de notre gamme, capable de satisfaire les plus exigeants en termes de qualité de vie et de respect de l’environnement.N’attendez plus pour faire de la Design L votre nouveau chez-vous, un lieu où convivialité, confort et durabilité se rencontrent pour créer un cadre de vie idéal.
Montchanin
TERRAINVous recherchez un terrain à bâtir dans un environnement paisible ? Ne cherchez plus, ce terrain à vendre à Montchanin est fait pour vous! Avec ses 682 m² de surface et son emplacement idéal, il saura combler vos attentes. Le terrain est viabilisé, l’assainissement collectif est réalisé. Il est proposé au prix de 75 euros TTC du m². Terrain vu pour vous hors frais de notaire et aménagements extérieurs.
Marcilly-lès-Buxy
TERRAIN ET MAISONNous vous présentons avec fierté notre nouvelle maison, baptisée « Elle », un modèle qui allie élégance et fonctionnalité, conçu pour répondre aux exigences les plus élevées en matière d’habitat moderne. Dotée d’une surface habitable de 95 m², « Elle » se distingue par son architecture en forme de L, offrant un design unique et une intégration harmonieuse dans son environnement.Cette maison comprend 3 chambres spacieuses, permettant à chaque membre de la famille de bénéficier de son propre espace de tranquillité. Le plan inclut donc 4 pièces bien agencées, assurant une vie familiale des plus agréables. Le vaste espace de vie, entièrement ouvert, est conçu pour maximiser la lumière naturelle grâce à de grandes baies coulissantes qui créent une transition fluide entre l’intérieur et l’extérieur.Le garage intégré assure une transition pratique et sécurisée entre votre espace de vie et votre véhicule. « Elle » se distingue par sa flexibilité, offrant plusieurs configurations possibles : que vous souhaitiez 4 chambres simples, une suite parentale pour plus d’intimité, ou encore une version incluant un bureau pour vos activités professionnelles ou créatives, toutes ces options sont réalisables.Les options populaires, telles que le choix entre un toit à 2 ou 4 pans, un double garage pour plus d’espace, ou encore des menuiseries en aluminium pour une touche de modernité et de durabilité, sont disponibles pour personnaliser votre maison selon vos préférences.Au-delà de son esthétique et de sa fonctionnalité, « Elle » est une maison basse consommation, conforme à la norme RE2020. Ce modèle représente une véritable prouesse en matière d’efficacité énergétique, garantissant un confort optimal tout en minimisant votre empreinte écologique. « Elle » n’est pas simplement une maison ; c’est un espace de vie conçu pour s’adapter à vos rêves et à votre quotidien, tout en respectant l’environnement.Saisissez cette opportunité unique de construire le foyer de vos rêves, alliant esthéti
Marcilly-lès-Buxy
TERRAINDécouvrez ce terrain à vendre situé dans le village de Marcilly-les-Buxy. D’une superficie de 1123 m², il offre une proximité avec les établissements scolaires pour vos enfants. Le terrain est viabilisé, l’assainissement collectif est réalisé. La parcelle est proposée au prix de 49 euros TTC du m². Terrain vu pour vous hors frais de notaire et aménagements extérieurs.
Marcilly-lès-Buxy
TERRAIN ET MAISONNous vous proposons cette maison neuve, baptisée Design 90, une demeure qui allie modernité, fonctionnalité et respect de l’environnement. Avec une surface habitable de 90 m², cette maison est conçue pour maximiser chaque mètre carré disponible, offrant ainsi un cadre de vie à la fois confortable et esthétique. La Design 90 se distingue par son architecture contemporaine, caractérisée par des enduits colorés qui lui confèrent une allure à la fois élégante et accueillante. L’agencement intérieur a été pensé pour éviter toute perte d’espace, garantissant ainsi une optimisation parfaite de chaque pièce. Cette maison se compose de 4 pièces lumineuses, dont 3 chambres spacieuses, répondant parfaitement aux besoins d’une famille moderne. L’un des atouts majeurs de la Design 90 est son garage intégré, offrant non seulement un espace supplémentaire de 15 m² pour votre véhicule, mais aussi une solution de rangement pratique pour vos outils, vélos et autres équipements. Conforme à la norme RE2020, cette maison neuve est un modèle de basse consommation énergétique. Elle a été conçue dans le respect des dernières exigences en matière d’efficacité énergétique et d’impact environnemental, vous assurant ainsi des économies significatives sur vos factures d’énergie tout en contribuant à la protection de notre planète.Les options les plus plébiscitées par nos clients, telles que des solutions d’isolation avancées et des systèmes de chauffage performants, sont disponibles pour personnaliser votre maison selon vos préférences et besoins spécifiques.En choisissant la Design 90, vous optez pour une maison à l’excellent rapport qualité-prix, sans compromis sur le confort ou le style. C’est l’opportunité idéale de devenir propriétaire d’une maison neuve, moderne et éco-responsable, conçue pour s’adapter à l’évolution de votre famille.N’attendez plus pour réaliser votre rêve d’une maison parfaite, la Design 90 vous attend pour commencer un nouveau chapitre de votre vie dans un
L’actualité immobilière à Marcilly-lès-Buxy
27/11/2023
02/11/2023
30/10/2023
20/10/2023
16/10/2023
16/10/2023