Images
Description
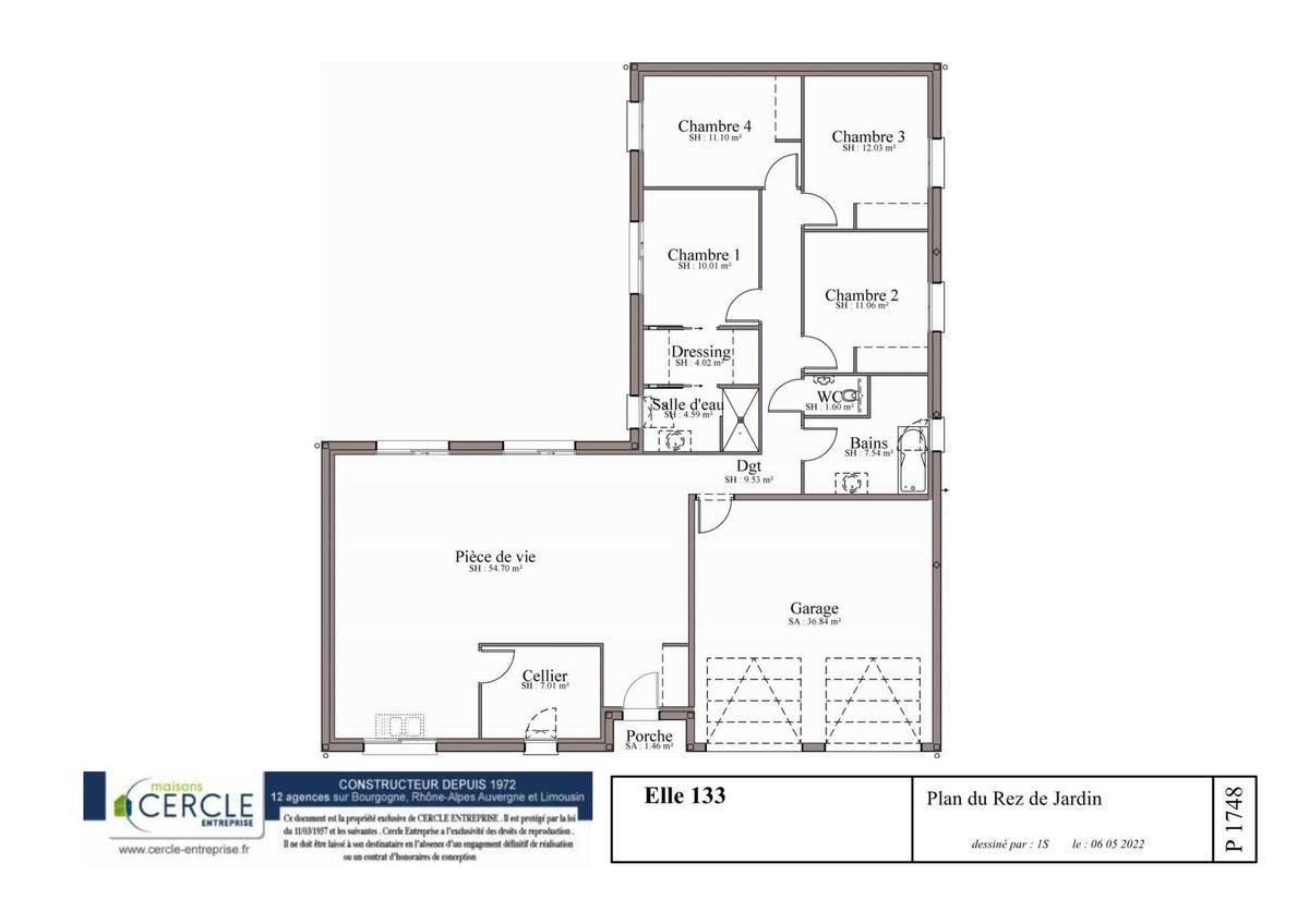
Nous vous présentons avec fierté notre nouvelle maison, baptisée "Elle", un modèle qui allie élégance et fonctionnalité, conçu pour répondre aux exigences les plus élevées en matière d'habitat moderne. Dotée d'une surface habitable de 95 m², "Elle" se distingue par son architecture en forme de L, offrant un design unique et une intégration harmonieuse dans son environnement.
Cette maison comprend 3 chambres spacieuses, permettant à chaque membre de la famille de bénéficier de son propre espace de tranquillité. Le plan inclut donc 4 pièces bien agencées, assurant une vie familiale des plus agréables. Le vaste espace de vie, entièrement ouvert, est conçu pour maximiser la lumière naturelle grâce à de grandes baies coulissantes qui créent une transition fluide entre l'intérieur et l'extérieur.
Le garage intégré assure une transition pratique et sécurisée entre votre espace de vie et votre véhicule. "Elle" se distingue par sa flexibilité, offrant plusieurs configurations possibles : que vous souhaitiez 4 chambres simples, une suite parentale pour plus d'intimité, ou encore une version incluant un bureau pour vos activités professionnelles ou créatives, toutes ces options sont réalisables.
Les options populaires, telles que le choix entre un toit à 2 ou 4 pans, un double garage pour plus d'espace, ou encore des menuiseries en aluminium pour une touche de modernité et de durabilité, sont disponibles pour personnaliser votre maison selon vos préférences.
Au-delà de son esthétique et de sa fonctionnalité, "Elle" est une maison basse consommation, conforme à la norme RE2020. Ce modèle représente une véritable prouesse en matière d'efficacité énergétique, garantissant un confort optimal tout en minimisant votre empreinte écologique. "Elle" n'est pas simplement une maison ; c'est un espace de vie conçu pour s'adapter à vos rêves et à votre quotidien, tout en respectant l'environnement.
Saisissez cette opportunité unique de construire le foyer de vos rêves, alliant esthéti
Logement susceptibles de vous intéresser
Nous vous proposons de découvrir aussi cette sélection de logements situés à moins de 10km de Palinges et qui seraient susceptibles de vous intéresser.
Palinges
TERRAIN ET MAISONNous vous proposons cette maison neuve, baptisée Focus 91, une demeure qui réinvente l’art de vivre en famille. Avec ses 91 m² judicieusement répartis, cette maison est l’incarnation parfaite du célèbre slogan L’espace n’est plus un luxe. Elle offre non seulement quatre chambres spacieuses mais aussi une grande pièce de vie où partager des moments inoubliables devient la norme. La Focus 91 se distingue par son design extérieur jeune et intemporel, qui séduira à coup sûr ceux qui cherchent à allier esthétique et fonctionnalité. Son grand garage intégré ajoute une touche de commodité non négligeable, faisant de cette maison le choix idéal pour les familles en quête d’un foyer convivial et pratique.Mais ce qui rend la Focus 91 véritablement exceptionnelle, c’est son rapport qualité/prix inimaginable pour une maison basse consommation. Conforme à la norme RE2020, cette maison est conçue pour minimiser votre empreinte écologique tout en maximisant votre confort. Elle est entièrement personnalisable, vous permettant ainsi de créer un espace qui reflète parfaitement votre style de vie et vos préférences.Les options les plus plébiscitées par nos clients, telles que des solutions d’isolation avancées et des systèmes de chauffage performants, sont disponibles pour faire de la Focus 91 une maison encore plus économique et agréable à vivre. En choisissant cette maison, vous optez pour un habitat durable qui répond aux exigences les plus strictes en matière de consommation énergétique.La Focus 91 est plus qu’une maison ; c’est un investissement dans votre avenir et celui de votre famille. Ne manquez pas l’opportunité de construire le foyer de vos rêves, un lieu où chaque jour est une invitation à profiter de la vie dans ce qu’elle a de meilleur. Contactez-nous dès maintenant pour commencer à concrétiser votre projet de vie dans une maison qui, bien plus qu’un lieu de résidence, sera le théâtre de vos plus beaux souvenirs.
Palinges
TERRAINDécouvrez ce terrain de 779 m² situé dans le charmant lotissement de Palinges 71430, en Saône-et-Loire. Ce terrain, viabilisé et d’une surface idéale, s’offre à vous avec une vue dégagée et un ensoleillement optimal. Son environnement calme et paisible en fait l’emplacement parfait pour réaliser votre projet de construction de maison. Sa qualité de vie, combinée à un prix attractif, en fait une opportunité exceptionnelle pour les acheteurs en quête d’un cadre idéal pour leur future habitation. Palinges est une ville qui se distingue par son atmosphère conviviale et ses commodités de proximité. Située en Saône-et-Loire, elle vous permet de profiter des atouts de la nature environnante tout en étant à proximité des services essentiels. Les attractions locales, telles que les sentiers de randonnée et les espaces verts, ajoutent au charme de cette localité. Les habitants peuvent également bénéficier de commerces, écoles et transports à proximité, rendant le quotidien agréable et pratique. C’est un cadre de vie idéal qui séduira les familles et les personnes en quête d’un nouveau départ. Ne laissez pas passer cette chance d’acquérir un terrain offrant un potentiel unique pour votre projet de vie. Ce bien rare n’attend que vous pour réaliser vos rêves. Contactez-nous dès aujourd’hui pour plus d’informations sur cette opportunité d’achat à Palinges.
Ciry-le-Noble
TERRAINFlorence Hossa, Optimhome, vous propose, à Ciry le Noble, ce terrain à bâtir de 1600 m².En retrait de la route avec vue sur la campagne, vous y serez au calme.Le terrain n’est pas raccordé mais tout arrive en bordure de propriété. Les honoraires sont à la charge du vendeur.Les informations sur les risques auxquels ce bien est exposé sont disponibles sur le site Géorisques : www. georisques. gouv. fr.Contactez Florence HOSSA Entrepreneur Individuel, Agent commercial OptimHome (RSAC N(Numéro supprimé) Greffe de MACON) (Numéro supprimé) (réf. 594338 )
Palinges
TERRAIN ET MAISONNous vous proposons cette maison neuve, baptisée Focus 80, un modèle phare de notre gamme qui se distingue par son excellent rapport qualité/prix. Conçue pour répondre aux attentes des familles modernes, cette maison de 80 m² allie fonctionnalité et esthétique avec un design contemporain et jeune. Elle comprend 3 chambres spacieuses, un vaste séjour lumineux pour des moments de partage en famille ou entre amis, ainsi qu’un garage intégré, offrant ainsi un total de 4 pièces bien agencées pour un confort optimal.La Focus 80 est avant tout une maison basse consommation, conçue dans le strict respect de la norme RE2020. Cette réglementation environnementale de dernière génération garantit une efficacité énergétique maximale, réduisant considérablement vos factures d’énergie tout en contribuant à la protection de l’environnement. Opter pour la Focus 80, c’est faire le choix d’un habitat durable, qui répond aux exigences les plus élevées en matière de performance énergétique.Parmi les options les plus plébiscitées par nos clients, nous avons intégré des solutions innovantes pour renforcer le confort de votre maison tout en optimisant sa consommation énergétique. La Focus 80 se démarque par son prix d’appel imbattable, ce qui en fait un choix privilégié pour les acquéreurs à la recherche d’un excellent rapport qualité/prix sans compromis sur la qualité et la durabilité.En choisissant la Focus 80, vous optez pour une maison qui va à l’essentiel sans négliger l’élégance et le bien-être. C’est le coup de cœur assuré pour ceux qui rêvent d’une maison neuve, moderne, et respectueuse de l’environnement. Ne laissez pas passer cette opportunité de construire la maison de vos rêves, conforme aux dernières normes environnementales. La Focus 80 vous attend pour commencer un nouveau chapitre de votre vie dans un cadre confortable et durable.
Palinges
TERRAINParcelle idéale pour un beau projet de construction dans un cadre verdoyant ou vous trouverez le calme de la campagne. Dernier terrain disponible dans un nouveau lotissement à PALINGES 71430. La RCEA est à 5 min AXE PARAY LE MONIAL 71600 / MONTCEAU LES MINES 71300 Vous avez un projet de construction, alors n ‘hésitez plus et venez Profiter d ‘une étude sur mesure gratuite avec votre constructeur du 71.
Saint-Vincent-Bragny
TERRAINVous cherchez à construire votre propre maison dans un environnement paisible ? Alors ne cherchez pas plus loin, ce terrain de 1618 m² à vendre est l’opportunité que vous attendiez ! Le terrain est non viabilisé, l’assainissement collectif est présent. La parcelle est proposée au prix de 22,30 euros TTC du m². Terrain vu pour vous hors frais de notaire et aménagements extérieurs.
Saint-Vincent-Bragny
TERRAIN ET MAISONNous vous proposons cette maison neuve, baptisée Design 90, une demeure qui allie modernité, fonctionnalité et respect de l’environnement. Avec une surface habitable de 90 m², cette maison est conçue pour maximiser chaque mètre carré disponible, offrant ainsi un cadre de vie à la fois confortable et esthétique. La Design 90 se distingue par son architecture contemporaine, caractérisée par des enduits colorés qui lui confèrent une allure à la fois élégante et accueillante. L’agencement intérieur a été pensé pour éviter toute perte d’espace, garantissant ainsi une optimisation parfaite de chaque pièce. Cette maison se compose de 4 pièces lumineuses, dont 3 chambres spacieuses, répondant parfaitement aux besoins d’une famille moderne. L’un des atouts majeurs de la Design 90 est son garage intégré, offrant non seulement un espace supplémentaire de 15 m² pour votre véhicule, mais aussi une solution de rangement pratique pour vos outils, vélos et autres équipements. Conforme à la norme RE2020, cette maison neuve est un modèle de basse consommation énergétique. Elle a été conçue dans le respect des dernières exigences en matière d’efficacité énergétique et d’impact environnemental, vous assurant ainsi des économies significatives sur vos factures d’énergie tout en contribuant à la protection de notre planète.Les options les plus plébiscitées par nos clients, telles que des solutions d’isolation avancées et des systèmes de chauffage performants, sont disponibles pour personnaliser votre maison selon vos préférences et besoins spécifiques.En choisissant la Design 90, vous optez pour une maison à l’excellent rapport qualité-prix, sans compromis sur le confort ou le style. C’est l’opportunité idéale de devenir propriétaire d’une maison neuve, moderne et éco-responsable, conçue pour s’adapter à l’évolution de votre famille.N’attendez plus pour réaliser votre rêve d’une maison parfaite, la Design 90 vous attend pour commencer un nouveau chapitre de votre vie dans un
Saint-Vincent-Bragny
TERRAINCharmant terrain à vendre, situé dans la ville paisible de Saint-Vincent-les-Bragny. Avec une surface de 1416 m², ce terrain offre de nombreuses possibilités pour un projet de construction de maison. Ce terrain bénéficie d’une vue dégagée et d’un environnement calme et sécurisé. Le terrain est non viabilisé, l’assainissement collectif est présent. Il est proposé au prix de 24 euros TTC du m². Terrain vu pour vous hors frais de notaire et aménagements extérieurs.
Saint-Vincent-Bragny
TERRAIN ET MAISONNous vous proposons cette maison neuve, baptisée Design L, une conception architecturale moderne et élégante qui optimise l’espace et la lumière naturelle. Avec une surface habitable de 90 m², cette maison de plain-pied se distingue par sa forme en « »L » », permettant une parfaite adaptation sur des terrains de petite largeur tout en offrant un espace de vie convivial et intime.La Design L se compose de 4 pièces principales, dont 3 chambres confortables, un cellier pratique et un garage intégré, répondant ainsi aux besoins des familles en quête d’un foyer fonctionnel et accueillant. La disposition en « »L » » de la maison crée un espace extérieur protégé, idéal pour des moments de détente en toute intimité.Cette maison est conçue dans le respect des normes RE2020, garantissant une performance énergétique de premier plan. En tant que maison basse consommation, elle vous permettra de réaliser d’importantes économies d’énergie tout en contribuant à la protection de l’environnement. La Design L est donc une réponse concrète aux attentes des acquéreurs soucieux de leur empreinte écologique et désireux de bénéficier des dernières innovations en matière de confort et d’économie d’énergie.Parmi les options les plus plébiscitées par nos clients, la Design L offre la possibilité d’ajouter des équipements et des finitions personnalisées pour que votre maison neuve réponde parfaitement à vos attentes et à votre style de vie.Choisir la Design L, c’est opter pour une maison à la fois moderne, économique et adaptée à la vie de famille. Son prix attractif et ses caractéristiques en font une des références de notre gamme, capable de satisfaire les plus exigeants en termes de qualité de vie et de respect de l’environnement.N’attendez plus pour faire de la Design L votre nouveau chez-vous, un lieu où convivialité, confort et durabilité se rencontrent pour créer un cadre de vie idéal.
L’actualité immobilière à Palinges
27/11/2023
02/11/2023
30/10/2023
20/10/2023
16/10/2023
16/10/2023