Images
Description
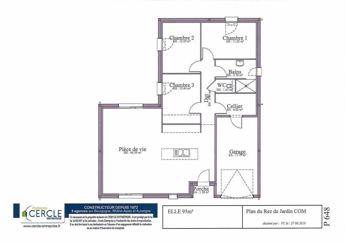
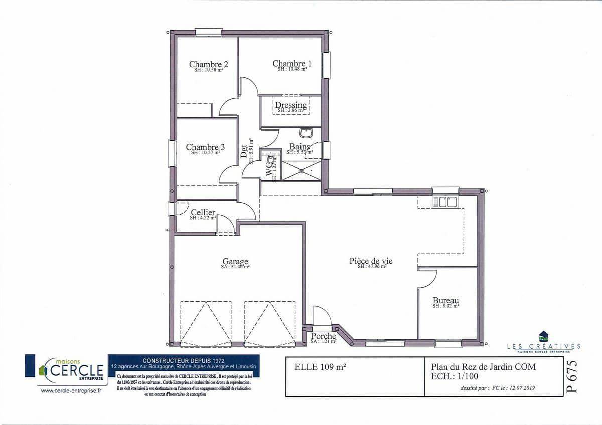
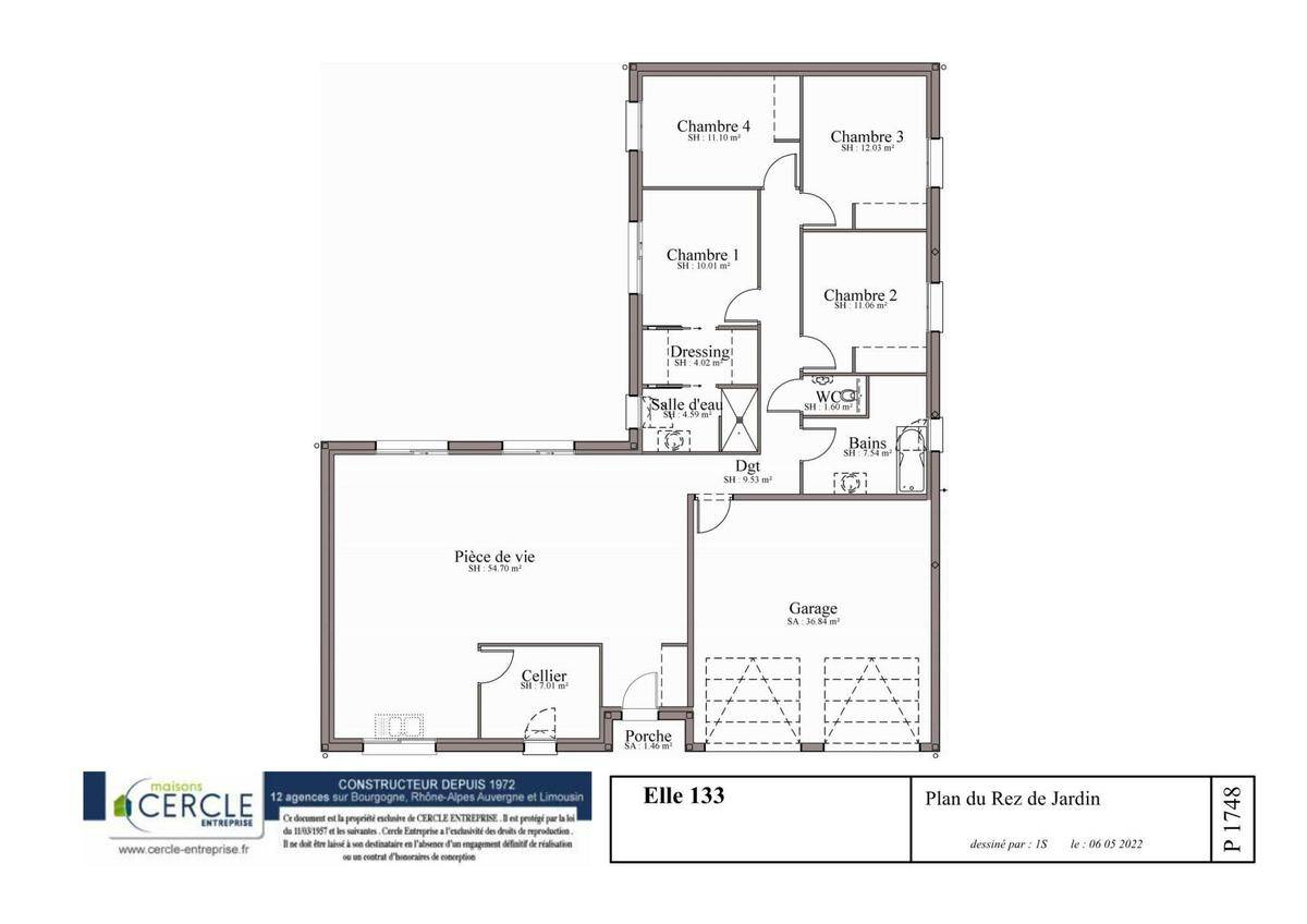
Nous vous proposons cette maison neuve, baptisée ""Elle"", un modèle qui allie élégance et fonctionnalité, conçu pour répondre aux attentes les plus exigeantes en matière d'habitat moderne. Avec une surface habitable de 122 m², ""Elle"" se distingue par son architecture en forme de L, offrant un design unique et une intégration harmonieuse dans son environnement.
Cette maison est dotée de 3 chambres spacieuses, permettant à chaque membre de la famille de bénéficier de son propre espace de tranquillité. Le plan comprend également 4 pièces bien agencées, promettant une vie familiale des plus agréables. Le grand volume de vie, tout ouvert, est conçu pour maximiser la lumière naturelle, grâce notamment à de grandes baies coulissantes qui invitent l'extérieur à l'intérieur.
Le garage intégré, pouvant accueillir une ou deux voitures selon vos besoins, assure une transition fluide entre l'espace de vie et votre véhicule, offrant commodité et sécurité. De plus, ""Elle"" se démarque par sa flexibilité, offrant plusieurs configurations possibles : que vous souhaitiez 3 chambres simples, une suite parentale pour plus d'intimité, ou encore une version incluant un bureau pour vos activités professionnelles ou créatives, tout est réalisable.
Les options les plus plébiscitées, telles que le choix entre un toit à 2 ou 4 pans, un double garage pour plus d'espace, ou encore des menuiseries en aluminium pour une touche de modernité et de durabilité, sont à votre disposition pour personnaliser votre maison selon vos désirs.
Au-delà de son esthétique et de sa fonctionnalité, ""Elle"" est une maison basse consommation, pleinement conforme à la norme RE2020. Ce modèle est une véritable prouesse en matière d'efficacité énergétique, garantissant un confort optimal tout en minimisant votre empreinte écologique.
""Elle"" est plus qu'une maison ; c'est un espace de vie pensé pour s'adapter à vos rêves et à votre quotidien, tout en respectant l'environnement. Une opportunité unique de cons
Logement susceptibles de vous intéresser
Nous vous proposons de découvrir aussi cette sélection de logements situés à moins de 10km de Paray-le-Monial et qui seraient susceptibles de vous intéresser.
Paray-le-Monial
TERRAINTerrain Commercial Privilégié Avenue Pierre Lathuilière-Paray Le Monial, emplacement n°1À la recherche d’un emplacement commercial stratégique à Paray-le-Monial ? Cette opportunité foncière exceptionnelle offre une visibilité incomparable le long de l’Avenue Pierre Lathuilière, à l’entrée du centre-ville, dans une zone à fort trafic urbain avec des entreprises commerciales et artisanales voisines.Caractéristiques du Terrain à bâtir :PlatSuperficie : 1333 m2Réseaux en bordureZone accès poids-lourdsCe terrain à bâtir est idéalement situé pour des activités commerciales ou artisanales, bénéficiant d’une zone UX offrant une grande flexibilité d’utilisation.Profitez de cette opportunité rare d’investir dans un emplacement numéro un à Paray-le-Monial. Contactez-moi dès aujourd’hui pour plus d’informations ou pour organiser une visite ! Les honoraires sont à la charge du vendeur.Les informations sur les risques auxquels ce bien est exposé sont disponibles sur le site Géorisques : www. georisques. gouv. fr.Réseau Immobilier CAPIFRANCE – Votre agent commercial (RSAC N(Numéro supprimé) – Greffe de MACON) Philippe GAY Entrepreneur Individuel à Responsabilité Limitée (Numéro supprimé) – Réf.925189
Saint-Vincent-Bragny
TERRAINVous cherchez à construire votre propre maison dans un environnement paisible ? Alors ne cherchez pas plus loin, ce terrain de 1618 m² à vendre est l’opportunité que vous attendiez ! Le terrain est non viabilisé, l’assainissement collectif est présent. La parcelle est proposée au prix de 22,30 euros TTC du m². Terrain vu pour vous hors frais de notaire et aménagements extérieurs.
Saint-Vincent-Bragny
TERRAIN ET MAISONNous vous proposons cette maison neuve, baptisée Design 90, une demeure qui allie modernité, fonctionnalité et respect de l’environnement. Avec une surface habitable de 90 m², cette maison est conçue pour maximiser chaque mètre carré disponible, offrant ainsi un cadre de vie à la fois confortable et esthétique. La Design 90 se distingue par son architecture contemporaine, caractérisée par des enduits colorés qui lui confèrent une allure à la fois élégante et accueillante. L’agencement intérieur a été pensé pour éviter toute perte d’espace, garantissant ainsi une optimisation parfaite de chaque pièce. Cette maison se compose de 4 pièces lumineuses, dont 3 chambres spacieuses, répondant parfaitement aux besoins d’une famille moderne. L’un des atouts majeurs de la Design 90 est son garage intégré, offrant non seulement un espace supplémentaire de 15 m² pour votre véhicule, mais aussi une solution de rangement pratique pour vos outils, vélos et autres équipements. Conforme à la norme RE2020, cette maison neuve est un modèle de basse consommation énergétique. Elle a été conçue dans le respect des dernières exigences en matière d’efficacité énergétique et d’impact environnemental, vous assurant ainsi des économies significatives sur vos factures d’énergie tout en contribuant à la protection de notre planète.Les options les plus plébiscitées par nos clients, telles que des solutions d’isolation avancées et des systèmes de chauffage performants, sont disponibles pour personnaliser votre maison selon vos préférences et besoins spécifiques.En choisissant la Design 90, vous optez pour une maison à l’excellent rapport qualité-prix, sans compromis sur le confort ou le style. C’est l’opportunité idéale de devenir propriétaire d’une maison neuve, moderne et éco-responsable, conçue pour s’adapter à l’évolution de votre famille.N’attendez plus pour réaliser votre rêve d’une maison parfaite, la Design 90 vous attend pour commencer un nouveau chapitre de votre vie dans un
Saint-Vincent-Bragny
TERRAINCharmant terrain à vendre, situé dans la ville paisible de Saint-Vincent-les-Bragny. Avec une surface de 1416 m², ce terrain offre de nombreuses possibilités pour un projet de construction de maison. Ce terrain bénéficie d’une vue dégagée et d’un environnement calme et sécurisé. Le terrain est non viabilisé, l’assainissement collectif est présent. Il est proposé au prix de 24 euros TTC du m². Terrain vu pour vous hors frais de notaire et aménagements extérieurs.
Saint-Vincent-Bragny
TERRAIN ET MAISONNous vous proposons cette maison neuve, baptisée Design L, une conception architecturale moderne et élégante qui optimise l’espace et la lumière naturelle. Avec une surface habitable de 90 m², cette maison de plain-pied se distingue par sa forme en « »L » », permettant une parfaite adaptation sur des terrains de petite largeur tout en offrant un espace de vie convivial et intime.La Design L se compose de 4 pièces principales, dont 3 chambres confortables, un cellier pratique et un garage intégré, répondant ainsi aux besoins des familles en quête d’un foyer fonctionnel et accueillant. La disposition en « »L » » de la maison crée un espace extérieur protégé, idéal pour des moments de détente en toute intimité.Cette maison est conçue dans le respect des normes RE2020, garantissant une performance énergétique de premier plan. En tant que maison basse consommation, elle vous permettra de réaliser d’importantes économies d’énergie tout en contribuant à la protection de l’environnement. La Design L est donc une réponse concrète aux attentes des acquéreurs soucieux de leur empreinte écologique et désireux de bénéficier des dernières innovations en matière de confort et d’économie d’énergie.Parmi les options les plus plébiscitées par nos clients, la Design L offre la possibilité d’ajouter des équipements et des finitions personnalisées pour que votre maison neuve réponde parfaitement à vos attentes et à votre style de vie.Choisir la Design L, c’est opter pour une maison à la fois moderne, économique et adaptée à la vie de famille. Son prix attractif et ses caractéristiques en font une des références de notre gamme, capable de satisfaire les plus exigeants en termes de qualité de vie et de respect de l’environnement.N’attendez plus pour faire de la Design L votre nouveau chez-vous, un lieu où convivialité, confort et durabilité se rencontrent pour créer un cadre de vie idéal.
Paray-le-Monial
TERRAINVenez découvrir cette belle parcelle de terrain d’une surface de 1188?m², située dans la charmante ville de Paray-le-Monial en Saône-et-Loire. Idéal pour un projet de construction de maison, ce terrain offre une multitude de possibilités pour réaliser votre projet immobilier. Il bénéficie d’une vue dégagée et d’un environnement calme et sécurisé. Le terrain est non viabilisé, l’assainissement collectif est présent. Terrain vu pour vous hors frais de notaire et aménagements extérieurs.
Paray-le-Monial
TERRAIN ET MAISONNous vous proposons cette maison neuve, baptisée Design L, une conception architecturale moderne et élégante qui optimise l’espace et la lumière naturelle. Avec une surface habitable de 90 m², cette maison de plain-pied se distingue par sa forme en « »L » », permettant une parfaite adaptation sur des terrains de petite largeur tout en offrant un espace de vie convivial et intime.La Design L se compose de 4 pièces principales, dont 3 chambres confortables, un cellier pratique et un garage intégré, répondant ainsi aux besoins des familles en quête d’un foyer fonctionnel et accueillant. La disposition en « »L » » de la maison crée un espace extérieur protégé, idéal pour des moments de détente en toute intimité.Cette maison est conçue dans le respect des normes RE2020, garantissant une performance énergétique de premier plan. En tant que maison basse consommation, elle vous permettra de réaliser d’importantes économies d’énergie tout en contribuant à la protection de l’environnement. La Design L est donc une réponse concrète aux attentes des acquéreurs soucieux de leur empreinte écologique et désireux de bénéficier des dernières innovations en matière de confort et d’économie d’énergie.Parmi les options les plus plébiscitées par nos clients, la Design L offre la possibilité d’ajouter des équipements et des finitions personnalisées pour que votre maison neuve réponde parfaitement à vos attentes et à votre style de vie.Choisir la Design L, c’est opter pour une maison à la fois moderne, économique et adaptée à la vie de famille. Son prix attractif et ses caractéristiques en font une des références de notre gamme, capable de satisfaire les plus exigeants en termes de qualité de vie et de respect de l’environnement.N’attendez plus pour faire de la Design L votre nouveau chez-vous, un lieu où convivialité, confort et durabilité se rencontrent pour créer un cadre de vie idéal.
Paray-le-Monial
TERRAINVenez découvrir cette belle parcelle de terrain d’une surface de 6 146?m², située dans la charmante ville de Paray-le-Monial en Saône-et-Loire. Idéal pour un projet de construction de maison, ce terrain offre une multitude de possibilités pour réaliser votre projet immobilier de rêve. Il bénéficie d’une vue dégagée et d’un environnement calme et sécurisé. Le terrain est non viabilisé, l’assainissement collectif est présent. Terrain vu pour vous hors frais de notaire et aménagements extérieurs.
Paray-le-Monial
TERRAIN ET MAISONNous vous proposons cette maison neuve, baptisée Design 90, une demeure qui allie modernité, fonctionnalité et respect de l’environnement. Avec une surface habitable de 90 m², cette maison est conçue pour maximiser chaque mètre carré disponible, offrant ainsi un cadre de vie à la fois confortable et esthétique. La Design 90 se distingue par son architecture contemporaine, caractérisée par des enduits colorés qui lui confèrent une allure à la fois élégante et accueillante. L’agencement intérieur a été pensé pour éviter toute perte d’espace, garantissant ainsi une optimisation parfaite de chaque pièce. Cette maison se compose de 4 pièces lumineuses, dont 3 chambres spacieuses, répondant parfaitement aux besoins d’une famille moderne. L’un des atouts majeurs de la Design 90 est son garage intégré, offrant non seulement un espace supplémentaire de 15 m² pour votre véhicule, mais aussi une solution de rangement pratique pour vos outils, vélos et autres équipements. Conforme à la norme RE2020, cette maison neuve est un modèle de basse consommation énergétique. Elle a été conçue dans le respect des dernières exigences en matière d’efficacité énergétique et d’impact environnemental, vous assurant ainsi des économies significatives sur vos factures d’énergie tout en contribuant à la protection de notre planète.Les options les plus plébiscitées par nos clients, telles que des solutions d’isolation avancées et des systèmes de chauffage performants, sont disponibles pour personnaliser votre maison selon vos préférences et besoins spécifiques.En choisissant la Design 90, vous optez pour une maison à l’excellent rapport qualité-prix, sans compromis sur le confort ou le style. C’est l’opportunité idéale de devenir propriétaire d’une maison neuve, moderne et éco-responsable, conçue pour s’adapter à l’évolution de votre famille.N’attendez plus pour réaliser votre rêve d’une maison parfaite, la Design 90 vous attend pour commencer un nouveau chapitre de votre vie dans un
L’actualité immobilière à Paray-le-Monial
27/11/2023
02/11/2023
30/10/2023
20/10/2023
16/10/2023
16/10/2023