Images
Description
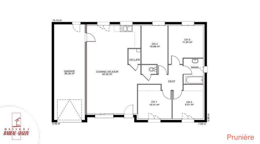
Sur ce terrain, nous vous proposons cette maison neuve, la Prunière, l’un des modèles les plus vendus par Babeau-Seguin, constructeur offrant le meilleur rapport qualité/prix du marché. Figurant dans le top 5 des maisons individuelles Babeau-Seguin, cette maison plain-pied Prunière séduit par son renfoncement qui casse la monotonie de la façade avant et offre un abri de seuil.
Avec une surface de 73 m², cette maison traditionnelle comprend 3 pièces, dont 2 chambres, et un garage intégré. Vous avez le choix entre une toiture à 2 pans ou à 4 pans, selon vos préférences esthétiques.
La Prunière est également une maison basse consommation, conforme à la réglementation environnementale RE2020, ce qui vous garantit des économies d'énergie et un confort optimal tout au long de l'année.
Si on devait retenir la Prunière, ce serait toutefois son prix ! La Prunière est en effet la maison à petit prix par excellence, tout en offrant des prestations de qualité.
Ne manquez pas cette opportunité de construire une maison qui allie confort, économie et esthétisme. Contactez-nous pour plus d'informations et pour découvrir toutes les options disponibles pour personnaliser votre future maison.
Logement susceptibles de vous intéresser
Nous vous proposons de découvrir aussi cette sélection de logements situés à moins de 10km de Saint-Émiland et qui seraient susceptibles de vous intéresser.
Saint-Émiland
TERRAINNous vous proposons une opportunité rare d’acquérir un terrain d’une surface de 996 m², situé dans le charmant lotissement de Saint-Émiland dans la Saône-et-Loire. Ce terrain viabilisé est idéal pour un projet de construction de maison, offrant un cadre champêtre au calme, parfait pour ceux qui cherchent à s’installer dans un environnement paisible. Profitez de son dernier lot disponible pour réaliser la maison de vos rêves au cœur de la Bourgogne-Franche-Comté. Saint-Émiland est une ville qui attire par son authenticité et son désir de préserver la tranquillité de ses habitants. Les résidents peuvent apprécier la beauté des paysages environnants tout en ayant accès à diverses commodités locales, notamment des commerces de proximité et des infrastructures qui favorisent un cadre de vie agréable. De plus, la région offre un accès facile à de nombreuses attractions touristiques, promettant un équilibre parfait entre apaisement et dynamisme. Ce terrain en constitue l’emplacement idéal pour quiconque souhaite allier confort et qualité de vie. Ne manquez pas cette chance unique de devenir propriétaire d’un terrain au potentiel immense. N’attendez plus pour envisager votre futur projet de vie dans cette magnifique région. À noter qu’en tant que constructeur, nous ne sommes pas mandatés pour réaliser la vente de ce terrain.
Saint-Émiland
TERRAIN ET MAISONSur ce terrain, nous vous proposons cette maison neuve, la Prunière, l’un des modèles les plus vendus par Babeau-Seguin, constructeur offrant le meilleur rapport qualité/prix du marché. Figurant dans le top 5 des maisons individuelles Babeau-Seguin, cette maison plain-pied Prunière séduit par son renfoncement qui casse la monotonie de la façade avant et offre un abri de seuil.Avec une surface de 73 m², cette maison traditionnelle comprend 3 pièces, dont 2 chambres, et un garage intégré. Vous avez le choix entre une toiture à 2 pans ou à 4 pans, selon vos préférences esthétiques.La Prunière est également une maison basse consommation, conforme à la réglementation environnementale RE2020, ce qui vous garantit des économies d’énergie et un confort optimal tout au long de l’année.Si on devait retenir la Prunière, ce serait toutefois son prix ! La Prunière est en effet la maison à petit prix par excellence, tout en offrant des prestations de qualité.Ne manquez pas cette opportunité de construire une maison qui allie confort, économie et esthétisme. Contactez-nous pour plus d’informations et pour découvrir toutes les options disponibles pour personnaliser votre future maison.
Saint-Sernin-du-Bois
TERRAIN ET MAISONSur ce terrain, nous vous proposons cette maison neuve : l’Intimity U de la gamme Evasihome, conçue par Babeau-Seguin, constructeur offrant le meilleur rapport qualité/prix du marché.Avec une surface de 95 m², cette maison en U vous séduira par sa conception ingénieuse et ses équipements modernes. Elle dispose de 3 chambres, dont une superbe suite parentale avec dressing et salle d’eau privative, offrant un espace de tranquillité pour les parents. Le grand séjour-cuisine central, baigné de lumière grâce à une verrière, est idéal pour les moments en famille. Les caractéristiques principales de cette maison incluent également des prises USB murales pour plus de praticité et un garage intégré pour votre confort. Les options les plus demandées par nos clients, telles que l’enduit bi-ton et la domotique, sont également disponibles pour personnaliser votre future demeure.Cette maison neuve est basse consommation et conforme à la RE2020, garantissant des économies d’énergie et un respect de l’environnement. Offrez-vous la tranquillité et le confort que vous méritez avec l’Intimity U. Rencontrons-nous en agence pour donner forme à votre rêve dès aujourd’hui !
Saint-Sernin-du-Bois
TERRAIN ET MAISONSur ce terrain, nous vous proposons cette maison neuve : le modèle Focus Cosy city. Conçue par Babeau-Seguin, constructeur reconnu pour offrir le meilleur rapport qualité/prix du marché, cette maison de plain-pied traditionnelle offre une surface habitable de 79 m², parfaitement optimisée pour répondre aux besoins des familles.Idéale pour les petits budgets, la Focus Cosy city est une maison neuve écologique, conforme aux normes strictes de la RE2020. Elle garantit une basse consommation énergétique, ce qui se traduit par des coûts d’usage et d’entretien très faibles, notamment pour le chauffage.Cette maison se compose de 4 pièces, dont 3 chambres lumineuses, parfaites pour accueillir une famille. Le grand séjour de 33 m² est baigné de lumière naturelle grâce à une baie vitrée coulissante, créant un espace de vie convivial et chaleureux. La cuisine ouverte sur le séjour permet de partager des moments agréables en famille ou entre amis. Un cellier, situé dans le prolongement de la cuisine, offre un espace de rangement pratique pour les provisions.La maison dispose également d’une salle de bain avec des WC séparés, offrant un espace de vie fonctionnel et bien organisé pour toute la famille. Les options les plus demandées par les clients, telles que la domotique et l’enduit bi-ton, peuvent être intégrées pour personnaliser votre maison selon vos préférences.En résumé, le modèle Focus Cosy city est une maison neuve économique et écologique, qui combine une conception pratique avec une haute efficacité énergétique. Elle offre ainsi un cadre de vie confortable et abordable pour les familles à la recherche d’un logement durable et respectueux de l’environnement. Économie à la construction, économie à la consommation !
Saint-Sernin-du-Bois
TERRAINÀ vendre, charmant terrain de 758 m², idéalement situé dans le séduisant lotissement de Saint-Sernin-du-Bois, dans le département de Saône et Loire. Ce terrain viabilisé, entouré d’arbres, offre un cadre champêtre au calme, parfait pour réaliser le projet de construction de votre maison de rêve. Profitez d’une opportunité unique d’investir dans un espace qui allie tranquillité et convivialité, idéal pour accueillir votre future demeure. Saint-Sernin-du-Bois est une ville enchanteuse qui se distingue par ses attraits naturels et ses commodités de proximité. Vous y découvrirez un cadre de vie agréable avec diverses attractions locales et une communauté dynamique. Les commerces, écoles et services de santé se trouvent à quelques minutes, assurant ainsi une commodité inégalée. En outre, la région est propice aux activités en plein air, offrant un véritable havre de paix pour les amateurs de nature et de détente. Ne manquez pas cette occasion d’acquérir un terrain à fort potentiel dans un environnement agréable. Pensez à ce que ce cadre peut vous offrir en termes de qualité de vie et de confort. Contactez-nous pour explorer les possibilités qu’offre ce terrain exceptionnel. À noter qu’en tant que constructeur, nous ne sommes pas mandatés pour réaliser la vente de ce terrain.
Saint-Sernin-du-Bois
TERRAIN ET MAISONSur ce terrain, nous vous proposons cette maison neuve, la Ménilière, un modèle plain-pied moderne qui saura répondre à toutes vos attentes. Avec une surface de 73 m², cette maison dispose de 3 pièces, dont 2 chambres, et intègre de base un garage ainsi qu’une longue galerie sur la face avant.Véritable « »tout-en-un » » de la maison individuelle, la Ménilière est idéale pour votre projet de construction sur-mesure. Elle est disponible avec un toit à 2 pans ou 4 pans, selon vos préférences esthétiques. Le garage intégré et la galerie avant ajoutent une touche de praticité et de confort à votre quotidien.Parmi les options les plus demandées par nos clients, vous pouvez opter pour des menuiseries en aluminium et un sous-sol, afin de personnaliser encore davantage votre future maison.Cette maison neuve est basse consommation et conforme à la RE2020, garantissant ainsi des performances énergétiques optimales et un respect des normes environnementales actuelles.Le constructeur Babeau-Seguin, reconnu pour offrir le meilleur rapport qualité/prix du marché, vous accompagne dans la réalisation de votre projet de vie. Avec un prix serré et une personnalisation facile, il n’est pas étonnant que la Ménilière soit dans le top 5 des ventes de Babeau-Seguin.Ne manquez pas cette opportunité unique de devenir propriétaire d’une maison moderne, fonctionnelle et économe en énergie. Contactez-nous dès maintenant pour plus d’informations et pour visiter ce modèle sur notre terrain.
Saint-Sernin-du-Bois
TERRAINDans un cadre enchanteur et paisible, découvrez ce terrain exceptionnel d’une surface de 767 m² situé dans le charmant lotissement de Saint-Sernin-du-Bois, en Saône-et-Loire. Viabilisé et prêt à accueillir votre projet de construction de maison, ce terrain se distingue par son environnement arboré, offrant une atmosphère tranquille idéale pour bâtir un foyer. Parfaitement adapté pour une belle réalisation architecturale, vous pourrez y donner vie à vos idées les plus audacieuses tout en bénéficiant d’un cadre champêtre apaisant. Saint-Sernin-du-Bois est une commune prisée, où se mêlent tranquillité et convivialité. Profitez de la proximité des commodités, telles que les commerces, écoles et services de santé, qui rendent le quotidien pratique et agréable. Le secteur est riche en attractions locales, vous permettant d’explorer la beauté des paysages environnants et de partager des moments chaleureux avec vos voisins. Cet emplacement unique, au calme et au cœur d’une nature préservée, représente une opportunité rare sur le marché immobilier. Ne laissez pas passer cette chance de réaliser le foyer de vos rêves ! Ce terrain prometteur vous ouvre la voie à un avenir radieux. N’attendez plus pour saisir cette occasion en or et concrétiser votre projet dès aujourd’hui. À noter qu’en tant que constructeur, nous ne sommes pas mandatés pour réaliser la vente de ce terrain.
Saint-Sernin-du-Bois
TERRAIN ET MAISONSur ce terrain, nous vous proposons cette maison neuve : la Focus Tiny, un modèle idéal pour les familles à la recherche d’un logement confortable et économique. Conçue par Babeau-Seguin, constructeur reconnu pour offrir le meilleur rapport qualité/prix du marché, cette maison de 73 m² saura répondre à toutes vos attentes.La Focus Tiny est une habitation traditionnelle de plain-pied avec un garage intégré de 15 m². Elle se distingue par son design sobre et moderne, ainsi que par ses excellentes performances en matière d’économie d’énergie, conforme à la norme RE2020. Cette maison basse consommation est parfaite pour ceux qui souhaitent réduire leur empreinte écologique tout en bénéficiant d’un confort optimal.À l’intérieur, vous découvrirez un grand séjour-cuisine traversant qui offre une agréable sensation d’espace. Les trois chambres à coucher de dimensions raisonnables accueilleront confortablement votre famille. Les espaces sont si bien répartis que vous ne vous sentirez jamais à l’étroit.Les caractéristiques principales de la Focus Tiny incluent un enduit bi-ton qui ajoute une touche d’élégance à l’extérieur de la maison. Parmi les options les plus demandées par nos clients, vous trouverez les menuiseries en aluminium et la pompe à chaleur, qui peuvent être ajoutées pour encore plus de confort et d’efficacité énergétique.Pour un prix défiant toute concurrence, vous bénéficiez des meilleures technologies et d’un service irréprochable. Notre équipe d’experts réalisera votre maison avec un haut niveau d’exigence, vous assurant des finitions soignées et une qualité de construction exceptionnelle.Ne manquez pas cette opportunité de construire la maison de vos rêves avec Babeau-Seguin. La Focus Tiny est prête à être construite sur ce terrain, et ce, au meilleur prix. Visitez-la en 3D sur notre site et laissez-vous séduire par ses nombreux atouts. Avec la Focus Tiny, petit prix rime avec grande prestation !
Saint-Sernin-du-Bois
TERRAINDécouvrez ce terrain à bâtir d’une superficie généreuse, situé au cœur du charmant lotissement de Saint-Sernin-du-Bois, dans le département de la Saône et Loire. Ce terrain viabilisé se distingue par son cadre arboré et champêtre, offrant un environnement paisible, propice à l’épanouissement d’un projet de construction de maison. Profitez d’une opportunité rare d’établir votre résidence dans un lieu où le calme et la nature s’harmonisent pour créer une atmosphère de vie agréable. Saint-Sernin-du-Bois est une commune dynamique qui mêle la tranquillité de la campagne aux commodités d’une vie de village. Vous serez à proximité des services essentiels tels que les commerces, les écoles et les infrastructures de loisirs. De plus, la ville est idéalement située pour explorer les attractions locales et profiter de diverses activités en plein air. L’accessibilité des transports et l’accueil chaleureux des habitants font de ce lieu un cadre de vie des plus attrayants, qui saura séduire familles et amoureux de la nature. Ce terrain présente un potentiel exceptionnel pour concrétiser votre rêve immobilier. Ne laissez pas passer cette opportunité unique d’investir dans un bien rare et précieux. À noter qu’en tant que constructeur, nous ne sommes pas mandatés pour réaliser la vente de ce terrain.
L’actualité immobilière à Saint-Émiland
27/11/2023
02/11/2023
30/10/2023
20/10/2023
16/10/2023
16/10/2023