Images
Description
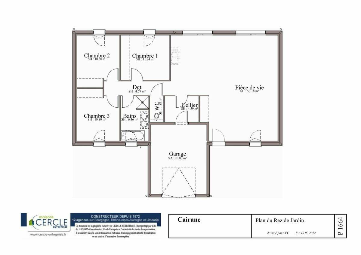
Nous vous proposons cette maison neuve, baptisée Cairanne, un modèle d'exception qui allie esthétique, fonctionnalité et performance énergétique. Avec une surface habitable de 102 m², cette maison à construire se distingue par son plan en T, offrant une organisation de l'espace à la fois originale et optimisée pour le confort de toute la famille.
La Cairanne se compose de 4 pièces lumineuses, dont 4 chambres spacieuses, promettant ainsi un espace de vie agréable et adapté à tous les modes de vie. La pièce de vie principale, d'une superficie impressionnante de plus de 50 m², intègre une cuisine ouverte, créant un espace convivial où il fait bon se retrouver. Cette maison est également équipée d'un garage intégré, pratique et sécurisant pour votre véhicule ou pour un espace de rangement supplémentaire.
Conçue pour répondre aux attentes les plus exigeantes, la Cairanne intègre les options les plus prisées telles que la domotique, pour une maison connectée et intelligente, des menuiseries en aluminium, alliant durabilité et esthétique, ainsi qu'une terrasse bétonnée, idéale pour profiter des beaux jours.
Cette maison neuve est un véritable engagement vers l'avenir, puisqu'elle est basse consommation et conforme à la norme RE2020. Cette réglementation environnementale garantit une excellente performance thermique, réduisant ainsi vos dépenses énergétiques tout en respectant l'environnement. La conception de la Cairanne a été pensée pour maximiser l'efficacité énergétique, grâce à son plan en T qui favorise une meilleure distribution de la chaleur et une luminosité optimale dans toutes les pièces.
La forme de la maison Cairanne permet non seulement de créer des espaces de vie chaleureux et intimes à l'intérieur, mais aussi d'offrir un cadre de vie extérieur des plus agréables. Son design actuel et ses fonctionnalités modernes en font un modèle très recherché, parfaitement adapté aux familles désireuses de combiner confort, modernité et respect de l'environnement.
Ne
Logement susceptibles de vous intéresser
Nous vous proposons de découvrir aussi cette sélection de logements situés à moins de 10km de Saint-Vallier et qui seraient susceptibles de vous intéresser.
Ciry-le-Noble
TERRAINFlorence Hossa, Optimhome, vous propose, à Ciry le Noble, ce terrain à bâtir de 1600 m².En retrait de la route avec vue sur la campagne, vous y serez au calme.Le terrain n’est pas raccordé mais tout arrive en bordure de propriété. Les honoraires sont à la charge du vendeur.Les informations sur les risques auxquels ce bien est exposé sont disponibles sur le site Géorisques : www. georisques. gouv. fr.Contactez Florence HOSSA Entrepreneur Individuel, Agent commercial OptimHome (RSAC N(Numéro supprimé) Greffe de MACON) (Numéro supprimé) (réf. 594338 )
Saint-Vallier
TERRAIN ET MAISONNous vous proposons cette maison neuve, baptisée « »Chardonnière » », un modèle de plain-pied qui allie élégance et fonctionnalité, conçu pour répondre aux attentes des familles modernes. Avec une surface habitable de 106 m², cette demeure se distingue par son plan en T, offrant une organisation de l’espace optimale et une intégration harmonieuse dans son environnement.La « »Chardonnière » » comprend 4 chambres spacieuses, permettant à chaque membre de la famille de bénéficier de son propre espace de tranquillité. Les pièces sont réparties de manière à favoriser l’intimité tout en conservant une belle convivialité dans les espaces de vie communs. Le salon et la salle à manger, d’une superficie généreuse de près de 50 m², forment un espace ouvert lumineux, idéal pour les moments de partage et de détente.Cette maison est également équipée de deux salles de bains, dont une attenante à la suite parentale, offrant confort et praticité au quotidien. Le garage intégré, accessible depuis l’une des entrées de la maison, est un atout majeur pour les terrains à accès restreint, tout en préservant l’intimité des pièces de vie.Construite selon la norme RE2020, la « »Chardonnière » » est une maison basse consommation qui illustre notre engagement envers l’environnement et le bien-être de ses occupants. Grâce à une isolation performante et une conception orientée vers le confort d’été, elle garantit une consommation énergétique minimale et un confort maximal, quelle que soit la saison.Les options les plus plébiscitées, telles que les menuiseries en aluminium et la domotique, sont disponibles pour personnaliser votre maison selon vos envies et besoins. Ces technologies modernes ne sont pas seulement un gage de qualité et de durabilité, mais elles offrent également une expérience de vie connectée et simplifiée.En choisissant « »Chardonnière » », vous optez pour une maison qui allie esthétique, confort et respect de l’environnement. Une demeure où chaque détail a été pensé pour répondr
Saint-Vallier
TERRAINSaisissez l’opportunité d’acquérir un terrain sur la commune de Saint-Vallier. Avec ses 830 m² de superficie, il offre la possibilité de réalisé un projet de construction proche du centre-ville et des commerces. Elle est viabilisée, l’assainissement collectif est réalisé. La parcelle est proposée au prix de 47,5 euros TTC du m². Terrain vu pour vous hors frais de notaire et aménagements extérieurs.
Saint-Vallier
TERRAINSitué dans la ville de Saint-Vallier, ce terrain de 859 m² se trouve dans un nouveau quartier, à proximité des commerces et des services de la ville. La parcelle est viabilisée, l’assainissement collectif est réalisé. La parcelle est proposée au prix de 47,50 euros TTC du m². Terrain vu pour vous hors frais de notaire et aménagements extérieurs.
Blanzy
TERRAIN ET MAISONNous vous proposons cette maison neuve, baptisée Design L, une conception architecturale moderne et élégante qui optimise l’espace et la lumière naturelle. Avec une surface habitable de 90 m², cette maison de plain-pied se distingue par sa forme en « »L » », permettant une parfaite adaptation sur des terrains de petite largeur tout en offrant un espace de vie convivial et intime.La Design L se compose de 4 pièces principales, dont 3 chambres confortables, un cellier pratique et un garage intégré, répondant ainsi aux besoins des familles en quête d’un foyer fonctionnel et accueillant. La disposition en « »L » » de la maison crée un espace extérieur protégé, idéal pour des moments de détente en toute intimité.Cette maison est conçue dans le respect des normes RE2020, garantissant une performance énergétique de premier plan. En tant que maison basse consommation, elle vous permettra de réaliser d’importantes économies d’énergie tout en contribuant à la protection de l’environnement. La Design L est donc une réponse concrète aux attentes des acquéreurs soucieux de leur empreinte écologique et désireux de bénéficier des dernières innovations en matière de confort et d’économie d’énergie.Parmi les options les plus plébiscitées par nos clients, la Design L offre la possibilité d’ajouter des équipements et des finitions personnalisées pour que votre maison neuve réponde parfaitement à vos attentes et à votre style de vie.Choisir la Design L, c’est opter pour une maison à la fois moderne, économique et adaptée à la vie de famille. Son prix attractif et ses caractéristiques en font une des références de notre gamme, capable de satisfaire les plus exigeants en termes de qualité de vie et de respect de l’environnement.N’attendez plus pour faire de la Design L votre nouveau chez-vous, un lieu où convivialité, confort et durabilité se rencontrent pour créer un cadre de vie idéal.
Sanvignes-les-Mines
TERRAIN ET MAISONNous vous proposons cette maison neuve, baptisée Design 90, une demeure qui allie modernité, fonctionnalité et respect de l’environnement. Avec une surface habitable de 90 m², cette maison est conçue pour maximiser chaque mètre carré disponible, offrant ainsi un cadre de vie à la fois confortable et esthétique. La Design 90 se distingue par son architecture contemporaine, caractérisée par des enduits colorés qui lui confèrent une allure à la fois élégante et accueillante. L’agencement intérieur a été pensé pour éviter toute perte d’espace, garantissant ainsi une optimisation parfaite de chaque pièce. Cette maison se compose de 4 pièces lumineuses, dont 3 chambres spacieuses, répondant parfaitement aux besoins d’une famille moderne. L’un des atouts majeurs de la Design 90 est son garage intégré, offrant non seulement un espace supplémentaire de 15 m² pour votre véhicule, mais aussi une solution de rangement pratique pour vos outils, vélos et autres équipements. Conforme à la norme RE2020, cette maison neuve est un modèle de basse consommation énergétique. Elle a été conçue dans le respect des dernières exigences en matière d’efficacité énergétique et d’impact environnemental, vous assurant ainsi des économies significatives sur vos factures d’énergie tout en contribuant à la protection de notre planète.Les options les plus plébiscitées par nos clients, telles que des solutions d’isolation avancées et des systèmes de chauffage performants, sont disponibles pour personnaliser votre maison selon vos préférences et besoins spécifiques.En choisissant la Design 90, vous optez pour une maison à l’excellent rapport qualité-prix, sans compromis sur le confort ou le style. C’est l’opportunité idéale de devenir propriétaire d’une maison neuve, moderne et éco-responsable, conçue pour s’adapter à l’évolution de votre famille.N’attendez plus pour réaliser votre rêve d’une maison parfaite, la Design 90 vous attend pour commencer un nouveau chapitre de votre vie dans un
Sanvignes-les-Mines
TERRAINVenez découvrir cette belle parcelle de terrain d’une surface de 1240 m², située dans la charmante ville de Sanvignes-les-Mines en Saône-et-Loire. Idéal pour un projet de construction de maison, ce terrain offre une multitude de possibilités pour réaliser votre projet immobilier de rêve. Il bénéficie d’une vue dégagée et d’un environnement calme et sécurisé. Le terrain est non viabilisé, l’assainissement collectif est présent. Terrain vu pour vous hors frais de notaire et aménagements extérieurs.
Saint-Romain-sous-Gourdon
TERRAIN ET MAISONNous vous proposons cette maison neuve, baptisée Design L, une conception architecturale moderne et élégante qui optimise l’espace et la lumière naturelle. Avec une surface habitable de 90 m², cette maison de plain-pied se distingue par sa forme en « »L » », permettant une parfaite adaptation sur des terrains de petite largeur tout en offrant un espace de vie convivial et intime.La Design L se compose de 4 pièces principales, dont 3 chambres confortables, un cellier pratique et un garage intégré, répondant ainsi aux besoins des familles en quête d’un foyer fonctionnel et accueillant. La disposition en « »L » » de la maison crée un espace extérieur protégé, idéal pour des moments de détente en toute intimité.Cette maison est conçue dans le respect des normes RE2020, garantissant une performance énergétique de premier plan. En tant que maison basse consommation, elle vous permettra de réaliser d’importantes économies d’énergie tout en contribuant à la protection de l’environnement. La Design L est donc une réponse concrète aux attentes des acquéreurs soucieux de leur empreinte écologique et désireux de bénéficier des dernières innovations en matière de confort et d’économie d’énergie.Parmi les options les plus plébiscitées par nos clients, la Design L offre la possibilité d’ajouter des équipements et des finitions personnalisées pour que votre maison neuve réponde parfaitement à vos attentes et à votre style de vie.Choisir la Design L, c’est opter pour une maison à la fois moderne, économique et adaptée à la vie de famille. Son prix attractif et ses caractéristiques en font une des références de notre gamme, capable de satisfaire les plus exigeants en termes de qualité de vie et de respect de l’environnement.N’attendez plus pour faire de la Design L votre nouveau chez-vous, un lieu où convivialité, confort et durabilité se rencontrent pour créer un cadre de vie idéal.
Saint-Romain-sous-Gourdon
TERRAINÀ la recherche d’un terrain idéal pour construire votre maison de rêve ? Ne cherchez plus ! Ce terrain de 949?m² situé dans la charmante commune de Saint-Romain-sous-Gourdon est exactement ce que vous recherchez. Avec ses caractéristiques uniques et ses commodités environnantes, il offre un potentiel incroyable pour votre futur projet de construction. Situé dans le département de Saône-et-Loire, ce terrain bénéficie d’une localisation précise dans la commune de Saint-Romain-sous-Gourdon, à seulement quelques minutes en voiture du centre-ville. Vous pourrez profiter d’un cadre paisible et verdoyant tout en étant à proximité des principales commodités comme les écoles et les commerces. La région offre un cadre de vie idéal avec de nombreuses attractions à proximité. Les amoureux de la nature pourront profiter de superbes vues dégagées et apprécieront les magnifiques paysages environnants. De plus, le terrain bénéficie d’une vue imprenable, sans aucun vis-à-vis, offrant ainsi une tranquillité absolue. Avec une pente légère, vous pourrez profiter d’un terrain facile à aménager selon vos envies. Ne manquez pas cette opportunité d’acquérir un terrain d’une grande qualité de vie et à un prix imbattable ! En résumé, ce terrain semi-viabilisé à vendre à Saint-Romain-sous-Gourdon est l’occasion parfaite pour réaliser votre projet de construction. Avec ses caractéristiques uniques et son environnement paisible, il offre un potentiel incroyable pour construire votre futur nid douillet. N’attendez plus, saisissez cette opportunité dès maintenant ! Branchement eau et électricité faite, reste à prévoir branchement Tout-à-l’égout.
L’actualité immobilière à Saint-Vallier
27/11/2023
02/11/2023
30/10/2023
20/10/2023
16/10/2023
16/10/2023