Images
Description
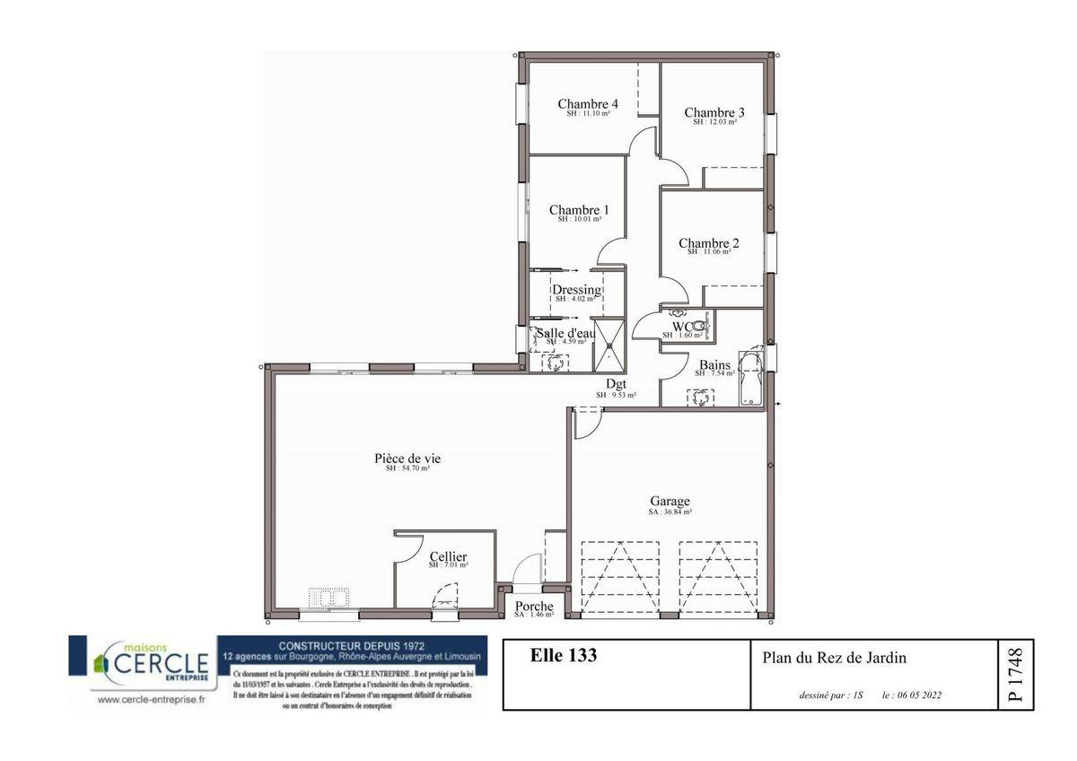
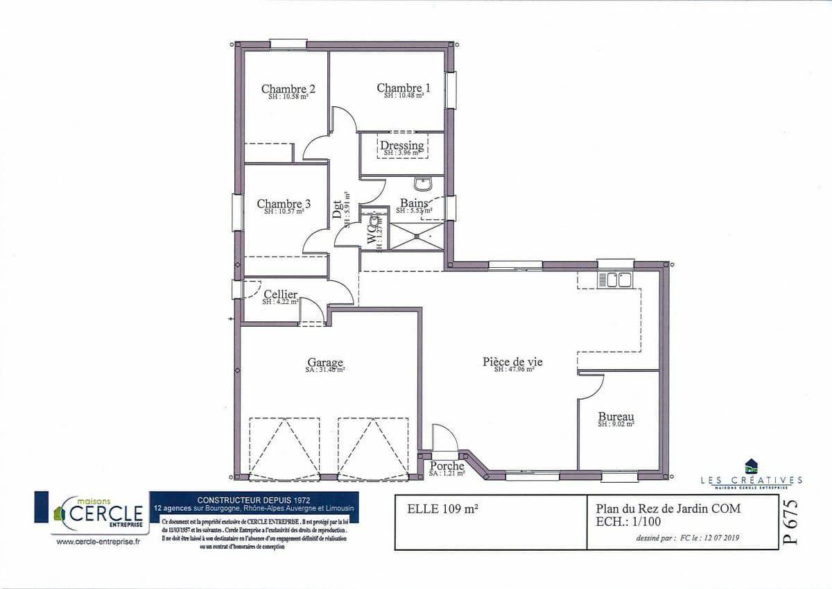
Nous vous proposons cette maison neuve, baptisée ""Elle"", un modèle qui allie charme et fonctionnalité, conçu pour répondre aux attentes des plus exigeants. Avec une surface habitable de 109 m², ""Elle"" se distingue par son plan en L, offrant une organisation de l'espace à la fois originale et pratique, qui maximise la lumière naturelle et facilite la séparation des espaces de vie.
Cette maison comprend 3 chambres spacieuses, permettant à chaque membre de la famille de bénéficier de son propre espace de tranquillité. Le salon, la salle à manger et la cuisine partagent un grand espace ouvert, agrémenté de baies coulissantes qui invitent la lumière à inonder la pièce, tout en offrant un accès direct à l'extérieur. Ce modèle propose également un garage intégré, conçu pour accueillir une ou deux voitures, selon vos besoins, et qui communique directement avec l'habitation pour plus de commodité.
Les options les plus plébiscitées, telles que le choix entre un toit à 2 ou 4 pans, un double garage, ou encore des menuiseries en aluminium, sont disponibles pour personnaliser ""Elle"" selon vos désirs. Chaque détail peut être adapté pour refléter votre style de vie et répondre à vos exigences.
""Elle"" est une maison basse consommation, conçue dans le respect des normes RE2020, garantissant ainsi une efficacité énergétique optimale et un confort de vie inégalé tout au long de l'année. Ce modèle est une véritable invitation à redéfinir votre manière de vivre, en harmonie avec l'environnement.
Avec ""Elle"", vous avez l'opportunité de créer un foyer qui vous ressemble, alliant esthétique, confort et respect de l'environnement. Cette maison est une promesse de bien-être, conçue pour s'adapter à de nombreux terrains et à toutes les configurations familiales, offrant ainsi un cadre de vie idéal pour voir grandir votre famille. Découvrez ""Elle"", une maison qui porte bien son nom, et laissez-vous séduire par son caractère unique.
Logement susceptibles de vous intéresser
Nous vous proposons de découvrir aussi cette sélection de logements situés à moins de 10km de Vitry-en-Charollais et qui seraient susceptibles de vous intéresser.
Chassenard
TERRAINPhilippe MOGIER vous propose ce terrain libre de tout constructeur de 1115 m² à CHASSENARD, petite commune de 1000 habitants, dans l’Allier, limite Saône et Loire et à 6 kms de DIGOIN. Terrain plat, façade de 25 m, profondeur de 40 m.Terrain non viabilisé mais branchement eau potable, électricité et téléphone en bordure.Assainissement individuel Les honoraires sont à la charge du vendeur.Les informations sur les risques auxquels ce bien est exposé sont disponibles sur le site Géorisques : www. georisques. gouv. fr.Contactez Philippe MOGIER Entrepreneur Individuel à Responsabilité Limitée, Agent commercial OptimHome (RSAC N(Numéro supprimé) Greffe de CUSSET) (Numéro supprimé) (réf. 594289 )
Chassenard
TERRAINPhilippe MOGIER vous propose ce terrain libre de tout constructeur de 1447 m² à CHASSENARD, petite commune de 1000 habitants, dans l’Allier, limite Saône et Loire et à 6 kms de DIGOIN. Terrain plat, façade de 25 m, profondeur de 45 m.Non viabilisé, mais branchement eau potable, électricité et téléphone en bordure.Assainissement individuel à prévoir Les honoraires sont à la charge du vendeur.Les informations sur les risques auxquels ce bien est exposé sont disponibles sur le site Géorisques : www. georisques. gouv. fr.Contactez Philippe MOGIER Entrepreneur Individuel à Responsabilité Limitée, Agent commercial OptimHome (RSAC N(Numéro supprimé) Greffe de CUSSET) (Numéro supprimé) (réf. 594293 )
Chassenard
TERRAINPhilippe MOGIER vous propose ce terrain libre de tout constructeur de 1747 m² à CHASSENARD, petite commune de 1000 habitants, dans l’Allier, limite Saône et Loire et à 6 kms de DIGOIN. Terrain plat, façade de 22 m, profondeur de 45 m.Non viabilisé, mais branchement eau potable, électricité et téléphone en bordure.Assainissement individuel à prévoir Les honoraires sont à la charge du vendeur.Les informations sur les risques auxquels ce bien est exposé sont disponibles sur le site Géorisques : www. georisques. gouv. fr.Contactez Philippe MOGIER Entrepreneur Individuel à Responsabilité Limitée, Agent commercial OptimHome (RSAC N(Numéro supprimé) Greffe de CUSSET) (Numéro supprimé) (réf. 594290 )
Chassenard
TERRAINPhilippe MOGIER vous propose ce terrain libre de tout constructeur de 2699 m² à CHASSENARD, petite commune de 1000 habitants, dans l’Allier, limite Saône et Loire et à 6 kms de DIGOIN. Terrain plat, bornage à charge de l’acquéreur.Branchement eau potable, électricité et téléphone en bordure.Assainissement individuel Les honoraires sont à la charge du vendeur.Les informations sur les risques auxquels ce bien est exposé sont disponibles sur le site Géorisques : www. georisques. gouv. fr.Contactez Philippe MOGIER Entrepreneur Individuel à Responsabilité Limitée, Agent commercial OptimHome (RSAC N(Numéro supprimé) Greffe de CUSSET) (Numéro supprimé) (réf. 594294 )
Paray-le-Monial
TERRAINTerrain Commercial Privilégié Avenue Pierre Lathuilière-Paray Le Monial, emplacement n°1À la recherche d’un emplacement commercial stratégique à Paray-le-Monial ? Cette opportunité foncière exceptionnelle offre une visibilité incomparable le long de l’Avenue Pierre Lathuilière, à l’entrée du centre-ville, dans une zone à fort trafic urbain avec des entreprises commerciales et artisanales voisines.Caractéristiques du Terrain à bâtir :PlatSuperficie : 1333 m2Réseaux en bordureZone accès poids-lourdsCe terrain à bâtir est idéalement situé pour des activités commerciales ou artisanales, bénéficiant d’une zone UX offrant une grande flexibilité d’utilisation.Profitez de cette opportunité rare d’investir dans un emplacement numéro un à Paray-le-Monial. Contactez-moi dès aujourd’hui pour plus d’informations ou pour organiser une visite ! Les honoraires sont à la charge du vendeur.Les informations sur les risques auxquels ce bien est exposé sont disponibles sur le site Géorisques : www. georisques. gouv. fr.Réseau Immobilier CAPIFRANCE – Votre agent commercial (RSAC N(Numéro supprimé) – Greffe de MACON) Philippe GAY Entrepreneur Individuel à Responsabilité Limitée (Numéro supprimé) – Réf.925189
Saint-Vincent-Bragny
TERRAINVous cherchez à construire votre propre maison dans un environnement paisible ? Alors ne cherchez pas plus loin, ce terrain de 1618 m² à vendre est l’opportunité que vous attendiez ! Le terrain est non viabilisé, l’assainissement collectif est présent. La parcelle est proposée au prix de 22,30 euros TTC du m². Terrain vu pour vous hors frais de notaire et aménagements extérieurs.
Saint-Vincent-Bragny
TERRAIN ET MAISONNous vous proposons cette maison neuve, baptisée Design 90, une demeure qui allie modernité, fonctionnalité et respect de l’environnement. Avec une surface habitable de 90 m², cette maison est conçue pour maximiser chaque mètre carré disponible, offrant ainsi un cadre de vie à la fois confortable et esthétique. La Design 90 se distingue par son architecture contemporaine, caractérisée par des enduits colorés qui lui confèrent une allure à la fois élégante et accueillante. L’agencement intérieur a été pensé pour éviter toute perte d’espace, garantissant ainsi une optimisation parfaite de chaque pièce. Cette maison se compose de 4 pièces lumineuses, dont 3 chambres spacieuses, répondant parfaitement aux besoins d’une famille moderne. L’un des atouts majeurs de la Design 90 est son garage intégré, offrant non seulement un espace supplémentaire de 15 m² pour votre véhicule, mais aussi une solution de rangement pratique pour vos outils, vélos et autres équipements. Conforme à la norme RE2020, cette maison neuve est un modèle de basse consommation énergétique. Elle a été conçue dans le respect des dernières exigences en matière d’efficacité énergétique et d’impact environnemental, vous assurant ainsi des économies significatives sur vos factures d’énergie tout en contribuant à la protection de notre planète.Les options les plus plébiscitées par nos clients, telles que des solutions d’isolation avancées et des systèmes de chauffage performants, sont disponibles pour personnaliser votre maison selon vos préférences et besoins spécifiques.En choisissant la Design 90, vous optez pour une maison à l’excellent rapport qualité-prix, sans compromis sur le confort ou le style. C’est l’opportunité idéale de devenir propriétaire d’une maison neuve, moderne et éco-responsable, conçue pour s’adapter à l’évolution de votre famille.N’attendez plus pour réaliser votre rêve d’une maison parfaite, la Design 90 vous attend pour commencer un nouveau chapitre de votre vie dans un
Saint-Vincent-Bragny
TERRAINCharmant terrain à vendre, situé dans la ville paisible de Saint-Vincent-les-Bragny. Avec une surface de 1416 m², ce terrain offre de nombreuses possibilités pour un projet de construction de maison. Ce terrain bénéficie d’une vue dégagée et d’un environnement calme et sécurisé. Le terrain est non viabilisé, l’assainissement collectif est présent. Il est proposé au prix de 24 euros TTC du m². Terrain vu pour vous hors frais de notaire et aménagements extérieurs.
Saint-Vincent-Bragny
TERRAIN ET MAISONNous vous proposons cette maison neuve, baptisée Design L, une conception architecturale moderne et élégante qui optimise l’espace et la lumière naturelle. Avec une surface habitable de 90 m², cette maison de plain-pied se distingue par sa forme en « »L » », permettant une parfaite adaptation sur des terrains de petite largeur tout en offrant un espace de vie convivial et intime.La Design L se compose de 4 pièces principales, dont 3 chambres confortables, un cellier pratique et un garage intégré, répondant ainsi aux besoins des familles en quête d’un foyer fonctionnel et accueillant. La disposition en « »L » » de la maison crée un espace extérieur protégé, idéal pour des moments de détente en toute intimité.Cette maison est conçue dans le respect des normes RE2020, garantissant une performance énergétique de premier plan. En tant que maison basse consommation, elle vous permettra de réaliser d’importantes économies d’énergie tout en contribuant à la protection de l’environnement. La Design L est donc une réponse concrète aux attentes des acquéreurs soucieux de leur empreinte écologique et désireux de bénéficier des dernières innovations en matière de confort et d’économie d’énergie.Parmi les options les plus plébiscitées par nos clients, la Design L offre la possibilité d’ajouter des équipements et des finitions personnalisées pour que votre maison neuve réponde parfaitement à vos attentes et à votre style de vie.Choisir la Design L, c’est opter pour une maison à la fois moderne, économique et adaptée à la vie de famille. Son prix attractif et ses caractéristiques en font une des références de notre gamme, capable de satisfaire les plus exigeants en termes de qualité de vie et de respect de l’environnement.N’attendez plus pour faire de la Design L votre nouveau chez-vous, un lieu où convivialité, confort et durabilité se rencontrent pour créer un cadre de vie idéal.
L’actualité immobilière à Vitry-en-Charollais
27/11/2023
02/11/2023
30/10/2023
20/10/2023
16/10/2023
16/10/2023