Maison à construire à Aigné (72650)
Images
Description
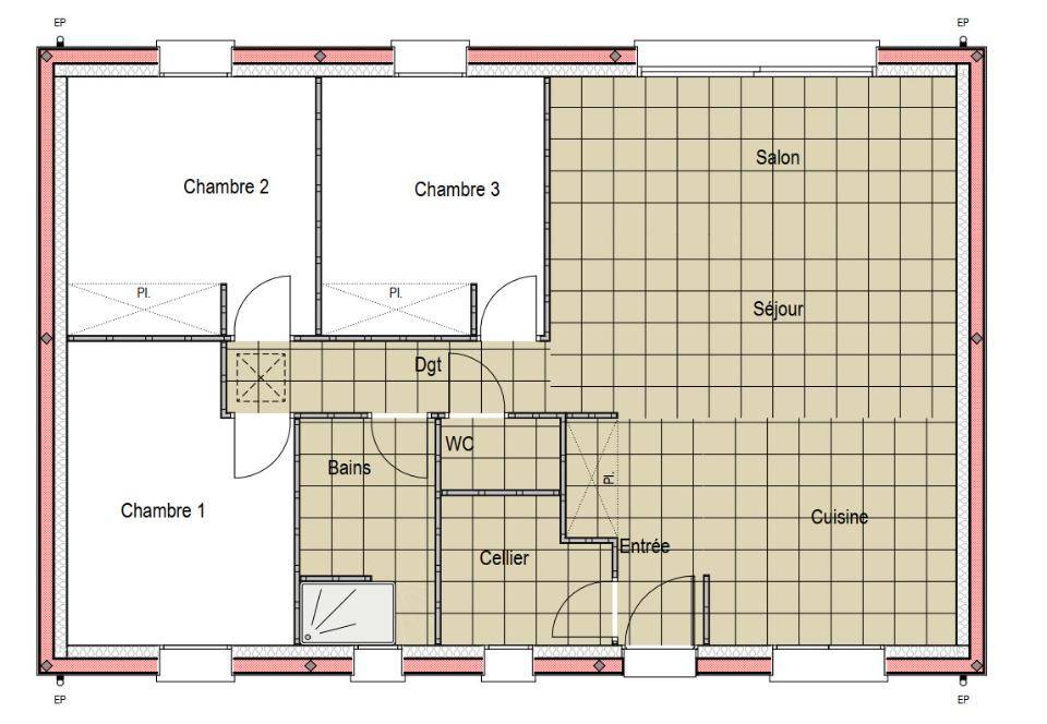
VENTE : maison F5 (77 m²) à Aigné
PROCHE CENTRE-VILLE - MAISON 5 PIÈCES NEUVE
À vendre : à 11 km du Mans, notre agence Maine Construction Le Mans est ravie de vous présenter cette maison de 5 pièces de plain-pied de 77 m² et de 780 m² de terrain proche du centre-ville d'Aigné (72650). Son intérieur dispose de trois chambres, d'une cuisine et d'une salle de bains.
Cette maison est neuve.
On trouve l'École Primaire Publique Roger Bazille à moins de 10 minutes à pied. Niveau transports, il y a quatre gares à moins de 10 minutes en voiture. Il y a un accès à l'autoroute A11 à 4 km. On trouve un tennis à quelques minutes du bien.
Elle est proposée à l'achat pour 215 000 €.
Contactez notre agence (François HOUDAYER : (Numéro supprimé)) pour toute question sur la maison ou sur les modalités de vente. Faites de vos projets immobiliers une réalité avec Maine Construction Le Mans.
Logement susceptibles de vous intéresser
Nous vous proposons de découvrir aussi cette sélection de logements situés à moins de 10km de Aigné et qui seraient susceptibles de vous intéresser.
Aigné
TERRAINVENTE d »un terrain de 780 m² à AignéQUARTIER RECHERCHÉ – PROCHE DU MANSÀ Aigné (72650) en vente à 11 km du Mans, découvrez ce terrain de 780 m². Il donne sur un jardin et bénéficie d »une exposition nord-ouest. Dans un quartier attractif, le terrain construit dans un quartier prisé est proche des écoles et des commerces. L »École Primaire Publique Roger Bazille est implantée à moins de 10 minutes à pied. Niveau transports en commun, on trouve quatre gares à moins de 10 minutes en voiture. On trouve un accès à l »autoroute A11 à 4 km. Il y a un tennis à quelques minutes à peine.Ce terrain est proposé à l »achat pour 59 000 €. Contactez François HOUDAYER (tél : (Numéro supprimé)) pour tout renseignement sur le terrain, sur les modalités de vente ou sur les démarches à suivre. Faites de vos projets immobiliers une réalité avec Maine Construction Saint-Saturnin.
Aigné
TERRAIN ET MAISONAigné : maison de 3 pièces (92 m²) à vendreQUARTIER RECHERCHÉ – MAISON 3 PIÈCES NEUVEÀ 11 km du Mans, nous vous proposons cette maison de 3 pièces de 92 m² et de 780 m² de terrain nichée dans un quartier convoité d’Aigné (72650).C’est une maison de 2 niveaux. Elle compte trois chambres, une cuisine et une salle de bains. La maison est neuve.Ce bien est situé dans un secteur attractif. L’École Primaire Publique Roger Bazille est implantée à moins de 10 minutes à pied. Niveau transports en commun, on trouve quatre gares à moins de 10 minutes en voiture. On trouve un accès à l’autoroute A11 à 4 km. Il y a un tennis à proximité du logement.Il est à vendre pour la somme de 278 000 €.Contactez notre agence (François HOUDAYER : (Numéro supprimé)) pour toute question sur la maison ou sur les modalités de vente. Maine Construction Saint-Saturnin est là pour vous accompagner dans tous vos projets immobiliers.
Aigné
TERRAIN ET MAISONAigné : maison de 3 pièces (92 m²) à vendreQUARTIER RECHERCHÉ – MAISON 3 PIÈCES NEUVEÀ 11 km du Mans, nous vous proposons cette maison de 3 pièces de 92 m² et de 780 m² de terrain nichée dans un quartier convoité d’Aigné (72650).C’est une maison de 2 niveaux. Elle compte trois chambres, une cuisine et une salle de bains. La maison est neuve.Ce bien est situé dans un secteur attractif. L’École Primaire Publique Roger Bazille est implantée à moins de 10 minutes à pied. Niveau transports en commun, on trouve quatre gares à moins de 10 minutes en voiture. On trouve un accès à l’autoroute A11 à 4 km. Il y a un tennis à proximité du logement.Il est à vendre pour la somme de 278 000 €.Contactez notre agence (François HOUDAYER : (Numéro supprimé)) pour toute question sur la maison ou sur les modalités de vente. Maine Construction Saint-Saturnin est là pour vous accompagner dans tous vos projets immobiliers.
Aigné
TERRAINVENTE d’un terrain de 780 m² à AignéPROCHE CENTRE-VILLE – PROCHE DU MANSEn vente à deux pas du Mans à Aigné (72650), grand terrain. Il donne sur un jardin et est orienté au nord. Non loin du centre-ville, le terrain est proche des commerces et des écoles. Il y a l’École Primaire Publique Roger Bazille à moins de 10 minutes à pied. Côté transports, on trouve quatre gares à moins de 10 minutes en voiture. L’autoroute A11 est accessible à 4 km. Il y a un tennis à proximité du terrain.Son prix de vente est de 52 000 €. N’hésitez pas à prendre contact avec François HOUDAYER (tél : (Numéro supprimé)) pour plus de renseignements sur le terrain ou sur les démarches à suivre.
Aigné
TERRAIN ET MAISONVENTE : maison de 4 pièces (73 m²) à AignéPROCHE CENTRE-VILLE – MAISON 4 PIÈCES NEUVEÀ deux pas du Mans, à vendre proche du centre-ville d’Aigné (72650), notre agence Maine Construction Le Mans est heureuse de vous proposer cette maison de 4 pièces de plain-pied de 73 m² et de 780 m² de terrain. Conçue de plain-pied, elle propose trois chambres, une cuisine et une salle de bains.La maison est neuve.L’École Primaire Publique Roger Bazille se trouve à moins de 10 minutes à pied. Niveau transports, il y a quatre gares à moins de 10 minutes en voiture. L’autoroute A11 est accessible à 4 km. On trouve un tennis dans les environs.Elle est à vendre pour la somme de 215 000 €.Contactez notre constructeur (François HOUDAYER : (Numéro supprimé)) pour plus d’informations sur la maison, sur les modalités de vente ou sur les démarches à suivre. Donnez vie à vos projets immobiliers avec Maine Construction Le Mans.
Aigné
TERRAIN ET MAISONVENTE : maison de 4 pièces (90 m²) à AignéPROCHE CENTRE-VILLE – MAISON 4 PIÈCES NEUVEÀ vendre : à deux pas du Mans, Maine Construction Le Mans vous présente, proche du centre-ville d’Aigné (72650), cette maison de 4 pièces de plain-pied de 90 m² et de 780 m² de terrain.Son intérieur propose trois chambres, une cuisine et une salle de bains. Cette maison est neuve.L’École Primaire Publique Roger Bazille se trouve à moins de 10 minutes à pied. Niveau transports, il y a quatre gares à moins de 10 minutes en voiture. L’autoroute A11 est accessible à 4 km. On trouve un tennis dans les environs.Elle est à vendre pour la somme de 239 000 €.Contactez François HOUDAYER (tél : (Numéro supprimé)) pour obtenir de plus amples renseignements sur la propriété ou sur les démarches à suivre.
Aigné
TERRAIN ET MAISONMaison de 7 pièces (134 m²) à vendre à AignéPROCHE CENTRE-VILLE – MAISON 7 PIÈCES NEUVEEn vente : à quelques kilomètres du Mans, proche du centre-ville d’Aigné (72650), Maine Construction Le Mans vous propose cette maison de 7 pièces de plain-pied de 134 m² et de 780 m² de terrain. Son intérieur dispose de trois chambres, d’une cuisine et de deux salles de bains.La maison est neuve.L’École Primaire Publique Roger Bazille se trouve à moins de 10 minutes à pied. Côté transports, il y a quatre gares à moins de 10 minutes en voiture. L’autoroute A11 est accessible à 4 km. On trouve un tennis dans les environs.Elle est à vendre pour la somme de 315 000 €.Contactez notre agence (HOUDAYER François : (Numéro supprimé)) pour tout renseignement sur le bien. Faites de vos projets immobiliers une réalité avec Maine Construction Le Mans.
Aigné
TERRAIN ET MAISONMaison F5 (110 m²) à vendre à AignéPROCHE CENTRE-VILLE – MAISON 5 PIÈCES NEUVEEn vente : située à quelques kilomètres du Mans, laissez vous charmer par, proche du centre-ville d’Aigné (72650), cette maison de 5 pièces de plain-pied de 110 m² et de 780 m² de terrain. Elle est composée de trois chambres, d’une cuisine et d’une salle de bains.La maison est neuve.Il y a l’École Primaire Publique Roger Bazille à moins de 10 minutes à pied. Niveau transports, on trouve quatre gares à moins de 10 minutes en voiture. Il y a un accès à l’autoroute A11 à 4 km. Il y a un tennis à quelques minutes à peine.Elle est proposée à l’achat pour 295 000 €.Contactez notre agence (HOUDAYER François : (Numéro supprimé)) pour toute question sur la maison.
Aigné
TERRAIN ET MAISONVENTE d’une maison T4 (105 m²) à AignéPROCHE CENTRE-VILLE – MAISON 4 PIÈCES NEUVEÀ 11 km du Mans, Maine Construction Le Mans vous présente cette maison de 4 pièces de plain-pied de 105 m² à vendre, proche du centre-ville d’Aigné (72650). Conçue de plain-pied, elle dispose de trois chambres, d’une cuisine et d’une salle de bains.Le terrain de la propriété s’étend sur 780 m².Cette maison est neuve.L’École Primaire Publique Roger Bazille est implantée à moins de 10 minutes à pied. Niveau transports en commun, il y a quatre gares à moins de 10 minutes en voiture. On trouve un accès à l’autoroute A11 à 4 km. On trouve un tennis à quelques minutes.Elle est proposée à l’achat pour 265 000 €.Contactez François HOUDAYER (tél : (Numéro supprimé)) pour obtenir de plus amples renseignements sur la propriété et sur les démarches à suivre. Donnez vie à vos projets immobiliers avec Maine Construction Le Mans.
L’actualité immobilière à Aigné
27/11/2023
02/11/2023
30/10/2023
20/10/2023
16/10/2023
16/10/2023