Maison à construire à Aigné (72650)
Images
Description
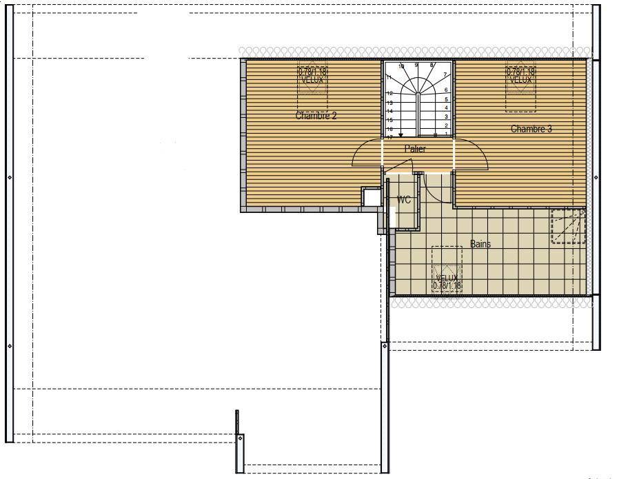
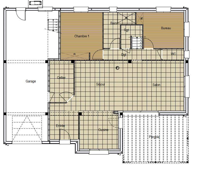
VENTE d'une maison T7 (128 m²) à Aigné
IDÉALEMENT SITUÉE - MAISON 7 PIÈCES NEUVE
À vendre à deux pas du Mans, votre agence Maine Construction Le Mans est heureuse de vous présenter cette maison de 7 pièces de 128 m² et de 780 m² de terrain idéalement située dans Aigné (72650).
C'est une maison de 2 niveaux. Elle dispose de trois chambres, d'une cuisine et de deux salles de bains. La maison est neuve.
Cette maison se trouve dans un quartier recherché. Il y a l'École Primaire Publique Roger Bazille à moins de 10 minutes à pied. Côté transports, on trouve quatre gares à moins de 10 minutes en voiture. Il y a un accès à l'autoroute A11 à 4 km. Il y a un tennis à quelques minutes.
Elle est à vendre pour la somme de 309 000 €.
Contactez Luc LIVET (tél : (Numéro supprimé)) pour toute question sur la maison ou sur les modalités de vente. Faites de vos projets immobiliers une réalité avec Maine Construction Le Mans.
Logement susceptibles de vous intéresser
Nous vous proposons de découvrir aussi cette sélection de logements situés à moins de 10km de Aigné et qui seraient susceptibles de vous intéresser.
  
 
 Aigné
TERRAINAigné : terrain de 780 m² en venteIDÉALEMENT SITUÉ – PROCHE DU MANSÀ Aigné (72650) à quelques kilomètres du Mans, imaginez la maison de vos rêves sur ce terrain de 780 m². Il donne sur un jardin et bénéficie d’une exposition nord. Il se trouve dans un quartier attractif. Il y a l’École Primaire Publique Roger Bazille à moins de 10 minutes à pied. Niveau transports, on trouve quatre gares à moins de 10 minutes en voiture. L’autoroute A11 est accessible à 4 km. Il y a un tennis à quelques minutes du terrain.Ce terrain est à vendre pour la somme de 52 000 €. N’hésitez pas à prendre contact avec Luc LIVET (tél : (Numéro supprimé)) Maine Construction pour toute information sur ce terrain, sur les démarches à suivre ou sur les modalités de vente.
  
 
 Aigné
TERRAIN ET MAISONVENTE : maison T4 (90 m²) à AignéIDÉALEMENT SITUÉE – MAISON 4 PIÈCES NEUVEÀ vendre : située à quelques kilomètres du Mans, Maine Construction Le Mans vous propose cette maison de 4 pièces de 90 m² idéalement située dans Aigné (72650). Elle comporte trois chambres, une cuisine et une salle de bains.Le terrain de la propriété est de 780 m².Cette maison possède 2 niveaux. Elle est neuve.La maison est située dans un quartier convoité. Il y a l’École Primaire Publique Roger Bazille à moins de 10 minutes à pied. Niveau transports en commun, on trouve quatre gares à moins de 10 minutes en voiture. On trouve un accès à l’autoroute A11 à 4 km. Il y a un tennis dans les environs.Elle est à vendre pour la somme de 235 000 €.N’hésitez pas à prendre contact avec notre agence (Luc LIVET : (Numéro supprimé)) pour toute question sur la maison. Maine Construction Le Mans est là pour vous accompagner dans toutes vos démarches.
  
 
 Aigné
TERRAIN ET MAISONVENTE d’une maison F4 (90 m²) à AignéIDÉALEMENT SITUÉE – MAISON 4 PIÈCES NEUVEEn vente à quelques kilomètres du Mans, votre agence Maine Construction Le Mans est ravie de vous présenter cette maison de 4 pièces de plain-pied de 90 m² et de 780 m² de terrain idéalement située dans Aigné (72650). Elle offre trois chambres, une cuisine et une salle de bains.La maison est neuve.Cette maison se trouve dans un secteur convoité. L’École Primaire Publique Roger Bazille est implantée à moins de 10 minutes à pied. Côté transports, on trouve quatre gares à moins de 10 minutes en voiture. L’autoroute A11 est accessible à 4 km. Il y a un tennis à quelques minutes à peine.Elle est à vendre pour la somme de 220 000 €.Prenez contact avec Luc LIVET ((Numéro supprimé))Maine Construction pour toute question sur la maison ou sur les démarches à suivre.
  
 
 Aigné
TERRAIN ET MAISONVENTE d’une maison de 6 pièces (88 m²) à AignéIDÉALEMENT SITUÉE – MAISON 6 PIÈCES NEUVEEn vente : localisée à quelques kilomètres du Mans, découvrez cette maison de 6 pièces de 88 m² idéalement située dans Aigné (72650). Son intérieur propose deux chambres, une cuisine et deux salles de bains.Le terrain de la propriété est de 780 m².Il s’agit d’une maison de 2 niveaux. Elle est neuve.La maison est située dans un quartier convoité. L’École Primaire Publique Roger Bazille se trouve à moins de 10 minutes à pied. Côté transports, il y a quatre gares à moins de 10 minutes en voiture. L’autoroute A11 est accessible à 4 km. On trouve un tennis dans les environs.Elle est à vendre pour la somme de 265 000 €.Prenez contact avec notre agence (LIVET Luc : (Numéro supprimé)) pour plus d’informations sur la maison ou sur les modalités de vente. Maine Construction Le Mans vous accompagne à toutes les étapes de l’achat et dans toutes vos démarches.
  
 
 Aigné
TERRAIN ET MAISONVENTE d’une maison T7 (128 m²) à AignéIDÉALEMENT SITUÉE – MAISON 7 PIÈCES NEUVEÀ vendre à deux pas du Mans, votre agence Maine Construction Le Mans est heureuse de vous présenter cette maison de 7 pièces de 128 m² et de 780 m² de terrain idéalement située dans Aigné (72650).C’est une maison de 2 niveaux. Elle dispose de trois chambres, d’une cuisine et de deux salles de bains. La maison est neuve.Cette maison se trouve dans un quartier recherché. Il y a l’École Primaire Publique Roger Bazille à moins de 10 minutes à pied. Côté transports, on trouve quatre gares à moins de 10 minutes en voiture. Il y a un accès à l’autoroute A11 à 4 km. Il y a un tennis à quelques minutes.Elle est à vendre pour la somme de 309 000 €.Contactez Luc LIVET (tél : (Numéro supprimé)) pour toute question sur la maison ou sur les modalités de vente. Faites de vos projets immobiliers une réalité avec Maine Construction Le Mans.
  
 
 Aigné
TERRAIN ET MAISONMaison T6 (160 m²) à vendre à AignéIDÉALEMENT SITUÉE – MAISON 6 PIÈCES NEUVEÀ vendre à quelques kilomètres du Mans, idéalement située dans Aigné (72650), Maine Construction Le Mans vous propose cette maison de 6 pièces de 160 m². Son intérieur inclut quatre chambres, une cuisine et deux salles de bains.Le terrain du bien s’étend sur 780 m².Il s’agit d’une maison de 2 niveaux. Elle est neuve.Cette maison se trouve dans un quartier convoité. L’École Primaire Publique Roger Bazille est implantée à moins de 10 minutes à pied. Niveau transports, on trouve quatre gares à moins de 10 minutes en voiture. Il y a un accès à l’autoroute A11 à 4 km. Il y a un tennis à proximité du logement.Elle est à vendre pour la somme de 449 000 €.Contactez Luc LIVET ((Numéro supprimé))Maine Construction pour plus d’informations sur la maison et sur les démarches à suivre.
  
 
 Aigné
TERRAIN ET MAISONVENTE d’une maison T5 (130 m²) à AignéIDÉALEMENT SITUÉE – MAISON 5 PIÈCES NEUVEÀ 11 km du Mans, venez découvrir cette maison de 5 pièces de 130 m² et de 780 m² de terrain en vente idéalement située dans Aigné (72650). Elle inclut quatre chambres, une cuisine et deux salles de bains.C’est une maison de 2 niveaux. Elle est neuve.La maison se situe dans un quartier prisé. L’École Primaire Publique Roger Bazille se trouve à moins de 10 minutes à pied. Côté transports, il y a quatre gares à moins de 10 minutes en voiture. L’autoroute A11 est accessible à 4 km. On trouve un tennis à quelques minutes.Son prix de vente est de 324 000 €.Prenez contact avec notre agence (Luc LIVET : (Numéro supprimé)) pour plus d’informations sur la maison. Maine Construction Le Mans est là pour vous accompagner dans toutes vos démarches.
  
 
 Aigné
TERRAINVENTE : terrain de 780 m² à AignéIDÉALEMENT SITUÉ – VUE DÉGAGÉEÀ deux pas du Mans à Aigné (72650), grand terrain. Ce terrain, avec vue dégagée, est orienté plein ouest. Dans un secteur convoité, le terrain idéalement situé est proche des commerces et des écoles. Il y a l’École Primaire Publique Roger Bazille à moins de 10 minutes à pied. Niveau transports en commun, on trouve quatre gares à moins de 10 minutes en voiture. On trouve un accès à l’autoroute A11 à 4 km. Il y a un tennis à quelques minutes à peine.Ce terrain est proposé à l’achat pour 52 000 €. Prenez contact avec François HOUDAYER ((Numéro supprimé)) pour toute question sur le terrain, sur les modalités de vente ou sur les démarches à suivre.
  
 
 Aigné
TERRAIN ET MAISONVENTE : maison T5 (104 m²) à AignéIDÉALEMENT SITUÉE – MAISON 5 PIÈCES NEUVEÀ vendre : à deux pas du Mans, idéalement située dans Aigné (72650), votre agence Maine Construction Le Mans est heureuse de vous présenter cette maison de 5 pièces de plain-pied de 104 m² et de 780 m² de terrain.Conçue de plain-pied, elle propose quatre chambres, une cuisine et une salle de bains. Cette maison est neuve.La maison se trouve dans un secteur attractif. Il y a l’École Primaire Publique Roger Bazille à moins de 10 minutes à pied. Côté transports, on trouve quatre gares à moins de 10 minutes en voiture. On trouve un accès à l’autoroute A11 à 4 km. Il y a un tennis à quelques minutes à peine.Elle est à vendre pour la somme de 265 000 €.N’hésitez pas à prendre contact avec notre constructeur (HOUDAYER François : (Numéro supprimé)) pour obtenir de plus amples informations sur la maison ou sur les modalités de vente. Donnez vie à vos projets immobiliers avec Maine Construction Le Mans.
L’actualité immobilière à Aigné
 
 27/11/2023
 
 
 
 02/11/2023
 
 
 
 30/10/2023
 
 
 
 20/10/2023
 
 
 
 16/10/2023
 
 
 
 16/10/2023