Images
Description
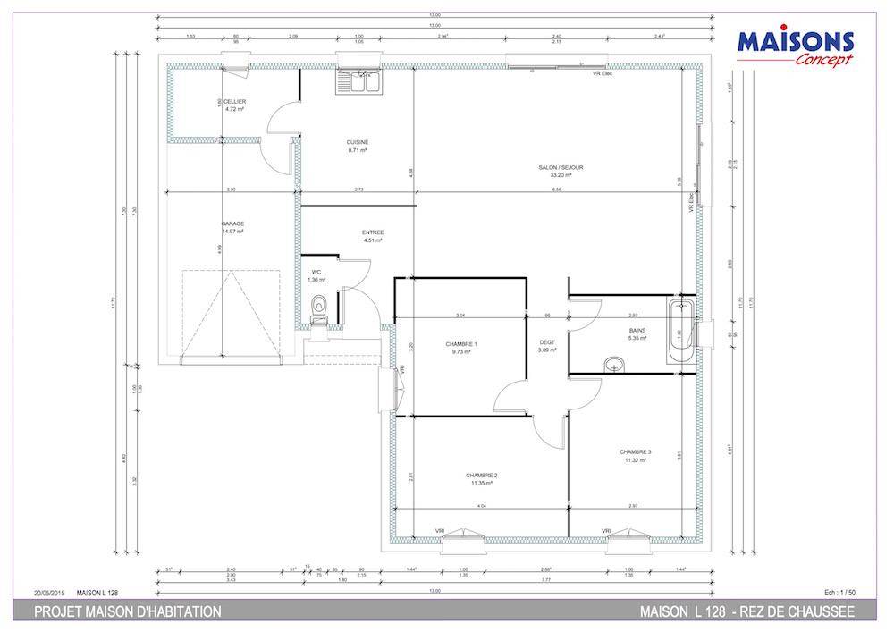
Nous vous proposons cette maison neuve, baptisée ""Élégance"", un modèle qui se distingue par sa forme architecturale en L, offrant à la fois style et fonctionnalité sur une surface habitable de 103 m². Conçue pour répondre aux attentes des plus exigeants, cette maison de plain-pied combine harmonieusement espace et confort, avec un total de 4 pièces, dont 4 chambres spacieuses, promettant ainsi un cadre de vie idéal pour toute la famille.
L'entrée s'ouvre sur un vaste salon-séjour baigné de lumière, grâce à sa conception ouverte qui s'étend jusqu'à la cuisine, créant un espace de vie convivial et accueillant. L'intégration d'un garage attenant et d'un cellier pratique souligne la pensée méticuleuse mise dans la conception de cette maison, visant à allier esthétique et fonctionnalité.
L'une des caractéristiques les plus appréciées de ce modèle est son enduit bi-ton, qui ajoute une touche de modernité et d'élégance à l'extérieur, reflétant le nom même de la maison. De plus, cette maison est entièrement personnalisable, vous permettant d'adapter chaque espace à votre mode de vie et à vos préférences, assurant ainsi que votre futur foyer réponde parfaitement à vos attentes.
Au-delà de son design attrayant, ""Élégance"" est une maison basse consommation, rigoureusement conçue pour respecter les normes de la RE2020. Cette caractéristique garantit non seulement un confort optimal tout au long de l'année mais aussi des économies significatives sur les factures d'énergie, soulignant notre engagement envers la durabilité et le respect de l'environnement.
En choisissant ""Élégance"", vous optez pour une maison qui allie beauté, confort et responsabilité environnementale. Une opportunité à ne pas manquer pour ceux qui cherchent à construire leur nid familial dans un cadre de vie à la fois moderne et économe en énergie.
Logement susceptibles de vous intéresser
Nous vous proposons de découvrir aussi cette sélection de logements situés à moins de 10km de Bazouges Cré sur Loir et qui seraient susceptibles de vous intéresser.
Villaines-sous-Malicorne
TERRAINDécouvrez ce magnifique terrain de 531 m², situé dans le charmant lotissement de Villaines-sous-Malicorne, idéal pour concrétiser votre projet de construction de maison. Ce terrain, entièrement viabilisé, offre une stabilité et une qualité de vie exceptionnelles grâce à son environnement paisible dans un quartier privilégié. Laissez libre cours à votre imagination pour créer la maison de vos rêves dans cet écrin de verdure. Villaines-sous-Malicorne, situé dans le département de la Sarthe en région Pays de la Loire, bénéficie d’une localisation stratégique proche des commerces, ce qui facilite votre quotidien. Ce charmant village offre également une ambiance tranquille tout en étant à proximité des belles promenades et des activités en pleine nature. Une région riche en paysages et en découvertes, où il fait bon vivre et s’épanouir. Ce terrain représente une opportunité rare à saisir pour allier confort de vie et cadre idyllique. N’hésitez pas à envisager cette chance d’investir dans un cadre de vie agréable et en harmonie avec la nature. À noter qu’en tant que constructeur, nous ne sommes pas mandatés pour réaliser la vente de ce terrain.
La Flèche
TERRAINÀ vendre, un terrain de 1699 m² idéalement situé à La Flèche, dans la belle région de la Sarthe, au cœur des Pays de la Loire. Ce terrain offre un cadre champêtre et paisible, parfait pour la réalisation d’un projet de construction de maison, vous permettant ainsi de créer un espace de vie qui vous ressemble. Vous serez séduits par la tranquillité de cet endroit, propice à la qualité de vie et à l’épanouissement familial. La Flèche, connue pour son riche patrimoine culturel et ses paysages naturels, offre une variété d’attractions locales telles que le célèbre zoo, les marchés animés et les nombreuses activités en plein air. La ville dispose également de toutes les commodités nécessaires pour un quotidien agréable, incluant des écoles, des commerces, et des installations sportives. Sa proximité avec les routes principales vous permettra de rejoindre facilement les grandes villes de la région, tout en profitant du calme et de la sérénité offerts par la vie à La Flèche. Ne manquez pas cette opportunité unique d’acquérir un terrain au potentiel remarquable, offrant une qualité de vie incomparable. Contactez-nous dès maintenant pour explorer cette belle possibilité d’achat. À noter qu’en tant que constructeur, nous ne sommes pas mandatés pour réaliser la vente de ce terrain.
Durtal
TERRAINPrix : 25000 €.Sur ce terrain de 500 m² à DURTAL, Alliance Construction vous propose de réaliser votre projet de construction de maison individuelle.Avec Alliance Construction, habitez une maison spécialement pensée et conçue pour vous et votre famille, prête à décorer, adaptée à vos modes de vie, personnalisée selon vos goûts grâce à un large choix d'options, de matériaux et d'innovations ! Demandez une étude gratuite et personnalisée de votre projet de construction sur ce terrain à DURTAL !Contactez Patrice GIRARD au (Numéro supprimé) (Alliance Construction – Agence d'Angers).Prix hors frais de notaire. Terrain sélectionné par ALLIANCE auprès de nos partenaires fonciers, selon disponibilité, pour la construction d'une maison neuve. Non mandaté pour réaliser la vente (loi du 2 janvier 1970 n°70-9). Visuels non contractuels. Voir détails en agence.Cette annonce a été créée et diffusée avec le logiciel VITAHOME.
Durtal
TERRAIN ET MAISONA DURTAL sur un terrain de 900 m², Alliance Construction vous propose de réaliser votre projet de construction de maison individuelle d'une surface de 88.04 m² habitables avec 3 chambres, à partir de 207539€*Demandez une étude gratuite et personnalisée de votre projet de construction !* Cette offre comprend :- Garanties constructeurs (dommages ouvrage, garantie de prix ferme et définitif, garantie de livraison, responsabilité civile et décennale).- Branchements aux compteurs et accès empierré sur 5m linéaires.Habitez une maison spécialement pensée et conçue pour vous et votre famille, prête à décorer, adaptée à vos modes de vie, personnalisée selon vos goûts grâce à un large choix d'options, de matériaux et d'innovations !Contactez Patrice (Numéro supprimé)*Prix indicatif pour un projet de construction d'une maison individuelle. Ne sont pas inclus les frais de branchements, raccordements aux réseaux publics, frais d'adaptations, aménagements intérieurs et extérieurs et options. terrain viabilisé, frais de notaire non compris, frais divers non compris. Garanties et assurances obligatoires incluses. Terrain sélectionné par ALLIANCE auprès de nos partenaires fonciers, selon disponibilité, pour la construction d'une maison neuve. Non mandaté pour réaliser la vente (loi du 2 janvier 1970 n°70-9). Visuels non contractuels. Voir détails en agence.Cette annonce a été créée et diffusée avec le logiciel VITAHOME.
La Flèche
TERRAIN ET MAISONVous rêvez de devenir propriétaire ? Ne cherchez plus, cette maison est faite pour vous !Caractéristiques :2 chambres spacieuses pour votre confortGarage pour votre véhicule ou pour du rangement supplémentaireMaison neuve prête à être construite sur un terrain viabiliséEmplacement privilégié, à proximité du bourg et de toutes les commodités nécessaires Cette maison est idéale pour un jeune couple souhaitant poser ses valises dans un cadre agréable et bien desservi. Profitez de l’opportunité de concrétiser votre rêve immobilier dans un environnement calme et pratique !Contactez-moi pour plus d'informations et découvrir les différentes options de personnalisation.Patrice, (Numéro supprimé)Contactez Patrice(Numéro supprimé)*Prix indicatif pour un projet de construction d'une maison individuelle. Ne sont pas inclus les frais de branchements, raccordements aux réseaux publics, frais d'adaptations, aménagements intérieurs et extérieurs et options. terrain viabilisé, frais de notaire non compris, frais divers non compris. Garanties et assurances obligatoires incluses. Terrain sélectionné par ALLIANCE auprès de nos partenaires fonciers, selon disponibilité, pour la construction d'une maison neuve. Non mandaté pour réaliser la vente (loi du 2 janvier 1970 n°70-9). Visuels non contractuels. Voir détails en agence.Cette annonce a été créée et diffusée avec le logiciel VITAHOME.
Les Rairies
TERRAIN ET MAISONA LES RAIRIES sur un terrain de 800 m², Alliance Construction vous propose de réaliser votre projet de construction de maison individuelle d'une surface de 94.48 m² habitables avec 3 chambres, à partir de 230600€*Demandez une étude gratuite et personnalisée de votre projet de construction !* Cette offre comprend :- Garanties constructeurs (dommages ouvrage, garantie de prix ferme et définitif, garantie de livraison, responsabilité civile et décennale).- Branchements aux compteurs et accès empierré sur 5m linéaires.Habitez une maison spécialement pensée et conçue pour vous et votre famille, prête à décorer, adaptée à vos modes de vie, personnalisée selon vos goûts grâce à un large choix d'options, de matériaux et d'innovations !Contactez Patrice (Numéro supprimé)*Prix indicatif pour un projet de construction d'une maison individuelle. Ne sont pas inclus les frais de branchements, raccordements aux réseaux publics, frais d'adaptations, aménagements intérieurs et extérieurs et options. terrain viabilisé, frais de notaire non compris, frais divers non compris. Garanties et assurances obligatoires incluses. Terrain sélectionné par ALLIANCE auprès de nos partenaires fonciers, selon disponibilité, pour la construction d'une maison neuve. Non mandaté pour réaliser la vente (loi du 2 janvier 1970 n°70-9). Visuels non contractuels. Voir détails en agence.Cette annonce a été créée et diffusée avec le logiciel VITAHOME.
Les Rairies
TERRAIN ET MAISONA LES RAIRIES sur un terrain de 3241 m², Alliance Construction vous propose de réaliser votre projet de construction de maison individuelle d'une surface de 88.04 m² habitables avec 3 chambres, à partir de 210439€*Demandez une étude gratuite et personnalisée de votre projet de construction !* Cette offre comprend :- Garanties constructeurs (dommages ouvrage, garantie de prix ferme et définitif, garantie de livraison, responsabilité civile et décennale).- Branchements aux compteurs et accès empierré sur 5m linéaires.Habitez une maison spécialement pensée et conçue pour vous et votre famille, prête à décorer, adaptée à vos modes de vie, personnalisée selon vos goûts grâce à un large choix d'options, de matériaux et d'innovations !Contactez Julien LÉONARDI au (Numéro supprimé) (Alliance Construction – Agence d'Angers).*Prix indicatif pour un projet de construction d'une maison individuelle. Ne sont pas inclus les frais de branchements, raccordements aux réseaux publics, frais d'adaptations, aménagements intérieurs et extérieurs et options. terrain viabilisé, frais de notaire non compris, frais divers non compris. Garanties et assurances obligatoires incluses. Terrain sélectionné par ALLIANCE auprès de nos partenaires fonciers, selon disponibilité, pour la construction d'une maison neuve. Non mandaté pour réaliser la vente (loi du 2 janvier 1970 n°70-9). Visuels non contractuels. Voir détails en agence.Cette annonce a été créée et diffusée avec le logiciel VITAHOME.
La Flèche
TERRAIN ET MAISONA LA FLECHE sur un terrain de 500 m², Alliance Construction vous propose de réaliser votre projet de construction de maison individuelle d'une surface de 102.5 m² habitables avec 4 chambres, à partir de 275800€*Demandez une étude gratuite et personnalisée de votre projet de construction !* Cette offre comprend :- Garanties constructeurs (dommages ouvrage, garantie de prix ferme et définitif, garantie de livraison, responsabilité civile et décennale).- Branchements aux compteurs et accès empierré sur 5m linéaires.Habitez une maison spécialement pensée et conçue pour vous et votre famille, prête à décorer, adaptée à vos modes de vie, personnalisée selon vos goûts grâce à un large choix d'options, de matériaux et d'innovations !Contactez Patrice (Numéro supprimé)*Prix indicatif pour un projet de construction d'une maison individuelle. Ne sont pas inclus les frais de branchements, raccordements aux réseaux publics, frais d'adaptations, aménagements intérieurs et extérieurs et options. terrain viabilisé, frais de notaire non compris, frais divers non compris. Garanties et assurances obligatoires incluses. Terrain sélectionné par ALLIANCE auprès de nos partenaires fonciers, selon disponibilité, pour la construction d'une maison neuve. Non mandaté pour réaliser la vente (loi du 2 janvier 1970 n°70-9). Visuels non contractuels. Voir détails en agence.Cette annonce a été créée et diffusée avec le logiciel VITAHOME.
La Flèche
TERRAINPrix : 42500 €.Sur ce terrain de 500 m² à LA FLECHE, Alliance Construction vous propose de réaliser votre projet de construction de maison individuelle.Avec Alliance Construction, habitez une maison spécialement pensée et conçue pour vous et votre famille, prête à décorer, adaptée à vos modes de vie, personnalisée selon vos goûts grâce à un large choix d'options, de matériaux et d'innovations ! Demandez une étude gratuite et personnalisée de votre projet de construction sur ce terrain à LA FLECHE !Contactez Patrice GIRARD au (Numéro supprimé) (Alliance Construction – Agence d'Angers).Prix hors frais de notaire. Terrain sélectionné par ALLIANCE auprès de nos partenaires fonciers, selon disponibilité, pour la construction d'une maison neuve. Non mandaté pour réaliser la vente (loi du 2 janvier 1970 n°70-9). Visuels non contractuels. Voir détails en agence.Cette annonce a été créée et diffusée avec le logiciel VITAHOME.
L’actualité immobilière à Bazouges Cré sur Loir
27/11/2023
02/11/2023
30/10/2023
20/10/2023
16/10/2023
16/10/2023