Images
Description
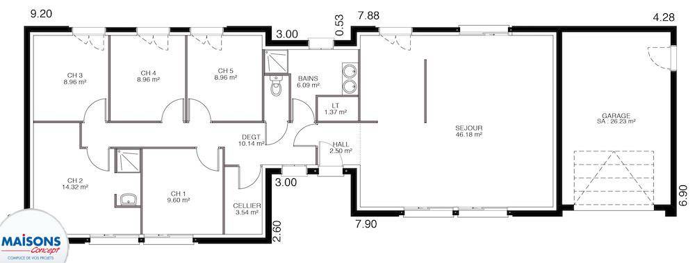
Nous vous proposons cette maison neuve, baptisée ""Hilya"", un modèle d'exception qui allie avec brio charme et modernité. Conçue par un architecte, cette maison en L se distingue par son design contemporain, marqué par un toit plat élégant et un garage accolé, intégré harmonieusement à l'ensemble. Avec une surface habitable de 109 m², elle offre un espace de vie optimal réparti en 4 pièces, dont 4 chambres confortables, répondant ainsi parfaitement aux besoins d'une famille moderne.
La Hilya se caractérise par ses finitions haut de gamme et ses équipements à la pointe de la technologie. Les menuiseries en aluminium, choisies pour leur durabilité et leur esthétique, s'associent à la perfection avec la possibilité d'opter pour une toiture quatre pans, ajoutant une touche de tradition à cette demeure résolument moderne. La domotique intégrée vous permettra de contrôler facilement votre environnement, assurant confort et sécurité à ses résidents.
Cette maison neuve est également conçue dans le respect des normes environnementales les plus strictes, garantissant une basse consommation énergétique et une conformité totale avec la réglementation RE2020. Ce souci de l'efficacité énergétique se traduit par une réduction significative des charges et par un impact environnemental minimisé, faisant de la Hilya un choix responsable pour votre futur foyer.
La Hilya représente l'harmonie parfaite entre esthétique et fonctionnalité, offrant un cadre de vie idéal pour ceux qui cherchent à allier confort moderne et respect de l'environnement. Ne manquez pas l'opportunité de construire la maison de vos rêves, une demeure qui promet de s'adapter à vos envies tout en répondant aux exigences d'un monde en constante évolution.
Logement susceptibles de vous intéresser
Nous vous proposons de découvrir aussi cette sélection de logements situés à moins de 10km de Champagné et qui seraient susceptibles de vous intéresser.
Champagné
TERRAINDécouvrez ce terrain d’une surface généreuse situé à Champagné à la limite avec la commune de Changé, dans le département de la Sarthe. Viabilisé et prêt à accueillir votre projet de construction, ce magnifique terrain est le dernier disponible dans cette exclusivité recherchée. Profitez d’un cadre champêtre ensoleillé, idéal pour créer la maison de vos rêves. Avec ses caractéristiques uniques, ce terrain représente une opportunité rare pour les acheteurs en quête d’un emplacement paisible et attrayant. Champagne, en Pays de la Loire, séduira les amoureux de la nature et de la tranquillité. Cette charmante ville offre un mélange d’activités locales et de commodités modernes, tout en conservant son authenticité. Proche des axes routiers, elle permet un accès facile aux grandes villes environnantes tout en conservant le charme de la vie rurale. Les attractions locales, telles que ses espaces verts et ses services de proximité, ajoutent à la convivialité de cette agréable commune. N’attendez plus pour découvrir le potentiel incroyable de ce terrain et envisager votre avenir dans ce cadre enchanteur. Une occasion unique d’investir dans un emplacement d’exception. À noter qu’en tant que constructeur, nous ne sommes pas mandatés pour réaliser la vente de ce terrain.
Champagné
TERRAIN ET MAISONNous vous proposons cette maison neuve, baptisée « »Hilya » », un modèle d’exception qui allie avec brio charme et modernité. Conçue par un architecte, cette maison en L se distingue par son design contemporain, marqué par un toit plat élégant et un garage accolé, intégré harmonieusement à l’ensemble. Avec une surface habitable de 109 m², elle offre un espace de vie optimal réparti en 4 pièces, dont 4 chambres confortables, répondant ainsi parfaitement aux besoins d’une famille moderne.La Hilya se caractérise par ses finitions haut de gamme et ses équipements à la pointe de la technologie. Les menuiseries en aluminium, choisies pour leur durabilité et leur esthétique, s’associent à la perfection avec la possibilité d’opter pour une toiture quatre pans, ajoutant une touche de tradition à cette demeure résolument moderne. La domotique intégrée vous permettra de contrôler facilement votre environnement, assurant confort et sécurité à ses résidents.Cette maison neuve est également conçue dans le respect des normes environnementales les plus strictes, garantissant une basse consommation énergétique et une conformité totale avec la réglementation RE2020. Ce souci de l’efficacité énergétique se traduit par une réduction significative des charges et par un impact environnemental minimisé, faisant de la Hilya un choix responsable pour votre futur foyer.La Hilya représente l’harmonie parfaite entre esthétique et fonctionnalité, offrant un cadre de vie idéal pour ceux qui cherchent à allier confort moderne et respect de l’environnement. Ne manquez pas l’opportunité de construire la maison de vos rêves, une demeure qui promet de s’adapter à vos envies tout en répondant aux exigences d’un monde en constante évolution.
Champagné
TERRAIN ET MAISONNous vous proposons cette maison neuve, baptisée « »Jade » », un modèle d’habitation qui allie confort, modernité et respect de l’environnement. Conçue pour répondre aux besoins d’une famille moderne, la maison Jade offre une surface habitable de 97 m², répartie sur deux niveaux, avec un total de 4 pièces dont 3 chambres spacieuses, permettant d’accueillir confortablement une famille de 4 à 5 personnes.Le rez-de-chaussée se distingue par un vaste espace de vie de 36 m² comprenant une cuisine ouverte, idéale pour partager des moments conviviaux en famille ou entre amis. Cette pièce est baignée de lumière grâce à de grandes ouvertures qui apportent une luminosité naturelle tout au long de la journée. Un garage intégré de près de 17 m² assure un espace supplémentaire pour votre véhicule ou pour du rangement. Une chambre de 11,2 m² peut également servir d’espace de vie supplémentaire, offrant ainsi la possibilité d’agrandir l’espace commun à près de 50 m².L’étage, construit sur une dalle en béton, garantit solidité et isolation phonique. Il se compose de trois chambres confortables, d’une salle de bains supplémentaire et de toilettes séparées, répondant ainsi aux besoins d’intimité et de confort de chaque membre de la famille.La maison Jade est conçue pour être à la fois moderne et écologique. Elle est conforme à la réglementation environnementale RE2020, assurant une basse consommation énergétique. Cela se traduit par des coûts d’entretien et de fonctionnement nettement réduits, faisant de cette maison un investissement durable pour votre avenir.Les options les plus plébiscitées, telles que l’enduit bi-ton et les menuiseries en aluminium, sont disponibles pour personnaliser votre maison et la rendre unique. Ces finitions haut de gamme non seulement embellissent votre habitation mais contribuent également à son efficacité énergétique.En choisissant la maison Jade, vous optez pour une habitation familiale accessible, conçue pour offrir un cadre de vie exceptionnel
Champagné
TERRAINNous avons le plaisir de vous présenter ce terrain exceptionnel à vendre, idéalement situé au cœur de la ville. Avec sa surface généreuse de 410 m², ce terrain plat et viabilisé constitue un cadre parfait pour votre projet de construction de maison. Dans un quartier recherché et privilégié, vous bénéficierez d’une qualité de vie remarquable, ainsi que de toutes les commodités à proximité. Ne manquez pas cette opportunité unique, car il s’agit du dernier terrain disponible dans ce secteur prisé. Situé dans la commune de Diffus, au sein du département de la 53000, ce terrain se trouve à proximité immédiate des écoles, collèges et lycées, facilitant ainsi la vie familiale quotidienne. Vous serez à deux pas des diverses attractions locales et des services qui contribuent à l’animation de la vie citadine. Que ce soit pour flâner dans les parcs ou profiter des commerces de première nécessité, cet emplacement offre tous les atouts d’un cadre de vie agréable et pratique. Ce terrain représente une véritable opportunité d’achat, ne laissez pas passer cette chance de concrétiser votre projet de vie. Contactez-nous pour plus d’informations et envisagez cette occasion exceptionnelle. À noter qu’en tant que constructeur, nous ne sommes pas mandatés pour réaliser la vente de ce terrain.
Changé
TERRAIN ET MAISONVENTE : maison T6 (98 m²) à ChangéIDÉALEMENT SITUÉE – MAISON 6 PIÈCES NEUVEÀ vendre : située à quelques kilomètres du Mans, idéalement située dans Changé (72560), Maine Construction Le Mans vous présente cette maison de 6 pièces de plain-pied de 98 m².Conçue de plain-pied, elle se divise en trois chambres, une cuisine et deux salles de bains. La maison est neuve.Le terrain du bien s’étend sur 1 085 m².Cette maison se situe dans un secteur prisé. L’École Élémentaire Publique de l’Epau, le Collège Jacques Peletier et l’École Maternelle Publique de l’Auneau sont implantés à moins de 10 minutes à pied. Côté transports en commun, on trouve quatre gares à moins de 10 minutes en voiture. Les autoroutes A28 et A11 sont accessibles à moins de 7 km. Il y a un tennis, quatre commerces, deux boulangeries, un supermarché, une boucherie-charcuterie et une supérette à quelques minutes à peine.Elle est proposée à l’achat pour 395 000 €.Contactez notre agence (François HOUDAYER : (Numéro supprimé)) pour obtenir de plus amples renseignements sur la maison et sur les démarches à suivre. Maine Construction Le Mans est là pour vous accompagner dans tous vos projets immobiliers.
Changé
TERRAIN ET MAISONVENTE : maison T4 (83 m²) à ChangéIDÉALEMENT SITUÉE – MAISON 4 PIÈCES NEUVEÀ quelques kilomètres du Mans, nous sommes heureux de vous présenter cette maison de 4 pièces de 83 m² et de 1 085 m² de terrain à vendre idéalement située dans Changé (72560).C’est une maison de 2 niveaux. Son intérieur offre trois chambres, une cuisine et une salle de bains. Cette maison est neuve.La maison est située dans un secteur recherché. L’École Élémentaire Publique de l’Epau, le Collège Jacques Peletier et l’École Maternelle Publique de l’Auneau se trouvent à moins de 10 minutes à pied. Côté transports en commun, il y a quatre gares à moins de 10 minutes en voiture. Les autoroutes A28 et A11 sont accessibles à moins de 7 km. On trouve un tennis, quatre commerces, deux boulangeries, un supermarché, un bureau de poste et une boucherie-charcuterie à proximité du bien.Son prix de vente est de 275 000 €.Contactez notre agence (François HOUDAYER : (Numéro supprimé)) pour tout renseignement sur la maison.
Changé
TERRAIN ET MAISONMaison de 5 pièces (77 m²) à vendre à ChangéIDÉALEMENT SITUÉE – MAISON 5 PIÈCES NEUVEÀ vendre : située à deux pas du Mans, Maine Construction Le Mans vous propose, idéalement située dans Changé (72560), cette maison de 5 pièces de plain-pied de 77 m² et de 1 085 m² de terrain.Elle comporte trois chambres, une cuisine et une salle de bains. Cette maison est neuve.Ce bien se trouve dans un quartier prisé. Il y a l’École Élémentaire Publique de l’Epau, le Collège Jacques Peletier et l’École Maternelle Publique de l’Auneau à moins de 10 minutes à pied. Côté transports en commun, on trouve quatre gares à moins de 10 minutes en voiture. Les autoroutes A28 et A11 sont accessibles à moins de 7 km. Il y a un tennis, quatre commerces, deux boulangeries, un supermarché, une supérette et un bureau de poste dans les environs.Il est à vendre pour la somme de 330 000 €.Contactez François HOUDAYER ((Numéro supprimé)) pour toute information sur la maison, sur les démarches à suivre ou sur les modalités de vente. Donnez vie à vos projets immobiliers avec Maine Construction Le Mans.
Changé
TERRAIN ET MAISONVENTE : maison de 4 pièces (69 m²) à ChangéIDÉALEMENT SITUÉE – MAISON 4 PIÈCES NEUVEEn vente : localisée à quelques kilomètres du Mans, Maine Construction Le Mans vous présente cette maison de 4 pièces de plain-pied de 69 m² et de 1 085 m² de terrain idéalement située dans Changé (72560).Conçue de plain-pied, elle dispose de trois chambres, d’une cuisine et d’une salle de bains. Cette maison est neuve.La maison se trouve dans un secteur attractif. L’École Élémentaire Publique de l’Epau, le Collège Jacques Peletier et l’École Maternelle Publique de l’Auneau sont implantés à moins de 10 minutes à pied. Côté transports, il y a quatre gares à moins de 10 minutes en voiture. Les autoroutes A28 et A11 sont accessibles à moins de 7 km. On trouve un tennis, quatre commerces, deux boulangeries, un supermarché, un bureau de poste et une boucherie-charcuterie à quelques minutes.Elle est à vendre pour la somme de 340 000 €.Prenez contact avec notre agence (HOUDAYER François : (Numéro supprimé)) pour obtenir de plus amples informations sur le bien.
Changé
TERRAIN ET MAISONVENTE : maison de 4 pièces (130 m²) à ChangéIDÉALEMENT SITUÉE – MAISON 4 PIÈCES NEUVEEn vente : située à quelques kilomètres du Mans, nous sommes heureux de vous proposer cette maison de 4 pièces de plain-pied de 130 m², idéalement située dans Changé (72560).Elle propose trois chambres, une cuisine et deux salles de bains. Cette maison est neuve.Le terrain de la propriété est de 1 085 m².Cette maison se situe dans un secteur prisé. L’École Élémentaire Publique de l’Epau, le Collège Jacques Peletier et l’École Maternelle Publique de l’Auneau sont implantés à moins de 10 minutes à pied. Niveau transports en commun, il y a quatre gares à moins de 10 minutes en voiture. Les autoroutes A28 et A11 sont accessibles à moins de 7 km. On trouve un tennis, quatre commerces, deux boulangeries, un supermarché, une boucherie-charcuterie et une supérette dans les environs.Elle est proposée à l’achat pour 445 000 €.Contactez notre agence (François HOUDAYER : (Numéro supprimé)) pour toute question sur la maison.
L’actualité immobilière à Champagné
27/11/2023
02/11/2023
30/10/2023
20/10/2023
16/10/2023
16/10/2023