Maison à construire à Courceboeufs (72290)
Images
Description
VENTE : maison de 7 pièces (150 m²) à Courceboeufs
PROCHE DU MANS - MAISON 7 PIÈCES NEUVE
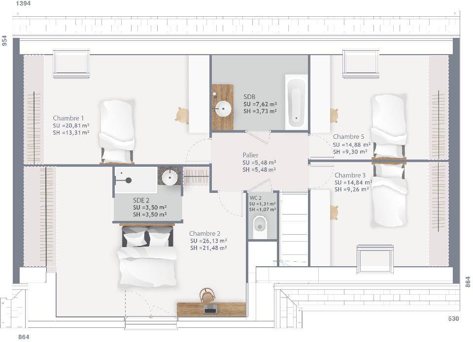
En vente : à deux pas du Mans, Maisons France Confort Saint-Saturnin vous propose cette maison de 7 pièces de 150 m² et de 744 m² de terrain à Courceboeufs (72290).
C'est une maison de 2 niveaux. Son intérieur dispose de cinq chambres, d'une cuisine et de deux salles de bains. La maison est neuve.
Une école primaire est implantée dans le quartier. Niveau transports, il y a quatre gares à moins de 10 minutes en voiture. L'autoroute A11 est accessible à 10 km.
Son prix de vente est de 304 100 €.
Contactez Elisa RODRIGUES MORAIS ((Numéro supprimé)) pour plus d'informations sur cette maison, sur les démarches à suivre ou sur les modalités de vente.
Logement susceptibles de vous intéresser
Nous vous proposons de découvrir aussi cette sélection de logements situés à moins de 10km de Courcebœufs et qui seraient susceptibles de vous intéresser.
Neuville-sur-Sarthe
TERRAINSitué dans un environnement calme et recherché de Neuville-sur-Sarthe, découvrez ce terrain à bâtir de 772 m², entièrement viabilisé (eau, électricité, télécom, assainissement) — idéal pour concrétiser rapidement votre projet de construction. Les atouts du terrain :Superficie : 772 m²Terrain plat, facile à aménagerEntièrement viabiliséEnvironnement résidentielAccès rapide aux axes principauxCadre de vie calme et verdoyantUn des derniers terrains disponibles sur ce secteur Avantage majeur : possibilité de vente en VEFACe terrain peut être proposé dans le cadre d’une Vente en l’État Futur d’Achèvement (VEFA), permettant :une sécurisation du projet,un délai de construction optimisé,une livraison rapide clé-en-main,une maîtrise totale du budget.Une solution idéale pour ceux qui souhaitent gagner du temps et bénéficier d’un projet encadré de A à Z. Localisation : Neuville-sur-SartheCommune dynamique et recherchée aux portes du Mans, offrant :proximité des commerces, écoles et services (10min à pied, 3min en voiture),accès rapide au Mans,cadre de vie agréable entre ville et nature. Contactez-moi dès maintenant pour obtenir le dossier complet, les plans possibles et étudier votre projet de construction.Une opportunité rare pour construire rapidement dans un secteur prisé !Cette annonce référence 314195 vous est présentée par votre agent commercial BSK Immobilier THIBAUT FLAHOU (EI) immatriculé au RSAC de LE MANS (72000) sous le numéro 5(Numéro supprimé)024.Prix du bien : 114 400,00 €Les honoraires d’agence sont à la charge du vendeur.Les informations sur les risques auxquels ce bien est exposé sont disponibles sur le site Géorisques : www.georisques.gouv.fr
Joué-l'Abbé
TERRAIN ET MAISONVENTE : maison de 5 pièces (96 m²) à Joué-l’AbbéIDÉALEMENT SITUÉE – MAISON 5 PIÈCES NEUVEÀ 14 km du Mans, à vendre idéalement située dans Joué-l’Abbé (72380), nous vous présentons cette maison de 5 pièces de 96 m² et de 826 m² de terrain. Elle dispose de quatre chambres, d’une cuisine et d’une salle de bains.Cette maison compte 2 niveaux. Elle est neuve.La maison est située dans un quartier prisé. L’École Primaire Publique Jacqueline Duhême se trouve à moins de 10 minutes à pied. Niveau transports en commun, il y a quatre gares à moins de 10 minutes en voiture. Les autoroutes A11 et A28 sont accessibles à moins de 10 km. On trouve un tennis à proximité.Elle est proposée à l’achat pour 240 000 €.Prenez contact avec Elisa RODRIGUES MORAIS (tél : (Numéro supprimé)) pour obtenir de plus amples informations sur la maison.
Joué-l'Abbé
TERRAIN ET MAISONVENTE : maison de 4 pièces (92 m²) à Joué-l’AbbéIDÉALEMENT SITUÉE – MAISON 4 PIÈCES NEUVEEn vente : à quelques kilomètres du Mans, idéalement située dans Joué-l’Abbé (72380), nous sommes heureux de vous présenter cette maison de 4 pièces de plain-pied de 92 m² et de 826 m² de terrain. Conçue de plain-pied, elle est composée de trois chambres, d’une cuisine et d’une salle de bains.Cette maison est neuve.La propriété se situe dans un quartier prisé. Il y a l’École Primaire Publique Jacqueline Duhême à moins de 10 minutes à pied. Niveau transports en commun, on trouve quatre gares à moins de 10 minutes en voiture. Les autoroutes A11 et A28 sont accessibles à moins de 10 km. Il y a un tennis dans les environs.Elle est proposée à l’achat pour 237 000 €.Contactez notre agence (RODRIGUES MORAIS Elisa : (Numéro supprimé)) pour plus de renseignements sur la maison ou sur les démarches à suivre. Faites de vos projets immobiliers une réalité avec Maisons France Confort Alençon.
Joué-l'Abbé
TERRAINTerrain de 826 m² en vente à Joué-l’AbbéIDÉALEMENT SITUÉ – VUE SANS VIS-À-VISÀ Joué-l’Abbé (72380) à vendre à 14 km du Mans, donnez vie à votre résidence principale ou secondaire sur ce terrain de 826 m². Ce terrain, exposé plein sud-ouest, profite d’une vue sans vis-à-vis. Il se situe dans un secteur attractif. Il y a l’École Primaire Publique Jacqueline Duhême à moins de 10 minutes à pied. Côté transports en commun, on trouve quatre gares à moins de 10 minutes en voiture. Les autoroutes A11 et A28 sont accessibles à moins de 10 km. Il y a un tennis à proximité.Ce terrain est à vendre pour la somme de 70 210 €. N’hésitez pas à prendre contact avec notre agence (RODRIGUES MORAIS Elisa : (Numéro supprimé)) pour toute question sur ce terrain.
Sainte-Jamme-sur-Sarthe
TERRAIN ET MAISONNous vous proposons cette maison neuve, baptisée « »Graphite » », un modèle à étage qui combine habilement espace et élégance. Avec une surface habitable de 99 m², cette maison est conçue pour répondre aux besoins de confort et de fonctionnalité de ses résidents. Elle se distingue par son architecture soignée, offrant une avancée de façade avec un pignon qui lui confère une originalité remarquable tout en préservant un style traditionnel.La « »Graphite » » est composée de 4 chambres réparties intelligemment pour garantir l’intimité de chacun, et de 4 pièces conçues pour maximiser l’espace de vie commun. La dalle de l’étage en béton assure une solidité et une isolation phonique de qualité, tandis que les combles aménagés offrent un espace supplémentaire, idéal pour une salle de jeux, un bureau ou une chambre d’amis.La suite parentale, située au rez-de-chaussée, est pensée pour offrir un espace privé et confortable aux parents, avec un accès direct à la salle de bain et au dressing. Le garage accolé à la maison est un atout supplémentaire, offrant un espace de rangement pratique ou un abri sécurisé pour votre véhicule.Parmi les options les plus plébiscitées par nos clients, la « »Graphite » » peut être personnalisée avec des lucarnes, apportant plus de lumière et d’espace à l’étage, et des baies coulissantes, pour une ouverture élégante sur l’extérieur et une luminosité accrue dans les pièces de vie.Cette maison neuve est également conçue pour être basse consommation, conformément à la réglementation environnementale RE2020. Cela signifie que vous bénéficierez non seulement d’un confort optimal été comme hiver, mais aussi d’une réduction significative de vos factures énergétiques.Choisir la maison « »Graphite » », c’est opter pour une habitation qui allie esthétique, confort et respect de l’environnement. Une maison où il fera bon vivre, conçue pour s’adapter à votre mode de vie et à vos envies.
Sainte-Jamme-sur-Sarthe
TERRAINDécouvrez ce terrain exceptionnel de 824 m², situé dans la charmante commune de Joué-l’Abbé, au cœur du département de la Sarthe. Ce bien, viabilisé, offre une opportunité rare pour la réalisation de votre projet de construction de maison. Profitez du cadre ensoleillé et de la qualité de vie inégalée qui caractérisent cette région attrayante, idéale pour accueillir votre future habitation. Joué-l’Abbé dispose d’un environnement paisible, tout en étant proche des commodités essentielles. Située dans la région des Pays de la Loire, cette ville dynamique bénéficie d’une accessibilité aisée aux principales attractions locales. Ses infrastructures scolaires, commerces et espaces verts en font un lieu de vie agréable et pratique. De plus, la proximité avec de charmants villages et les paysages pittoresques de la Sarthe enrichissent le cadre de vie et offrent de nombreuses options de loisirs à explorer. Ne manquez pas l’opportunité de donner vie à votre projet dans ce cadre enchanteur. Ce terrain démocratise la construction de la maison de vos rêves dans une localisation prometteuse. À noter qu’en tant que constructeur, nous ne sommes pas mandatés pour réaliser la vente de ce terrain.
Joué-l'Abbé
TERRAIN ET MAISONVENTE : maison T3 (69 m²) à Joué-l’AbbéIDÉALEMENT SITUÉE – MAISON 3 PIÈCES NEUVEEn vente : située à deux pas du Mans, nous vous présentons, idéalement située dans Joué-l’Abbé (72380), cette maison de 3 pièces de plain-pied de 69 m².Son intérieur est composé de deux chambres, d’une cuisine et d’une salle de bains. Cette maison est neuve.Le terrain du bien est de 826 m².La maison se situe dans un quartier prisé. L’École Primaire Publique Jacqueline Duhême est implantée à moins de 10 minutes à pied. Niveau transports en commun, il y a quatre gares à moins de 10 minutes en voiture. Les autoroutes A11 et A28 sont accessibles à moins de 10 km. On trouve un tennis à quelques minutes du logement.Elle est proposée à l’achat pour 199 000 €.Contactez notre agence (RODRIGUES MORAIS Elisa : (Numéro supprimé)) pour obtenir de plus amples informations sur la maison ou sur les démarches à suivre. Concrétisez vos projets immobiliers avec Maisons France Confort Alençon.
Joué-l'Abbé
TERRAIN ET MAISONJoué-l’Abbé : maison T5 (90 m²) en venteIDÉALEMENT SITUÉE – MAISON 5 PIÈCES NEUVEEn vente à 14 km du Mans, nous sommes heureux de vous proposer cette maison de 5 pièces de 90 m² et de 826 m² de terrain idéalement située dans Joué-l’Abbé (72380).Cette maison comporte 2 niveaux. Son intérieur inclut trois chambres, une cuisine et une salle de bains. Cette maison est neuve.La maison se situe dans un quartier prisé. L’École Primaire Publique Jacqueline Duhême se trouve à moins de 10 minutes à pied. Côté transports, il y a quatre gares à moins de 10 minutes en voiture. Les autoroutes A11 et A28 sont accessibles à moins de 10 km. On trouve un tennis à proximité du logement.Elle est à vendre pour la somme de 250 000 €.Prenez contact avec notre agence (Elisa RODRIGUES MORAIS : (Numéro supprimé)) pour plus d’informations sur la maison ou sur les démarches à suivre. Maisons France Confort Alençon vous accompagne à toutes les étapes de l’achat et dans tous vos projets immobiliers.
Joué-l'Abbé
TERRAIN ET MAISONVENTE : maison F5 (110 m²) à Joué-l’AbbéIDÉALEMENT SITUÉE – MAISON 5 PIÈCES NEUVEÀ deux pas du Mans, nous sommes ravis de vous présenter en vente, idéalement située dans Joué-l’Abbé (72380), cette maison de 5 pièces de plain-pied de 110 m².Elle offre quatre chambres, une cuisine et deux salles de bains. La maison est neuve.Le terrain du bien est de 826 m².Le bien se situe dans un quartier attractif. L’École Primaire Publique Jacqueline Duhême se trouve à moins de 10 minutes à pied. Côté transports en commun, il y a quatre gares à moins de 10 minutes en voiture. Les autoroutes A11 et A28 sont accessibles à moins de 10 km. On trouve un tennis à proximité.Il est à vendre pour la somme de 256 000 €.Prenez contact avec notre agence (Elisa RODRIGUES MORAIS : (Numéro supprimé)) pour toute question sur la maison ou sur les démarches à suivre. Concrétisez vos projets immobiliers avec Maisons France Confort Alençon.
L’actualité immobilière à Courcebœufs
27/11/2023
02/11/2023
30/10/2023
20/10/2023
16/10/2023
16/10/2023