Maison à construire à Courceboeufs (72290)
Images
Description
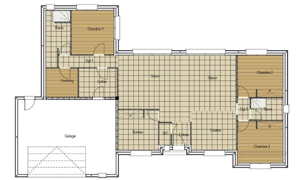
Courceboeufs : maison T6 (128 m²) en vente
IDÉALEMENT SITUÉE - MAISON 6 PIÈCES NEUVE
À vendre : à deux pas du Mans, Maine Construction Le Mans vous propose cette maison de 6 pièces de plain-pied de 128 m², idéalement située dans Courceboeufs (72290).
Son intérieur inclut trois chambres, une cuisine et deux salles de bains. Cette maison est neuve.
Le terrain de la propriété est de 467 m².
La maison se situe dans un quartier recherché. Une école primaire y est implantée. Niveau transports, on trouve quatre gares à moins de 10 minutes en voiture. Il y a un accès à l'autoroute A11 à 10 km.
Son prix de vente est de 315 000 €.
Contactez notre agence (François HOUDAYER : (Numéro supprimé)) pour tout renseignement sur la maison, sur les modalités de vente ou sur les démarches à suivre. Maine Construction Le Mans vous accompagne à toutes les étapes de l'achat et dans tous vos projets immobiliers.
Logement susceptibles de vous intéresser
Nous vous proposons de découvrir aussi cette sélection de logements situés à moins de 10km de Courcebœufs et qui seraient susceptibles de vous intéresser.
Neuville-sur-Sarthe
TERRAINÀ vendre : terrain de 450 m², entièrement viabilisé, idéal pour la construction de votre future maison. Situé à Neuville-sur-Sarthe, ce terrain plat offre un cadre de vie exceptionnel au cœur d’une ville en pleine expansion. Profitez d’un environnement calme et privilégié, parfait pour les familles et les investisseurs en quête d’une opportunité rare. Neuville-sur-Sarthe, située dans le département de la Sarthe en Pays de la Loire, se distingue par sa qualité de vie et ses commodités. Vous serez proche du centre-ville, bénéficiant d’écoles à proximité, ainsi que d’un collège et d’un lycée. La ville offre un cadre verdoyant et accueillant, avec de nombreuses attractions locales qui ajoutent à son attrait. À seulement quelques kilomètres de la ville d’Le Mans, ce terrain dispose d’une situation géographique idéale qui allie tranquillité et accessibilité. Ne manquez pas cette occasion unique d’investir dans un terrain au potentiel exceptionnel. Contactez-nous dès maintenant pour découvrir ce bien rare sur le marché. À noter qu’en tant que constructeur, nous ne sommes pas mandatés pour réaliser la vente de ce terrain.
Neuville-sur-Sarthe
TERRAIN ET MAISONSur ce terrain, nous vous proposons cette maison neuve : la Conception, un modèle exclusif signé Maisons Conceot, constructeur reconnu pour offrir le meilleur rapport qualité/prix du marché.Cette maison contemporaine à étage, d’une superficie de 95 m², allie lignes traditionnelles et touches de design moderne pour créer une esthétique épurée et captivante. La Conception se distingue par son architecture compacte et son garage accolé à toit plat, permettant une intégration harmonieuse dans son environnement.À l’intérieur, la Conception est pensée pour le confort et la fonctionnalité. Elle comprend 3 chambres spacieuses ainsi qu’une vaste pièce de vie ouverte, parfaite pour partager des moments conviviaux en famille ou entre amis. La dalle béton à l’étage assure une isolation phonique et thermique optimale, renforçant le confort au quotidien.Cette maison neuve est conforme à la norme RE2020, garantissant une faible consommation énergétique et le respect des réglementations environnementales les plus récentes. Les options les plus plébiscitées, comme la domotique ou les menuiseries aluminium, sont également disponibles afin de personnaliser votre future maison selon vos envies.Optez pour la Conception et découvrez une maison où chaque détail a été soigneusement pensé pour offrir une expérience de vie harmonieuse et moderne. Ne manquez pas cette opportunité unique de devenir propriétaire d’une maison alliant élégance, praticité et performance énergétique.
Courcebœufs
TERRAIN ET MAISONNous vous proposons cette maison neuve, baptisée « »Saphir » », un modèle de notre gamme Primaciel conçu pour être accessible au plus grand nombre et idéal pour une première acquisition. De plain-pied, cette maison à prix maîtrisé bénéficie d’un aménagement optimisé avec son garage intégré, offrant un confort de vie inégalé sur une surface de 94 m².La « »Saphir » » se distingue par ses 3 chambres spacieuses et son agencement fonctionnel comprenant au total 4 pièces, conçues pour répondre aux besoins de la vie moderne. Les combles perdus, caractéristique principale de ce modèle, assurent une isolation optimale, tandis que le garage intégré apporte une valeur ajoutée indéniable en termes de praticité et de sécurité.Parmi les options les plus plébiscitées par nos clients, les combles aménagés se présentent comme une solution idéale pour ceux désirant maximiser l’espace habitable. Cette option, tout comme d’autres, peut être envisagée pour personnaliser votre maison selon vos besoins et vos envies.Cette maison neuve se distingue également par sa performance énergétique, étant basse consommation et conforme à la réglementation environnementale RE2020. Ce critère essentiel garantit non seulement un respect de l’environnement mais aussi une réduction significative de vos factures énergétiques, faisant de la « »Saphir » » un investissement durable pour votre avenir.En choisissant la « »Saphir » », vous optez pour une maison qui allie confort, fonctionnalité et respect de l’environnement, le tout dans un cadre de vie agréable et économiquement avantageux. Ne manquez pas l’opportunité de construire la maison de vos rêves, une maison qui répond à toutes vos attentes et plus encore.
Beaufay
TERRAINVoici une opportunité exceptionnelle d’acquérir un terrain viabilisé de 24 m², idéalement situé à Beaufay, dans le département de la Sarthe. Ce terrain plat est prêt à accueillir votre projet de construction de maison, offrant un cadre de vie privilégié dans un quartier recherché et calme. Profitez d’une qualité de vie inégalée dans cette ville dynamique, où chaque détail a été pensé pour garantir confort et tranquillité. Beaufay, un véritable joyau du Pays de la Loire, se distingue par ses attractivités locales et ses commodités à proximité. Avec un cœur de ville vibrant, vous trouverez toutes les structures nécessaires au quotidien, ainsi que des espaces de loisirs et de détente. Les attractions locales vous permettront de savourer pleinement la quiétude de la nature environnante tout en bénéficiant des avantages d’une vie citadine. Ce terrain représente une opportunité rare dans un secteur en pleine expansion, où le potentiel de développement est indéniable. Ne laissez pas passer cette occasion unique de construire la maison de vos rêves dans un cadre enchanteur. Pour toute demande d’information complémentaire, nous vous invitons à nous contacter. À noter qu’en tant que constructeur, nous ne sommes pas mandatés pour réaliser la vente de ce terrain.
Courcebœufs
TERRAINNous vous proposons aujourd’hui un terrain exceptionnel à vendre, d’une surface de 580 m², viabilisé et parfaitement adapté pour un projet de construction de maison. Situé dans la charmante commune de Courcebœufs, ce terrain se distingue par son quartier privilégié offrant un cadre de vie agréable et paisible. Son exposition plane et son environnement calme font de cet emplacement une opportunité rare pour réaliser la maison de vos rêves. Courcebœufs, située dans le département de la Sarthe en région Pays de la Loire, bénéficie d’un positionnement stratégique au cœur de la ville. La commune se distingue par sa proximité avec de nombreux commerces, services et attractions locales, créant une atmosphère conviviale et dynamique. En choisissant ce terrain, vous pourrez profiter d’un cadre de vie agréable tout en restant à proximité des commodités essentielles. Ne manquez pas cette chance unique de devenir propriétaire d’un terrain au potentiel immense?! Ce terrain offre une opportunité à ne pas rater pour tous les acheteurs en quête d’un lieu idéal pour édifier leur future maison. N’attendez plus pour envisager cette belle acquisition?! À noter qu’en tant que constructeur, nous ne sommes pas mandatés pour réaliser la vente de ce terrain.
Beaufay
TERRAIN ET MAISONNous vous proposons cette maison neuve, baptisée « »Saphir » », un modèle de notre gamme Primaciel conçu pour être accessible au plus grand nombre et idéal pour une première acquisition. De plain-pied, cette maison à prix maîtrisé bénéficie d’un aménagement optimisé avec son garage intégré, offrant un confort de vie inégalé sur une surface de 94 m².La « »Saphir » » se distingue par ses 3 chambres spacieuses et son agencement fonctionnel comprenant au total 4 pièces, conçues pour répondre aux besoins de la vie moderne. Les combles perdus, caractéristique principale de ce modèle, assurent une isolation optimale, tandis que le garage intégré apporte une valeur ajoutée indéniable en termes de praticité et de sécurité.Parmi les options les plus plébiscitées par nos clients, les combles aménagés se présentent comme une solution idéale pour ceux désirant maximiser l’espace habitable. Cette option, tout comme d’autres, peut être envisagée pour personnaliser votre maison selon vos besoins et vos envies.Cette maison neuve se distingue également par sa performance énergétique, étant basse consommation et conforme à la réglementation environnementale RE2020. Ce critère essentiel garantit non seulement un respect de l’environnement mais aussi une réduction significative de vos factures énergétiques, faisant de la « »Saphir » » un investissement durable pour votre avenir.En choisissant la « »Saphir » », vous optez pour une maison qui allie confort, fonctionnalité et respect de l’environnement, le tout dans un cadre de vie agréable et économiquement avantageux. Ne manquez pas l’opportunité de construire la maison de vos rêves, une maison qui répond à toutes vos attentes et plus encore.
Neuville-sur-Sarthe
TERRAINNous vous présentons un terrain exceptionnel à vendre, d’une superficie de 425 m², idéal pour la réalisation de votre projet de construction de maison. Situé dans la charmante ville de Neuville-sur-Sarthe, ce terrain viabilisé bénéficie d’une situation privilégiée et d’un accès direct aux commodités locales. En choisissant cet emplacement, vous aurez l’opportunité de bâtir la maison de vos rêves dans un quartier recherché, assorti d’un prix attractif et d’un emplacement top. Neuville-sur-Sarthe, dans le département de la Sarthe, est une ville dynamique qui saura vous séduire par son cadre de vie agréable. À proximité, vous trouverez une multitude de commerces, de services et d’activités de loisirs. Les habitants apprécient le cœur de ville où se mêlent animations locales et tranquillité, ainsi que les attractions régionales qui font de cette localisation un lieu de vie unique et remarquable. Que vous soyez passionné par la nature, la culture ou simplement en quête de confort, cette ville a tout pour plaire. Ne manquez pas cette opportunité rare d’acquérir un terrain avec un potentiel incroyable et envisagez dès à présent la construction de votre future maison dans ce cadre enchanteur. À noter qu’en tant que constructeur, nous ne sommes pas mandatés pour réaliser la vente de ce terrain.
Neuville-sur-Sarthe
TERRAIN ET MAISONSur ce terrain, nous vous proposons cette maison neuve : la Conception, un modèle exclusif signé Maisons Concept, constructeur reconnu pour offrir le meilleur rapport qualité/prix du marché.Cette maison contemporaine à étage, d’une superficie de 110 m², allie lignes traditionnelles et touches de design moderne pour une esthétique épurée et captivante. La Conception se distingue par son architecture compacte et son garage accolé à toit plat, garantissant une intégration harmonieuse dans son environnement.À l’intérieur, la Conception est pensée pour le confort et la fonctionnalité. Elle offre 4 chambres spacieuses dont une suite parentale, ainsi qu’une vaste pièce de vie ouverte, idéale pour partager des moments conviviaux en famille ou entre amis. La dalle béton à l’étage assure une isolation phonique et thermique optimale, renforçant le confort au quotidien.Cette maison neuve est conforme à la norme RE2020, gage de basse consommation énergétique et de respect des exigences environnementales les plus récentes. Les options les plus plébiscitées, telles que la domotique ou les menuiseries aluminium, sont disponibles afin de personnaliser votre future maison selon vos envies.Optez pour la Conception et découvrez une maison où chaque détail est pensé pour offrir une expérience de vie harmonieuse et moderne. Ne manquez pas cette opportunité unique de devenir propriétaire d’un modèle alliant élégance, praticité et performance énergétique.
Neuville-sur-Sarthe
TERRAINSitué dans un environnement calme et recherché de Neuville-sur-Sarthe, découvrez ce terrain à bâtir de 772 m², entièrement viabilisé (eau, électricité, télécom, assainissement) — idéal pour concrétiser rapidement votre projet de construction. Les atouts du terrain :Superficie : 772 m²Terrain plat, facile à aménagerEntièrement viabiliséEnvironnement résidentielAccès rapide aux axes principauxCadre de vie calme et verdoyantUn des derniers terrains disponibles sur ce secteur Avantage majeur : possibilité de vente en VEFACe terrain peut être proposé dans le cadre d’une Vente en l’État Futur d’Achèvement (VEFA), permettant :une sécurisation du projet,un délai de construction optimisé,une livraison rapide clé-en-main,une maîtrise totale du budget.Une solution idéale pour ceux qui souhaitent gagner du temps et bénéficier d’un projet encadré de A à Z. Localisation : Neuville-sur-SartheCommune dynamique et recherchée aux portes du Mans, offrant :proximité des commerces, écoles et services (10min à pied, 3min en voiture),accès rapide au Mans,cadre de vie agréable entre ville et nature. Contactez-moi dès maintenant pour obtenir le dossier complet, les plans possibles et étudier votre projet de construction.Une opportunité rare pour construire rapidement dans un secteur prisé !Cette annonce référence 314195 vous est présentée par votre agent commercial BSK Immobilier THIBAUT FLAHOU (EI) immatriculé au RSAC de LE MANS (72000) sous le numéro 5(Numéro supprimé)024.Prix du bien : 114 400,00 €Les honoraires d’agence sont à la charge du vendeur.Les informations sur les risques auxquels ce bien est exposé sont disponibles sur le site Géorisques : www.georisques.gouv.fr
L’actualité immobilière à Courcebœufs
27/11/2023
02/11/2023
30/10/2023
20/10/2023
16/10/2023
16/10/2023