Maison à construire à La Hutte (72130)
Images
Description
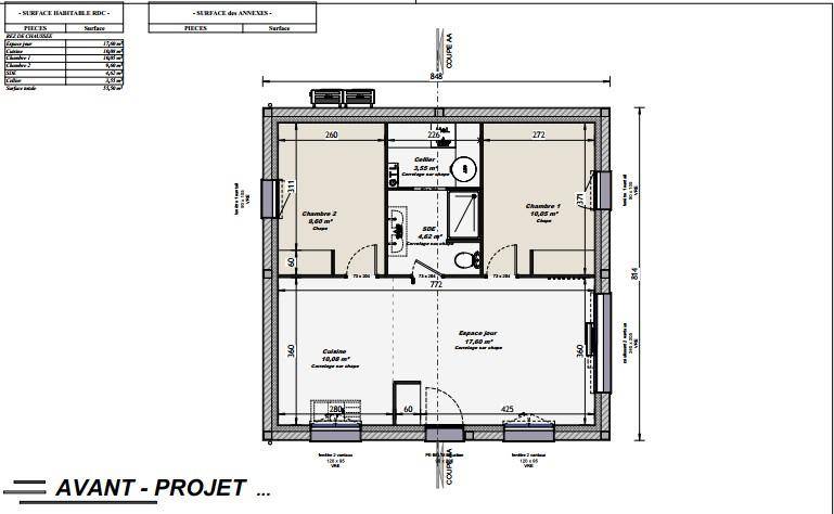
VENTE : maison T3 (55 m²) à 5 minutes de LA HUTTE
IDÉALEMENT SITUÉE - MAISON 3 PIÈCES NEUVE
À quelques kilomètres d'Alençon, votre agence Maisons France Confort Saint-Saturnin est heureuse de vous présenter cette maison de 3 pièces de plain-pied de 55 m² idéalement située à 5 minutes de LA HUTTE (72). Son intérieur inclut deux chambres, une cuisine et une salle de bains.
Le terrain de la propriété est de 1 108 m².
Cette maison est neuve.
Cette maison est située dans un secteur attractif. Une école primaire y est implantée. Côté transports en commun, il y a les gares Vivoin-Beaumont et La Hutte Coulombiers à moins de 10 minutes en voiture. L'autoroute A28 est accessible à 6 km.
Elle est à vendre pour la somme de 134 850 €.
N'hésitez pas à prendre contact avec Elisa RODRIGUES MORAIS ((Numéro supprimé)) pour obtenir de plus amples informations sur le bien. Donnez vie à vos projets immobiliers avec Maisons France Confort Saint-Saturnin.
Logement susceptibles de vous intéresser
Nous vous proposons de découvrir aussi cette sélection de logements situés à moins de 10km de Fresnay-sur-Sarthe et qui seraient susceptibles de vous intéresser.
Saint-Ouen-de-Mimbré
TERRAIN ET MAISONMaison de 5 pièces (100 m²) à vendre à Saint-Ouen-de-MimbréEMPLACEMENT PRIVILÉGIÉ – MAISON 5 PIÈCES NEUVEÀ vendre à 16 km d’Alençon, Maisons France Confort Saint-Saturnin vous propose, bénéficiant d’un emplacement privilégié dans Saint-Ouen-de-Mimbré (72130), cette maison de 5 pièces de 100 m².C’est une maison de 2 niveaux. Elle se divise en trois chambres, une cuisine et une salle de bains. Cette maison est neuve.Le terrain de la propriété est de 857 m².La maison est située dans un quartier attractif. Une école primaire y est implantée. Côté transports en commun, on trouve les gares La Hutte Coulombiers et Vivoin-Beaumont à moins de 10 minutes en voiture. L’autoroute A28 est accessible à 7 km.Elle est à vendre pour la somme de 216 000 €.Prenez contact avec Elisa RODRIGUES MORAIS ((Numéro supprimé)) pour tout renseignement sur le bien, sur les démarches à suivre ou sur les modalités de vente.
Fyé
TERRAIN ET MAISONVENTE : maison de 3 pièces (55 m²) à 6 minutes de FYEIDÉALEMENT SITUÉE – MAISON 3 PIÈCES NEUVEEn vente à 16 km d’Alençon, notre agence Maisons France Confort Alençon est ravie de vous proposer cette maison de 3 pièces de plain-pied de 55 m² et de 652 m² de terrain idéalement située à 6 minutes de FYE.Conçue de plain-pied, elle offre deux chambres, une cuisine et une salle de bains. La maison est neuve.La maison se situe dans un quartier convoité. Une école primaire y est implantée. Niveau transports en commun, on trouve deux gares (La Hutte Coulombiers et Vivoin-Beaumont) à moins de 10 minutes en voiture. Il y a un accès à l’autoroute A28 à 7 km.Elle est à vendre pour la somme de 127 100 €.Contactez notre agence (RODRIGUES MORAIS Elisa : (Numéro supprimé)) pour obtenir de plus amples renseignements sur la maison, sur les modalités de vente ou sur les démarches à suivre.
Saint-Aubin-de-Locquenay
TERRAIN ET MAISONVENTE d’une maison T6 (125 m²) à 5 minutes de Saint Aubin du LocquenayIDÉALEMENT SITUÉE – MAISON 6 PIÈCES NEUVEEn vente : à deux pas d’Alençon, idéalement située à 5 minutes de Saint Aubin du Locquenay, Maisons France Confort Alençon vous présente cette maison de 6 pièces de 125 m². Elle est composée de quatre chambres, d’une cuisine et de deux salles de bains.Le terrain de la maison s’étend sur 585 m².Cette maison possède 2 niveaux. Elle est neuve.Cette maison se trouve dans un quartier convoité. On y trouve une école primaire. Côté transports en commun, il y a deux gares (La Hutte Coulombiers et Vivoin-Beaumont) à moins de 10 minutes en voiture. L’autoroute A28 est accessible à 7 km.Son prix de vente est de 260 000 €.Contactez Elisa RODRIGUES MORAIS (tél : (Numéro supprimé)) pour plus d’informations sur la maison, sur les démarches à suivre ou sur les modalités de vente. Concrétisez vos projets immobiliers avec Maisons France Confort Alençon.
Assé-le-Boisne
TERRAIN ET MAISONMaison de 5 pièces (101 m²) en vente à 7 minutes de Assé le Boisne IDÉALEMENT SITUÉE – MAISON 5 PIÈCES NEUVEÀ vendre : à deux pas d’Alençon, nous sommes ravis de vous présenter cette maison de 5 pièces de plain-pied de 101 m² idéalement située à quelques kilomètres de Assé le Boisne.Conçue de plain-pied, elle dispose de quatre chambres, d’une cuisine et d’une salle de bains. Cette maison est neuve.Le terrain du bien s’étend sur 588 m².La maison se situe dans un secteur recherché. Une école primaire y est implantée. Niveau transports en commun, on trouve les gares La Hutte Coulombiers et Vivoin-Beaumont à moins de 10 minutes en voiture. L’autoroute A28 est accessible à 7 km.Elle est proposée à l’achat pour 187 400 €.Prenez contact avec notre agence (Elisa RODRIGUES MORAIS : (Numéro supprimé)) pour tout renseignement sur la maison, sur les démarches à suivre ou sur les modalités de vente. Donnez vie à vos projets immobiliers avec Maisons France Confort Alençon.
Fresnay-sur-Sarthe
TERRAIN ET MAISONVENTE d’une maison T5 (90 m²) à 10 minutes de COULOMBIERSIDÉALEMENT SITUÉE – MAISON 5 PIÈCES NEUVEEn vente : localisée à 16 km d’Alençon, Maisons France Confort Alençon vous propose, idéalement située à 10 minutes de COULOMBIERS , cette maison de 5 pièces de plain-pied de 90 m² et de 721 m² de terrain.Conçue de plain-pied, elle propose trois chambres, une cuisine et une salle de bains. Cette maison est neuve.La maison est située dans un quartier convoité. On y trouve une école primaire. Niveau transports, on trouve deux gares (La Hutte Coulombiers et Vivoin-Beaumont) à moins de 10 minutes en voiture. L’autoroute A28 est accessible à 7 km.Elle est proposée à l’achat pour 199 700 €.Contactez notre agence (Elisa RODRIGUES MORAIS : (Numéro supprimé)) pour toute information sur la propriété, sur les modalités de vente ou sur les démarches à suivre. Faites de vos projets immobiliers une réalité avec Maisons France Confort Alençon.
Fresnay-sur-Sarthe
TERRAIN ET MAISONVENTE d’une maison de 3 pièces (55 m²) à 10 minutes de COULOMBIERSIDÉALEMENT SITUÉE – MAISON 3 PIÈCES NEUVEEn vente à 16 km d’Alençon, idéalement située à 10 minutes de COULOMBIERS, nous vous présentons cette maison de 3 pièces de plain-pied de 55 m² et de 721 m² de terrain. Son intérieur dispose de deux chambres, d’une cuisine et d’une salle de bains.Cette maison est neuve.Ce bien est situé dans un quartier convoité. Une école primaire y est implantée. Côté transports en commun, il y a deux gares (La Hutte Coulombiers et Vivoin-Beaumont) à moins de 10 minutes en voiture. On trouve un accès à l’autoroute A28 à 7 km.Il est à vendre pour la somme de 129 400 €.Contactez notre agence (Elisa RODRIGUES MORAIS : (Numéro supprimé)) pour toute question sur la maison. Maisons France Confort Alençon est là pour vous accompagner à toutes les étapes de votre projet.
Fresnay-sur-Sarthe
TERRAIN ET MAISONVENTE d’une maison F3 (55 m²) à 5 minutes de la HutteIDÉALEMENT SITUÉE – MAISON 3 PIÈCES NEUVEÀ deux pas d’Alençon, notre agence Maisons France Confort Alençon est ravie de vous proposer cette maison de 3 pièces de plain-pied de 55 m² en vente, idéalement située à quelques kilomètres de la Hutte. Elle comporte deux chambres, une cuisine et une salle de bains.Le terrain de la propriété s’étend sur 480 m².La maison est neuve.Cette maison est située dans un secteur recherché. Une école primaire y est implantée. Niveau transports, on trouve les gares La Hutte Coulombiers et Vivoin-Beaumont à moins de 10 minutes en voiture. L’autoroute A28 est accessible à 7 km.Elle est à vendre pour la somme de 121 440 €.Contactez Elisa RODRIGUES MORAIS (tél : (Numéro supprimé)) pour tout renseignement sur la maison, sur les démarches à suivre ou sur les modalités de vente. Faites de vos projets immobiliers une réalité avec Maisons France Confort Alençon.
Fresnay-sur-Sarthe
TERRAIN ET MAISONProche de Fresnay sur Sarthe : maison F5 (85 m²) en venteIDÉALEMENT SITUÉE – MAISON 5 PIÈCES NEUVEÀ quelques kilomètres d’Alençon, à vendre idéalement située à 2 minutes de Fresnay sur Sarthe, découvrez cette maison de 5 pièces de plain-pied de 85 m².Son intérieur est composé de trois chambres, d’une cuisine et d’une salle de bains. Cette maison est neuve.Le terrain du bien s’étend sur 751 m².La maison se situe dans un quartier recherché. On y trouve une école primaire. Côté transports, on trouve deux gares (La Hutte Coulombiers et Vivoin-Beaumont) à moins de 10 minutes en voiture. L’autoroute A28 est accessible à 7 km.Son prix de vente est de 181 500 €.Contactez Elisa RODRIGUES MORAIS ((Numéro supprimé)) pour tout renseignement sur la maison. Maisons France Confort Alençon vous accompagne dans toutes vos démarches et à toutes les étapes de l’achat.
Fyé
TERRAIN ET MAISONVENTE : maison T5 (98 m²) à 6 minutes de FYEIDÉALEMENT SITUÉE – MAISON 5 PIÈCES NEUVEEn vente : à 16 km d’Alençon, venez découvrir cette maison de 5 pièces de 98 m² et de 652 m² de terrain idéalement située à 6 minutes de FYECette maison compte 2 niveaux. Elle dispose de quatre chambres, d’une cuisine et d’une salle de bains. Cette maison est neuve.La maison est située dans un secteur prisé. On y trouve une école primaire. Niveau transports en commun, il y a les gares La Hutte Coulombiers et Vivoin-Beaumont à moins de 10 minutes en voiture. Il y a un accès à l’autoroute A28 à 7 km.Elle est à vendre pour la somme de 195 500 €.N’hésitez pas à prendre contact avec notre agence (Elisa RODRIGUES MORAIS : (Numéro supprimé)) pour toute information sur la maison ou sur les modalités de vente. Faites de vos projets immobiliers une réalité avec Maisons France Confort Alençon.
L’actualité immobilière à Fresnay-sur-Sarthe
27/11/2023
02/11/2023
30/10/2023
20/10/2023
16/10/2023
16/10/2023