Maison à construire à La Bazoge (72650)
Images
Description
Maison T5 (113 m²) en vente à La Bazoge
IDÉALEMENT SITUÉE - MAISON 5 PIÈCES NEUVE
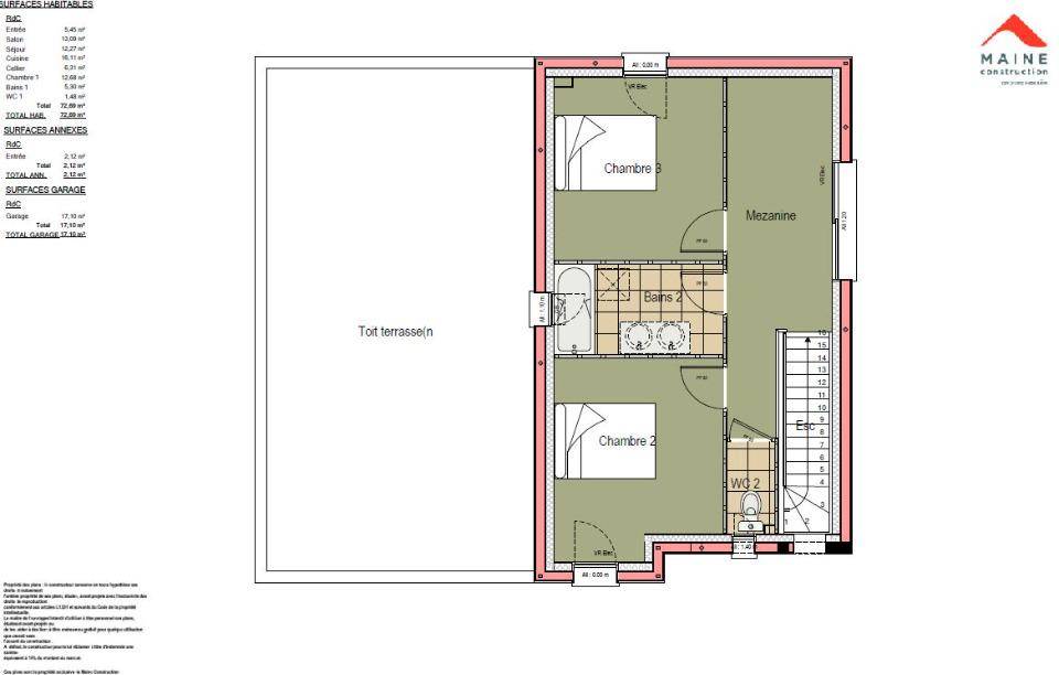
À deux pas du Mans, votre agence Maine Construction Le Mans est ravie de vous présenter cette maison de 5 pièces de 113 m² idéalement située dans La Bazoge (72650).
Il s'agit d'une maison de 2 niveaux. Elle inclut trois chambres, une cuisine et deux salles de bains. La maison est neuve.
Le terrain du bien est de 444 m².
La maison est située dans un quartier recherché. L'École Élémentaire Publique Jean Monnet et l'École Maternelle Publique Henri Matisse sont implantées à moins de 10 minutes à pied. Niveau transports, on trouve cinq gares à moins de 10 minutes en voiture. L'autoroute A11 est accessible à 5 km. Il y a deux tennis, une bibliothèque, deux boulangeries et deux commerces dans les environs.
Elle est à vendre pour la somme de 312 000 €.
Contactez notre agence (HOUDAYER François : (Numéro supprimé)) pour obtenir de plus amples renseignements sur la propriété et sur les modalités de vente. Maine Construction Le Mans vous accompagne à toutes les étapes de votre projet et dans toutes vos démarches.
Logement susceptibles de vous intéresser
Nous vous proposons de découvrir aussi cette sélection de logements situés à moins de 10km de La Bazoge et qui seraient susceptibles de vous intéresser.
Joué-l'Abbé
TERRAINTerrain de 826 m² en vente à Joué-l’AbbéIDÉALEMENT SITUÉ – VUE SANS VIS-À-VISÀ Joué-l’Abbé (72380) à vendre à 14 km du Mans, donnez vie à votre résidence principale ou secondaire sur ce terrain de 826 m². Ce terrain, exposé plein sud-ouest, profite d’une vue sans vis-à-vis. Il se situe dans un secteur attractif. Il y a l’École Primaire Publique Jacqueline Duhême à moins de 10 minutes à pied. Côté transports en commun, on trouve quatre gares à moins de 10 minutes en voiture. Les autoroutes A11 et A28 sont accessibles à moins de 10 km. Il y a un tennis à proximité.Ce terrain est à vendre pour la somme de 70 210 €. N’hésitez pas à prendre contact avec notre agence (RODRIGUES MORAIS Elisa : (Numéro supprimé)) pour toute question sur ce terrain.
Joué-l'Abbé
TERRAIN ET MAISONJoué-l’Abbé : maison T5 (90 m²) en venteIDÉALEMENT SITUÉE – MAISON 5 PIÈCES NEUVEEn vente à 14 km du Mans, nous sommes heureux de vous proposer cette maison de 5 pièces de 90 m² et de 826 m² de terrain idéalement située dans Joué-l’Abbé (72380).Cette maison comporte 2 niveaux. Son intérieur inclut trois chambres, une cuisine et une salle de bains. Cette maison est neuve.La maison se situe dans un quartier prisé. L’École Primaire Publique Jacqueline Duhême se trouve à moins de 10 minutes à pied. Côté transports, il y a quatre gares à moins de 10 minutes en voiture. Les autoroutes A11 et A28 sont accessibles à moins de 10 km. On trouve un tennis à proximité du logement.Elle est à vendre pour la somme de 250 000 €.Prenez contact avec notre agence (Elisa RODRIGUES MORAIS : (Numéro supprimé)) pour plus d’informations sur la maison ou sur les démarches à suivre. Maisons France Confort Alençon vous accompagne à toutes les étapes de l’achat et dans tous vos projets immobiliers.
Joué-l'Abbé
TERRAIN ET MAISONVENTE : maison T3 (69 m²) à Joué-l’AbbéIDÉALEMENT SITUÉE – MAISON 3 PIÈCES NEUVEEn vente : située à deux pas du Mans, nous vous présentons, idéalement située dans Joué-l’Abbé (72380), cette maison de 3 pièces de plain-pied de 69 m².Son intérieur est composé de deux chambres, d’une cuisine et d’une salle de bains. Cette maison est neuve.Le terrain du bien est de 826 m².La maison se situe dans un quartier prisé. L’École Primaire Publique Jacqueline Duhême est implantée à moins de 10 minutes à pied. Niveau transports en commun, il y a quatre gares à moins de 10 minutes en voiture. Les autoroutes A11 et A28 sont accessibles à moins de 10 km. On trouve un tennis à quelques minutes du logement.Elle est proposée à l’achat pour 199 000 €.Contactez notre agence (RODRIGUES MORAIS Elisa : (Numéro supprimé)) pour obtenir de plus amples informations sur la maison ou sur les démarches à suivre. Concrétisez vos projets immobiliers avec Maisons France Confort Alençon.
Joué-l'Abbé
TERRAIN ET MAISONVENTE : maison F5 (110 m²) à Joué-l’AbbéIDÉALEMENT SITUÉE – MAISON 5 PIÈCES NEUVEÀ deux pas du Mans, nous sommes ravis de vous présenter en vente, idéalement située dans Joué-l’Abbé (72380), cette maison de 5 pièces de plain-pied de 110 m².Elle offre quatre chambres, une cuisine et deux salles de bains. La maison est neuve.Le terrain du bien est de 826 m².Le bien se situe dans un quartier attractif. L’École Primaire Publique Jacqueline Duhême se trouve à moins de 10 minutes à pied. Côté transports en commun, il y a quatre gares à moins de 10 minutes en voiture. Les autoroutes A11 et A28 sont accessibles à moins de 10 km. On trouve un tennis à proximité.Il est à vendre pour la somme de 256 000 €.Prenez contact avec notre agence (Elisa RODRIGUES MORAIS : (Numéro supprimé)) pour toute question sur la maison ou sur les démarches à suivre. Concrétisez vos projets immobiliers avec Maisons France Confort Alençon.
Joué-l'Abbé
TERRAIN ET MAISONVENTE : maison de 5 pièces (96 m²) à Joué-l’AbbéIDÉALEMENT SITUÉE – MAISON 5 PIÈCES NEUVEÀ 14 km du Mans, à vendre idéalement située dans Joué-l’Abbé (72380), nous vous présentons cette maison de 5 pièces de 96 m² et de 826 m² de terrain. Elle dispose de quatre chambres, d’une cuisine et d’une salle de bains.Cette maison compte 2 niveaux. Elle est neuve.La maison est située dans un quartier prisé. L’École Primaire Publique Jacqueline Duhême se trouve à moins de 10 minutes à pied. Niveau transports en commun, il y a quatre gares à moins de 10 minutes en voiture. Les autoroutes A11 et A28 sont accessibles à moins de 10 km. On trouve un tennis à proximité.Elle est proposée à l’achat pour 240 000 €.Prenez contact avec Elisa RODRIGUES MORAIS (tél : (Numéro supprimé)) pour obtenir de plus amples informations sur la maison.
Joué-l'Abbé
TERRAIN ET MAISONVENTE : maison de 4 pièces (92 m²) à Joué-l’AbbéIDÉALEMENT SITUÉE – MAISON 4 PIÈCES NEUVEEn vente : à quelques kilomètres du Mans, idéalement située dans Joué-l’Abbé (72380), nous sommes heureux de vous présenter cette maison de 4 pièces de plain-pied de 92 m² et de 826 m² de terrain. Conçue de plain-pied, elle est composée de trois chambres, d’une cuisine et d’une salle de bains.Cette maison est neuve.La propriété se situe dans un quartier prisé. Il y a l’École Primaire Publique Jacqueline Duhême à moins de 10 minutes à pied. Niveau transports en commun, on trouve quatre gares à moins de 10 minutes en voiture. Les autoroutes A11 et A28 sont accessibles à moins de 10 km. Il y a un tennis dans les environs.Elle est proposée à l’achat pour 237 000 €.Contactez notre agence (RODRIGUES MORAIS Elisa : (Numéro supprimé)) pour plus de renseignements sur la maison ou sur les démarches à suivre. Faites de vos projets immobiliers une réalité avec Maisons France Confort Alençon.
Aigné
TERRAINVENTE d »un terrain de 780 m² à AignéQUARTIER RECHERCHÉ – PROCHE DU MANSÀ Aigné (72650) en vente à 11 km du Mans, découvrez ce terrain de 780 m². Il donne sur un jardin et bénéficie d »une exposition nord-ouest. Dans un quartier attractif, le terrain construit dans un quartier prisé est proche des écoles et des commerces. L »École Primaire Publique Roger Bazille est implantée à moins de 10 minutes à pied. Niveau transports en commun, on trouve quatre gares à moins de 10 minutes en voiture. On trouve un accès à l »autoroute A11 à 4 km. Il y a un tennis à quelques minutes à peine.Ce terrain est proposé à l »achat pour 59 000 €. Contactez François HOUDAYER (tél : (Numéro supprimé)) pour tout renseignement sur le terrain, sur les modalités de vente ou sur les démarches à suivre. Faites de vos projets immobiliers une réalité avec Maine Construction Saint-Saturnin.
Aigné
TERRAIN ET MAISONAigné : maison de 3 pièces (92 m²) à vendreQUARTIER RECHERCHÉ – MAISON 3 PIÈCES NEUVEÀ 11 km du Mans, nous vous proposons cette maison de 3 pièces de 92 m² et de 780 m² de terrain nichée dans un quartier convoité d’Aigné (72650).C’est une maison de 2 niveaux. Elle compte trois chambres, une cuisine et une salle de bains. La maison est neuve.Ce bien est situé dans un secteur attractif. L’École Primaire Publique Roger Bazille est implantée à moins de 10 minutes à pied. Niveau transports en commun, on trouve quatre gares à moins de 10 minutes en voiture. On trouve un accès à l’autoroute A11 à 4 km. Il y a un tennis à proximité du logement.Il est à vendre pour la somme de 278 000 €.Contactez notre agence (François HOUDAYER : (Numéro supprimé)) pour toute question sur la maison ou sur les modalités de vente. Maine Construction Saint-Saturnin est là pour vous accompagner dans tous vos projets immobiliers.
Aigné
TERRAIN ET MAISONAigné : maison de 3 pièces (92 m²) à vendreQUARTIER RECHERCHÉ – MAISON 3 PIÈCES NEUVEÀ 11 km du Mans, nous vous proposons cette maison de 3 pièces de 92 m² et de 780 m² de terrain nichée dans un quartier convoité d’Aigné (72650).C’est une maison de 2 niveaux. Elle compte trois chambres, une cuisine et une salle de bains. La maison est neuve.Ce bien est situé dans un secteur attractif. L’École Primaire Publique Roger Bazille est implantée à moins de 10 minutes à pied. Niveau transports en commun, on trouve quatre gares à moins de 10 minutes en voiture. On trouve un accès à l’autoroute A11 à 4 km. Il y a un tennis à proximité du logement.Il est à vendre pour la somme de 278 000 €.Contactez notre agence (François HOUDAYER : (Numéro supprimé)) pour toute question sur la maison ou sur les modalités de vente. Maine Construction Saint-Saturnin est là pour vous accompagner dans tous vos projets immobiliers.
L’actualité immobilière à La Bazoge
27/11/2023
02/11/2023
30/10/2023
20/10/2023
16/10/2023
16/10/2023