Images
Description
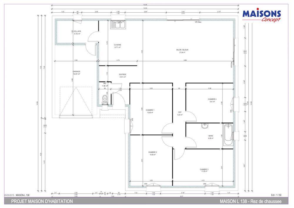
Nous vous proposons cette maison neuve, baptisée ""Élégance"", un modèle qui se distingue par sa forme architecturale en L, offrant à la fois style et fonctionnalité sur une surface habitable de 103 m². Conçue pour répondre aux attentes des plus exigeants, cette maison de plain-pied combine harmonieusement espace et confort, avec un total de 4 pièces, dont 4 chambres spacieuses, promettant ainsi un cadre de vie idéal pour toute la famille.
L'entrée s'ouvre sur un vaste salon-séjour baigné de lumière, grâce à sa conception ouverte qui s'étend jusqu'à la cuisine, créant un espace de vie convivial et accueillant. L'intégration d'un garage attenant et d'un cellier pratique souligne la pensée méticuleuse mise dans la conception de cette maison, visant à allier esthétique et fonctionnalité.
L'une des caractéristiques les plus appréciées de ce modèle est son enduit bi-ton, qui ajoute une touche de modernité et d'élégance à l'extérieur, reflétant le nom même de la maison. De plus, cette maison est entièrement personnalisable, vous permettant d'adapter chaque espace à votre mode de vie et à vos préférences, assurant ainsi que votre futur foyer réponde parfaitement à vos attentes.
Au-delà de son design attrayant, ""Élégance"" est une maison basse consommation, rigoureusement conçue pour respecter les normes de la RE2020. Cette caractéristique garantit non seulement un confort optimal tout au long de l'année mais aussi des économies significatives sur les factures d'énergie, soulignant notre engagement envers la durabilité et le respect de l'environnement.
En choisissant ""Élégance"", vous optez pour une maison qui allie beauté, confort et responsabilité environnementale. Une opportunité à ne pas manquer pour ceux qui cherchent à construire leur nid familial dans un cadre de vie à la fois moderne et économe en énergie.
Logement susceptibles de vous intéresser
Nous vous proposons de découvrir aussi cette sélection de logements situés à moins de 10km de La Guierche et qui seraient susceptibles de vous intéresser.
Neuville-sur-Sarthe
TERRAINSitué dans un environnement calme et recherché de Neuville-sur-Sarthe, découvrez ce terrain à bâtir de 772 m², entièrement viabilisé (eau, électricité, télécom, assainissement) — idéal pour concrétiser rapidement votre projet de construction. Les atouts du terrain :Superficie : 772 m²Terrain plat, facile à aménagerEntièrement viabiliséEnvironnement résidentielAccès rapide aux axes principauxCadre de vie calme et verdoyantUn des derniers terrains disponibles sur ce secteur Avantage majeur : possibilité de vente en VEFACe terrain peut être proposé dans le cadre d’une Vente en l’État Futur d’Achèvement (VEFA), permettant :une sécurisation du projet,un délai de construction optimisé,une livraison rapide clé-en-main,une maîtrise totale du budget.Une solution idéale pour ceux qui souhaitent gagner du temps et bénéficier d’un projet encadré de A à Z. Localisation : Neuville-sur-SartheCommune dynamique et recherchée aux portes du Mans, offrant :proximité des commerces, écoles et services (10min à pied, 3min en voiture),accès rapide au Mans,cadre de vie agréable entre ville et nature. Contactez-moi dès maintenant pour obtenir le dossier complet, les plans possibles et étudier votre projet de construction.Une opportunité rare pour construire rapidement dans un secteur prisé !Cette annonce référence 314195 vous est présentée par votre agent commercial BSK Immobilier THIBAUT FLAHOU (EI) immatriculé au RSAC de LE MANS (72000) sous le numéro 5(Numéro supprimé)024.Prix du bien : 114 400,00 €Les honoraires d’agence sont à la charge du vendeur.Les informations sur les risques auxquels ce bien est exposé sont disponibles sur le site Géorisques : www.georisques.gouv.fr
Aigné
TERRAIN ET MAISONVENTE : maison de 4 pièces (90 m²) à AignéIDÉALEMENT SITUÉE – MAISON 4 PIÈCES NEUVEÀ vendre : située à quelques kilomètres du Mans, nous sommes heureux de vous présenter, idéalement située dans Aigné (72650), cette maison de 4 pièces de plain-pied de 90 m². Elle propose trois chambres, une cuisine et une salle de bains.Le terrain de la propriété s’étend sur 780 m².La maison est neuve.Cette maison se trouve dans un quartier prisé. Il y a l’École Primaire Publique Roger Bazille à moins de 10 minutes à pied. Niveau transports, on trouve quatre gares à moins de 10 minutes en voiture. On trouve un accès à l’autoroute A11 à 4 km. Il y a un tennis à quelques minutes à peine.Elle est proposée à l’achat pour 249 000 €.Contactez François HOUDAYER ((Numéro supprimé)) pour tout renseignement sur la propriété ou sur les démarches à suivre.
Aigné
TERRAIN ET MAISONMaison F4 (191 m²) à vendre à AignéIDÉALEMENT SITUÉE – MAISON 4 PIÈCES NEUVEEn vente : à deux pas du Mans, idéalement située dans Aigné (72650), laissez vous charmer par cette maison de 4 pièces de 191 m² et de 780 m² de terrain. Elle est composée de trois chambres, d’une cuisine et de deux salles de bains.Cette maison compte 2 niveaux. Elle est neuve.La maison se trouve dans un quartier attractif. Il y a l’École Primaire Publique Roger Bazille à moins de 10 minutes à pied. Côté transports en commun, on trouve quatre gares à moins de 10 minutes en voiture. On trouve un accès à l’autoroute A11 à 4 km. Il y a un tennis à proximité.Elle est proposée à l’achat pour 469 000 €.N’hésitez pas à prendre contact avec notre agence (HOUDAYER François : (Numéro supprimé)) pour tout renseignement sur la propriété ou sur les modalités de vente. Donnez vie à vos projets immobiliers avec Maine Construction Le Mans.
Aigné
TERRAIN ET MAISONVENTE d’une maison T3 (70 m²) à AignéIDÉALEMENT SITUÉE – MAISON 3 PIÈCES NEUVEÀ vendre : à 11 km du Mans, nous sommes ravis de vous présenter cette maison de 3 pièces de plain-pied de 70 m² idéalement située dans Aigné (72650).Conçue de plain-pied, elle inclut une chambre, une cuisine et une salle de bains. Cette maison est neuve.Le terrain de la propriété s’étend sur 780 m².La maison est située dans un secteur attractif. L’École Primaire Publique Roger Bazille est implantée à moins de 10 minutes à pied. Niveau transports, on trouve quatre gares à moins de 10 minutes en voiture. Il y a un accès à l’autoroute A11 à 4 km. Il y a un tennis dans les environs.Elle est proposée à l’achat pour 198 000 €.Contactez notre agence (François HOUDAYER : (Numéro supprimé)) pour plus d’informations sur la maison.
Aigné
TERRAIN ET MAISONMaison de 5 pièces (77 m²) en vente à AignéIDÉALEMENT SITUÉE – MAISON 5 PIÈCES NEUVEÀ 11 km du Mans, notre agence Maine Construction Le Mans est ravie de vous présenter cette maison de 5 pièces de plain-pied de 77 m² et de 780 m² de terrain idéalement située dans Aigné (72650).Conçue de plain-pied, elle compte trois chambres, une cuisine et une salle de bains. La maison est neuve.Cette propriété se trouve dans un quartier convoité. L’École Primaire Publique Roger Bazille est implantée à moins de 10 minutes à pied. Niveau transports en commun, il y a quatre gares à moins de 10 minutes en voiture. Il y a un accès à l’autoroute A11 à 4 km. On trouve un tennis à proximité du logement.Elle est à vendre pour la somme de 215 000 €.N’hésitez pas à prendre contact avec notre constructeur (HOUDAYER François : (Numéro supprimé)) pour tout renseignement sur la maison ou sur les démarches à suivre.
Aigné
TERRAIN ET MAISONAigné : maison T4 (98 m²) à vendreIDÉALEMENT SITUÉE – MAISON 4 PIÈCES NEUVEÀ vendre : située à deux pas du Mans, Maine Construction Le Mans vous présente cette maison de 4 pièces de plain-pied de 98 m² et de 780 m² de terrain, idéalement située dans Aigné (72650). Conçue de plain-pied, elle offre trois chambres, une cuisine et une salle de bains.La maison est neuve.Cette maison se trouve dans un secteur attractif. Il y a l’École Primaire Publique Roger Bazille à moins de 10 minutes à pied. Côté transports en commun, on trouve quatre gares à moins de 10 minutes en voiture. Il y a un accès à l’autoroute A11 à 4 km. Il y a un tennis à proximité.Elle est proposée à l’achat pour 269 000 €.Prenez contact avec notre agence (HOUDAYER François : (Numéro supprimé)) pour obtenir de plus amples renseignements sur la propriété, sur les démarches à suivre ou sur les modalités de vente.
Aigné
TERRAIN ET MAISONVENTE d’une maison de 6 pièces (99 m²) à AignéIDÉALEMENT SITUÉE – MAISON 6 PIÈCES NEUVEÀ vendre à quelques kilomètres du Mans, idéalement située dans Aigné (72650), Maine Construction Le Mans vous présente cette maison de 6 pièces de plain-pied de 99 m². Conçue de plain-pied, elle se divise en trois chambres, une cuisine et une salle de bains.Le terrain de la maison s’étend sur 780 m².La maison est neuve.Ce bien se trouve dans un quartier convoité. L’École Primaire Publique Roger Bazille est implantée à moins de 10 minutes à pied. Côté transports, on trouve quatre gares à moins de 10 minutes en voiture. Il y a un accès à l’autoroute A11 à 4 km. Il y a un tennis dans les environs.Il est proposé à l’achat pour 265 000 €.N’hésitez pas à prendre contact avec François HOUDAYER ((Numéro supprimé)) pour toute information sur la maison et sur les modalités de vente.
Aigné
TERRAIN ET MAISONVENTE : maison F5 (140 m²) à AignéIDÉALEMENT SITUÉE – MAISON 5 PIÈCES NEUVEÀ 11 km du Mans, venez découvrir cette maison de 5 pièces de 140 m² à vendre idéalement située dans Aigné (72650).Cette maison comporte 2 niveaux. Son intérieur propose quatre chambres, une cuisine et deux salles de bains. Cette maison est neuve.Le terrain de la propriété est de 780 m².La maison est située dans un secteur convoité. L’École Primaire Publique Roger Bazille se trouve à moins de 10 minutes à pied. Côté transports, il y a quatre gares à moins de 10 minutes en voiture. Il y a un accès à l’autoroute A11 à 4 km. On trouve un tennis à quelques minutes.Elle est à vendre pour la somme de 379 000 €.Contactez François HOUDAYER (tél : (Numéro supprimé)) pour obtenir de plus amples informations sur la maison ou sur les démarches à suivre.
Aigné
TERRAIN ET MAISONVENTE : maison de 4 pièces (76 m²) à AignéIDÉALEMENT SITUÉE – MAISON 4 PIÈCES NEUVEÀ deux pas du Mans, nous sommes ravis de vous présenter cette maison de 4 pièces de plain-pied de 76 m² idéalement située dans Aigné (72650). Elle est composée de deux chambres, d’une cuisine et d’une salle de bains.Le terrain du bien est de 780 m².Cette maison est neuve.La maison est située dans un secteur prisé. L’École Primaire Publique Roger Bazille est implantée à moins de 10 minutes à pied. Niveau transports en commun, il y a quatre gares à moins de 10 minutes en voiture. L’autoroute A11 est accessible à 4 km. On trouve un tennis dans les environs.Elle est à vendre pour la somme de 225 000 €.Prenez contact avec notre agence (HOUDAYER François : (Numéro supprimé)) pour plus de renseignements sur la maison, sur les démarches à suivre ou sur les modalités de vente. Maine Construction Le Mans est là pour vous accompagner dans tous vos projets immobiliers.
L’actualité immobilière à La Guierche
27/11/2023
02/11/2023
30/10/2023
20/10/2023
16/10/2023
16/10/2023